NOVOSTAVBA 4-IZBOVÉHO BUNGALOVU LEN 7 KM OD PIEŠŤAN – OBEC S
- [10.11. 2025]Zmazať/ Upraviť/ Topovať






























189650 - Exkluzívne ponúkame na predaj moderný, nízkoenergetický 4-izbový rodinný dom typu bungalov v pokojnej časti obce Sokolovce, len 7 km od kúpeľného mesta Piešťany. Štvrtá izba slúži ako flexibilný priestor, ktorý môže byť využitý aj ako garáž. Dom je momentálne dokončený v štádiu holodom.
Ukážku, ako môže nehnuteľnosť vyzerať po dokončení vrátane zariadenia, nájdete vo videu tu: youtu.be/ESn9P2703Lo
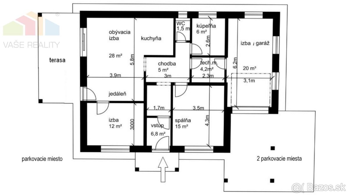
Dom so zastavanou plochou 118 m² je situovaný na rovinatom pozemku s výmerou 325 m². Dispozične je riešený ako jednopodlažný bungalov s celkovou podlahovou plochou 98,5 m². Súčasťou domu je aj zastrešená terasa s výmerou 18,5 m² a kryté parkovacie miesto (20 m²).
Dispozícia:
Zádverie 6,8 m², predsieň 5 m², technická miestnosť 4,2 m², obývacia izba s kuchyňou 28 m², spálňa 12 m², druhá spálňa 15 m², izba (alebo garáž) 20 m², kúpeľňa 6 m², samostatné WC 1,5 m², terasa 18,5 m².
Pôdorys nehnuteľnosti je k dispozícii vo fotogalérii.
Technické vyhotovenie:
Základová doska je zo železobetónu. Obvodové múry z porobetónových tvárnic PORFIX (30 cm), podlahy s liatymi betónovými poterami. Fasáda je zateplená 15 cm grafitovým polystyrénom. Vnútorné steny sú vápenocementové, stropy sadrokartónové s izoláciou a prístupom do sčasti pochôdzneho podkrovia. Plastové okná a vstupné dvere s izolačným trojsklom. Strecha valbová, pokrytá krytinou značky Terran.
Inžinierske siete a vybavenie:
Dom je napojený na elektrickú energiu a vodovod, odpad je riešený žumpou. Kúrenie je podlahové, s možnosťou voľby medzi elektrickým kotlom alebo tepelným čerpadlom. Pripravené sú vývody pre montáž klimatizácie a fotovoltaiky. Vedľa domu sú 3 parkovacie miesta, z toho jedno kryté.
Výhody:
nízke prevádzkové náklady
pokojná lokalita s možnosťami turistiky, cykloturistiky, rybolovu a kúpania (len 5 km od termálneho kúpaliska Koplotovce)
kompletná občianska vybavenosť v obci: škola, škôlka, potraviny, pošta, stavebniny, autobusová doprava
Cena: 259.900 €
Neváhajte ponúknuť aj vlastnú cenovú predstavu.
Viac informácií Vám radi poskytneme na telefónnom čísle 0905 436 650 alebo e-mailom na moravcik@vasereality.sk
Pri e-mailovej komunikácii prosíme uviesť aj Váš telefonický kontakt.
Ďalších viac ako 500 nehnuteľností nájdete na vasereality.sk
Na osobné stretnutie sa teší tím VAŠE REALITY s.r.o. – člen Realitnej únie SR.
Ukážku, ako môže nehnuteľnosť vyzerať po dokončení vrátane zariadenia, nájdete vo videu tu: youtu.be/ESn9P2703Lo
Dom so zastavanou plochou 118 m² je situovaný na rovinatom pozemku s výmerou 325 m². Dispozične je riešený ako jednopodlažný bungalov s celkovou podlahovou plochou 98,5 m². Súčasťou domu je aj zastrešená terasa s výmerou 18,5 m² a kryté parkovacie miesto (20 m²).
Dispozícia:
Zádverie 6,8 m², predsieň 5 m², technická miestnosť 4,2 m², obývacia izba s kuchyňou 28 m², spálňa 12 m², druhá spálňa 15 m², izba (alebo garáž) 20 m², kúpeľňa 6 m², samostatné WC 1,5 m², terasa 18,5 m².
Pôdorys nehnuteľnosti je k dispozícii vo fotogalérii.
Technické vyhotovenie:
Základová doska je zo železobetónu. Obvodové múry z porobetónových tvárnic PORFIX (30 cm), podlahy s liatymi betónovými poterami. Fasáda je zateplená 15 cm grafitovým polystyrénom. Vnútorné steny sú vápenocementové, stropy sadrokartónové s izoláciou a prístupom do sčasti pochôdzneho podkrovia. Plastové okná a vstupné dvere s izolačným trojsklom. Strecha valbová, pokrytá krytinou značky Terran.
Inžinierske siete a vybavenie:
Dom je napojený na elektrickú energiu a vodovod, odpad je riešený žumpou. Kúrenie je podlahové, s možnosťou voľby medzi elektrickým kotlom alebo tepelným čerpadlom. Pripravené sú vývody pre montáž klimatizácie a fotovoltaiky. Vedľa domu sú 3 parkovacie miesta, z toho jedno kryté.
Výhody:
nízke prevádzkové náklady
pokojná lokalita s možnosťami turistiky, cykloturistiky, rybolovu a kúpania (len 5 km od termálneho kúpaliska Koplotovce)
kompletná občianska vybavenosť v obci: škola, škôlka, potraviny, pošta, stavebniny, autobusová doprava
Cena: 259.900 €
Neváhajte ponúknuť aj vlastnú cenovú predstavu.
Viac informácií Vám radi poskytneme na telefónnom čísle 0905 436 650 alebo e-mailom na moravcik@vasereality.sk
Pri e-mailovej komunikácii prosíme uviesť aj Váš telefonický kontakt.
Ďalších viac ako 500 nehnuteľností nájdete na vasereality.sk
Na osobné stretnutie sa teší tím VAŠE REALITY s.r.o. – člen Realitnej únie SR.
|
| |||||||||||||||||||||||||||||||
Kontaktovať inzerenta e-mailom
Kontaktovať e-mailom môže iba overený užívateľ.
Overenie je zadarmo.
Vaše telefónne číslo *
Kontaktovať e-mailom môže iba overený užívateľ.
Overenie je zadarmo.
Vaše telefónne číslo *
Podobné inzeráty
PREDAJ: 2 izbový rodinný dom Ratnovce - [13.11. 2025]Realitná kancelária New Living Piešťany dáva do pozornosti predaj očarujúceho 2-izbového domu so veľkolepou záhradou končiacou lesom, ktorá vás privedie do sveta ticha, pohody a prírodného šarmu. Tento dom je ako stvorený pre tých, ktorí hľadajú útočisko neďaleko mesta, no v pokojnom prostredí a túž ...
155 000 €
Piešťany
922 31
922 31
58 x
Označiť zlý inzerát Chybnú kategóriu Ohodnotiť užívateľa Zmazať/Upraviť/Topovať
Veľký 6 izb. rodinný dom " SUN 77 " / Sokolovce - [11.11. 2025]Ponúkame Vám na predaj priestranný 6 izbový rodinný dom, typu bungalov v novovzniknutej štvrti "Nové Sokolovce 2" v obci Sokolovce, len 10 min. od kúpeľného mesta Piešťany a od mesta Hlohovec.
Jedná sa o praktický dom, typ bungalov, so zastavanou plochou 319 m2, úžitkovou plochou 228 ...
350 000 €
Piešťany
922 31
922 31
39 x
Označiť zlý inzerát Chybnú kategóriu Ohodnotiť užívateľa Zmazať/Upraviť/Topovať
Rodinný dom s krásnym 1200m2 slnečným pozemkom - [11.11. 2025]Ponúkame na predaj veľmi zachovalý 2-izbový rodinný dom v obci Ratnovce, len pár minút od Piešťan. Dom sa nachádza na rovinatom pozemku o výmere 1200 m², ktorý ponúka množstvo možností využitia – záhradkárčenie, oddych, rozšírenie bývania či drobné hospodárstvo.
Dispozícia domu:
vstupná chodba
...
155 000 €
Piešťany
922 31
922 31
88 x
Označiť zlý inzerát Chybnú kategóriu Ohodnotiť užívateľa Zmazať/Upraviť/Topovať
ZNÍŽENÁ CENA - NA PREDAJ - Veľký Rodinný dom Sokolovce - [9.11. 2025]*** KOLLÁR REALITY ***
Vám ponúka na predaj veľký rodinný dom s rozsiahlym pozemkom v Sokolovciach. Vhodný aj ako dom spojený s podnikaním.
Výmera pozemku: 1551 m2
Dom zastavaná plocha: 140 m2 + garáž 80 m2
Úžitková plocha - cez 200 m2
Dom:
-poschodový
prízemie: -chodba, schodisko,&nb ...
194 900 €
Piešťany
922 31
922 31
88 x
Označiť zlý inzerát Chybnú kategóriu Ohodnotiť užívateľa Zmazať/Upraviť/Topovať
Na predaj novostavba RD s dvomi 3i-bytmi v obci Sokolovce - [5.11. 2025]Na predaj novostavba RD s dvomi 3-izbovými bytovými jednotkami na ul. Jazerná v obci Sokolovce, vzdialenej len 5 km od kúpeľného mesta Piešťany. Samostatne stojaci dom sa nachádza v intraviláne obce, v novovybudovanej kludnej lokalite s príjazdovou asfaltovou cestou. Ide o neskolaudovanú 2. podlažnú ...
189 500 €
Piešťany
922 31
922 31
469 x
Označiť zlý inzerát Chybnú kategóriu Ohodnotiť užívateľa Zmazať/Upraviť/Topovať
Pasívny 5-izbový drevodom, Sokolovce - [29.10. 2025]Typ: Rodinný dom
Ulica: .
Obec: Sokolovce
1233 - Na predaj pasívny 5-izbový rodinný dom (drevodom) v obci Sokolovce. K domu patrí pozemok s celkovou výmerou 781m2. Skladba stavebného materiálu je uvedená na fotografii. Úžitková plocha domu je 129m2, je dvojpodlažný, dispozíciu tvorí: prízemie - ...
220 000 €
Piešťany
922 31
922 31
303 x
Označiť zlý inzerát Chybnú kategóriu Ohodnotiť užívateľa Zmazať/Upraviť/Topovať
BRANDreal – Priestranný rodinný dom s potenciálom viacgenera - [24.10. 2025]Ponúkame na predaj výnimočný sedemizbový rodinný dom ideálny pre veľkú alebo viacgeneračnú rodinu, situovaný v pokojnej a zelenej časti obce Sokolovce, len 5 km od kúpeľného mesta Piešťany. Táto nehnuteľnosť sa rozprestiera na veľkorysom pozemku o výmere 1 551 m², ktorý poskytuje dostatok priestoru ...
194 500 €
Piešťany
922 31
922 31
170 x
Označiť zlý inzerát Chybnú kategóriu Ohodnotiť užívateľa Zmazať/Upraviť/Topovať
Pasívny 5-izbový drevodom, Sokolovce - [14.10. 2025]1233 - Na predaj pasívny 5-izbový rodinný dom (drevodom) v obci Sokolovce. K domu patrí pozemok s celkovou výmerou 781m2. Skladba stavebného materiálu je uvedená na fotografii. Úžitková plocha domu je 129m2, je dvojpodlažný, dispozíciu tvorí: prízemie - vstupná chodba, WC, izba, schodisko, komora, o ...
220 000 €
Piešťany
922 31
922 31
602 x
Označiť zlý inzerát Chybnú kategóriu Ohodnotiť užívateľa Zmazať/Upraviť/Topovať
Moderný dvojdom v tichej lokalite – Sokolovce - [7.10. 2025]SHARK REAL vám ponúka na predaj novostavbu nízkoenergetického rodinného domu s dvoma samostatnými 3-izbovými bytovými jednotkami so záhradou v tichej lokalite obce Sokolovce.
Táto nehnuteľnosť Tento byt po dokončení podľa vlastných predstáv je ideálnou voľbou na pohodlné viacgeneračné bývanie, pren ...
189 500 €
Piešťany
922 31
922 31
619 x
Označiť zlý inzerát Chybnú kategóriu Ohodnotiť užívateľa Zmazať/Upraviť/Topovať
PREDAJ priestranný 4-izbový rodinný dom Sokolovce - [4.10. 2025]BIBI reality s.r.o. Vám Ponúka na predaj nádherný priestranný 4-izbový rodinný dom v obci Sokolovce na Piešťanskej ulici pri Piešťanoch. Nachádza sa v jednosmernej ulici v smere na Piešťany. Za pozemkom sa nachádza les, čo garantuje kľud a pohodu.
Rodinný dom:
- samostatne stojaci poschodový 4- ...
280 000 €
Piešťany
922 31
922 31
651 x
Označiť zlý inzerát Chybnú kategóriu Ohodnotiť užívateľa Zmazať/Upraviť/Topovať









