NOVOSTAVBA 4-IZBOVÉHO BUNGALOVU LEN 7 KM OD PIEŠŤAN – OBEC S
- [3.10. 2025]Zmazať/ Upraviť/ Topovať











189650 - Exkluzívne ponúkame na predaj moderný, nízkoenergetický 4-izbový rodinný dom typu bungalov v pokojnej časti obce Sokolovce, len 7 km od kúpeľného mesta Piešťany. Štvrtá izba slúži ako flexibilný priestor, ktorý môže byť využitý aj ako garáž. Dom je momentálne dokončený v štádiu holodom.
Ukážku, ako môže nehnuteľnosť vyzerať po dokončení vrátane zariadenia, nájdete vo videu tu: youtu.be/ESn9P2703Lo
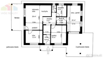
Dom so zastavanou plochou 118 m² je situovaný na rovinatom pozemku s výmerou 325 m². Dispozične je riešený ako jednopodlažný bungalov s celkovou podlahovou plochou 98,5 m². Súčasťou domu je aj zastrešená terasa s výmerou 18,5 m² a kryté parkovacie miesto (20 m²).
Dispozícia:
Zádverie 6,8 m², predsieň 5 m², technická miestnosť 4,2 m², obývacia izba s kuchyňou 28 m², spálňa 12 m², druhá spálňa 15 m², izba (alebo garáž) 20 m², kúpeľňa 6 m², samostatné WC 1,5 m², terasa 18,5 m².
Pôdorys nehnuteľnosti je k dispozícii vo fotogalérii.
Technické vyhotovenie:
Základová doska je zo železobetónu. Obvodové múry z porobetónových tvárnic PORFIX (30 cm), podlahy s liatymi betónovými poterami. Fasáda je zateplená 15 cm grafitovým polystyrénom. Vnútorné steny sú vápenocementové, stropy sadrokartónové s izoláciou a prístupom do sčasti pochôdzneho podkrovia. Plastové okná a vstupné dvere s izolačným trojsklom. Strecha valbová, pokrytá krytinou značky Terran.
Inžinierske siete a vybavenie:
Dom je napojený na elektrickú energiu a vodovod, odpad je riešený žumpou. Kúrenie je podlahové, s možnosťou voľby medzi elektrickým kotlom alebo tepelným čerpadlom. Pripravené sú vývody pre montáž klimatizácie a fotovoltaiky. Vedľa domu sú 3 parkovacie miesta, z toho jedno kryté.
Výhody:
nízke prevádzkové náklady
pokojná lokalita s možnosťami turistiky, cykloturistiky, rybolovu a kúpania (len 5 km od termálneho kúpaliska Koplotovce)
kompletná občianska vybavenosť v obci: škola, škôlka, potraviny, pošta, stavebniny, autobusová doprava
Cena: 259.900 €
Neváhajte ponúknuť aj vlastnú cenovú predstavu.
Viac informácií Vám radi poskytneme na telefónnom čísle 0905 436 650 alebo e-mailom na moravcik@vasereality.sk
Pri e-mailovej komunikácii prosíme uviesť aj Váš telefonický kontakt.
Ďalších viac ako 500 nehnuteľností nájdete na vasereality.sk
Na osobné stretnutie sa teší tím VAŠE REALITY s.r.o. – člen Realitnej únie SR.
Ukážku, ako môže nehnuteľnosť vyzerať po dokončení vrátane zariadenia, nájdete vo videu tu: youtu.be/ESn9P2703Lo
Dom so zastavanou plochou 118 m² je situovaný na rovinatom pozemku s výmerou 325 m². Dispozične je riešený ako jednopodlažný bungalov s celkovou podlahovou plochou 98,5 m². Súčasťou domu je aj zastrešená terasa s výmerou 18,5 m² a kryté parkovacie miesto (20 m²).
Dispozícia:
Zádverie 6,8 m², predsieň 5 m², technická miestnosť 4,2 m², obývacia izba s kuchyňou 28 m², spálňa 12 m², druhá spálňa 15 m², izba (alebo garáž) 20 m², kúpeľňa 6 m², samostatné WC 1,5 m², terasa 18,5 m².
Pôdorys nehnuteľnosti je k dispozícii vo fotogalérii.
Technické vyhotovenie:
Základová doska je zo železobetónu. Obvodové múry z porobetónových tvárnic PORFIX (30 cm), podlahy s liatymi betónovými poterami. Fasáda je zateplená 15 cm grafitovým polystyrénom. Vnútorné steny sú vápenocementové, stropy sadrokartónové s izoláciou a prístupom do sčasti pochôdzneho podkrovia. Plastové okná a vstupné dvere s izolačným trojsklom. Strecha valbová, pokrytá krytinou značky Terran.
Inžinierske siete a vybavenie:
Dom je napojený na elektrickú energiu a vodovod, odpad je riešený žumpou. Kúrenie je podlahové, s možnosťou voľby medzi elektrickým kotlom alebo tepelným čerpadlom. Pripravené sú vývody pre montáž klimatizácie a fotovoltaiky. Vedľa domu sú 3 parkovacie miesta, z toho jedno kryté.
Výhody:
nízke prevádzkové náklady
pokojná lokalita s možnosťami turistiky, cykloturistiky, rybolovu a kúpania (len 5 km od termálneho kúpaliska Koplotovce)
kompletná občianska vybavenosť v obci: škola, škôlka, potraviny, pošta, stavebniny, autobusová doprava
Cena: 259.900 €
Neváhajte ponúknuť aj vlastnú cenovú predstavu.
Viac informácií Vám radi poskytneme na telefónnom čísle 0905 436 650 alebo e-mailom na moravcik@vasereality.sk
Pri e-mailovej komunikácii prosíme uviesť aj Váš telefonický kontakt.
Ďalších viac ako 500 nehnuteľností nájdete na vasereality.sk
Na osobné stretnutie sa teší tím VAŠE REALITY s.r.o. – člen Realitnej únie SR.
|
|
Kontaktovať inzerenta e-mailom
Kontaktovať e-mailom môže iba overený užívateľ.
Overenie je zadarmo.
Vaše telefónne číslo *
Kontaktovať e-mailom môže iba overený užívateľ.
Overenie je zadarmo.
Vaše telefónne číslo *
Podobné inzeráty

Na predaj novostavba RD s dvomi 3-izbovými bytovými jednotkami na ul. Jazerná v obci Sokolovce, vzdialenej len 5 km od kúpeľného mesta Piešťany. Samostatne stojaci dom sa nachádza v intraviláne obce, v novovybudovanej kludnej lokalite s príjazdovou asfaltovou cestou. Ide o neskolaudovanú 2. podlažnú ...
189 500 €
Piešťany
922 31
922 31
109 x
Označiť zlý inzerát Chybnú kategóriu Ohodnotiť užívateľa Zmazať/Upraviť/Topovať

Realitná kancelária New Living Piešťany dáva do pozornosti predaj očarujúceho 2-izbového domu so veľkolepou záhradou, ktorá vás privedie do sveta ticha, pohody a prírodného šarmu. Tento dom je ako stvorený pre tých, ktorí hľadajú útočisko neďaleko mesta, no v pokojnom prostredí a túžia po romanticko ...
175 000 €
Piešťany
922 31
922 31
29 x
Označiť zlý inzerát Chybnú kategóriu Ohodnotiť užívateľa Zmazať/Upraviť/Topovať

Ponúkame na predaj veľmi zachovalý 2-izbový rodinný dom v obci Ratnovce, len pár minút od Piešťan. Dom sa nachádza na rovinatom pozemku o výmere 1200 m², ktorý ponúka množstvo možností využitia – záhradkárčenie, oddych, rozšírenie bývania či drobné hospodárstvo.
Dispozícia domu:
vstupná chodba
...
169 000 €
Piešťany
922 31
922 31
55 x
Označiť zlý inzerát Chybnú kategóriu Ohodnotiť užívateľa Zmazať/Upraviť/Topovať

Exkluzívne ponúkam na predaj NOVOSTAVBU - veľmi pekný a udržiavaný 2-izbový dom na Vysokej ulici v obci SOKOLOVCE, ktorá je vzdialená len 5 km od mesta PIEŠŤANY.
Vychutnajte si život v prírode s nádherným výhľadom, západom slnka a zároveň blízkou dostupnosťou do mesta. Nehnuteľnosť sa nachádza le ...
199 900 €
Piešťany
922 31
922 31
283 x
Označiť zlý inzerát Chybnú kategóriu Ohodnotiť užívateľa Zmazať/Upraviť/Topovať

BIBI reality s.r.o. Vám Ponúka na predaj nádherný priestranný 4-izbový rodinný dom v obci Sokolovce na Piešťanskej ulici pri Piešťanoch. Nachádza sa v jednosmernej ulici v smere na Piešťany. Za pozemkom sa nachádza les, čo garantuje kľud a pohodu.
Rodinný dom:
- samostatne stojaci poschodový 4- ...
280 000 €
Piešťany
922 31
922 31
381 x
Označiť zlý inzerát Chybnú kategóriu Ohodnotiť užívateľa Zmazať/Upraviť/Topovať

Ponúkame na predaj moderný 4izbový rodinný dom v obci Sokolovce (pri Piešťanoch): Inteligentná Novostavba s KOMPLETNOU PRÍPRAVOU!
Prestížna adresa, špičkové technológie a kľud. Váš nový 4-izbový bungalov je doslova pripravený na budúcnosť a Vaše sny. Kvalita a Výbava, Ktorá Presvedčí
(len 5 min ...
204 000 €
Piešťany
922 31
922 31
80 x
Označiť zlý inzerát Chybnú kategóriu Ohodnotiť užívateľa Zmazať/Upraviť/Topovať

Rodinný dom – novostavba 5 km (6 minút) od kúpeľného mesta Piešťany v obci Sokolovce (pred obcou na pravej strane). Nízkoenergetický nadštandardný 4 izbový rodinný dom v štádiu holodom. Možné dokončiť do štádia štandard.
Dom je postavený v novej časti obce s asfaltovou cestou, na rovinatom pozemk ...
199 000 €
Piešťany
922 31
922 31
246 x
Označiť zlý inzerát Chybnú kategóriu Ohodnotiť užívateľa Zmazať/Upraviť/Topovať

Exkluzívne iba u nás ponúkame na predaj novostavbu rodinného domu v modernej časti obce Sokolovce iba 5 km od kúpeľného mesta Piešťany.
Dom stavali majitelia pre seba a pri výstavbe kládli dôraz na vysokú kvalitu použitých materiálov. Obytná plocha vyše 203 m² dáva dostatok miesta pre každého.
...
409 977 €
Piešťany
922 31
922 31
329 x
Označiť zlý inzerát Chybnú kategóriu Ohodnotiť užívateľa Zmazať/Upraviť/Topovať

NA PREDAJ: 4-izbový rodinný dom na peknom rovinatom pozemku v novej zástavbe
Na predaj kvalitná novostavba rodinného domu s parkovacím státímv Sokolvciach, bude dokončená do štádia holodomu (vonkajšie dvere, okná, potery, zateplenie, fasáda, steny, vypínače Legrand biele)
VÝMERA: úži ...
199 000 €
Piešťany
922 31
922 31
298 x
Označiť zlý inzerát Chybnú kategóriu Ohodnotiť užívateľa Zmazať/Upraviť/Topovať

Exkluzívne iba u nás v APEX reality ponúkame na predaj prízemnú novostavbu nízkoenergetického rodinného drevodomu v tichej časti obce Jalšové. Dom je postavený na veľmi mierne svahovitom a oplotenom pozemku s výmerou 733 m. Napojený je na obecný vodovod, elektrinu a vlastný septik s objemom 12 m3.
...
216 000 €
Piešťany
922 31
922 31
510 x
Označiť zlý inzerát Chybnú kategóriu Ohodnotiť užívateľa Zmazať/Upraviť/Topovať