Na predaj - 3 izbový byt vo vyhľadávanej lokalite, blízko ce
- [26.11. 2025]Zmazať/ Upraviť/ Topovať




















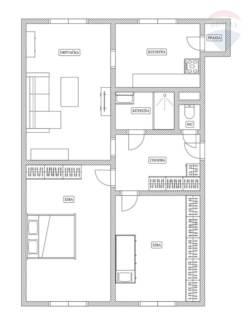
Realitná kancelária RE/MAX ponúka na predaj veľkometrážny 3-izbový byt o výmere 82 m², situovaný v zrekonštruovanom a zateplenom bytovom dome s novým výťahom a vymenenými stúpačkami.
Byt sa vyznačuje výborným dispozičným riešením. Dispozícia pozostáva z:
• dvoch veľkých samostatných izieb,
• priestrannej a svetlej obývacej izby,
• kuchyne so špajzou,
• kúpeľne zväčšenej v rámci čiastočnej rekonštrukcie (so sprchovým kútom),
• samostatného WC,
• veľkej vstupnej chodby so vstavanou skriňou.
Byt prešiel čiastočnou rekonštrukciou – menené plastové okná, vonkajšie rolety, úprava kúpeľne a doplnené vstavané úložné priestory v izbách, vďaka čomu je okamžite obývateľný. Jeho najväčšou výhodou je však nadštandardná podlahová plocha a praktické rozmiestnenie miestností, ktoré ponúka široké možnosti ďalšej modernizácie podľa predstáv nového majiteľa.
Byt je ideálny pre rodiny, ktoré ocenia priestor, ale aj pre tých, ktorí hľadajú bývanie vo vyhľadávanej lokalite, blízko centra mesta s kompletnou občianskou vybavenosťou: škola, škôlka, supermarkety, zdravotnícke služby, lekáreň, reštaurácie, kúpalisko a mnoho iného.
Zaujala vás táto ponuka? Kontaktujte nás a radi vám byt osobne predstavíme.
Byt sa vyznačuje výborným dispozičným riešením. Dispozícia pozostáva z:
• dvoch veľkých samostatných izieb,
• priestrannej a svetlej obývacej izby,
• kuchyne so špajzou,
• kúpeľne zväčšenej v rámci čiastočnej rekonštrukcie (so sprchovým kútom),
• samostatného WC,
• veľkej vstupnej chodby so vstavanou skriňou.
Byt prešiel čiastočnou rekonštrukciou – menené plastové okná, vonkajšie rolety, úprava kúpeľne a doplnené vstavané úložné priestory v izbách, vďaka čomu je okamžite obývateľný. Jeho najväčšou výhodou je však nadštandardná podlahová plocha a praktické rozmiestnenie miestností, ktoré ponúka široké možnosti ďalšej modernizácie podľa predstáv nového majiteľa.
Byt je ideálny pre rodiny, ktoré ocenia priestor, ale aj pre tých, ktorí hľadajú bývanie vo vyhľadávanej lokalite, blízko centra mesta s kompletnou občianskou vybavenosťou: škola, škôlka, supermarkety, zdravotnícke služby, lekáreň, reštaurácie, kúpalisko a mnoho iného.
Zaujala vás táto ponuka? Kontaktujte nás a radi vám byt osobne predstavíme.
|
| |||||||||||||||||||||||||||||||
Kontaktovať inzerenta e-mailom
Kontaktovať e-mailom môže iba overený užívateľ.
Overenie je zadarmo.
Vaše telefónne číslo *
Kontaktovať e-mailom môže iba overený užívateľ.
Overenie je zadarmo.
Vaše telefónne číslo *
Podobné inzeráty
HALO reality - Predaj, dvojizbový byt Topoľčany, Centrum - [1.12. 2025]Ponúkame na predaj dvojizbový, čiastočne zrekonštruovaný byt v centre Topoľčian. Byt o ploche 51 m2, sa nachádza v tehlovom, zrekonštruovanom tehlovom dome, na treťom poschodí z troch, bez výťahu.
DISPOZÍCIA: chodba, 2x izba, kuchyňa, kúpelňa so sprchovacím kútom, samostatné WC, latková pivnica ...
104 999 €
Topoľčany
955 01
955 01
71 x
Označiť zlý inzerát Chybnú kategóriu Ohodnotiť užívateľa Zmazať/Upraviť/Topovať
3 izbový byt s 2 pivnicami Topoľčany SUPER CENA - [30.11. 2025]3D obhliadka: https://my.matterport.com/show/?m=dj2MBgGLUNb
Ponúkame na predaj 3-izbový byt v Topoľčanoch, ktorý zaujme svojou priestrannosťou, pokojnou atmosférou a výbornou lokalitou v blízkosti prírody. Byt má výmeru 72 m² a nachádza sa na vyvýšenom prízemí v tehlovom bytovom dome, čo zaručuje ...
98 800 €
Topoľčany
955 01
955 01
416 x
Označiť zlý inzerát Chybnú kategóriu Ohodnotiť užívateľa Zmazať/Upraviť/Topovať
Nadštandardný 3-izbový byt - [29.11. 2025]Predám Kompletne zrekonštruovaný 3-izbový byt priamo v Topoľčanoch sídlisko F bezproblémové parkovanie,
Byt s plochou 82m2 plus balkón ďalšie 3m2, druhé poschodie zo 7, po kompletnej rekonštrukcii, elektrika, voda, stupačky, optika, klíma mitshubishi, spotrebiče siemens, práčka AEG, vstavaná chladn ...
190 000 €
Topoľčany
955 01
955 01
584 x
Označiť zlý inzerát Chybnú kategóriu Ohodnotiť užívateľa Zmazať/Upraviť/Topovať
Priestranný 3-izbový byt s loggiou Palkovičova ulica, Topoľč - [28.11. 2025]EXKLUZÍVNE na predaj slnečný byt s rozlohou 78 m2
Nachádza sa na 1.poschodí na ul. Palkovičová, Topoľčany.
Tento byt je vhodný pre všetkých ktorí hľadajú pokojné bývanie s kompletnou občianskou vybavenosťou v blízkom okolí.
DISPOZIČNÉ RIEŠENIE:
- Vstupná chodba
- Veľká obývacia izba prepojená s ...
143 000 €
Topoľčany
955 01
955 01
484 x
Označiť zlý inzerát Chybnú kategóriu Ohodnotiť užívateľa Zmazať/Upraviť/Topovať
1izb byt Modrak Topolčany - [27.11. 2025]
Ponúkame na predaj krásny a moderne zrekonštruovaný 1-izbový byt nachádzajúci sa na Krušovskej ulici v Topoľčanoch. Byt prešiel kompletnou rekonštrukciou pred 3 rokmi, takže nový majiteľ sa môže ihneď nasťahovať bez ďalších investícií.
📍 Lokalita:
Obľúbená časť Topoľčian s výbornou občianskou ...
V texte
Topoľčany
955 01
955 01
630 x
Označiť zlý inzerát Chybnú kategóriu Ohodnotiť užívateľa Zmazať/Upraviť/Topovať
4 izbový byt s balkónom Topoľčany zariadený - [27.11. 2025]Ponúkame na predaj 4 izbový byt s balkónom v Topoľčanoch na ulici sídlisku východ po kompletnej rekonštrukcii o rozlohe 82 m2 . Nachádza sa na 5. poschodí z 5 v zateplenej bytovke s novým výťahom. Je po rekonštrukcii má rozlohu 82 m2 . Má plastové okná, podlahy má plávajúce a dlažbu v chodbe , kúp ...
165 000 €
Topoľčany
955 01
955 01
451 x
Označiť zlý inzerát Chybnú kategóriu Ohodnotiť užívateľa Zmazať/Upraviť/Topovať
PREDÁME 4 IZBOVÝ BYT 98m², 2x wc, 2x klíma, 3D krb🏡 - [26.11. 2025]Typ: 4-izbový byt
Mestská časť: Juh
Obec: Topoľčany
005-114-RAKO Ponúkame na predaj výnimočný 4-izbový byt s celkovou plochou 98 m², ktorý sa nachádza na 6. poschodí zo siedmich, zatepleného bytového domu s novou strechou na pokojnom sídlisku Juh v Topoľčanoch. Ten ...
187 999 €
Topoľčany
955 01
955 01
303 x
Označiť zlý inzerát Chybnú kategóriu Ohodnotiť užívateľa Zmazať/Upraviť/Topovať
LACNÝ 3 IZBOVÝ byt, Krušovská ul., Topoľčany - TOP - [1.12. 2025]Ponúkame na predaj útulný 3-izbový byt v pokojnej lokalite na Krušovskej ulici v Topoľčanoch, obklopený zeleňou. Byt s výmerou podlahovej plochy 48,67 m² sa nachádza na vyvýšenom prízemí tehlového bytového domu a je ideálnou voľbou pre jednotlivcov, mladý pár, menšiu rodinu alebo ako investícia na p ...
109 000 €
Topoľčany
955 01
955 01
550 x
Označiť zlý inzerát Chybnú kategóriu Ohodnotiť užívateľa Zmazať/Upraviť/Topovať
2 IZBOVÝ BYT + PARKOVACIE STÁTIE V CENE - LUDANICE - [26.11. 2025]3D PREHLIADKA:
https://my.matterport.com/show/?m=XDAtEAtR34q
2 izbový byt v pokojnej lokalite
Nezmeškajte túto investičnú príležitosť!
Predstavujeme vám nové bývanie v príjemnom a pokojnom prostredí s výbornou dostupnosťou do Topoľčian a Nitry v novopostavenom bytovom dome. Skolaudovaný bol ...
120 000 €
Topoľčany
955 01
955 01
253 x
Označiť zlý inzerát Chybnú kategóriu Ohodnotiť užívateľa Zmazať/Upraviť/Topovať
3 IZBOVÝ BYT + 2 PARKOVACIE MIESTA, NOVOSTAVBA - LUDA - [26.11. 2025]3D PREHLIADKA:
https://my.matterport.com/show/?m=XDAtEAtR34q
Pokojná lokalita, moderné bývanie!
Nezmeškajte túto investičnú príležitosť!
Predstavujeme vám nové bývanie v príjemnom a pokojnom prostredí s výbornou dostupnosťou do Topoľčian a Nitry v novopostavenom bytovom dome. Skolaudovaný bo ...
120 000 €
Topoľčany
955 01
955 01
322 x
Označiť zlý inzerát Chybnú kategóriu Ohodnotiť užívateľa Zmazať/Upraviť/Topovať