🏡 Na predaj – moderný 5-izbový rodinný dom v Galante (novost
- [17.10. 2025]Zmazať/ Upraviť/ Topovať











Realitná kancelária CASMAR ponúka na predaj moderný 5-izbový rodinný dom v pokojnej a novovybudovanej časti mesta Galanta.
Dom je ideálnou voľbou pre rodiny, ktoré hľadajú komfortné, priestranné a kvalitné bývanie v novostavbe s výbornou dostupnosťou do centra mesta.
Nehnuteľnosť sa nachádza na rovinatom pozemku o výmere 576 m² a ponúka celkovú úžitkovú plochu 130 m².
Dom bol postavený s dôrazom na kvalitu materiálov, energetickú efektivitu a moderné technické riešenia.
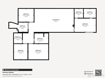
Dispozícia zahŕňa priestrannú obývaciu izbu s kuchyňou a jedálňou (44 m²) s priamym vstupom na terasu, tri samostatné izby, spálňu so šatníkom a vlastnou kúpeľňou, druhú kúpeľňu, technickú miestnosť, zádverie a chodbu.
Dom je navrhnutý tak, aby poskytol maximálne pohodlie a funkčnosť pre celú rodinu.
Súčasťou ponuky je terasa so zámkovou dlažbou, tri parkovacie státia, vlastná studňa a predpríprava na bazén.
Dom je vybavený klimatizáciou Midea, kamerovým systémom (4 ks), alarmom a predprípravou na elektrické žalúzie.
Kúrenie zabezpečuje plynový kotol Protherm s bojlerom Protherm.
Tento rodinný dom predstavuje výnimočnú kombináciu kvalitnej stavby, premyslenej dispozície a moderného vybavenia, ktorá poskytne budúcim majiteľom vysoký štandard bývania.
🔹 Základné informácie
Lokalita: Galanta
Typ nehnuteľnosti: Rodinný dom – novostavba
Počet izieb: 5
Celková úžitková plocha: 130 m²
Zastavaná plocha: 152 m²
Výmera pozemku: 576 m²
Počet nadzemných podlaží: 1
Rok kolaudácie: 2025
Vlastníctvo: Osobné
Pozemok: Rovinatý
Prístupová cesta: Betónová
🔹 Technické parametre a vybavenie
obvodové murivo: 38 cm tehla + minerálna izolácia 16 cm
strecha: železobetónová konštrukcia, spádový polystyrén 35–40 cm, hydroizolácia Fatrafol, štrkový zásyp
okná: plastové, trojsklo, 6-komorový profil, veľký posuv na terasu
vnútorné povrchy: strojové omietky, stierky, biela maľba
predpríprava na elektrické žalúzie (podomietkové puzdra)
klimatizácia Midea
kamerový systém (4 ks)
alarm
komín Schiedel
zámková dlažba – terasa, chodníky, parkovacie státia
plynové kúrenie – kotol a bojler Protherm
🔹 Exteriér a pozemok
rovinatý pozemok o výmere 576 m²
betónová prístupová cesta
tri parkovacie státia
terasa so zámkovou dlažbou
vlastná studňa a predpríprava pre bazén
všetky inžinierske siete: elektrina, plyn, kanalizácia,
🔹 Lokalita
Tichá časť mesta Galanta s kompletnou občianskou vybavenosťou v pešej dostupnosti.
V okolí sa nachádza mestské kúpalisko, kino, cyklistické trasy, obchody, školy a škôlky.
Ideálne miesto pre tých, ktorí hľadajú pokojné bývanie s možnosťou aktívneho oddychu.
📞 Kontakt na makléra
Ing. Marta Krejčí
Realitná kancelária CASMAR
📞 0908 216 676
✉️ krejci.m@casmar.sk
Dom je ideálnou voľbou pre rodiny, ktoré hľadajú komfortné, priestranné a kvalitné bývanie v novostavbe s výbornou dostupnosťou do centra mesta.
Nehnuteľnosť sa nachádza na rovinatom pozemku o výmere 576 m² a ponúka celkovú úžitkovú plochu 130 m².
Dom bol postavený s dôrazom na kvalitu materiálov, energetickú efektivitu a moderné technické riešenia.
Dispozícia zahŕňa priestrannú obývaciu izbu s kuchyňou a jedálňou (44 m²) s priamym vstupom na terasu, tri samostatné izby, spálňu so šatníkom a vlastnou kúpeľňou, druhú kúpeľňu, technickú miestnosť, zádverie a chodbu.
Dom je navrhnutý tak, aby poskytol maximálne pohodlie a funkčnosť pre celú rodinu.
Súčasťou ponuky je terasa so zámkovou dlažbou, tri parkovacie státia, vlastná studňa a predpríprava na bazén.
Dom je vybavený klimatizáciou Midea, kamerovým systémom (4 ks), alarmom a predprípravou na elektrické žalúzie.
Kúrenie zabezpečuje plynový kotol Protherm s bojlerom Protherm.
Tento rodinný dom predstavuje výnimočnú kombináciu kvalitnej stavby, premyslenej dispozície a moderného vybavenia, ktorá poskytne budúcim majiteľom vysoký štandard bývania.
🔹 Základné informácie
Lokalita: Galanta
Typ nehnuteľnosti: Rodinný dom – novostavba
Počet izieb: 5
Celková úžitková plocha: 130 m²
Zastavaná plocha: 152 m²
Výmera pozemku: 576 m²
Počet nadzemných podlaží: 1
Rok kolaudácie: 2025
Vlastníctvo: Osobné
Pozemok: Rovinatý
Prístupová cesta: Betónová
🔹 Technické parametre a vybavenie
obvodové murivo: 38 cm tehla + minerálna izolácia 16 cm
strecha: železobetónová konštrukcia, spádový polystyrén 35–40 cm, hydroizolácia Fatrafol, štrkový zásyp
okná: plastové, trojsklo, 6-komorový profil, veľký posuv na terasu
vnútorné povrchy: strojové omietky, stierky, biela maľba
predpríprava na elektrické žalúzie (podomietkové puzdra)
klimatizácia Midea
kamerový systém (4 ks)
alarm
komín Schiedel
zámková dlažba – terasa, chodníky, parkovacie státia
plynové kúrenie – kotol a bojler Protherm
🔹 Exteriér a pozemok
rovinatý pozemok o výmere 576 m²
betónová prístupová cesta
tri parkovacie státia
terasa so zámkovou dlažbou
vlastná studňa a predpríprava pre bazén
všetky inžinierske siete: elektrina, plyn, kanalizácia,
🔹 Lokalita
Tichá časť mesta Galanta s kompletnou občianskou vybavenosťou v pešej dostupnosti.
V okolí sa nachádza mestské kúpalisko, kino, cyklistické trasy, obchody, školy a škôlky.
Ideálne miesto pre tých, ktorí hľadajú pokojné bývanie s možnosťou aktívneho oddychu.
📞 Kontakt na makléra
Ing. Marta Krejčí
Realitná kancelária CASMAR
📞 0908 216 676
✉️ krejci.m@casmar.sk
|
|
Kontaktovať inzerenta e-mailom
Kontaktovať e-mailom môže iba overený užívateľ.
Overenie je zadarmo.
Vaše telefónne číslo *
Kontaktovať e-mailom môže iba overený užívateľ.
Overenie je zadarmo.
Vaše telefónne číslo *
Podobné inzeráty

Predavame vynimocny 3 izbovy rodinny dom podpivniceny s povalou, s velkou zahradou, blizko centra mesta Galanta, v tichej lokalite, s velkym pozemkom. Treba vidiet.
https://www.reality.sk/byty/all-inclusive-i-3-izbovy-rodinny-dom-s-garazou-na-hanza-koloni-galanta/Juw9mADBMze/
237 000 €
Galanta
924 01
924 01
190 x
Označiť zlý inzerát Chybnú kategóriu Ohodnotiť užívateľa Zmazať/Upraviť/Topovať

Typ: Rodinný dom
Ulica: Kupelná
Obec: Galanta
Realitná kancelária CASMAR ponúka na predaj moderný 5-izbový rodinný dom v pokojnej a novovybudovanej časti mesta Galanta.
Dom je ideálnou voľbou pre rodiny, ktoré hľadajú komfortné, priestranné a kvalitné bývanie v novostavbe s výbornou dostupnosťo ...
310 000 €
Galanta
924 01
924 01
240 x
Označiť zlý inzerát Chybnú kategóriu Ohodnotiť užívateľa Zmazať/Upraviť/Topovať

NOVÁ CENA
REALITY PROGRES PONÚKA RODINNÝ DOM NA POZEMKU 757m2 v obci TOMÁŠIKOVO okres GALANTA
Rodinný dom prešiel čiastočnou rekonštrukciou a bol postavený a daný do úžívania v roku 1980. Rodinný dom je postavený z tvárnic a pálenej tehly.
Rodinný dom má dve nadzemné podlažia a jedno podzemné, ...
165 000 €
Galanta
924 01
924 01
188 x
Označiť zlý inzerát Chybnú kategóriu Ohodnotiť užívateľa Zmazať/Upraviť/Topovať

Typ: Rodinný dom
Ulica: Veľká Mača
Obec: Galanta
RK Quality SC je tu pre Vás vyše 20 rokov. Garantujeme vrátenie rezervačného poplatku keď Vám nevybavíme hypotéku, pričom neplatíte poplatky za znalecký posudok ani za kolky na katastri.
Lokalita: Okres Galanta, obec Veľká Mača, ul. Rybničn ...
230 000 €
Galanta
924 01
924 01
51 x
Označiť zlý inzerát Chybnú kategóriu Ohodnotiť užívateľa Zmazať/Upraviť/Topovať

Ponúkame na predaj 5 ročnú novostavbu v Galante v časti Kolónia. Jednopodlažný dom s pultovou strechou je situovaný v tichej a slepej ulici pri potôčiku. Rozloha pozemku je 870 m2, plocha domu je 110 m2 a s terasou 140 m2.
Dispozícia domu: chodba, WC s umývadlom, technická miestnosť, kuchyňa zo špaj ...
320 000 €
Galanta
924 01
924 01
63 x
Označiť zlý inzerát Chybnú kategóriu Ohodnotiť užívateľa Zmazať/Upraviť/Topovať

Hľadáte pre seba a svoju rodinu komfortné a moderné bývanie v samostatne stojacom rodinnom dome?
Máme pre Vás ponuku POSLEDNEJ VOĽNEJ novostavby samostatne stojacieho 4-izbového rodinného domu vo vyhľadávanej, lukratívnej a novovybudovanej časti mesta Galanta, časť Hody.
Rodinný dom ktorého zastav ...
255 000 €
Galanta
924 01
924 01
229 x
Označiť zlý inzerát Chybnú kategóriu Ohodnotiť užívateľa Zmazať/Upraviť/Topovať

Hľadáte pre seba a svoju rodinu komfortné a moderné bývanie vo vyhľadávanej a novovybudovanej časti mesta Galanta, časť Richtárske Pole?
Máme pre Vás ponuku poslednej novostavby rodinného dvojdomu ležiaceho na pozemku o celkovej rozlohe 836 m2
Posledný voľný rodinný dom súčasť dvojdomu sa predáva v ...
228 000 €
Galanta
924 01
924 01
89 x
Označiť zlý inzerát Chybnú kategóriu Ohodnotiť užívateľa Zmazať/Upraviť/Topovať

Hľadáte pre seba a svoju rodinu pokojné, moderné bývanie? Máme pre Vás túto lukratívnu ponuku.
So súhlasom majiteľa Vám ponúkame na predaj novostavbu moderného rodinného domu v meste Galanta časť Kolónia.
Rodinný dom je postavený na pozemku o rozlohe 627 m², jeho zastavaná plocha je 147,46 m² vr ...
255 000 €
Galanta
924 01
924 01
83 x
Označiť zlý inzerát Chybnú kategóriu Ohodnotiť užívateľa Zmazať/Upraviť/Topovať

ALL INCLUSIVE REAL s.r.o Vám Exkluzívne ponúka na predaj čiastočne zrekonštruovaný 3 izbový RD so záhradou na peknom pozemku v obci Veľké Úľany (okr. Galanta).
• VLASTNOSTI NEHNUTEĽNOSTI:
Tehlový RD s 3 mi samostatnými izbami, s kuchyňou so špajzou a s kúpeľňou s WC.
Je čiastočne podpivn ...
157 000 €
Galanta
924 01
924 01
257 x
Označiť zlý inzerát Chybnú kategóriu Ohodnotiť užívateľa Zmazať/Upraviť/Topovať

Moderný 4 izbový bungalov s krásnym pozemkom, tichá lokalita..
Popis: Pozor, pozor hľadači svojho vysnívaného bývania! Máme pre vás úžasnú ponuku - moderný 4 izbový bungalov v tichej lokalite Galanty s nádherným pozemkom! Táto bombastická nehnuteľnosť vám ponúka všetko, čo si len môžete priať - a ...
315 000 €
Galanta
924 01
924 01
253 x
Označiť zlý inzerát Chybnú kategóriu Ohodnotiť užívateľa Zmazať/Upraviť/Topovať