🏡 Na predaj – moderný 5-izbový rodinný dom v Galante (novost
- [17.10. 2025]Zmazať/ Upraviť/ Topovať











Typ: Rodinný dom
Ulica: Kupelná
Obec: Galanta
Realitná kancelária CASMAR ponúka na predaj moderný 5-izbový rodinný dom v pokojnej a novovybudovanej časti mesta Galanta.
Dom je ideálnou voľbou pre rodiny, ktoré hľadajú komfortné, priestranné a kvalitné bývanie v novostavbe s výbornou dostupnosťou do centra mesta.
Nehnuteľnosť sa nachádza na rovinatom pozemku o výmere 576 m² a ponúka celkovú úžitkovú plochu 130 m².
Dom bol postavený s dôrazom na kvalitu materiálov, energetickú efektivitu a moderné technické riešenia.
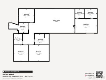
Dispozícia zahŕňa priestrannú obývaciu izbu s kuchyňou a jedálňou (44 m²) s priamym vstupom na terasu, tri samostatné izby, spálňu so šatníkom a vlastnou kúpeľňou, druhú kúpeľňu, technickú miestnosť, zádverie a chodbu.
Dom je navrhnutý tak, aby poskytol maximálne pohodlie a funkčnosť pre celú rodinu.
Súčasťou ponuky je terasa so zámkovou dlažbou, tri parkovacie státia, vlastná studňa a predpríprava na bazén.
Dom je vybavený klimatizáciou Midea, kamerovým systémom (4 ks), alarmom a predprípravou na elektrické žalúzie.
Kúrenie zabezpečuje plynový kotol Protherm s bojlerom Protherm.
Tento rodinný dom predstavuje výnimočnú kombináciu kvalitnej stavby, premyslenej dispozície a moderného vybavenia, ktorá poskytne budúcim majiteľom vysoký štandard bývania.
🔹 Základné informácie
Lokalita: Galanta
Typ nehnuteľnosti: Rodinný dom – novostavba
Počet izieb: 5
Celková úžitková plocha: 130 m²
Zastavaná plocha: 152 m²
Výmera pozemku: 576 m²
Počet nadzemných podlaží: 1
Rok kolaudácie: 2025
Vlastníctvo: Osobné
Pozemok: Rovinatý
Prístupová cesta: Betónová
🔹 Technické parametre a vybavenie
obvodové murivo: 38 cm tehla + minerálna izolácia 16 cm
strecha: železobetónová konštrukcia, spádový polystyrén 35–40 cm, hydroizolácia Fatrafol, štrkový zásyp
okná: plastové, trojsklo, 6-komorový profil, veľký posuv na terasu
vnútorné povrchy: strojové omietky, stierky, biela maľba
predpríprava na elektrické žalúzie (podomietkové puzdra)
klimatizácia Midea
kamerový systém (4 ks)
alarm
komín Schiedel
zámková dlažba – terasa, chodníky, parkovacie státia
plynové kúrenie – kotol a bojler Protherm
🔹 Exteriér a pozemok
rovinatý pozemok o výmere 576 m²
betónová prístupová cesta
tri parkovacie státia
terasa so zámkovou dlažbou
vlastná studňa a predpríprava pre bazén
všetky inžinierske siete: elektrina, plyn, kanalizácia,
🔹 Lokalita
Tichá časť mesta Galanta s kompletnou občianskou vybavenosťou v pešej dostupnosti.
V okolí sa nachádza mestské kúpalisko, kino, cyklistické trasy, obchody, školy a škôlky.
Ideálne miesto pre tých, ktorí hľadajú pokojné bývanie s možnosťou aktívneho oddychu.
📞 Kontakt na makléra
Ing. Marta Krejčí
Realitná kancelária CASMAR
📞 0908 216 676
✉️ krejci.m@casmar.sk
Status: aktívne
Vlastníctvo: osobné
Plocha pozemku: 576 m2
Úžitková plocha: 130 m2
Zastavaná plocha: 152 m2
Stav: nov
Ulica: Kupelná
Obec: Galanta
Realitná kancelária CASMAR ponúka na predaj moderný 5-izbový rodinný dom v pokojnej a novovybudovanej časti mesta Galanta.
Dom je ideálnou voľbou pre rodiny, ktoré hľadajú komfortné, priestranné a kvalitné bývanie v novostavbe s výbornou dostupnosťou do centra mesta.
Nehnuteľnosť sa nachádza na rovinatom pozemku o výmere 576 m² a ponúka celkovú úžitkovú plochu 130 m².
Dom bol postavený s dôrazom na kvalitu materiálov, energetickú efektivitu a moderné technické riešenia.
Dispozícia zahŕňa priestrannú obývaciu izbu s kuchyňou a jedálňou (44 m²) s priamym vstupom na terasu, tri samostatné izby, spálňu so šatníkom a vlastnou kúpeľňou, druhú kúpeľňu, technickú miestnosť, zádverie a chodbu.
Dom je navrhnutý tak, aby poskytol maximálne pohodlie a funkčnosť pre celú rodinu.
Súčasťou ponuky je terasa so zámkovou dlažbou, tri parkovacie státia, vlastná studňa a predpríprava na bazén.
Dom je vybavený klimatizáciou Midea, kamerovým systémom (4 ks), alarmom a predprípravou na elektrické žalúzie.
Kúrenie zabezpečuje plynový kotol Protherm s bojlerom Protherm.
Tento rodinný dom predstavuje výnimočnú kombináciu kvalitnej stavby, premyslenej dispozície a moderného vybavenia, ktorá poskytne budúcim majiteľom vysoký štandard bývania.
🔹 Základné informácie
Lokalita: Galanta
Typ nehnuteľnosti: Rodinný dom – novostavba
Počet izieb: 5
Celková úžitková plocha: 130 m²
Zastavaná plocha: 152 m²
Výmera pozemku: 576 m²
Počet nadzemných podlaží: 1
Rok kolaudácie: 2025
Vlastníctvo: Osobné
Pozemok: Rovinatý
Prístupová cesta: Betónová
🔹 Technické parametre a vybavenie
obvodové murivo: 38 cm tehla + minerálna izolácia 16 cm
strecha: železobetónová konštrukcia, spádový polystyrén 35–40 cm, hydroizolácia Fatrafol, štrkový zásyp
okná: plastové, trojsklo, 6-komorový profil, veľký posuv na terasu
vnútorné povrchy: strojové omietky, stierky, biela maľba
predpríprava na elektrické žalúzie (podomietkové puzdra)
klimatizácia Midea
kamerový systém (4 ks)
alarm
komín Schiedel
zámková dlažba – terasa, chodníky, parkovacie státia
plynové kúrenie – kotol a bojler Protherm
🔹 Exteriér a pozemok
rovinatý pozemok o výmere 576 m²
betónová prístupová cesta
tri parkovacie státia
terasa so zámkovou dlažbou
vlastná studňa a predpríprava pre bazén
všetky inžinierske siete: elektrina, plyn, kanalizácia,
🔹 Lokalita
Tichá časť mesta Galanta s kompletnou občianskou vybavenosťou v pešej dostupnosti.
V okolí sa nachádza mestské kúpalisko, kino, cyklistické trasy, obchody, školy a škôlky.
Ideálne miesto pre tých, ktorí hľadajú pokojné bývanie s možnosťou aktívneho oddychu.
📞 Kontakt na makléra
Ing. Marta Krejčí
Realitná kancelária CASMAR
📞 0908 216 676
✉️ krejci.m@casmar.sk
Status: aktívne
Vlastníctvo: osobné
Plocha pozemku: 576 m2
Úžitková plocha: 130 m2
Zastavaná plocha: 152 m2
Stav: nov
|
|
Kontaktovať inzerenta e-mailom
Kontaktovať e-mailom môže iba overený užívateľ.
Overenie je zadarmo.
Vaše telefónne číslo *
Kontaktovať e-mailom môže iba overený užívateľ.
Overenie je zadarmo.
Vaše telefónne číslo *