ALL INCLUSIVE I ČIASTOČNE ZREKONŠTRUOVANÝ RD S POZEMKOM VEĽK
- [16.10. 2025]Zmazať/ Upraviť/ Topovať











ALL INCLUSIVE REAL s.r.o Vám Exkluzívne ponúka na predaj čiastočne zrekonštruovaný 3 izbový RD so záhradou na peknom pozemku v obci Veľké Úľany (okr. Galanta).
• VLASTNOSTI NEHNUTEĽNOSTI:
Tehlový RD s 3 mi samostatnými izbami, s kuchyňou so špajzou a s kúpeľňou s WC.
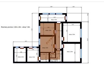
Je čiastočne podpivničený cca 40 m2, kompletne oplotený: zo zadnej strany s barierovým plotom, z prednej s bránou.
K RD prislúcha: predzáhradka a dvor, záhrada o výmere 456 m2, letná kuchyňa a hospodárska budova.
RD sa predáva čiastočne zariadený viď. fotky!
Bezproblémové parkovanie na vlastnom dvore pre 3 vozidlá a ďaľšie pred domom na ulici.
• STAV NEHNUTEĽNOSTI
RD bol postavený v 60 ich rokoch. Je vo veľmi zachovalom stave, so suchými stenami - obývateľný.
RD prešiel čiastočnou rekonštrukciou: výmena okien a vchodových dverí na plastové a výmena strechy: črepín a odkvapových žľab.
V lete 2025 sa opravovali praskliny v omietke v izbe.
Je ideálny pre tých, ktorý hľadajú RD na rekonštrukciu s primeranými nákladmi.
Ponúka široké možnosti rekonštrukcie a dispozičnej zmeny, podľa vlastných predstáv a vkusu nového majiteľa.
• POZEMOK:
Jednopodlažný RD je postavený na krásnom, rovinatom pozemku o celkovej výmere 1030 m2 ( záhrada 456 m2)
• ÚŽITKOVÁ PLOCHA:
RD má zastavanú plochu 123 m2 a úžitkovú plochu cca. 100 m2.
+ Letná kuchyňa 25 m2 a hospodárska budova 22 m2.
• DISPOZÍCIA :
- veľká predsieň
- chodba
- 3 priestranné izby,
- kuchyňa so špajzou,
- kúpeľňa s vaňou a s WC
výstup na povalu a pivnicu je cez komu zo zadnej časti
• KÚRENIE:
Kúrenie je riešené s gamatkami na plyn.
• INŽINIERSKE SIETE:
RD je napojený na všetky potrebné IS: elektrika 230/400 V, plyn, studňa, žumpa (10 - 12 m3).
Priamo pred domom sa nachádza prípojka na obecnú kanalizáciu a vodovod.
• TECHNICKÉ VYBAVENIE:
- betónové základy
- murivo: tehla
- 2 komíny - na krb
- strecha: menené črepiny a odkvapové ríny (2012) aj na letnej kuchynke
- plastové okná a vchodové dvere
- interierove žalúzie
- drevené interierové dvere a zárubne
- drevené podlahy
- vysoké stropy
- internet, TV Telecom
• VÝHODY:
- lokalita a dostupnosť
- primeraná cena k stavu
- rekonštrukcia
- možnosť vlastnej realizácie
- pekný, rovinatý pozemok,
- vedľajšie budovy so širokou možnosťou využitia
- pivnica, studňa
- parkovanie pre viac vozidiel
• LOKALITA:
RD sa nachádza v centre obce Veľké Úľany s kompletnou občianskou vybavenosťou: obecný úrad, kultúrne stredisko,
základná škola, materská škola ( slovenská aj maďarská), detské ihrisko, pošta, potraviny, reštaurácie atď.
Obec má vynikajúca dostupnosť do BA s autobusovou regionálnou dopravou.
Je vzdialený len 15 km od okresného mesta Galanta a od
• VLASTNOSTI NEHNUTEĽNOSTI:
Tehlový RD s 3 mi samostatnými izbami, s kuchyňou so špajzou a s kúpeľňou s WC.
Je čiastočne podpivničený cca 40 m2, kompletne oplotený: zo zadnej strany s barierovým plotom, z prednej s bránou.
K RD prislúcha: predzáhradka a dvor, záhrada o výmere 456 m2, letná kuchyňa a hospodárska budova.
RD sa predáva čiastočne zariadený viď. fotky!
Bezproblémové parkovanie na vlastnom dvore pre 3 vozidlá a ďaľšie pred domom na ulici.
• STAV NEHNUTEĽNOSTI
RD bol postavený v 60 ich rokoch. Je vo veľmi zachovalom stave, so suchými stenami - obývateľný.
RD prešiel čiastočnou rekonštrukciou: výmena okien a vchodových dverí na plastové a výmena strechy: črepín a odkvapových žľab.
V lete 2025 sa opravovali praskliny v omietke v izbe.
Je ideálny pre tých, ktorý hľadajú RD na rekonštrukciu s primeranými nákladmi.
Ponúka široké možnosti rekonštrukcie a dispozičnej zmeny, podľa vlastných predstáv a vkusu nového majiteľa.
• POZEMOK:
Jednopodlažný RD je postavený na krásnom, rovinatom pozemku o celkovej výmere 1030 m2 ( záhrada 456 m2)
• ÚŽITKOVÁ PLOCHA:
RD má zastavanú plochu 123 m2 a úžitkovú plochu cca. 100 m2.
+ Letná kuchyňa 25 m2 a hospodárska budova 22 m2.
• DISPOZÍCIA :
- veľká predsieň
- chodba
- 3 priestranné izby,
- kuchyňa so špajzou,
- kúpeľňa s vaňou a s WC
výstup na povalu a pivnicu je cez komu zo zadnej časti
• KÚRENIE:
Kúrenie je riešené s gamatkami na plyn.
• INŽINIERSKE SIETE:
RD je napojený na všetky potrebné IS: elektrika 230/400 V, plyn, studňa, žumpa (10 - 12 m3).
Priamo pred domom sa nachádza prípojka na obecnú kanalizáciu a vodovod.
• TECHNICKÉ VYBAVENIE:
- betónové základy
- murivo: tehla
- 2 komíny - na krb
- strecha: menené črepiny a odkvapové ríny (2012) aj na letnej kuchynke
- plastové okná a vchodové dvere
- interierove žalúzie
- drevené interierové dvere a zárubne
- drevené podlahy
- vysoké stropy
- internet, TV Telecom
• VÝHODY:
- lokalita a dostupnosť
- primeraná cena k stavu
- rekonštrukcia
- možnosť vlastnej realizácie
- pekný, rovinatý pozemok,
- vedľajšie budovy so širokou možnosťou využitia
- pivnica, studňa
- parkovanie pre viac vozidiel
• LOKALITA:
RD sa nachádza v centre obce Veľké Úľany s kompletnou občianskou vybavenosťou: obecný úrad, kultúrne stredisko,
základná škola, materská škola ( slovenská aj maďarská), detské ihrisko, pošta, potraviny, reštaurácie atď.
Obec má vynikajúca dostupnosť do BA s autobusovou regionálnou dopravou.
Je vzdialený len 15 km od okresného mesta Galanta a od
|
|
Kontaktovať inzerenta e-mailom
Kontaktovať e-mailom môže iba overený užívateľ.
Overenie je zadarmo.
Vaše telefónne číslo *
Kontaktovať e-mailom môže iba overený užívateľ.
Overenie je zadarmo.
Vaše telefónne číslo *