Predaj 4-izbový byt, 102m2, terasa 50m2, Bratislava-centrum,
- [5.3. 2026]Zmazať/ Upraviť/ Topovať






























Na predaj výnimočný 4-izbový byt s veľkorysou terasou v historickom centre Bratislavy – Gorkého ulica
REB.sk ponúka na predaj priestranný 4-izbový byt nachádzajúci sa v centre Bratislavy časti Starého Mesta.
Byt je situovaný na 2. poschodí šesťposchodového historického bytového domu.
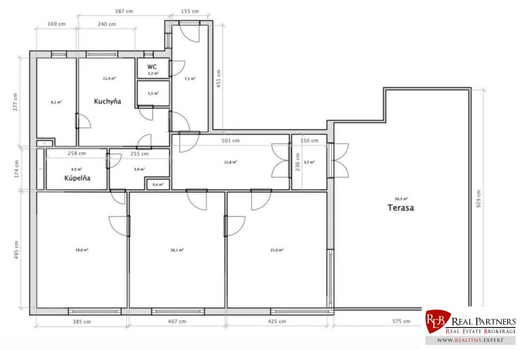
Celková výmera nehnuteľnosti je 158 m², z čoho:
obytná plocha bytu tvorí 102 m²
terasa má rozlohu 50 m²
pivnica 6 m²
Architektúra domu:
Bytový dom bol skolaudovaný v roku 1938 a predstavuje hodnotnú ukážku funkcionalistickej architektúry. Autorom projektu je Alexander Skutecký, jeden z významných slovenských architektov svojej doby. Objekt vyniká kvalitným spracovaním a nadčasovými materiálmi:
železobetónový skelet s tehlovou výplňou
fasáda obložená spišským travertínom
spoločné priestory s obkladom zo sivého mramoru
zachovaná pôvodná kabína výťahu
Dispozícia bytu:
• terasa o výmere 50 m²
• 3 priestranné priechodné izby
• jedálenská miestnosť smerom na terasu
• samostatná menšia izba za kuchyňou
• kuchyňa
• kúpeľňa, samostatné WC
• terasa s rôznorodým využitím
• pivnica 6 m²
Stav bytu a technické riešenie:
Byt je v zachovalom pôvodnom stave
pôvodné drevené okná a dvere
historické kľučky
kvalitné drevené parkety vo veľmi dobrom stave
pôvodná dlažba v kuchyni a na WC
elektroinštalácia menená v roku 1998
vykurovanie zabezpečuje vlastný kotol domu, radiátory + rebríkový radiátor v kúpeľni
Viac info v RK
Hypotekárny úver možný, s ktorým Vám radi pomôžeme zadarmo (poradenstvo - výber najvhodnejšieho produktu a banky).
Pre bližšie informácie a obhliadky nás môžete kontaktovať na 0911 340 531 alebo mailom gonda@reb.sk
© Všetky informácie uvedené v tomto inzeráte sú orientačné a môžu podliehať zmene.
© Text a fotografie sú autorským dielom a majetkom realitnej kancelárie REB - REAL PARTNERS.
Obytná plocha: 102m²
Úžitková plocha: 102m²
Vlastníctvo: osobné
Stav: pôvodný
Odvoz odpadu: áno
Plyn: áno
Kúpeľňa: vaňa
Vykurovanie: spoločné – vlastná kotolňa
Balkón: nie
Lódžia: nie
Terasa: áno
Pivnica: áno
Garáž: nie
Výťah: áno
Parkovanie: vonkajšie
Postavené z: tehla
Zariadenie: nezariadený
Zateplený objekt: nie
Krb: nie
Klimatizácia: nie
Energetický certifikát: nie
Predzáhradka: nie
Okná: plastové
REB.sk ponúka na predaj priestranný 4-izbový byt nachádzajúci sa v centre Bratislavy časti Starého Mesta.
Byt je situovaný na 2. poschodí šesťposchodového historického bytového domu.
Celková výmera nehnuteľnosti je 158 m², z čoho:
obytná plocha bytu tvorí 102 m²
terasa má rozlohu 50 m²
pivnica 6 m²
Architektúra domu:
Bytový dom bol skolaudovaný v roku 1938 a predstavuje hodnotnú ukážku funkcionalistickej architektúry. Autorom projektu je Alexander Skutecký, jeden z významných slovenských architektov svojej doby. Objekt vyniká kvalitným spracovaním a nadčasovými materiálmi:
železobetónový skelet s tehlovou výplňou
fasáda obložená spišským travertínom
spoločné priestory s obkladom zo sivého mramoru
zachovaná pôvodná kabína výťahu
Dispozícia bytu:
• terasa o výmere 50 m²
• 3 priestranné priechodné izby
• jedálenská miestnosť smerom na terasu
• samostatná menšia izba za kuchyňou
• kuchyňa
• kúpeľňa, samostatné WC
• terasa s rôznorodým využitím
• pivnica 6 m²
Stav bytu a technické riešenie:
Byt je v zachovalom pôvodnom stave
pôvodné drevené okná a dvere
historické kľučky
kvalitné drevené parkety vo veľmi dobrom stave
pôvodná dlažba v kuchyni a na WC
elektroinštalácia menená v roku 1998
vykurovanie zabezpečuje vlastný kotol domu, radiátory + rebríkový radiátor v kúpeľni
Viac info v RK
Hypotekárny úver možný, s ktorým Vám radi pomôžeme zadarmo (poradenstvo - výber najvhodnejšieho produktu a banky).
Pre bližšie informácie a obhliadky nás môžete kontaktovať na 0911 340 531 alebo mailom gonda@reb.sk
© Všetky informácie uvedené v tomto inzeráte sú orientačné a môžu podliehať zmene.
© Text a fotografie sú autorským dielom a majetkom realitnej kancelárie REB - REAL PARTNERS.
Obytná plocha: 102m²
Úžitková plocha: 102m²
Vlastníctvo: osobné
Stav: pôvodný
Odvoz odpadu: áno
Plyn: áno
Kúpeľňa: vaňa
Vykurovanie: spoločné – vlastná kotolňa
Balkón: nie
Lódžia: nie
Terasa: áno
Pivnica: áno
Garáž: nie
Výťah: áno
Parkovanie: vonkajšie
Postavené z: tehla
Zariadenie: nezariadený
Zateplený objekt: nie
Krb: nie
Klimatizácia: nie
Energetický certifikát: nie
Predzáhradka: nie
Okná: plastové
|
| |||||||||||||||||||||||||||||||
Kontaktovať inzerenta e-mailom
Kontaktovať e-mailom môže iba overený užívateľ.
Overenie je zadarmo.
Vaše telefónne číslo *
Kontaktovať e-mailom môže iba overený užívateľ.
Overenie je zadarmo.
Vaše telefónne číslo *
Podobné inzeráty
5 izb byt BA Staré Mesto NOVOSTAVBA - [12.3. 2026]Exkluzívny 5-izbový byt v novostavbe v srdci Starého Mesta.
Ponúkame na predaj výnimočný 5-izbový byt v prestížnej novostavbe v Bratislave – Staré Mesto, v lokalite, ktorá spája pokoj rezidenčného bývania s bezprostrednou blízkosťou centra mesta.
Byt sa nachádza v modernom bytovom dome s dôrazom n ...
616 990 €
Bratislava
811 01
811 01
21 x
Označiť zlý inzerát Chybnú kategóriu Ohodnotiť užívateľa Zmazať/Upraviť/Topovať
4 izb byt BA Staré Mesto NOVOSTAVBA - [12.3. 2026]Predáme výnimočný 4-izbový byt v modernej novostavbe v jednej z najžiadanejších lokalít Bratislavy – Staré Mesto. Tento byt spája vysoký štandard bývania, nadčasovú architektúru a pokojné mestské prostredie s rýchlou dostupnosťou do centra.
Byt disponuje veľkorysou výmerou interiéru 99,68 m², dopln ...
672 990 €
Bratislava
811 01
811 01
18 x
Označiť zlý inzerát Chybnú kategóriu Ohodnotiť užívateľa Zmazať/Upraviť/Topovať
ŠTÝLOVÝ 2i byt,SKY PARK,VÝHĽAD,LOGGIA,PARKING,VEŽA II,Továre - [12.3. 2026]Realitná kancelária PrimeReality ponúka na prenájom jedinečný, slnečný 2i – izbový byt orientovaný na Z stranu s krásnym výhľadom na Bratislavský hrad, kompletne štýlovo zariadený vo vysokom štandarde s centrálnou klimatizáciou, rekuperáciou, loggiou, garážovým parkovacím miestom, pivničnou kobkou, ...
370 000 €
Bratislava
811 01
811 01
18 x
Označiť zlý inzerát Chybnú kategóriu Ohodnotiť užívateľa Zmazať/Upraviť/Topovať
MODERNÝ 2i byt, REKONŠTRUKCIA, KLÍMA, MOZARTOVA ulica, Horsk - [12.3. 2026]Realitná kancelária PrimeReality ponúka na prenájom pekný, slnečný kompletne moderne zariadený 2i byt, po kompletnej rekonštrukcii, s klimatizáciou a pivničnou kobkou na Mozartovej ulici v Bratislave vo vyhľadávanej a tichej lokalite Horského Parku v mestskej časti Staré Mesto.
Podlahová plocha b ...
233 000 €
Bratislava
811 01
811 01
20 x
Označiť zlý inzerát Chybnú kategóriu Ohodnotiť užívateľa Zmazať/Upraviť/Topovať
RADO | 2-izbový byt 66m2 | Legionárska - Staré Mesto - [11.3. 2026]RadoReality Vám ponúka na predaj 2-izbový byt o výmere 66,60 m² (interiér 57,55 m² + pivnica 9,05 m²), ktorý sa nachádza v zateplenom bytovom dome bez výťahu na 5. poschodí z 5-tich, v atraktívnej lokalite Staré Mesto – Legionárska ulica, Bratislava.
VIRTUÁLNA OBHLIADKA:
Pre lepšie pochopenie d ...
285 950 €
Bratislava
811 01
811 01
60 x
Označiť zlý inzerát Chybnú kategóriu Ohodnotiť užívateľa Zmazať/Upraviť/Topovať
ASSENZIO- REZERVOVANÝ 2 IZBOVÝ BYT 54,16m2 - PREROBENÝ -SVET - [11.3. 2026]Assenzio ponúka na predaj moderný 2-izbový byt 54,16m2, po kompletnej rekonštrukcii, situovaný v horskom parku Bratislava. Tento byt je ideálnou voľbou pre tých, ktorí hľadajú pohodlné a štýlové bývanie v srdci prírody, ale s výbornou dostupnosťou do centra mesta.
Byt bude vyzerať tak ako je zach ...
259 000 €
Bratislava
811 01
811 01
46 x
Označiť zlý inzerát Chybnú kategóriu Ohodnotiť užívateľa Zmazať/Upraviť/Topovať
2 izbový byt v centre mesta - Bratislava - TOP - [12.3. 2026]3D virtuálna obhliadka: cutt.ly/rn9I2v9
Videoobhliadka bytu: youtu.be/FPmyDl-agW4
Byt je k dispozícii od 01.04.2026
Ponúkame na prenájom 2 izbový byt (34 m2) v centre mesta na Špitálskej ulici v Bratislave – Staré mesto. Pokiaľ milujete ruch starého mesta, no chcete mať i priestor na relax, je ...
850 €
Bratislava
811 01
811 01
493 x
Označiť zlý inzerát Chybnú kategóriu Ohodnotiť užívateľa Zmazať/Upraviť/Topovať
GRAVITAS | PREDAJ 2i byt SKY Park veža 2 Bratislava downtown - [10.3. 2026]GRAVITAS vám ponúka na predaj dizajnový a útulný pôvodne 2-izbový byt orientovaný na východnú stranu vo vyhľadávanom projekte SKY PARK by Zaha Hadid vo veži 2 na Továrenskej ulici. Byt bol unikátne upravený na vzdušnú otvorenú dispozíciu so spacím kútom. Je kompletne zariadený vstavaným nábytkom dod ...
365 000 €
Bratislava
811 01
811 01
67 x
Označiť zlý inzerát Chybnú kategóriu Ohodnotiť užívateľa Zmazať/Upraviť/Topovať
TOP LOKALITA - 4 izbový byt s terasou v centre - [10.3. 2026]AVE estate Vám ponúka na predaj veľký 4-izbový byt s päťdesiat metrovou terasou na poslednej prejazdnej ulici pred pešou zónou Starého Mesta, Gorkého ulica.
Celková úžitková plocha bytu je 158 m², vrátane priestrannej terasy s rozlohou 50 m² – ideálne miesto na relax, rôzne športové aktivity aleb ...
589 000 €
Bratislava
811 01
811 01
171 x
Označiť zlý inzerát Chybnú kategóriu Ohodnotiť užívateľa Zmazať/Upraviť/Topovať
TURECKO, ABSOLUTE REAL / 2i apartmán pri mori, 45 m2, Alanya - [10.3. 2026]ABSOLUTE REAL / 2i apartmán pri mori, 45 m2, Turecko, Alanya, balkón
Realitná kancelária ABSOLUTE REAL ponúka na predaj 2i apartmán v meste Alanya, Turecko o rozlohe 45 m2.
Lokalita:
• Prímorské letovisko, ktoré je obľúbenou dovolenkovou destináciou s kompletnou občianskou vybavenosťou
• Vzd ...
98 000 €
Bratislava
811 01
811 01
47 x
Označiť zlý inzerát Chybnú kategóriu Ohodnotiť užívateľa Zmazať/Upraviť/Topovať









