PREDAJ - 4-izbový byt so záhradou - Dunajská Lužná
- [21.12. 2025]Zmazať/ Upraviť/ Topovať




























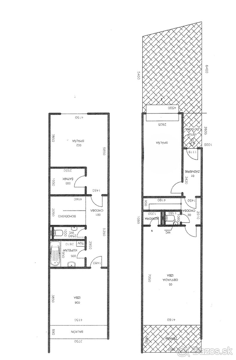
Predáme útulný a štýlový 4-izbový byt so záhradou v Dunajskej Lužnej. ÚP 120 m2 + terasa + 2 parkovacie miesta + pozemok 229 m2. Byt je veľmi dobre dispozične riešený. Na prízemí je vstupná chodba + toaleta s umývadlom. Čarovná spálňa s veľkými rolldor skriňami + Kuchyňa s veľkou kuchynskou linkou s ostrovom a veľkým úložným priestorom a špajzou. Dominantu bytu tvorí vzdušná obývacia časť s veľkými sklenými oknami so vstupom na zastrešenú príjemnú terasu a záhradu.
Súkromie bytu tvorí poschodie, kde sú dve priestranné samostatné izby. Jedna izba je s veľkým šatníkom a druhá izba je s veľkým balkónom s výhľadom do záhrady. Medzi izbami je kúpeľňa s vaňou, práčovňou i toaletou.
Výhodou bytu je podlahové kúrenie s plynovým kotlom. Byt je štýlový s tapetami a s kombináciou dreva, čo vytvára príjemnú energiu. Pred domom sa nachádzajú 2 parkovacie miesta, ktoré sú v cene nehnuteľnosti.
Dunajská Lužná je lukratívne miesto iba 15 km od BA so vstupom na diaľnicu a na všetky smery. Je dobre vybavená školou, škôlkami a občianskou vybavenosťou či zdravotné strediská . Pre športovcov je tu hrádza a krásne jazerá Košariská. Možnosť dopravy do BA aj železnicou.
Ideálne pre bývanie s početnou mladou rodinou. Výborná základná škola v D.Lužnej.
Súkromie bytu tvorí poschodie, kde sú dve priestranné samostatné izby. Jedna izba je s veľkým šatníkom a druhá izba je s veľkým balkónom s výhľadom do záhrady. Medzi izbami je kúpeľňa s vaňou, práčovňou i toaletou.
Výhodou bytu je podlahové kúrenie s plynovým kotlom. Byt je štýlový s tapetami a s kombináciou dreva, čo vytvára príjemnú energiu. Pred domom sa nachádzajú 2 parkovacie miesta, ktoré sú v cene nehnuteľnosti.
Dunajská Lužná je lukratívne miesto iba 15 km od BA so vstupom na diaľnicu a na všetky smery. Je dobre vybavená školou, škôlkami a občianskou vybavenosťou či zdravotné strediská . Pre športovcov je tu hrádza a krásne jazerá Košariská. Možnosť dopravy do BA aj železnicou.
Ideálne pre bývanie s početnou mladou rodinou. Výborná základná škola v D.Lužnej.
|
| |||||||||||||||||||||||||||||||
Kontaktovať inzerenta e-mailom
Kontaktovať e-mailom môže iba overený užívateľ.
Overenie je zadarmo.
Vaše telefónne číslo *
Kontaktovať e-mailom môže iba overený užívateľ.
Overenie je zadarmo.
Vaše telefónne číslo *
Podobné inzeráty
Zariadený 2i byt v novostavbe Green village s vlastným... - [22.12. 2025]TUreality ponuka na predaj: 2-izbový byt v novostavbe Green village v Dunajskej Lužnej
Lokalita: Dunajská Lužná
Počet izieb: 2
Výmera: 43,77 m2 + balkón 5,18 m2 a pivnica 3,55 m2
Financie: 175.000,— EUR
Popis: Na predaj dvojizbový byt v novostavbe bytového domu s výťahom. Predáva sa zariad ...
175 000 €
Senec
900 42
900 42
106 x
Označiť zlý inzerát Chybnú kategóriu Ohodnotiť užívateľa Zmazať/Upraviť/Topovať
Byt 2 izb - [19.12. 2025]Predám 2 izb byt , -Miloslavov , prízemie bezbariérový , predzahradka - virivka a sedenie , parkovacie miesto , kobka k bytu. Byt je voľný k nastavovaniu .
185 000 €
Senec
900 42
900 42
675 x
Označiť zlý inzerát Chybnú kategóriu Ohodnotiť užívateľa Zmazať/Upraviť/Topovať
Byt na predaj 6-izbový,120m2, INVESTIČNÝ byt,Dunajská Lužná - [19.12. 2025]INVESTIČNÁ PRÍLEŽITOSŤ – 6-izbová nehnuteľnosť po kompletnej rekonštrukcii, ideálna na ubytovanie zamestnancov (Dunajská Lužná)
REB.sk ponúka na predaj kompletne zrekonštruovanú nehnuteľnosť s úžitkovou plochou 120 m² v tichej časti Jánošíkovskej ulice v Dunajskej Lužnej.
Objekt sa nachádza v 3- ...
215 000 €
Senec
900 42
900 42
399 x
Označiť zlý inzerát Chybnú kategóriu Ohodnotiť užívateľa Zmazať/Upraviť/Topovať
3 izbový byt v novostavbe s veľkým parkovacím miestom – Milo - [13.12. 2025]Ak chceš moderný byt s charakterom a kvalitou, nie len ďalší „projekt z katalógu“, tento byt v Miloslavove ťa prekvapí.
Nie je to len byt. Je to priestor, ktorý má atmosféru.
Moderný 3-izbový byt s rozlohou 66 m² sa nachádza v novostavbe z roku 2023 – na prvom poschodí, s výťahom, dvoma balkónmi a k ...
219 900 €
Senec
900 42
900 42
570 x
Označiť zlý inzerát Chybnú kategóriu Ohodnotiť užívateľa Zmazať/Upraviť/Topovať
POSLEDNÝ VOĽNÝ 3-IZBOVÝ BYT SO ZÁHRADOU V TOMTO PROJEKTE - [11.12. 2025]Na predaj krásny 3-izbový byt s veľkorysou úžitkovou plochou 96,65 m², ktorý spája komfort bytu s výhodami rodinného domu. Byt sa nachádza v modernej novostavbe dvojpodlažného vilového domu v obci Dunajská Lužná.
LOKALITA A AREÁL:
Nehnuteľnosť je súčasťou malého, súkromného a uzavretého areálu ...
325 000 €
Senec
900 42
900 42
94 x
Označiť zlý inzerát Chybnú kategóriu Ohodnotiť užívateľa Zmazať/Upraviť/Topovať
Predaj 3-izbový byt so záhradou, Dunajská Lužná - [8.12. 2025]3-izbový byt so záhradou a parkovacím miestom na predaj – Dunajská Lužná
REB.sk ponúka na predaj 3-izbový byt v obľúbenej novostavbe Green Village v Dunajskej Lužnej.
Parametre bytu
• úžitková plocha bytu: 73,58 m²
• terasa: 11 m²
• predzáhrada: 83 m²
• pivničná kobka: 3,75 m²
• ...
239 000 €
Senec
900 42
900 42
442 x
Označiť zlý inzerát Chybnú kategóriu Ohodnotiť užívateľa Zmazať/Upraviť/Topovať
REB.SK 3-izbový byt v štandarde vrátane kuchyne len 15 minút - [4.12. 2025]REB.SK ponúka na predaj 3 izbový byt s predzáhradkou,pivnicou a parkovacím miestom v cene. Vrátane svietidiel aj kuchynskej linky so spotrebičmi.
Priestranný 3-izbový byt s predzáhradkou v Šamoríne – Šámot, rýchla doprava do Bratislavy cez diaľnicu D4
Hľadáte moderné a komfortné bývanie v poko ...
209 201 €
Senec
900 42
900 42
523 x
Označiť zlý inzerát Chybnú kategóriu Ohodnotiť užívateľa Zmazať/Upraviť/Topovať
REZERVOVANÉ 4-izbový byt v Dunajskej Lužnej, stačí sa nasťah - [28.11. 2025]Typ: 4-izbový byt
Ulica: Brezová
Mestská časť: Jánošíková
Obec: Dunajská Lužná
Realitná kancelária NestGroup Vám ponúka na predaj veľkometrážny 4-izbový byt nachádzajúci sa na Brezovej ulici v Dunajskej Lužnej. Menšou stavebnou úpravou bytu viete získať ešte viac otvoreného priestoru.&nbs ...
220 000 €
Senec
900 42
900 42
566 x
Označiť zlý inzerát Chybnú kategóriu Ohodnotiť užívateľa Zmazať/Upraviť/Topovať
Byt po rekonštrukcii, 120m2, 6izieb, vhodný aj na podnikanie - [26.11. 2025]Predám 6 izbový byt (120 m2), 3-bytovke so samostatným vchodom + pozemok, vhodný na prenájom ubytovania, alebo ako ubytovanie pre zamestnancov.
Lokalita: Jánošíkovská, Dunajská Lužná.
Obsahuje 6 samostatných izieb, dve oddelené kúpeľne, zariadenú kuchyňu, jedáleň, sklad.
Po komplexnej rekonšt ...
208 000 €
Senec
900 42
900 42
509 x
Označiť zlý inzerát Chybnú kategóriu Ohodnotiť užívateľa Zmazať/Upraviť/Topovať
6 izbový byt - vhodný ako investícia - [26.11. 2025]Predám 6 izbový byt (140 m2), 3-bytovke so samostatným vchodom vhodný na prenájom ubytovania, alebo ako ubytovanie pre zamestnancov.
Lokalita: Jánošíkovská, Dunajská Lužná.
Obsahuje 6 samostatných izieb, dve oddelené kúpeľne, zariadenú kuchyňu, jedáleň, sklad.
Po komplexnej rekonštrukcii ...
208 000 €
Senec
900 42
900 42
479 x
Označiť zlý inzerát Chybnú kategóriu Ohodnotiť užívateľa Zmazať/Upraviť/Topovať







