Novostavba 4 izbového RD Košťany nad Turcom (SECOLAND)
- [19.12. 2025]Zmazať/ Upraviť/ Topovať








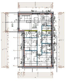
Ponúkam na predaj novostavbu 4izbového rodinného domu typu bungalov v stave holodom. RD sa nachádza v obci Košťany nad Turcom (SECOLAND) na pozemku o rozlohe 497m2 a pozostáva z obývacej izby, kuchyne, špajze, spálne, 2 detských izieb, kúpeľne s WC, samostatného WC, technickej miestnosti. Úžitková plocha RD je 110m2, zastavaná plocha 137m2. Holodom je vo výstavbe.
v cene holodomu sú zahrnuté:
• základy
• murovací tehlový systém BRITTERM
• strešná konštrukcia - drevený väzníkový krov
• strešná krytina PVC fólia
• plastové okna a vchodové dvere
• vnútorné rozvody vody, kanalizácie, rozvody teplovodného podlahového vykurovania,
• rozvody elektroinštalácie a bleskozvod
• rozvody rekuperácie
• vnútorné omietky stien
• hydroizolácie podláh, zateplenie podláh, betónové potery podláh
• sadrokartónové stropné podhľady,parozábrana
• zateplenie stropu
• vnútorná maľovka stien a stropov
• prípojka elektriky, prípojka vody, pripojka kanalizacie
v cene holodomu sú zahrnuté:
• základy
• murovací tehlový systém BRITTERM
• strešná konštrukcia - drevený väzníkový krov
• strešná krytina PVC fólia
• plastové okna a vchodové dvere
• vnútorné rozvody vody, kanalizácie, rozvody teplovodného podlahového vykurovania,
• rozvody elektroinštalácie a bleskozvod
• rozvody rekuperácie
• vnútorné omietky stien
• hydroizolácie podláh, zateplenie podláh, betónové potery podláh
• sadrokartónové stropné podhľady,parozábrana
• zateplenie stropu
• vnútorná maľovka stien a stropov
• prípojka elektriky, prípojka vody, pripojka kanalizacie
|
| |||||||||||||||||||||||||||||||
Kontaktovať inzerenta e-mailom
Kontaktovať e-mailom môže iba overený užívateľ.
Overenie je zadarmo.
Vaše telefónne číslo *
Kontaktovať e-mailom môže iba overený užívateľ.
Overenie je zadarmo.
Vaše telefónne číslo *