Nový 4-izb. bungalov v Čani–dom s pozemkom v cene bytu v KE
- TOP - [1.12. 2025]Zmazať/ Upraviť/ Topovať










Predstavujem vám novostavbu rodinného bungalovu v obľúbenej obci Čaňa – len pár minút od Košíc.
Dom stojí na slnečnom 5-árovom pozemku, v pokojnej, rodinnej lokalite.
A čo je na tom najlepšie?
Za cenu bytu v Košiciach môžete mať svoj rodinný dom s vlastným pozemkom.
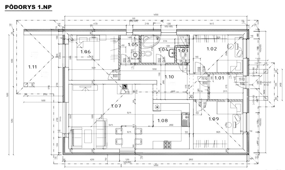
Dispozícia a podlahová plocha:
• podlahová plocha cca 110 m²
• 3 samostatné izby (spálne)
• kuchyňa prepojená s obývacou izbou
• technická miestnosť
• kúpeľňa s WC (vaňa + sprchovací kút)
• samostatné WC s umývadlom
• terasa z obývačky + krytá terasa zo spálne
Technológia a prevedenie:
– Porfix + zateplenie polystyrén 20 cm + fasáda
– valbová strecha, škridla, izolácia 40 cm minerálna vlna
– plastové okná + bezpečnostné vchodové dvere
– tepelné čerpadlo + teplovodné podlahové kúrenie v celom dome
– sadrokartónové stropy (bodovky + príprava na lustre v izbách)
– príprava na alarm, kamerový systém, vonkajšie žalúzie
– rozvody na internet po celom dome
– senzorové svetlá exteriér
– 10 m³ žumpa + vrtaná studňa
– výlez na povalu – úložný priestor
– príprava na kozub
Štandard v cene:
✔ plávajúce podlahy
✔ obklady, dlažby, sanita (výber podľa vás)
✔ interiérové dvere (výber podľa vás)
✔ pripravené rozvody pre kuchynskú linku
Toto nie je len dom.
Je to nový, voňavý priestor, ktorý si dotvoríte podľa seba – podľa svojho vkusu, štýlu a potrieb.
📌 Financovanie je možné aj postupne.
Ak nemáte celú sumu naraz, dá sa to riešiť krokovo podľa postupu výstavby.
Samozrejme, je možné financovať aj hypotekárnym úverom.
📞 Zavolajte mi alebo mi napíšte správu.
Rada vám poviem viac a ukážem detaily osobne.
Dom stojí na slnečnom 5-árovom pozemku, v pokojnej, rodinnej lokalite.
A čo je na tom najlepšie?
Za cenu bytu v Košiciach môžete mať svoj rodinný dom s vlastným pozemkom.
Dispozícia a podlahová plocha:
• podlahová plocha cca 110 m²
• 3 samostatné izby (spálne)
• kuchyňa prepojená s obývacou izbou
• technická miestnosť
• kúpeľňa s WC (vaňa + sprchovací kút)
• samostatné WC s umývadlom
• terasa z obývačky + krytá terasa zo spálne
Technológia a prevedenie:
– Porfix + zateplenie polystyrén 20 cm + fasáda
– valbová strecha, škridla, izolácia 40 cm minerálna vlna
– plastové okná + bezpečnostné vchodové dvere
– tepelné čerpadlo + teplovodné podlahové kúrenie v celom dome
– sadrokartónové stropy (bodovky + príprava na lustre v izbách)
– príprava na alarm, kamerový systém, vonkajšie žalúzie
– rozvody na internet po celom dome
– senzorové svetlá exteriér
– 10 m³ žumpa + vrtaná studňa
– výlez na povalu – úložný priestor
– príprava na kozub
Štandard v cene:
✔ plávajúce podlahy
✔ obklady, dlažby, sanita (výber podľa vás)
✔ interiérové dvere (výber podľa vás)
✔ pripravené rozvody pre kuchynskú linku
Toto nie je len dom.
Je to nový, voňavý priestor, ktorý si dotvoríte podľa seba – podľa svojho vkusu, štýlu a potrieb.
📌 Financovanie je možné aj postupne.
Ak nemáte celú sumu naraz, dá sa to riešiť krokovo podľa postupu výstavby.
Samozrejme, je možné financovať aj hypotekárnym úverom.
📞 Zavolajte mi alebo mi napíšte správu.
Rada vám poviem viac a ukážem detaily osobne.
|
| |||||||||||||||||||||||||||||||
Kontaktovať inzerenta e-mailom
Kontaktovať e-mailom môže iba overený užívateľ.
Overenie je zadarmo.
Vaše telefónne číslo *
Kontaktovať e-mailom môže iba overený užívateľ.
Overenie je zadarmo.
Vaše telefónne číslo *
Podobné inzeráty
Útulný rodinný dom s výhľadom a terasou, Košice - Krásna - TOP - [1.12. 2025]Nízke náklady; tichá nepriechodná ulica, kde neriešite cudzie autá, cudzie deti ani cudzie ruchy; z obývačky a terasy výhľad na Slanské vrchy; príjemní susedia; štvorprúdovka až do centra a ste tam za 15 min.
Tento útulný 10-ročný dom spĺňa všetko, čo si od bývania môžete priať.
Kombinácia, ktor ...
419 900 €
Košice
040 01
040 01
96 x
Označiť zlý inzerát Chybnú kategóriu Ohodnotiť užívateľa Zmazať/Upraviť/Topovať
Na predaj:budova-dom,10ár.pozemok,Kavečianska cesta,KE-Sever - [30.11. 2025]Realitní makléri Klaudia Heribanová a Peter Heriban Vám exkluzívne ponúkajú na predaj budovu-murovaný dom s 10 árovým pozemkom na ulici Kavečianska cesta 2 v Košiciach, časť Sever ( Čermeľ ), s rovinatým širokým pozemkom a výbornou polohou medzi Lokomotívou a univerzitou Veterin ...
450 000 €
Košice
040 01
040 01
227 x
Označiť zlý inzerát Chybnú kategóriu Ohodnotiť užívateľa Zmazať/Upraviť/Topovať
5 i RD s garážou + 54 m2 terasa, pozemok 1205 m2, Valaliky - TOP - [1.12. 2025]Len u nás ponúkame na predaj príjemný 4+1 izbový rodinný dom nachádzajúci sa na oplotenom a rovinatom pozemku 1205 m2 v prímetskej obci Valaliky, ktorá zažíva prudký rozvoj a je skvelou voľbou pre rodinné bývanie v blízkosti Košíc.
Rodinný dom o podlahovej výmere cca 135 m2 pozostáva z novšieho ...
387 000 €
Košice
040 01
040 01
672 x
Označiť zlý inzerát Chybnú kategóriu Ohodnotiť užívateľa Zmazať/Upraviť/Topovať
5 i RD s garážou + terasa 54 m2, pozemok 1205 m2, Valaliky - [29.11. 2025]Len u nás ponúkame na predaj príjemný 4+1 izbový rodinný dom nachádzajúci sa na oplotenom a rovinatom pozemku 1205 m2 v prímetskej obci Valaliky, ktorá zažíva prudký rozvoj a je skvelou voľbou pre rodinné bývanie v blízkosti Košíc.
Rodinný dom o podlahovej výmere cca 135 m2 pozostáva z novšieho ...
387 000 €
Košice
040 01
040 01
593 x
Označiť zlý inzerát Chybnú kategóriu Ohodnotiť užívateľa Zmazať/Upraviť/Topovať
Rodinný dom 250 m2,záhrada 650 m2, Podhradová-Košice - [29.11. 2025]Exkluzívne ponúkam na predaj pekný veľký rodinný dom so záhradou na pozemku cca 650 m2 s výhľadom na mesto Košice v atraktívnej lokalite mestskej časti Košice – Sever na sídlisku Podhradová.
Je postavený z tehál, strecha je pokrytá plechom.
Dom je podpivničený na celej ploche prízemia.
Orien ...
399 000 €
Košice
040 01
040 01
449 x
Označiť zlý inzerát Chybnú kategóriu Ohodnotiť užívateľa Zmazať/Upraviť/Topovať
Predám rodinný dom vhodný na podnikanie + skladové haly, Opa - [28.11. 2025]Predám rodinný dom vhodný na podnikanie na Opatovskej ceste vo vyhľadávanej lokalite Vyšné Opátske, Košice. K domu prislúchajú skladové haly, ktoré môžu byť využité na rôzne obchodné alebo výrobné účely.
VÝHODY NEHNUTEĽNOSTI:
Skvelá lokalita – rýchly prístup do centra Košíc, blízkosť hlavnýc ...
520 000 €
Košice
040 01
040 01
425 x
Označiť zlý inzerát Chybnú kategóriu Ohodnotiť užívateľa Zmazať/Upraviť/Topovať
Hladam dom - [28.11. 2025]Hladam domcek do 15 km od kosic, do 320 000 eur, ponuky zasielat do mailu , dakujem
350 000 €
Košice
040 01
040 01
254 x
Označiť zlý inzerát Chybnú kategóriu Ohodnotiť užívateľa Zmazať/Upraviť/Topovať
RODINNÝ DOM KOŠICE-VYŠNÉ OPÁTSKE - [27.11. 2025]Ponúkame Vám na predaj samostatne stojaci rodinný dom, Košice-Vyšné Opátske, na pozemku o výmere 904 m2. Úžitková plocha cca. 300 m2. Rodinný dom bol kolaudovaný v roku 1979. Strecha sedlová. Rodinný dom je murovaný a zateplený s plastovými oknami. Prízemie pozostáva z garáže s dvoma parko ...
390 000 €
Košice
040 01
040 01
748 x
Označiť zlý inzerát Chybnú kategóriu Ohodnotiť užívateľa Zmazať/Upraviť/Topovať
Na predaj komerčná budova v Košiciach - TOP - [1.12. 2025]Ponúkame na predaj polyfunkčnú budovu v Košiciach
🏢 Budova 1 – Ideálna na podnikanie alebo prestavbu na byty
Úžitková plocha: 260 m²
Podlažia: 2 + podkrovie
Pozemok v cene
Samostatne stojaca budova vhodná pre administratívu, služby, showroom alebo klientské centrum.
Možnosť prestavby na bytové ...
319 900 €
Košice
040 01
040 01
334 x
Označiť zlý inzerát Chybnú kategóriu Ohodnotiť užívateľa Zmazať/Upraviť/Topovať
Kolesár reality predáva rodinný dom v obci Hidvégardó - [26.11. 2025]Kolesár reality predáva rodinný dom - chalupu v maďarskej obci Hidvégardó tesne za hranicami a 4 km od Turni nad Bodvou. Od Košíc je vzdialená 40 km – 35 minút autom.
Dom je na pozemku o výmere 3000 m2 s obytnou plochou 214 m2. Je veľmi slnečný so širokým a dostatočne veľkým pozemkom, poloha je m ...
215 000 €
Košice
040 01
040 01
394 x
Označiť zlý inzerát Chybnú kategóriu Ohodnotiť užívateľa Zmazať/Upraviť/Topovať