NOVOSTAVBA 4-IZBOVÉHO BUNGALOVU LEN 7 KM OD PIEŠŤAN – OBEC S
- [24.11. 2025]Zmazať/ Upraviť/ Topovať






























189650 - Exkluzívne ponúkame na predaj moderný, nízkoenergetický 4-izbový rodinný dom typu bungalov v pokojnej časti obce Sokolovce, len 7 km od kúpeľného mesta Piešťany. Štvrtá izba slúži ako flexibilný priestor, ktorý môže byť využitý aj ako garáž. Dom je momentálne dokončený v štádiu holodom.
Ukážku, ako môže nehnuteľnosť vyzerať po dokončení vrátane zariadenia, nájdete vo videu tu: youtu.be/ESn9P2703Lo
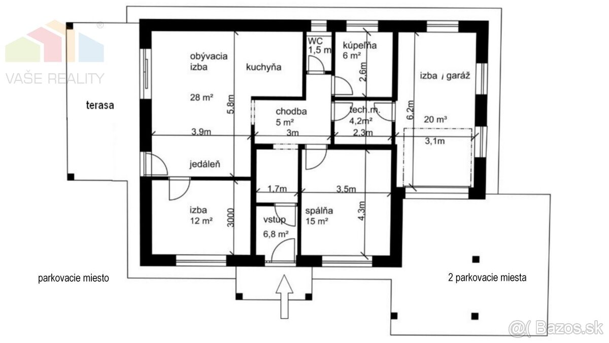
Dom so zastavanou plochou 118 m² je situovaný na rovinatom pozemku s výmerou 325 m². Dispozične je riešený ako jednopodlažný bungalov s celkovou podlahovou plochou 98,5 m². Súčasťou domu je aj zastrešená terasa s výmerou 18,5 m² a kryté parkovacie miesto (20 m²).
Dispozícia:
Zádverie 6,8 m², predsieň 5 m², technická miestnosť 4,2 m², obývacia izba s kuchyňou 28 m², spálňa 12 m², druhá spálňa 15 m², izba (alebo garáž) 20 m², kúpeľňa 6 m², samostatné WC 1,5 m², terasa 18,5 m².
Pôdorys nehnuteľnosti je k dispozícii vo fotogalérii.
Technické vyhotovenie:
Základová doska je zo železobetónu. Obvodové múry z porobetónových tvárnic PORFIX (30 cm), podlahy s liatymi betónovými poterami. Fasáda je zateplená 15 cm grafitovým polystyrénom. Vnútorné steny sú vápenocementové, stropy sadrokartónové s izoláciou a prístupom do sčasti pochôdzneho podkrovia. Plastové okná a vstupné dvere s izolačným trojsklom. Strecha valbová, pokrytá krytinou značky Terran.
Inžinierske siete a vybavenie:
Dom je napojený na elektrickú energiu a vodovod, odpad je riešený žumpou. Kúrenie je podlahové, s možnosťou voľby medzi elektrickým kotlom alebo tepelným čerpadlom. Pripravené sú vývody pre montáž klimatizácie a fotovoltaiky. Vedľa domu sú 3 parkovacie miesta, z toho jedno kryté.
Výhody:
nízke prevádzkové náklady
pokojná lokalita s možnosťami turistiky, cykloturistiky, rybolovu a kúpania (len 5 km od termálneho kúpaliska Koplotovce)
kompletná občianska vybavenosť v obci: škola, škôlka, potraviny, pošta, stavebniny, autobusová doprava
Cena: 259.900 €
Neváhajte ponúknuť aj vlastnú cenovú predstavu.
Viac informácií Vám radi poskytneme na telefónnom čísle 0905 436 650 alebo e-mailom na moravcik@vasereality.sk
Pri e-mailovej komunikácii prosíme uviesť aj Váš telefonický kontakt.
Ďalších viac ako 500 nehnuteľností nájdete na vasereality.sk
Na osobné stretnutie sa teší tím VAŠE REALITY s.r.o. – člen Realitnej únie SR.
Ukážku, ako môže nehnuteľnosť vyzerať po dokončení vrátane zariadenia, nájdete vo videu tu: youtu.be/ESn9P2703Lo
Dom so zastavanou plochou 118 m² je situovaný na rovinatom pozemku s výmerou 325 m². Dispozične je riešený ako jednopodlažný bungalov s celkovou podlahovou plochou 98,5 m². Súčasťou domu je aj zastrešená terasa s výmerou 18,5 m² a kryté parkovacie miesto (20 m²).
Dispozícia:
Zádverie 6,8 m², predsieň 5 m², technická miestnosť 4,2 m², obývacia izba s kuchyňou 28 m², spálňa 12 m², druhá spálňa 15 m², izba (alebo garáž) 20 m², kúpeľňa 6 m², samostatné WC 1,5 m², terasa 18,5 m².
Pôdorys nehnuteľnosti je k dispozícii vo fotogalérii.
Technické vyhotovenie:
Základová doska je zo železobetónu. Obvodové múry z porobetónových tvárnic PORFIX (30 cm), podlahy s liatymi betónovými poterami. Fasáda je zateplená 15 cm grafitovým polystyrénom. Vnútorné steny sú vápenocementové, stropy sadrokartónové s izoláciou a prístupom do sčasti pochôdzneho podkrovia. Plastové okná a vstupné dvere s izolačným trojsklom. Strecha valbová, pokrytá krytinou značky Terran.
Inžinierske siete a vybavenie:
Dom je napojený na elektrickú energiu a vodovod, odpad je riešený žumpou. Kúrenie je podlahové, s možnosťou voľby medzi elektrickým kotlom alebo tepelným čerpadlom. Pripravené sú vývody pre montáž klimatizácie a fotovoltaiky. Vedľa domu sú 3 parkovacie miesta, z toho jedno kryté.
Výhody:
nízke prevádzkové náklady
pokojná lokalita s možnosťami turistiky, cykloturistiky, rybolovu a kúpania (len 5 km od termálneho kúpaliska Koplotovce)
kompletná občianska vybavenosť v obci: škola, škôlka, potraviny, pošta, stavebniny, autobusová doprava
Cena: 259.900 €
Neváhajte ponúknuť aj vlastnú cenovú predstavu.
Viac informácií Vám radi poskytneme na telefónnom čísle 0905 436 650 alebo e-mailom na moravcik@vasereality.sk
Pri e-mailovej komunikácii prosíme uviesť aj Váš telefonický kontakt.
Ďalších viac ako 500 nehnuteľností nájdete na vasereality.sk
Na osobné stretnutie sa teší tím VAŠE REALITY s.r.o. – člen Realitnej únie SR.
|
| |||||||||||||||||||||||||||||||
Kontaktovať inzerenta e-mailom
Kontaktovať e-mailom môže iba overený užívateľ.
Overenie je zadarmo.
Vaše telefónne číslo *
Kontaktovať e-mailom môže iba overený užívateľ.
Overenie je zadarmo.
Vaše telefónne číslo *









