Predaj novostavieb RD v radovej zástavbe v Ivanke pri Nitre
- [24.11. 2025]Zmazať/ Upraviť/ Topovať




















Typ: Rodinný dom
Ulica: .
Obec: Ivanka pri Nitre
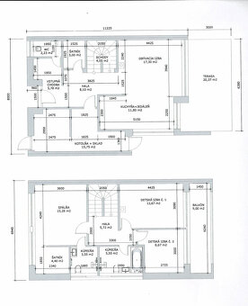
A-Z Reality ponúka na predaj 3 novostavby rodinného domu v radovej výstavbe v stave holodomu:
- nachádzajú sa v okrajovej časti obce, s ľahkým prístupom v súkromnej uličke
- nízkoenergetické domy s predprípravou na fotovoltaiku, krb aj vonkajšie el.žalúzie
- samotný dom je 1 poschodový s celkovou podlahová plochu 144 m2 bez terasy
- dispozícia: na prízemí sú, vstupná hala, priestranná maximálne svetlá obývačka spojená s kuchyňou a s prístupom na 7mx3m terasu, technická miestnosť s odkladacou časťou a miestnom na pračku aj sušičku, samostatná toaleta a schodisko na poschodie k 3 izbám a kúpeľni, hlavná spálňa má vlastnú kúpelňu s toaletou a šatník, z 2 izieb je prístup na spoločný balkón
- kúrenie je podlahové pomocou tepelného čerpadla - v zime hreje/v lete chladí miestnosti
- rozvody optického internetu sú zavedené do každej izby
- ku každému domu prislúchajú 2 parkovacie miesta a cca 75 m2 ohradená záhrada za terasou
- vlastný vodomer a elektromer je samozrejmosť taktiež až 20 cm vonkajšie zateplenie
- vonkajší terén je upravený, zámkovou dlažbou vydlážený prístupový dvor s parkovacími miestami na murovanej trávnatej časti
Výborný projekt, použité kvalitné materiály, dôkladné prípravné a staviteľské práce sú garantom dobrej kúpy a následne komfortného bývania!
Dobrá poloha obce (od mesta Nitry) a prostredie v okolí domu sú veľkým plusom tejto ponuky!
Cena domu je 195.000,- € bez dane
Radi Vám domy predstavíme - stačí zavolať 0905 753 455 a stretneme sa na obhliadke.
Status: aktívne
Vlastníctvo: osobné
Plocha pozemku: 300 m2
Typ zeme: rovina
Teritórium: Intravilán
Šírka pozemku: 11 m
Dĺžka pozemku: 25 m
Úžitková plocha: 144 m2
Zastavaná plocha: 68 m2
Podlahová plocha: 144 m2
Skladová plocha: 22 m2
Stav: novostavba
Počet izieb: 4
Energetický certifikát: A
Energetická náročnosť budovy: Nízkoenergetický
Typ budovy: tehla
Typ výbavy: nevybavený
Balkón: áno
Terasa: áno
Sklad: áno
Rok výstavby: 2025
Rok kolaudácie: 2025
Celková plocha: 144 m2
Plocha balkóna: 9 m2
Terasa plocha: 20 m2
Počet terás: 1
Počet vonkajších parkovacích miest: 2
Orientácia: juhovýchod
Inžinierske siete: áno
Vykurovanie - podlahové: áno
Internet: áno
Optická sieť: áno
Ulica: .
Obec: Ivanka pri Nitre
A-Z Reality ponúka na predaj 3 novostavby rodinného domu v radovej výstavbe v stave holodomu:
- nachádzajú sa v okrajovej časti obce, s ľahkým prístupom v súkromnej uličke
- nízkoenergetické domy s predprípravou na fotovoltaiku, krb aj vonkajšie el.žalúzie
- samotný dom je 1 poschodový s celkovou podlahová plochu 144 m2 bez terasy
- dispozícia: na prízemí sú, vstupná hala, priestranná maximálne svetlá obývačka spojená s kuchyňou a s prístupom na 7mx3m terasu, technická miestnosť s odkladacou časťou a miestnom na pračku aj sušičku, samostatná toaleta a schodisko na poschodie k 3 izbám a kúpeľni, hlavná spálňa má vlastnú kúpelňu s toaletou a šatník, z 2 izieb je prístup na spoločný balkón
- kúrenie je podlahové pomocou tepelného čerpadla - v zime hreje/v lete chladí miestnosti
- rozvody optického internetu sú zavedené do každej izby
- ku každému domu prislúchajú 2 parkovacie miesta a cca 75 m2 ohradená záhrada za terasou
- vlastný vodomer a elektromer je samozrejmosť taktiež až 20 cm vonkajšie zateplenie
- vonkajší terén je upravený, zámkovou dlažbou vydlážený prístupový dvor s parkovacími miestami na murovanej trávnatej časti
Výborný projekt, použité kvalitné materiály, dôkladné prípravné a staviteľské práce sú garantom dobrej kúpy a následne komfortného bývania!
Dobrá poloha obce (od mesta Nitry) a prostredie v okolí domu sú veľkým plusom tejto ponuky!
Cena domu je 195.000,- € bez dane
Radi Vám domy predstavíme - stačí zavolať 0905 753 455 a stretneme sa na obhliadke.
Status: aktívne
Vlastníctvo: osobné
Plocha pozemku: 300 m2
Typ zeme: rovina
Teritórium: Intravilán
Šírka pozemku: 11 m
Dĺžka pozemku: 25 m
Úžitková plocha: 144 m2
Zastavaná plocha: 68 m2
Podlahová plocha: 144 m2
Skladová plocha: 22 m2
Stav: novostavba
Počet izieb: 4
Energetický certifikát: A
Energetická náročnosť budovy: Nízkoenergetický
Typ budovy: tehla
Typ výbavy: nevybavený
Balkón: áno
Terasa: áno
Sklad: áno
Rok výstavby: 2025
Rok kolaudácie: 2025
Celková plocha: 144 m2
Plocha balkóna: 9 m2
Terasa plocha: 20 m2
Počet terás: 1
Počet vonkajších parkovacích miest: 2
Orientácia: juhovýchod
Inžinierske siete: áno
Vykurovanie - podlahové: áno
Internet: áno
Optická sieť: áno
|
| |||||||||||||||||||||||||||||||
Kontaktovať inzerenta e-mailom
Kontaktovať e-mailom môže iba overený užívateľ.
Overenie je zadarmo.
Vaše telefónne číslo *
Kontaktovať e-mailom môže iba overený užívateľ.
Overenie je zadarmo.
Vaše telefónne číslo *
Podobné inzeráty
Nitra - Využite skvelé ceny - 4izbové nové domy - TOP - [30.11. 2025]🏡 Hľadáte komfortné, úsporné a pokojné bývanie len na skok od Nitry? Predstavujeme vám posledné dva samostatné nízkoenergetické rodinné domy v novej štvrti Krásne lúky, ktoré spájajú kvalitnú výstavbu, moderné technológie a vidiecky pokoj s rýchlou dostupnosťou do mesta Nitra. Ivanka pri Nitre - Nit ...
V texte
Nitra
951 12
951 12
476 x
Označiť zlý inzerát Chybnú kategóriu Ohodnotiť užívateľa Zmazať/Upraviť/Topovať
Exkluzívne: bungalov + 6 apartámov, Ivánka pri Nitre, Nitr - [23.11. 2025]Exkluzívne ponúkame na predaj 4i bungalov + 6 apartmánov v obci Ivanka pri Nitre. Dom je postavený v úplnom súkromí od apartmánov, takže je spojené tiché bývanie s investíciou.
Dispozičné riešenie domu: vstupná chodba, obývacia miestnosť spojená s kuchyňou, 3 x izba, priestranný šatník, kúpe ...
Dohodou
Nitra
951 12
951 12
468 x
Označiť zlý inzerát Chybnú kategóriu Ohodnotiť užívateľa Zmazať/Upraviť/Topovať
Predaj dom 100 m2 na pozemku 761 m2 v obci Ivanka pri Nitre - [19.11. 2025]EXKLUZÍVNE IBA U NÁS! Realitná kancelária RE/MAX ponúka na predaj rodinný dom s aktuálne plne funkčnou pálenicou ovocných destilátov na ulici Pri Parku v obci Ivanka pri Nitre.
Pozemok má výmeru 761 m² a nachádzajú sa na ňom:
• murovaný rodinný dom z kvádra – zastavaná plocha 100 m², úžitková pl ...
141 000 €
Nitra
951 12
951 12
164 x
Označiť zlý inzerát Chybnú kategóriu Ohodnotiť užívateľa Zmazať/Upraviť/Topovať
CREDA | predaj zariadený rodinný dom, novostavba, Ivanka pri - [6.11. 2025]CREDA REAL ESTATE Vám ponúka na predaj modernú 3-izbovú novostavbu v developerskom projekte KÚRIA Ivanka pri Nitre.
-RODINNÝ DOM-
Kolaudácia: 2018
Úžitková plocha: 134 m2
Počet izieb: 3
Dispozícia:
1.NP: vstupná chodba, kuchyňa s jedálňou, obývačkou a výstupom do záhrady, technická miestnosť s prá ...
285 500 €
Nitra
951 12
951 12
4540 x
Označiť zlý inzerát Chybnú kategóriu Ohodnotiť užívateľa Zmazať/Upraviť/Topovať
NA PREDAJ ‼️POSLEDNÉ 2 ‼️- 4 izbové radové domy v Ivánke pri - [6.11. 2025]‼️‼️VOLNE POSLEDNE 2 DOMY‼️‼️‼️
Realitná spoločnosť Time4dreams
Vám ponúka EXKLUZÍNE na predaj novostavby radových rodinných domov v Ivánke pri Nitre
- Počet izieb: 4
- Obytná plocha 145 m2
- Zastavaná plocha: 78 m²
- Kolaudácia r. 2025
- Orientácia: juhozápad
Nehnuteľnosť vás očarí pocitom ...
225 000 €
Nitra
951 12
951 12
4392 x
Označiť zlý inzerát Chybnú kategóriu Ohodnotiť užívateľa Zmazať/Upraviť/Topovať
Dva domy, jedna adresa. Miesto, kde začína váš nový príbeh – - TOP - [25.11. 2025]Predstavte si, že bývate v tichej ulici, kde si ráno môžete vychutnať kávu, alebo skvelú horúcu čokoládu v miestnej prémiovej čokoládovni, deti sa cez víkend hrajú v obecnom parku za domom a vy máte okolo seba dostatok priestoru pre všetko, po čom túžite.
Presne tak pôsobí táto výnimočná ponuka v Iv ...
260 000 €
Nitra
951 12
951 12
741 x
Označiť zlý inzerát Chybnú kategóriu Ohodnotiť užívateľa Zmazať/Upraviť/Topovať
EXKLUZÍVNE NA PREDAJ moderný 4-izbový bungalov s terasou – I - TOP - [8.11. 2025]Zabývaná novostavba kolaudovaná v roku 2020 | Bezbariérový prístup | Tichá lokalita v slepej ulici
Ponúkame na predaj moderný, jednopodlažný a bezbariérový rodinný dom s úžitkovou plochou 98 m² + terasa 24 m², nachádzajúci sa na ideálnom pozemku o výmere 392 m² v obci Ivanka pri Nitre, len 10 minút ...
259 900 €
Nitra
951 12
951 12
1810 x
Označiť zlý inzerát Chybnú kategóriu Ohodnotiť užívateľa Zmazať/Upraviť/Topovať
Starší 3i RD s pozemkom Ivanka pri NR - [17.10. 2025]Príležitosť, ktorá sa neobjavuje každý deň – priestranný pozemok na hlavnom ťahu Nitra – Nové Zámky!
Predstavujeme vám pozemok o výmere 1 885 m² v obci Ivanka pri Nitre, ktorý ponúka ideálnu kombináciu strategickej polohy, veľkorysej rozlohy a širokých možností využitia.
Na pozemku sa nachádza ...
Dohodou
Nitra
951 12
951 12
803 x
Označiť zlý inzerát Chybnú kategóriu Ohodnotiť užívateľa Zmazať/Upraviť/Topovať
Rodinný dom na predaj + vizualizácia - [16.10. 2025]Ponúkame Vám na predaj dvojpodlažný 4 - izbový rodinný dom, ktorý je súčasťou dvojdomu v obci Ivanka pri Nitre, okres Nitra. RD sa nachádza na slnečnom a oplotenom pozemku s rozlohou 1195 m2.
DISPOZÍCIA:
Prízemie: vstupná malá chodbička, dlhá chodba, kuchyňa, špajza, jedáleň, obývacia izba s výs ...
176 000 €
Nitra
951 12
951 12
721 x
Označiť zlý inzerát Chybnú kategóriu Ohodnotiť užívateľa Zmazať/Upraviť/Topovať
Rodinný dom s garážou Ivanka pri Nitre ZĽAVA - [15.10. 2025]Na predaj: Rodinný dom s garážou a nádhernou záhradou v Ivanke pri Nitre
Ponúkame na predaj rodinný dom s garážou a krásnou záhradou v obci Ivanka pri Nitre, okres Nitra. Dom sa nachádza v tichej a príjemnej rezidenčnej štvrti s rýchlou dostupnosťou do Nitry (cca 10 min. autom), v zastavanom územ ...
284 000 €
Nitra
951 12
951 12
775 x
Označiť zlý inzerát Chybnú kategóriu Ohodnotiť užívateľa Zmazať/Upraviť/Topovať