Predaj: 4-izb. rozostavaná novostavba-bungalov, obec Vinodol
- [19.11. 2025]Zmazať/ Upraviť/ Topovať






























Exkluzívne iba u nás!
Realitná kancelária RE/MAX, Vám ponúka na predaj 4-izbový rozostavaný bungalov s podlahovou plochou vrátane terasy 129,13 m2.
Tento moderný bungalov je situovaný v tichej a kľudnej ulici v obci Vinodol, ktorá sa nachádza iba 18 km od okresného mesta Nitra.
Pozemok má rozlohu 1100 m2 s rozmerom 14 x 80 metrov, čo poskytuje dostatok miesta pre rôzne využitia ako prístrešok na autá, garáž, a zároveň peknú predzáhradku. Za domom je dostatok miesta na stavbu bazénu, ale aj úžitkovú a okrasnú výsadbu. Na pozemku sa nachádza kopaná studňa s hĺbkou 8m. IS: elektrická prípojka je na pozemku, prípojka vody sa nachádza pred pozemkom, kanalizácia v obci nie je.
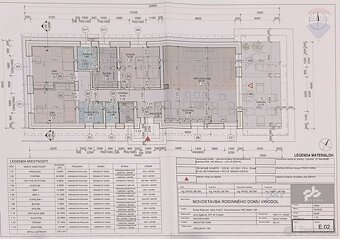
DISPOZÍCIA DOMU:
celková zastavaná plocha domu 182 m2
- predsieň: 3,24 m2
- chodba: 20,46 m2
- WC s kotolňou: 4,85 m2
- kúpeľňa: 4,08 m2
- izba: 12.37 m2
- izba: 13,10 m2
- kúpeľňa v spálni rodičov: 3,69 m2
- šatník v spálni rodičov: 7,08 m2
- spálňa: 14,06 m2
- obývacia izba: 25,74 m2
- kuchyňa: 20,46 m2
- terasa: 27,70 m2
- zádverie: 2,97 m2
- SPOLU: 129,13 m2
- vonkajšie rozmery domu: šírka 8 m, dĺžka 22,8 m.
Stavba je v štádiu rozostavanosti. Zhotovené sú obvodové a nosné múry z pórobetónových tvárnic s hrúbkou 30 cm.
Obývacia izba a kuchyňa tvorí otvorený priestor s výstupom na prestrešenú terasu, ktorá ponúka krásny výhľad do záhrady.
Súčasťou spálne je menšia kúpeľňa a šatník pre pohodlné uskladnenie vecí.
LOKALITA A OKOLIE: Dom sa nachádza v zastavanej časti obce Vinodol, ktorá je dobre vybavená. V obci nájdete základnú školu, materskú školu, poštu, potraviny Jednota, obecný úrad a ďalšiu občiansku vybavenosť. Pozdĺž obce tečie rieka Nitra s vybudovanou cyklotrasou.
Táto nehnuteľnosť je ideálna pre tých, ktorí hľadajú pokojné a príjemné bývanie v blízkosti okresného mesta Nitra. Dom je v súčasnosti v štádiu výstavby, čo umožňuje budúcim majiteľom prispôsobiť si interiér podľa vlastných predstáv.
Uvedená cena je vrátane provízie realitnej kancelárie RE/MAX, kompletného právneho servisu, autorizovaných zmlúv a poplatkov spojených s prevodom vlastníckych práv.
Realitná kancelária RE/MAX, Vám ponúka na predaj 4-izbový rozostavaný bungalov s podlahovou plochou vrátane terasy 129,13 m2.
Tento moderný bungalov je situovaný v tichej a kľudnej ulici v obci Vinodol, ktorá sa nachádza iba 18 km od okresného mesta Nitra.
Pozemok má rozlohu 1100 m2 s rozmerom 14 x 80 metrov, čo poskytuje dostatok miesta pre rôzne využitia ako prístrešok na autá, garáž, a zároveň peknú predzáhradku. Za domom je dostatok miesta na stavbu bazénu, ale aj úžitkovú a okrasnú výsadbu. Na pozemku sa nachádza kopaná studňa s hĺbkou 8m. IS: elektrická prípojka je na pozemku, prípojka vody sa nachádza pred pozemkom, kanalizácia v obci nie je.
DISPOZÍCIA DOMU:
celková zastavaná plocha domu 182 m2
- predsieň: 3,24 m2
- chodba: 20,46 m2
- WC s kotolňou: 4,85 m2
- kúpeľňa: 4,08 m2
- izba: 12.37 m2
- izba: 13,10 m2
- kúpeľňa v spálni rodičov: 3,69 m2
- šatník v spálni rodičov: 7,08 m2
- spálňa: 14,06 m2
- obývacia izba: 25,74 m2
- kuchyňa: 20,46 m2
- terasa: 27,70 m2
- zádverie: 2,97 m2
- SPOLU: 129,13 m2
- vonkajšie rozmery domu: šírka 8 m, dĺžka 22,8 m.
Stavba je v štádiu rozostavanosti. Zhotovené sú obvodové a nosné múry z pórobetónových tvárnic s hrúbkou 30 cm.
Obývacia izba a kuchyňa tvorí otvorený priestor s výstupom na prestrešenú terasu, ktorá ponúka krásny výhľad do záhrady.
Súčasťou spálne je menšia kúpeľňa a šatník pre pohodlné uskladnenie vecí.
LOKALITA A OKOLIE: Dom sa nachádza v zastavanej časti obce Vinodol, ktorá je dobre vybavená. V obci nájdete základnú školu, materskú školu, poštu, potraviny Jednota, obecný úrad a ďalšiu občiansku vybavenosť. Pozdĺž obce tečie rieka Nitra s vybudovanou cyklotrasou.
Táto nehnuteľnosť je ideálna pre tých, ktorí hľadajú pokojné a príjemné bývanie v blízkosti okresného mesta Nitra. Dom je v súčasnosti v štádiu výstavby, čo umožňuje budúcim majiteľom prispôsobiť si interiér podľa vlastných predstáv.
Uvedená cena je vrátane provízie realitnej kancelárie RE/MAX, kompletného právneho servisu, autorizovaných zmlúv a poplatkov spojených s prevodom vlastníckych práv.
|
| |||||||||||||||||||||||||||||||
Kontaktovať inzerenta e-mailom
Kontaktovať e-mailom môže iba overený užívateľ.
Overenie je zadarmo.
Vaše telefónne číslo *
Kontaktovať e-mailom môže iba overený užívateľ.
Overenie je zadarmo.
Vaše telefónne číslo *









