Predaj 4 izbových RD Veľký Biel,Senec
- [18.11. 2025]Zmazať/ Upraviť/ Topovať














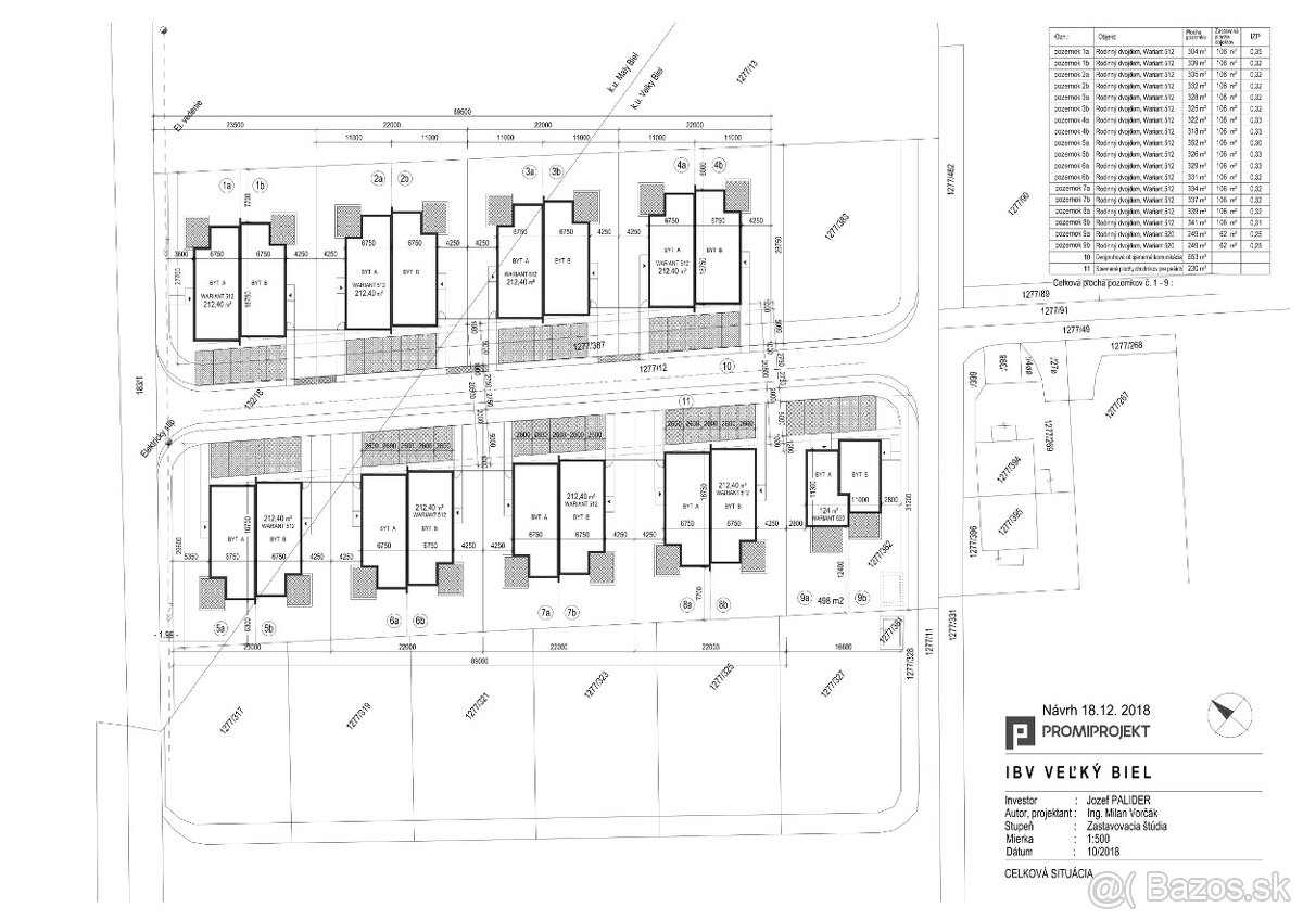
Ponúkame na predaj projekt Agátová ulica , krásne novostavby rodinných domov-dvojdomov,ktoré sú vedené ako samostatne stojace domy s vlastným súpisným číslom v obci Veľký Biel-k.ú. Malý Biel.
• Rodinné domy s obytným podkrovím 4+2
-4 izbový rodinný dom má úžitkovú plochu 88,95 m2,2 x kúpelňa,3x wc,obytné podkrovie so strešnými oknami , kde je vstupný priestor a dve samostatné izby o výmere 60 m2.Celkový potenciál domu má 6 izieb ako gvojgeneračný dom s plochou 148 m2.V cene je podlahové kúrenie,tepelné čerpadlo,rekuperácia,vonkajšie žalúzie,terénna úprava,oplotenie. Za domom je terasa,pozemky sú od 250 m2 do 352 m2 podľa polohy domu.
Cena domov je 288 000 eur v stave holodomu.
čerpadlo,rekuperácia,vonkajšie žalúzie,terénna úprava,oplotenie,vonkajšie žalúzie .
Obec Veľký Biel je v blízkosti hlavného mesta s výbornou dostupnosťou diaľnice,cca 15 minút.Táto lokalita v rámci starej časti obce ponúka kúpanie a relax pri jazerách .Bližie info v RK.Kontakt 0944/66 25 24 , 0910/170 070
• Rodinné domy s obytným podkrovím 4+2
-4 izbový rodinný dom má úžitkovú plochu 88,95 m2,2 x kúpelňa,3x wc,obytné podkrovie so strešnými oknami , kde je vstupný priestor a dve samostatné izby o výmere 60 m2.Celkový potenciál domu má 6 izieb ako gvojgeneračný dom s plochou 148 m2.V cene je podlahové kúrenie,tepelné čerpadlo,rekuperácia,vonkajšie žalúzie,terénna úprava,oplotenie. Za domom je terasa,pozemky sú od 250 m2 do 352 m2 podľa polohy domu.
Cena domov je 288 000 eur v stave holodomu.
čerpadlo,rekuperácia,vonkajšie žalúzie,terénna úprava,oplotenie,vonkajšie žalúzie .
Obec Veľký Biel je v blízkosti hlavného mesta s výbornou dostupnosťou diaľnice,cca 15 minút.Táto lokalita v rámci starej časti obce ponúka kúpanie a relax pri jazerách .Bližie info v RK.Kontakt 0944/66 25 24 , 0910/170 070
|
| |||||||||||||||||||||||||||||||
Kontaktovať inzerenta e-mailom
Kontaktovať e-mailom môže iba overený užívateľ.
Overenie je zadarmo.
Vaše telefónne číslo *
Kontaktovať e-mailom môže iba overený užívateľ.
Overenie je zadarmo.
Vaše telefónne číslo *