PRIPRAVUJEME - priestranný 2-izbový byt s balkónom | 60 m² |
- [18.11. 2025]Zmazať/ Upraviť/ Topovať

EXKLUZÍVNA PONUKA
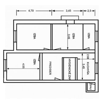
Priestranný 2-izbový byt s balkónom a špajzou | 60 m² | 4. poschodie
BYT
Ponúkame na predaj dobre dispozične riešený 2-izbový byt o výmere 60 m², nachádzajúci sa na 4. poschodí. Byt prešiel staršou čiastočnou rekonštrukciou – menené boli podlahy, plastové okná aj zasklenie balkóna.
Jadro je pôvodné (umakart), no byt je obývateľný aj v aktuálnom stave, kým sa pristúpi ku kompletnej rekonštrukcii podľa vlastných predstáv.
K bytu prislúcha latková pivnica v suteréne o výmere 1,26 m².
________________________________________
DISPOZÍCIA
• Po vstupe do bytu sa po pravej strane nachádza hygienická časť – kúpeľňa (s možnosťou zväčšenia) a samostatné WC.
• Na ľavej strane je priestor vhodný na vstavané alebo klasické skrine.
• Z chodby sa vstupuje do priestrannej obývačky so šírkou takmer 6 metrov.
• Kuchyňa so špajzou a preskleným balkónom je samostatná.
• Spálňa je prístupná z kuchyne aj z obývačky.
Vďaka veľkorysým rozmerom obývačky je možné vymurovať priečku a vytvoriť priestor na šatník – obývačka tak nemusí zostať priechodná. Dispozícia ponúka výborný potenciál na moderné a praktické preusporiadanie a tiež vytvoriť kuchyňu s obývačkou a zväčšiť kúpeľňu.
Taktiež Vám vieme zabezpečiť aj rekonštrukčné práce, nakoľko sa rekonštrukciám venujeme viac ako 10 rokov.
_________________
VYBAVENIE
Byt je zariadený starším nábytkom a v prípade investičnej kúpy je možné ho prenajať len s malými úpravami bez nutnosti kompletnej rekonštrukcie.
Po dohode vieme byt kompletne vypratať.
__________________
OBĽÚBENÁ LOKALITA
Byt sa nachádza v jednej z najdynamickejšie sa rozvíjajúcich lokalít, kde nájdete kompletnú občiansku vybavenosť: nové polyfunkčné objekty, kaviarne, obchody, školy, škôlky, univerzitu, zdravotné stredisko, nové pracovné príležitosti .......pričom je v okolí aj množstvo zelene.
V pešej dostupnosti je:
• promenádu Vodného diela s reštauráciami a športovými aktivitami
• Lesopark – zelený únik pre relax, beh či prechádzky
• univerzitu, školy, škôlky, zdravotné stredisko
• výborné dopravné napojenie na rýchlostné cesty aj MHD
• významný benefit je takmer bezproblémové parkovanie, čo je v dnešnej dobe problém
____________________
BYTOVÝ DOM
• zateplený
• nový výťah
• vymenené stúpačky
• správca Bytterm
• mesačné náklady: cca 180 € / 1 osoba
__________
ORIENTÁCIA
• SZ – kuchyňa a jedna izba
• JV – druhá izba
_____________________________________
Tento byt je ideálny pre jednotlivca alebo pár, prípadne skvelá investičná príležitosť – ide o najvyhľadávanejšiu veľkosť bytu na prenájom.
S prenájmom nehnuteľností máme tiež dlhoročné (viac ako 10 rokov) skúsenosti, takže vieme zabezpečiť prenájom od prípravy bytu na prenájom, sprostredkovanie prenájmu alebo kompletný nájomný servis, pri ktorom zabezpečujeme, aby Vaša nehnuteľnosť zarábala bez potreby Vašej osobnej účasti :)
_____________________________
V
Priestranný 2-izbový byt s balkónom a špajzou | 60 m² | 4. poschodie
BYT
Ponúkame na predaj dobre dispozične riešený 2-izbový byt o výmere 60 m², nachádzajúci sa na 4. poschodí. Byt prešiel staršou čiastočnou rekonštrukciou – menené boli podlahy, plastové okná aj zasklenie balkóna.
Jadro je pôvodné (umakart), no byt je obývateľný aj v aktuálnom stave, kým sa pristúpi ku kompletnej rekonštrukcii podľa vlastných predstáv.
K bytu prislúcha latková pivnica v suteréne o výmere 1,26 m².
________________________________________
DISPOZÍCIA
• Po vstupe do bytu sa po pravej strane nachádza hygienická časť – kúpeľňa (s možnosťou zväčšenia) a samostatné WC.
• Na ľavej strane je priestor vhodný na vstavané alebo klasické skrine.
• Z chodby sa vstupuje do priestrannej obývačky so šírkou takmer 6 metrov.
• Kuchyňa so špajzou a preskleným balkónom je samostatná.
• Spálňa je prístupná z kuchyne aj z obývačky.
Vďaka veľkorysým rozmerom obývačky je možné vymurovať priečku a vytvoriť priestor na šatník – obývačka tak nemusí zostať priechodná. Dispozícia ponúka výborný potenciál na moderné a praktické preusporiadanie a tiež vytvoriť kuchyňu s obývačkou a zväčšiť kúpeľňu.
Taktiež Vám vieme zabezpečiť aj rekonštrukčné práce, nakoľko sa rekonštrukciám venujeme viac ako 10 rokov.
_________________
VYBAVENIE
Byt je zariadený starším nábytkom a v prípade investičnej kúpy je možné ho prenajať len s malými úpravami bez nutnosti kompletnej rekonštrukcie.
Po dohode vieme byt kompletne vypratať.
__________________
OBĽÚBENÁ LOKALITA
Byt sa nachádza v jednej z najdynamickejšie sa rozvíjajúcich lokalít, kde nájdete kompletnú občiansku vybavenosť: nové polyfunkčné objekty, kaviarne, obchody, školy, škôlky, univerzitu, zdravotné stredisko, nové pracovné príležitosti .......pričom je v okolí aj množstvo zelene.
V pešej dostupnosti je:
• promenádu Vodného diela s reštauráciami a športovými aktivitami
• Lesopark – zelený únik pre relax, beh či prechádzky
• univerzitu, školy, škôlky, zdravotné stredisko
• výborné dopravné napojenie na rýchlostné cesty aj MHD
• významný benefit je takmer bezproblémové parkovanie, čo je v dnešnej dobe problém
____________________
BYTOVÝ DOM
• zateplený
• nový výťah
• vymenené stúpačky
• správca Bytterm
• mesačné náklady: cca 180 € / 1 osoba
__________
ORIENTÁCIA
• SZ – kuchyňa a jedna izba
• JV – druhá izba
_____________________________________
Tento byt je ideálny pre jednotlivca alebo pár, prípadne skvelá investičná príležitosť – ide o najvyhľadávanejšiu veľkosť bytu na prenájom.
S prenájmom nehnuteľností máme tiež dlhoročné (viac ako 10 rokov) skúsenosti, takže vieme zabezpečiť prenájom od prípravy bytu na prenájom, sprostredkovanie prenájmu alebo kompletný nájomný servis, pri ktorom zabezpečujeme, aby Vaša nehnuteľnosť zarábala bez potreby Vašej osobnej účasti :)
_____________________________
V
|
| |||||||||||||||||||||||||||||||
Kontaktovať inzerenta e-mailom
Kontaktovať e-mailom môže iba overený užívateľ.
Overenie je zadarmo.
Vaše telefónne číslo *
Kontaktovať e-mailom môže iba overený užívateľ.
Overenie je zadarmo.
Vaše telefónne číslo *
Podobné inzeráty
4 izbový byt s balkónom, /81m2/, Žilina - Vlčince III - [20.11. 2025]Reality Alpia Vám ponúka na predaj 4 izbový byt s balkónom, /81m2/, Žilina - Vlčince III. Dispozične pozostáva zo vstupnej chodby, štyroch samostatných izieb, kuchyne, špajze, kúpeľne a WC. Byt bol čiastočne zrekonštruovaný - murované jadro a elektrické rozvody - jadro, kuchyňa, chodba. Výhodami sú ...
Dohodou
Žilina
010 08
010 08
16 x
Označiť zlý inzerát Chybnú kategóriu Ohodnotiť užívateľa Zmazať/Upraviť/Topovať
3+kk po veľmi peknej praktickej rekonštrukcii | 68 m2 | šatn - [18.11. 2025]V časti sídliska Vlčince, kde je výborná vybavenosť a dostatok zelených plôch a ihrísk pre malé deti a zároveň športového vyžitia pre mladé páry teraz pripravujeme veľký dvojizbový byt ktorého rekonštrukciou vznikol 3i s kuchynským kútom v obývacej izbe.
Premyslenou rekonštrukciou, ktorú riadil ...
199 700 €
Žilina
010 08
010 08
83 x
Označiť zlý inzerát Chybnú kategóriu Ohodnotiť užívateľa Zmazať/Upraviť/Topovať
menší 2KK Vlčince | rekonštrukcia | lodžia | Berlínska 8 - [18.11. 2025]EXKLUZÍVNA PONUKA
Šikovný 2KK byt s lodžiou| 36 m² | 5. poschodie
BYT
Ponúkame na predaj dobre dispozične riešený menší 2KK o výmere 36 m² + veľká lodžia (1,2*3,4=4,14m2), nachádzajúci sa na ideálnom 5. poschodí, kde netienia stromy a z okna je krásny výhľad.
Byt prešiel kompletnou rekonštrukc ...
147 000 €
Žilina
010 08
010 08
155 x
Označiť zlý inzerát Chybnú kategóriu Ohodnotiť užívateľa Zmazať/Upraviť/Topovať
Garsónka na predaj, Žilina - Vlčince - [16.11. 2025]Predám komplet zariadenu garsónku vo výbornej tichej lokalite na Usteckej ul. na sídlisku Vlčince v Žiline, 21 M2, posch. 6/7, po rekonštrukcii jadra (sadrokartón). Vhodná na investíciu alebo na vlastné bývanie, nízke mesačné náklady cca 120 eur/mes. na 1 os., voľná od 1.1.2026. Nie som RK a prosím ...
115 000 €
Žilina
010 08
010 08
189 x
Označiť zlý inzerát Chybnú kategóriu Ohodnotiť užívateľa Zmazať/Upraviť/Topovať
REZERVOVANÝ byt 1+1, Žilina - Vlčince 2, R2 SK. - [14.11. 2025]Lokalita : Žilina - Vlčince 2, Ľubľanská ul.
Sekcia : predaj
Druh : byt
Počet izieb : 1+1
Plocha : 36 m² + lodžia
Lodžia: áno
Poschodie : 9/10
Výťah : áno
Pivnica : áno, cca 1 m²
Stav : čiastočná rekonštrukcia z 2022
Materiál: panel
Popis : Ponúkame na predaj 1+1 byt v Žiline na sídlisku ...
131 999 €
Žilina
010 08
010 08
168 x
Označiť zlý inzerát Chybnú kategóriu Ohodnotiť užívateľa Zmazať/Upraviť/Topovať
REZERVÁCIA PRIPRAVUJEME NA PREDAJ, 1 izbový byt, Žilina - - [14.11. 2025]Už čoskoro prinesieme do ponuky 1-izbový byt na predaj s výmerou 36,7 m² v obľúbenej a vyhľadávanej lokalite Vlčince v Žiline.
Byt sa nachádza v pôvodnom stave, čo poskytuje výbornú príležitosť na rekonštrukciu podľa vlastných predstáv. Vďaka svojej dispozícii a lokalite je ideálny ako štartovací ...
Dohodou
Žilina
010 08
010 08
94 x
Označiť zlý inzerát Chybnú kategóriu Ohodnotiť užívateľa Zmazať/Upraviť/Topovať
2 izbový byt -Tatranská, ZA - TOP - [19.11. 2025]Predstavujeme vám štýlový 2-izbový byt s rozlohou 62 m², nachádzajúci sa v obľúbenej mestskej časti Vlčince III na ulici Tatranská. Tento byt spája komfort mestského bývania s dotykom prírody – len pár krokov od lesoparku Chrasť, ktorý je ideálnym miestom na oddych, šport či prechádzky.
Pre lepši ...
173 000 €
Žilina
010 08
010 08
964 x
Označiť zlý inzerát Chybnú kategóriu Ohodnotiť užívateľa Zmazať/Upraviť/Topovať
Predáme zariadený 2 izb. byt, Žilina - Vlčince, EUROPALACE - [1.11. 2025]Lokalita : Žilina – Vlčince, Vysokoškolákov / Obchodná ulica
Sekcia : predaj
Druh : byt
Počet izieb : 2+kk
Celková plocha : 69,39 m²
Podlahová plocha : 64,49 m²
Terasa : áno, 4,90 m²
Poschodie : 10/22
Výťah : áno, 2x
Pivnica : áno
Stav : novostavba z r. 2010
Materiál : skelet + tehla
Ori ...
235 000 €
Žilina
010 08
010 08
773 x
Označiť zlý inzerát Chybnú kategóriu Ohodnotiť užívateľa Zmazať/Upraviť/Topovať
REZERVOVANÉ- Na predaj 3-izbový byt Žilina-Vlčince - TOP - [8.11. 2025]REZERVOVANÉ- Ponúkame na predaj 3- izbový byt v pôvodnom stave, ktorý sa nachádza na 2. poschodí zo siedmych zatepleného bytového domu v Žiline (sídlisko Vlčince II.) na ulici Pittsburgská. Výmera bytu spolu s balkónom je 73 m². Byt pozostáva z kuchyne, troch obývacích izieb, chodby, kúpeľne, samost ...
176 000 €
Žilina
010 08
010 08
1199 x
Označiť zlý inzerát Chybnú kategóriu Ohodnotiť užívateľa Zmazať/Upraviť/Topovať
Predaj - 4-izb. - Veľkorysý 4 izbový byt s atmosférou… - [27.10. 2025]Veľkorysý 4 izbový byt s atmosférou
Popis: Exkluzívne Vám ponúkame na predaj 4 izbový byt na dobrej adrese,na 2n.p./pod bytom je ešte byt na vyvýšenom prízemí.
Byt prešiel čiastočnou rekonštrukciou-má nové plastové okná,bezpečnostné dvere zn.Adlo, v kuchyni,v kupeľni a v chodbe nové elektr. rozvo ...
195 700 €
Žilina
010 08
010 08
576 x
Označiť zlý inzerát Chybnú kategóriu Ohodnotiť užívateľa Zmazať/Upraviť/Topovať