Trojizbový mezonetový byt Banka pri Piešťanoch
- [16.11. 2025]Zmazať/ Upraviť/ Topovať






























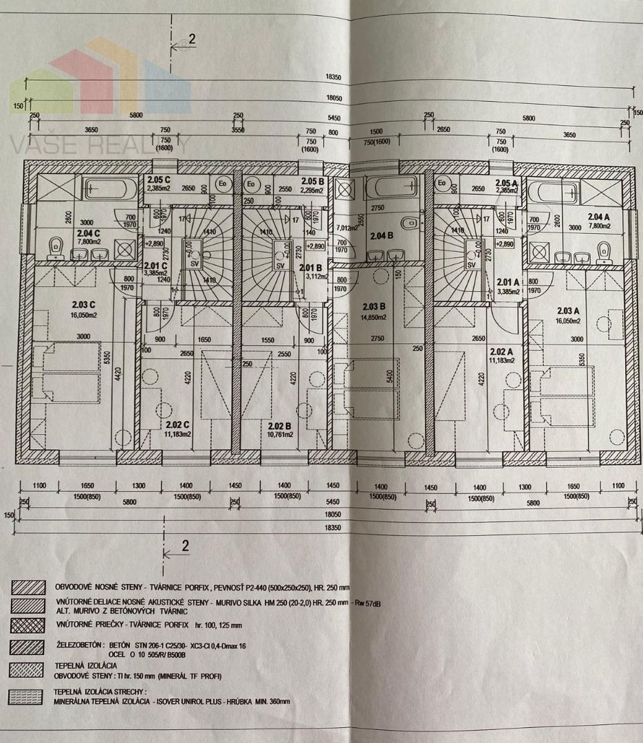
189208 -Ponúkam na predaj 3-izbový mezonetový byt v stave štandard, nachádzajúci sa v obci Banka pri Piešťanoch. Byt má ÚP 70m2+balkón cca 10m2 a je pripojený na kanalizáciu, vodovod, elektrinu. Kolaudácia novostavby bytu prebehla 08/2024. Byt je nízkonákladový, vykurovanie-elektrické podlahové.Dispozícia:
- prízemie - prestrešené zádverie, vstupná chodba, obývačka s kuchyňou, vstup na balkón, toaleta.
- poschodie - spálňa, detská izba, kúpeľňa ( predpríprava na sprchu a aj vaňu). Ku každému bytu je jedno parkovacie miesto.
Cena nehnuteľnosti (štandard): 160.000,-€ s DPH.
Viac informácií ohľadne tejto nehnuteľnosti Vám rád poskytnem na telefónnom čísle 0903 641 632 alebo na mail adrese filkas@vasereality.sk, kde si môžete dohodnúť aj fyzickú obhliadku nehnuteľnosti.
Pri kontaktovaní emailom, Vás prosíme uvádzať na Vás i telefonický kontakt.
V prípade záujmu Vám zabezpečíme BEZPLATNÝ kompletný hypotekárny servis. K dispozícii Vám bude náš hypotekárny špecialista, ktorý Vám dojedná najvýhodnejšie podmienky. Energetická certifikácia podľa zákona č. 555/2005 Z.z. o energetickej hospodárnosti budov bude vykonaná v zmysle zákona pri predaji nehnuteľnosti. Podľa súčasného konštrukčného vyhotovenia a vybavenia domu je možné predpokladať zatriedenie do energetickej triedy "B".
- kompletný servis spojený s ponukou, predajom, prevodom nehnuteľnosti,
- uhradenie správneho poplatku za návrh na vklad kúpnej zmluvy do katastra nehnuteľností
- uhradenie poplatku za osvedčenie podpisov na kúpnej zmluve
- úver zabezpečený nehnuteľnosťou).
Na skoré stretnutie s Vami sa teší náš tím - VAŠE REALITY s.r.o. - člen Realitnej Únie Slovenskej republiky.
- prízemie - prestrešené zádverie, vstupná chodba, obývačka s kuchyňou, vstup na balkón, toaleta.
- poschodie - spálňa, detská izba, kúpeľňa ( predpríprava na sprchu a aj vaňu). Ku každému bytu je jedno parkovacie miesto.
Cena nehnuteľnosti (štandard): 160.000,-€ s DPH.
Viac informácií ohľadne tejto nehnuteľnosti Vám rád poskytnem na telefónnom čísle 0903 641 632 alebo na mail adrese filkas@vasereality.sk, kde si môžete dohodnúť aj fyzickú obhliadku nehnuteľnosti.
Pri kontaktovaní emailom, Vás prosíme uvádzať na Vás i telefonický kontakt.
V prípade záujmu Vám zabezpečíme BEZPLATNÝ kompletný hypotekárny servis. K dispozícii Vám bude náš hypotekárny špecialista, ktorý Vám dojedná najvýhodnejšie podmienky. Energetická certifikácia podľa zákona č. 555/2005 Z.z. o energetickej hospodárnosti budov bude vykonaná v zmysle zákona pri predaji nehnuteľnosti. Podľa súčasného konštrukčného vyhotovenia a vybavenia domu je možné predpokladať zatriedenie do energetickej triedy "B".
- kompletný servis spojený s ponukou, predajom, prevodom nehnuteľnosti,
- uhradenie správneho poplatku za návrh na vklad kúpnej zmluvy do katastra nehnuteľností
- uhradenie poplatku za osvedčenie podpisov na kúpnej zmluve
- úver zabezpečený nehnuteľnosťou).
Na skoré stretnutie s Vami sa teší náš tím - VAŠE REALITY s.r.o. - člen Realitnej Únie Slovenskej republiky.
|
| |||||||||||||||||||||||||||||||
Kontaktovať inzerenta e-mailom
Kontaktovať e-mailom môže iba overený užívateľ.
Overenie je zadarmo.
Vaše telefónne číslo *
Kontaktovať e-mailom môže iba overený užívateľ.
Overenie je zadarmo.
Vaše telefónne číslo *
Podobné inzeráty
Priestranný 3-izbový byt v centre Piešťan - TOP - [18.11. 2025]RE/MAX Vám ponúka na predaj priestranný 3-izbový byt v pôvodnom stave, v úplnom centre mesta Piešťany, pri Gymnáziu a Mestskom úrade.
Jedinečná kombinácia:
- Poloha priamo v centre kúpeľného mesta
- Pôvodný stav, vyprataný a pripravený na rekonštrukciu presne takú, ako ju chcete Vy
- Prvé pos ...
165 000 €
Piešťany
921 01
921 01
17 x
Označiť zlý inzerát Chybnú kategóriu Ohodnotiť užívateľa Zmazať/Upraviť/Topovať
NA PREDAJ 4 IZBOVÝ BYT s LOGGIOU 78 m2 PIEŠŤANY - VOĽNÝ - [17.11. 2025]REALITY PROGRES, s.r.o. PONÚKA ČIASTOČNE PREROBENÝ 4 IZBOVÝ BYT s LOGGIOU 78 m2 v Piešťanoch sídlisko A. Hlinku
Ponúkame na predaj 4 izbový byt na 2.p./3.p. v zateplenom bytovom dome, nová strecha, vchodové dvere.
Byt je po čiastočnej rekonštrukcii (plastové okná a kúpeľňa s WC), podlahy dlažb ...
152 900 €
Piešťany
921 01
921 01
29 x
Označiť zlý inzerát Chybnú kategóriu Ohodnotiť užívateľa Zmazať/Upraviť/Topovať
Na predaj 1-izbový byt s balkónom, Piešťany, Juh - [17.11. 2025]Typ: 1-izbový byt
Ulica: .
Obec: Piešťany
123129 - Na predaj 1-izbový byt v dobrej lokalite - sídlisko Juh v Piešťanoch. Výmera bytu je 33m2, nachádza sa na 2. poschodí s výťahom. Pozostáva zo vstupnej chodby, kuchyne, špajze, izby a kúpelne s WC. Z izby je vstup na balkón. Byt má plastové okná ...
99 000 €
Piešťany
921 01
921 01
58 x
Označiť zlý inzerát Chybnú kategóriu Ohodnotiť užívateľa Zmazať/Upraviť/Topovať
Iba u nás zľava 2-izb. byt v štandarde odovzdaný do Vianoc - [17.11. 2025]Len do konca novembra máme pre Vás v ponuke 2 posledné 2-izbové byty vo výbave ŠTANDARD za predpredajových 125.490 € v rezidenčnom projekte SELANKY v Pobedime. Život v harmónii s prírodou a výbornou dostupnosťou. Len 4 km od D1 (Horná Streda) na Vás čaká pohodlné bývanie spojené s mod ...
125 490 €
Piešťany
921 01
921 01
34 x
Označiť zlý inzerát Chybnú kategóriu Ohodnotiť užívateľa Zmazať/Upraviť/Topovať
3 - izbový mezonet v bytovom dome v obci Banka, Piešťany - [17.11. 2025]Typ: 3-izbový byt
Obec: Banka
KOLLÁR REALITY s.r.o. vám ponúka: Novostavbu - 3 izbový mezonet v obci Banka, Piešťany
Rozloha:
- rozloha bytu - 70 m2
Dispozícia bytu:
- vstupná chodba, samostatné WC, kuchyňa s obývacou miestnosťou a výstupom na terasu, 2 samostatné izby, technická miestnosť, kú ...
160 000 €
Piešťany
921 01
921 01
30 x
Označiť zlý inzerát Chybnú kategóriu Ohodnotiť užívateľa Zmazať/Upraviť/Topovať
Dohodou
Piešťany
921 01
921 01
41 x
Označiť zlý inzerát Chybnú kategóriu Ohodnotiť užívateľa Zmazať/Upraviť/Topovať
NA PREDAJ – 2-izbový byt 60 m2 v novostavbe RiverResort, Ban - [16.11. 2025]190522 - Ponúkame na predaj atraktívny 2-izbový byt o výmere 60 m2 na 1. posch. zatepleného tehlového bytového domu v novom rezidenčnom projekte RiverResort Piešťany/Banka, situovanom v bezprostrednej blízkosti mŕtveho ramena Váhu v obci Banka, len pár minút chôdze od svetoznámych Kúpeľov Piešťany a ...
179 580 €
Piešťany
921 01
921 01
39 x
Označiť zlý inzerát Chybnú kategóriu Ohodnotiť užívateľa Zmazať/Upraviť/Topovať
VIDEO NOVOSTAVBA 4-IZB BYT "E" 106,45 m² + TERASA 23,26 - [16.11. 2025]videoobhliadka: https://youtu.be/DFDUqjtz8GA
179811 - Realitná kancelária VAŠE REALITY spúšťa predaj nových bytov v novovznikajúcej rezidenčnej štvrti SPA RESORT v tesnej blízkosti termálnych kúpeľov Piešťany. Tento projekt pozostáva zo 6-tich bytových domov s tromi nadzemnými podlažiami. Každý byt ...
250 480 €
Piešťany
921 01
921 01
31 x
Označiť zlý inzerát Chybnú kategóriu Ohodnotiť užívateľa Zmazať/Upraviť/Topovať
Predaj 2 IZB BYT "D" 58,64 m² + BALKÓN 6,26 m², novostav - [16.11. 2025]179809 - Realitná kancelária VAŠE REALITY spúšťa predaj nových bytov v novovznikajúcej rezidenčnej štvrti SPA RESORT v tesnej blízkosti termálnych kúpeľov Piešťany. Tento projekt pozostáva zo 6-tich bytových domov s tromi nadzemnými podlažiami. Každý bytový dom bude obsahovať 5 bytových jednotiek. N ...
140 736 €
Piešťany
921 01
921 01
30 x
Označiť zlý inzerát Chybnú kategóriu Ohodnotiť užívateľa Zmazať/Upraviť/Topovať
PREDAJ 3 IZB BYT 69,29 m² + balkón 4,89 m² , novostavba hol - [16.11. 2025]189820 - V blízkosti Slovenských liečebných kúpeľov Piešťany v obci Banka na Podhorskej ulici ponúkame na predaj 3 -izbový byt umiestnený na 1. posch. v novostavbe 3-podlažného, zatepleného, tehlového bytového domu, ktorého kolaudácia je naplánovaná v decembri 2024. Bytový komplec PODHORSKÁ pozostáv ...
170 900 €
Piešťany
921 01
921 01
31 x
Označiť zlý inzerát Chybnú kategóriu Ohodnotiť užívateľa Zmazať/Upraviť/Topovať










