Predaj 2 IZB BYT "D" 58,64 m² + BALKÓN 6,26 m², novostav
- [16.11. 2025]Zmazať/ Upraviť/ Topovať
























179809 - Realitná kancelária VAŠE REALITY spúšťa predaj nových bytov v novovznikajúcej rezidenčnej štvrti SPA RESORT v tesnej blízkosti termálnych kúpeľov Piešťany. Tento projekt pozostáva zo 6-tich bytových domov s tromi nadzemnými podlažiami. Každý bytový dom bude obsahovať 5 bytových jednotiek. Na prízemí / I.NP sú dva 2-izbové byty s terasou. Na 1. poschodí / II.NP sú dva 2-izbové byty s balkónom. Na 2. poschodí / III.NP je jeden 4-izbový byt s terasou. Byty sú skolaudované!
BYT D 2-izbový s balkónom, orientácia miestností: Sever, Východ
výmera bytu 58,64 m2 + 6,26 m2 balkón ................. cena: 140 736 € s DPH
Dispozícia bytu: zádverie + chodba 11,55 m2, kúpeľňa s WC 6,48 m2, spálňa 12,64 m2, obývačka + kuchyňa 27,97 m2, balkón 6,26 m2
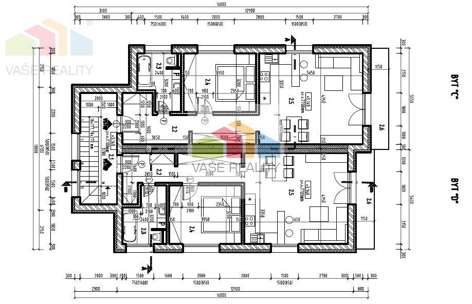
Vo fotodokumentácii nájdete vizualizáciu bytových domov a pôdorysy s kótami jednotlivých bytov a poschodí.
STAVBA
Obvodové múry sú z tvárnic PORFIX hr. 30 cm, priečky z tvárnic hr. 15 cm. Obvodové múry sú zateplené izolačnými doskami PSF hr. 15 cm. Strešná izolácia je zateplená izolačnými doskami PSF hr. 15 cm . Strešná krytina je FATRAFOL. Okná sú plastové trojsklo vo farbe biela. Vstupné dvere do bytov sú protipožiarne. Vnútorné omietky sú vápenocementové. Stropy sú sadrokartónové. Byty sa ponúkajú v stave HOLOBYT ! Podľa konštrukčného vyhotovenia a vybavenia bude bytový dom zatriedený do energetickej triedy "B ".
VYKUROVANIE
Kúrenie - každý byt bude disponovať vlastným elektrickým kotlom umiestneným v kúpeľni.
PARKOVANIE
Ku každému bytu je nutné prikúpiť minimálne 1 vonkajšie parkovacie miesto za bytovým domom v cene 8000 eur s DPH.
DISPOZÍCIE A CENY VŠETKÝCH BYTOV:
PRÍZEMIE / 1.NP
BYT A 2-izbový s terasou, orientácia miestností: Sever, Západ
výmera bytu 60,89 m2 + 16,65 m2 terasa ................. predané
zádverie + chodba 13,80 m2, kúpeľňa s WC 6,48 m2, spálňa 12,64 m2, obývačka + kuchyňa 27,97 m2, terasa 16,65 m2
BYT B 2-izbový s terasou, orientácia miestností: Sever, Východ
výmera bytu 58,64 m2 + 16,65 m2 terasa ............. .... predané
zádverie + chodba 11,55 m2, kúpeľňa s WC 6,48 m2, spálňa 12,64 m2, obývačka + kuchyňa 27,97 m2, terasa 16,65 m2
1.POSCHODIE / 2.NP
BYT C 2-izbový s balkónom, orientácia miestností: Sever, Západ
výmera bytu 60,89 m2 + 6,38 m2 balkón ................. predané
zádverie + chodba 13,80 m2, kúpeľňa s WC 6,48 m2, spálňa 12,64 m2, obývačka + kuchyňa 27,97 m2, balkón 6,38 m2
BYT D 2-izbový s balkónom, orientácia miestností: Sever, Východ
výmera bytu 58,64 m2 + 6,26 m2 balkón ................. cena: 140.736 Euro s DPH
zádverie + chodba 11,55 m2, kúpeľňa s WC 6,48 m2, spálňa 12,64 m2, obývačka + kuchyňa 27,97 m2, balkón 6,26 m2
2.POSCHODIE / 3.NP
BYT E 4-izbový s terasou, orientácia miestn
BYT D 2-izbový s balkónom, orientácia miestností: Sever, Východ
výmera bytu 58,64 m2 + 6,26 m2 balkón ................. cena: 140 736 € s DPH
Dispozícia bytu: zádverie + chodba 11,55 m2, kúpeľňa s WC 6,48 m2, spálňa 12,64 m2, obývačka + kuchyňa 27,97 m2, balkón 6,26 m2
Vo fotodokumentácii nájdete vizualizáciu bytových domov a pôdorysy s kótami jednotlivých bytov a poschodí.
STAVBA
Obvodové múry sú z tvárnic PORFIX hr. 30 cm, priečky z tvárnic hr. 15 cm. Obvodové múry sú zateplené izolačnými doskami PSF hr. 15 cm. Strešná izolácia je zateplená izolačnými doskami PSF hr. 15 cm . Strešná krytina je FATRAFOL. Okná sú plastové trojsklo vo farbe biela. Vstupné dvere do bytov sú protipožiarne. Vnútorné omietky sú vápenocementové. Stropy sú sadrokartónové. Byty sa ponúkajú v stave HOLOBYT ! Podľa konštrukčného vyhotovenia a vybavenia bude bytový dom zatriedený do energetickej triedy "B ".
VYKUROVANIE
Kúrenie - každý byt bude disponovať vlastným elektrickým kotlom umiestneným v kúpeľni.
PARKOVANIE
Ku každému bytu je nutné prikúpiť minimálne 1 vonkajšie parkovacie miesto za bytovým domom v cene 8000 eur s DPH.
DISPOZÍCIE A CENY VŠETKÝCH BYTOV:
PRÍZEMIE / 1.NP
BYT A 2-izbový s terasou, orientácia miestností: Sever, Západ
výmera bytu 60,89 m2 + 16,65 m2 terasa ................. predané
zádverie + chodba 13,80 m2, kúpeľňa s WC 6,48 m2, spálňa 12,64 m2, obývačka + kuchyňa 27,97 m2, terasa 16,65 m2
BYT B 2-izbový s terasou, orientácia miestností: Sever, Východ
výmera bytu 58,64 m2 + 16,65 m2 terasa ............. .... predané
zádverie + chodba 11,55 m2, kúpeľňa s WC 6,48 m2, spálňa 12,64 m2, obývačka + kuchyňa 27,97 m2, terasa 16,65 m2
1.POSCHODIE / 2.NP
BYT C 2-izbový s balkónom, orientácia miestností: Sever, Západ
výmera bytu 60,89 m2 + 6,38 m2 balkón ................. predané
zádverie + chodba 13,80 m2, kúpeľňa s WC 6,48 m2, spálňa 12,64 m2, obývačka + kuchyňa 27,97 m2, balkón 6,38 m2
BYT D 2-izbový s balkónom, orientácia miestností: Sever, Východ
výmera bytu 58,64 m2 + 6,26 m2 balkón ................. cena: 140.736 Euro s DPH
zádverie + chodba 11,55 m2, kúpeľňa s WC 6,48 m2, spálňa 12,64 m2, obývačka + kuchyňa 27,97 m2, balkón 6,26 m2
2.POSCHODIE / 3.NP
BYT E 4-izbový s terasou, orientácia miestn
|
| |||||||||||||||||||||||||||||||
Kontaktovať inzerenta e-mailom
Kontaktovať e-mailom môže iba overený užívateľ.
Overenie je zadarmo.
Vaše telefónne číslo *
Kontaktovať e-mailom môže iba overený užívateľ.
Overenie je zadarmo.
Vaše telefónne číslo *



