Predaj 4 izbový dom Kolárovo, Poľná 19
- [15.11. 2025]Zmazať/ Upraviť/ Topovať





























Butterfly reality s hrdosťou ponúka na predaj krásny 4 izbový dom v malebnom Kolárove, na ulici Poľná 19. Tento dom je ideálnym miestom pre rodiny, ktoré hľadajú pohodlie a priestor na relaxáciu v tichom prostredí. S rovinatým pozemkom o rozlohe 361 m2 a zastavanou plochou 192 m2, ponúka dostatok miesta na aktivity a záhradné práce.
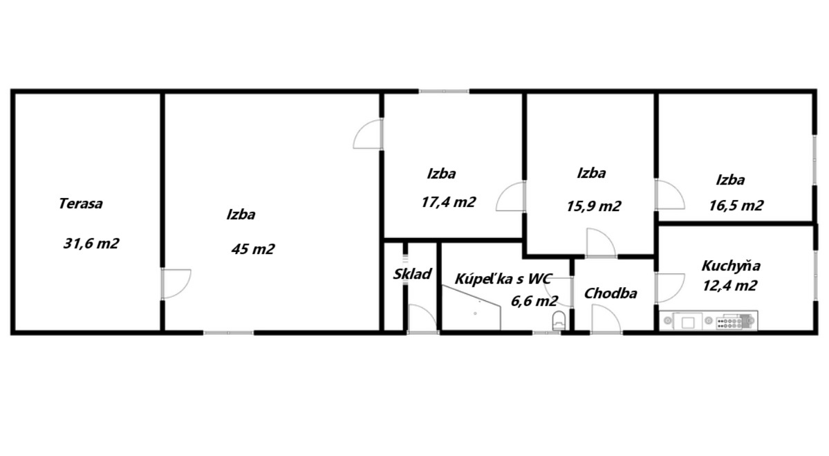
Dispozícia domu je premyslená a praktická. Vstupná chodba vás privíta a vedie do kuchyne, kúpeľne s WC a priestrannej izby, z ktorej sa dostanete do dvoch ďalších izieb. V jednej z izieb je prístup do kotolne, čo zaručuje pohodlné a efektívne využitie priestoru a do ďalšej izby. Celková úžitková plocha domu, vrátane terasy, dosahuje 155,84 m2, pričom terasa s rozlohou 31,61 m2 je ideálnym miestom na relaxáciu a rodinné stretnutia.
Dom bol zrekonštruovaný v roku 2021, čo znamená, že si môžete užívať moderné a komfortné bývanie bez nutnosti ďalších investícií. Vykurovanie zabezpečujú elektrické konvektory a ohrev vody je riešený elektrickým zásobníkovým ohrievačom, čo zaručuje efektívnosť a úsporu energie. Nehnuteľnosť je napojená na elektrinu a vodu, pričom odpad je odvádzaný do žumpy.
3D prehliadka:https://my.matterport.com/show/?m=Zjx4uPxowam
video prehliadka:https://youtu.be/P-rvZkxYlmQ
Cena nehnuteľnosti je 104 900 €, pričom táto suma zahŕňa kompletný realitný a právny servis. Navyše, ponúkame vám možnosť financovania prostredníctvom hypotekárneho úveru. Naši skúsení finanční poradcovia sú pripravení pomôcť vám nájsť najvhodnejšie financovanie pre váš nový domov.
Nezmeškajte túto jedinečnú príležitosť vlastniť dom v tichej lokalite Kolárova, ktorý ponúka všetko, čo potrebujete pre pohodlný a šťastný život. Kontaktujte nás ešte dnes a dohodnite si obhliadku!
Butterfly-reality
Walter Breuer
Email: walter.breuer@butterfly-reality.sk
Telefón: 0907 577 643
Web: www.butterfly-reality.sk
© COPYRIGHT Butterfly-reality, s.r.o. – Obrázky a texty sú autorským dielom a majetkom realitnej kancelárie Butterfly-reality, s.r.o.
Dispozícia domu je premyslená a praktická. Vstupná chodba vás privíta a vedie do kuchyne, kúpeľne s WC a priestrannej izby, z ktorej sa dostanete do dvoch ďalších izieb. V jednej z izieb je prístup do kotolne, čo zaručuje pohodlné a efektívne využitie priestoru a do ďalšej izby. Celková úžitková plocha domu, vrátane terasy, dosahuje 155,84 m2, pričom terasa s rozlohou 31,61 m2 je ideálnym miestom na relaxáciu a rodinné stretnutia.
Dom bol zrekonštruovaný v roku 2021, čo znamená, že si môžete užívať moderné a komfortné bývanie bez nutnosti ďalších investícií. Vykurovanie zabezpečujú elektrické konvektory a ohrev vody je riešený elektrickým zásobníkovým ohrievačom, čo zaručuje efektívnosť a úsporu energie. Nehnuteľnosť je napojená na elektrinu a vodu, pričom odpad je odvádzaný do žumpy.
3D prehliadka:https://my.matterport.com/show/?m=Zjx4uPxowam
video prehliadka:https://youtu.be/P-rvZkxYlmQ
Cena nehnuteľnosti je 104 900 €, pričom táto suma zahŕňa kompletný realitný a právny servis. Navyše, ponúkame vám možnosť financovania prostredníctvom hypotekárneho úveru. Naši skúsení finanční poradcovia sú pripravení pomôcť vám nájsť najvhodnejšie financovanie pre váš nový domov.
Nezmeškajte túto jedinečnú príležitosť vlastniť dom v tichej lokalite Kolárova, ktorý ponúka všetko, čo potrebujete pre pohodlný a šťastný život. Kontaktujte nás ešte dnes a dohodnite si obhliadku!
Butterfly-reality
Walter Breuer
Email: walter.breuer@butterfly-reality.sk
Telefón: 0907 577 643
Web: www.butterfly-reality.sk
© COPYRIGHT Butterfly-reality, s.r.o. – Obrázky a texty sú autorským dielom a majetkom realitnej kancelárie Butterfly-reality, s.r.o.
|
| |||||||||||||||||||||||||||||||
Kontaktovať inzerenta e-mailom
Kontaktovať e-mailom môže iba overený užívateľ.
Overenie je zadarmo.
Vaše telefónne číslo *
Kontaktovať e-mailom môže iba overený užívateľ.
Overenie je zadarmo.
Vaše telefónne číslo *








