ibvboleraz.sk - TYP D - novostavby rodinných domov v obci Bo
- [12.11. 2025]Zmazať/ Upraviť/ Topovať



























TRNAVA REALITY ponúka EXKLUZÍVNE V PREDAJI novostavby rodinných domov v obci Boleráz
Ponúkame na predaj novostavby rodinných domov samostatne stojacich typ A, B, C, D
Ide o novovybudovanú lokalitu v obci Boleráz v tichej časti obce na konci obce v slepej ulici.
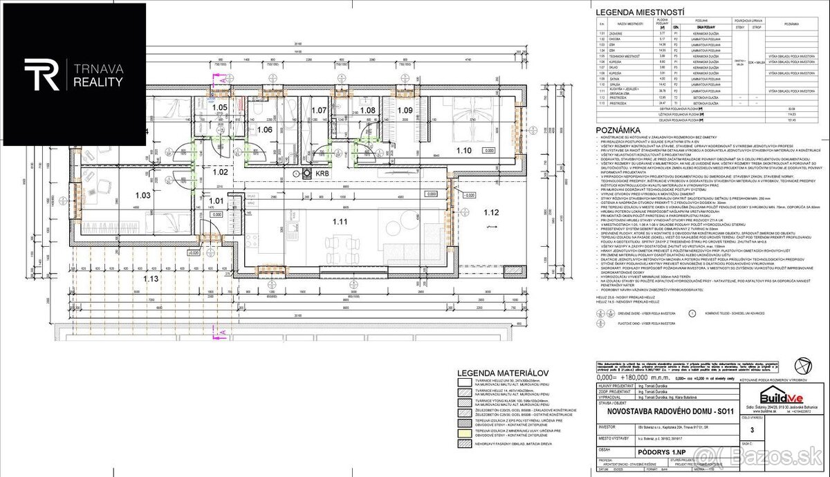
Všetky domy budú prízemné a môžete si vybrať zo štyroch typov rodinných domov a taktiež aj podľa veľkosti pozemkov či orentácie na svetové strany.
Bližšie informácie na web stránke
https://ibvboleraz.sk/
Novovybudovaná lokalita bude mať
- nové cesty
- nové siete (voda, elektrina, kanalizácia, internet)
- nové chodníky
- nové osvetlenie
Pred výstavbou rodinného domu je možné upraviť menšie dispozičné riešenie domu podľa vlastných predstáv klieta - po dohode.
Veľkou výhodou domu je, že na výstavbu budú použité nadštandardné materiály, vybavenie (kvalitná tehla, strešná krytina, plastové okná a vchodové dvere, sadrokartónový systém a omietky + podlahové kúrenie a veľa ďalšieho...)
STAV DOKONČNIA INTERIÉRU DODINNÝCH DOMOV:
Rodinný dom sa predáva v stave dokončenia takzvaného holodomu.
Miestnosti domu budú dokončené v štádiu finálnej pripravy na položenie podláh a osadenie dverí.
To znamená, že budú dokončené kompletné, potery, omietky a základný biely náter v celom dome.
TECHNICKÉ PARAMETRE:
- REÁLNE a KOMPLETNÉ náklady na bývanie pre 4 člennú rodinu sú od 100,-Eur a maximálne do 150,-Eur/mes aj s navýšenou rezervou.
- Ide o absolútne komfortné nízkonákladové bývanie ktoré si pochvaľuje už niekoľko našich zákazníkov
- Obvodové murivo o hrúbke 30cm tehla alebo ytong + zateplenie 16 cm fasádny polystyrén (isover)
- Priečne murivo o hrúbke 11,5 cm tehla alebo ytong + sadrové omietky
- Okná 6 komorový rám plastové biele z vnútra a z vonka antracit s 3 sklom v najvyššej energetickej triede
- Strešná krytina betónová, stropné izolácie ISOVER o hrúbke 36 cm, stropy- sadrokartón
- Vykurovanie tepelné čerpadlo (vodné podlahopvé vykurovanie) prípadne za príplatok aj predpriprava na fotovoltaiku
- Komín + predpríprava na krb v obývacej časti (za príplatok)
- Napojenie stavby na siete (elekrtika, obecný voda a kanalyzácia, optika)
- Výlez na strechu + odkladacia plocha v podkroví - za príplatok (14m2 )
- Predpríprava na žalúzie
- Zámkova dlažba (spevnená plocha cca 40m2) slúži ako parkovacie státia
- Zámkva dlažba na terasu
- Hrubé terenne úravy + vyčistenie pozemku
ÚŽITKOVÁ VEĽKOSŤ CENA
TYP DOMU POČET PLOCHA POZEMKU DOM S
IZIEB DOMU POZEMKOM
TYP A1 4 - izbový RD 99,65 m2 610 m2 260 000 €
TYP A2 4 - izbový RD 99,65 m2 549 m2 PREDANÉ
TYP A3 4 - izbový RD 99,65 m2 549 m2 PREDANÉ
TYP A4 4 - izbový RD 99,65 m2 549 m2 PREDANÉ
TYP B1 4 - izbový RD 109,18 m2 539 m2 260 000 €
TYP B2 4
Ponúkame na predaj novostavby rodinných domov samostatne stojacich typ A, B, C, D
Ide o novovybudovanú lokalitu v obci Boleráz v tichej časti obce na konci obce v slepej ulici.
Všetky domy budú prízemné a môžete si vybrať zo štyroch typov rodinných domov a taktiež aj podľa veľkosti pozemkov či orentácie na svetové strany.
Bližšie informácie na web stránke
https://ibvboleraz.sk/
Novovybudovaná lokalita bude mať
- nové cesty
- nové siete (voda, elektrina, kanalizácia, internet)
- nové chodníky
- nové osvetlenie
Pred výstavbou rodinného domu je možné upraviť menšie dispozičné riešenie domu podľa vlastných predstáv klieta - po dohode.
Veľkou výhodou domu je, že na výstavbu budú použité nadštandardné materiály, vybavenie (kvalitná tehla, strešná krytina, plastové okná a vchodové dvere, sadrokartónový systém a omietky + podlahové kúrenie a veľa ďalšieho...)
STAV DOKONČNIA INTERIÉRU DODINNÝCH DOMOV:
Rodinný dom sa predáva v stave dokončenia takzvaného holodomu.
Miestnosti domu budú dokončené v štádiu finálnej pripravy na položenie podláh a osadenie dverí.
To znamená, že budú dokončené kompletné, potery, omietky a základný biely náter v celom dome.
TECHNICKÉ PARAMETRE:
- REÁLNE a KOMPLETNÉ náklady na bývanie pre 4 člennú rodinu sú od 100,-Eur a maximálne do 150,-Eur/mes aj s navýšenou rezervou.
- Ide o absolútne komfortné nízkonákladové bývanie ktoré si pochvaľuje už niekoľko našich zákazníkov
- Obvodové murivo o hrúbke 30cm tehla alebo ytong + zateplenie 16 cm fasádny polystyrén (isover)
- Priečne murivo o hrúbke 11,5 cm tehla alebo ytong + sadrové omietky
- Okná 6 komorový rám plastové biele z vnútra a z vonka antracit s 3 sklom v najvyššej energetickej triede
- Strešná krytina betónová, stropné izolácie ISOVER o hrúbke 36 cm, stropy- sadrokartón
- Vykurovanie tepelné čerpadlo (vodné podlahopvé vykurovanie) prípadne za príplatok aj predpriprava na fotovoltaiku
- Komín + predpríprava na krb v obývacej časti (za príplatok)
- Napojenie stavby na siete (elekrtika, obecný voda a kanalyzácia, optika)
- Výlez na strechu + odkladacia plocha v podkroví - za príplatok (14m2 )
- Predpríprava na žalúzie
- Zámkova dlažba (spevnená plocha cca 40m2) slúži ako parkovacie státia
- Zámkva dlažba na terasu
- Hrubé terenne úravy + vyčistenie pozemku
ÚŽITKOVÁ VEĽKOSŤ CENA
TYP DOMU POČET PLOCHA POZEMKU DOM S
IZIEB DOMU POZEMKOM
TYP A1 4 - izbový RD 99,65 m2 610 m2 260 000 €
TYP A2 4 - izbový RD 99,65 m2 549 m2 PREDANÉ
TYP A3 4 - izbový RD 99,65 m2 549 m2 PREDANÉ
TYP A4 4 - izbový RD 99,65 m2 549 m2 PREDANÉ
TYP B1 4 - izbový RD 109,18 m2 539 m2 260 000 €
TYP B2 4
|
| |||||||||||||||||||||||||||||||
Kontaktovať inzerenta e-mailom
Kontaktovať e-mailom môže iba overený užívateľ.
Overenie je zadarmo.
Vaše telefónne číslo *
Kontaktovať e-mailom môže iba overený užívateľ.
Overenie je zadarmo.
Vaše telefónne číslo *






