IV.ETAPA - Reality KOMPLEX s.r.o. Vám ponúka na PREDAJ 4 izb
- [10.11. 2025]Zmazať/ Upraviť/ Topovať






























Typ: Rodinný dom
Ulica: Dolný Bar
Obec: Dolný Bar
Reality KOMPLEX s.r.o. Vám ponúka na PREDAJ 4 izbové nízkoenergetické NOVOSTAVBY v DOLNOM BARE!
Začína sa IV.ETAPA výstavby rodinných domov na jeseň 2023. (k dispozícií bude 39 RD!!!)
Dolný Bar je malá obec na južnom Slovensku v strednej časti Žitného ostrova. Obec leží na hlavnom ťahu z Bratislavy do Komárna (cesta E63) neďaleko termálných kúpalísk Dunajská Streda, Topoľníky a Veľký Meder.
Okolitá príroda je veľmi pekná a stvorená pre oddych. V blízkosti je možnosť na kanoistiku, nachádza sa tu aj cyklotrasa a taktiež máte možnosť na rybárčenie, keďže tu máme aj Dolnobarský rybník.
Dolný Bar ma dobrú občianskú vybavenosť ako napr. škôlka, škola, potraviny, pošta, mäsiarstvo, bistro, vlaková a autobusová zastávka, futbalové ihrisko, kostol.
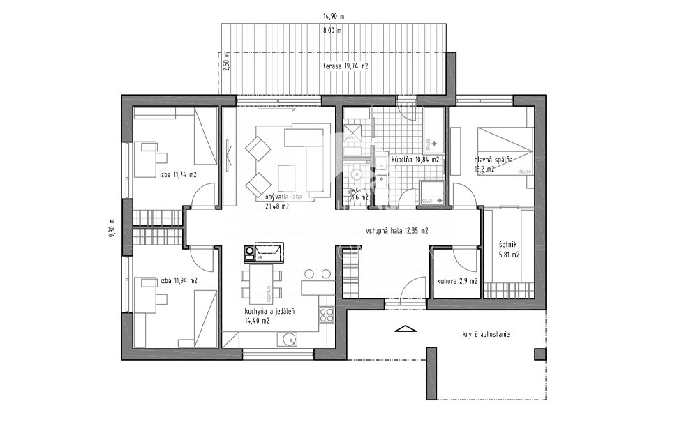
DISPOZIČNÉ RIEŠENIE:
predsieň
3 samostatné izby
svetlá obývacia časť spojená s kuchyňou a s jedálňou
komora
samostatná toaleta
kúpeľňa s umývadlom a s vaňou alebo so sprchovým kútom+výklenok pre práčku a sušičku (tu je umiestnený aj 120 l elektrický bojler)
PARAMETRE:
Úžitková plocha: 103,4 m2
Zastavaná plocha: 139 m2
Plocha pozemku: 550 m2
Samotná záhrada: 411 m2
Terasa 19,74 m2
RD je navrhnutý v nízkoenergetickom štandarde / t.z do 50 KWh/m2 za rok/. Je dielom architekta, ktorý je certifikovaným projektantom pasívnych domov IEPD Darmstadt. Pre stavbu je charakteristické použitie kvalitných materiálov a kvalitná práca.
Dom na KĽÚČ zahŕňa:
Pálenú červenú tehlu s 15 cm izoláciou
Plochú strechu 30 cm izoláciou + pravý štrk
Kvalitné okná
Dvere na terasu šírky 3 m
Kompletné vnútorné povrchy a maľovku
Kuchynskú linku so spotrebičmi
Drevenú podlahu v izbách
Drevené interiérové dvere
Obklady, sanitu
Alarm
Vykurovanie: elektrické podlahové
Interiérový krb
Pozemok
Zatrávnený pozemok s primeraným oplotením
Spevnené plochy s krytím státim pred domom
Vlastnú studňu a automatický závlahový systém
K dispozícií je viac variantov RD:
4izbový RD bez garáže na kľúč:
Cena: od 200 000 EUR
4izbový RD +garáž na kľúč:
Cena: od 250 000 EUR
Na fotkách sa nachádzajú vzorové domy! Budúci majiteľ má možnosť si vybrať dlažbu, parkety, sanitu, obklady, farbu kuchyňskej linky, pracovnú dosku atď. podľa daného vzorkovníka a podľa vlastnej predstavy.
Bratislava - 55 km (cez R7 40minút)
Galanta - 36 km
Győr - 38 km
Veľký Meder - 15 km
Komárno - 47 km
Neváhajte a dohodnite si obhliadku ešte dnes! Teším sa na Vás!
V cene je zahrnutý kompletný právny a katastrálny servis ako aj všetky poplatky súvisiace s prevodom nehnuteľnosti. V prípade záujmu ponúkame bezplatné finančné poradenstvo
Status: aktívne
Vlastníctvo: firemné
Stav: novostavba
Celková plocha: 550 m2
Úžitková plocha: 103.4 m2
Plocha pozemku: 550 m2
Zastavaná plocha: 139 m2
Podlahová plocha: 103.4
Ulica: Dolný Bar
Obec: Dolný Bar
Reality KOMPLEX s.r.o. Vám ponúka na PREDAJ 4 izbové nízkoenergetické NOVOSTAVBY v DOLNOM BARE!
Začína sa IV.ETAPA výstavby rodinných domov na jeseň 2023. (k dispozícií bude 39 RD!!!)
Dolný Bar je malá obec na južnom Slovensku v strednej časti Žitného ostrova. Obec leží na hlavnom ťahu z Bratislavy do Komárna (cesta E63) neďaleko termálných kúpalísk Dunajská Streda, Topoľníky a Veľký Meder.
Okolitá príroda je veľmi pekná a stvorená pre oddych. V blízkosti je možnosť na kanoistiku, nachádza sa tu aj cyklotrasa a taktiež máte možnosť na rybárčenie, keďže tu máme aj Dolnobarský rybník.
Dolný Bar ma dobrú občianskú vybavenosť ako napr. škôlka, škola, potraviny, pošta, mäsiarstvo, bistro, vlaková a autobusová zastávka, futbalové ihrisko, kostol.
DISPOZIČNÉ RIEŠENIE:
predsieň
3 samostatné izby
svetlá obývacia časť spojená s kuchyňou a s jedálňou
komora
samostatná toaleta
kúpeľňa s umývadlom a s vaňou alebo so sprchovým kútom+výklenok pre práčku a sušičku (tu je umiestnený aj 120 l elektrický bojler)
PARAMETRE:
Úžitková plocha: 103,4 m2
Zastavaná plocha: 139 m2
Plocha pozemku: 550 m2
Samotná záhrada: 411 m2
Terasa 19,74 m2
RD je navrhnutý v nízkoenergetickom štandarde / t.z do 50 KWh/m2 za rok/. Je dielom architekta, ktorý je certifikovaným projektantom pasívnych domov IEPD Darmstadt. Pre stavbu je charakteristické použitie kvalitných materiálov a kvalitná práca.
Dom na KĽÚČ zahŕňa:
Pálenú červenú tehlu s 15 cm izoláciou
Plochú strechu 30 cm izoláciou + pravý štrk
Kvalitné okná
Dvere na terasu šírky 3 m
Kompletné vnútorné povrchy a maľovku
Kuchynskú linku so spotrebičmi
Drevenú podlahu v izbách
Drevené interiérové dvere
Obklady, sanitu
Alarm
Vykurovanie: elektrické podlahové
Interiérový krb
Pozemok
Zatrávnený pozemok s primeraným oplotením
Spevnené plochy s krytím státim pred domom
Vlastnú studňu a automatický závlahový systém
K dispozícií je viac variantov RD:
4izbový RD bez garáže na kľúč:
Cena: od 200 000 EUR
4izbový RD +garáž na kľúč:
Cena: od 250 000 EUR
Na fotkách sa nachádzajú vzorové domy! Budúci majiteľ má možnosť si vybrať dlažbu, parkety, sanitu, obklady, farbu kuchyňskej linky, pracovnú dosku atď. podľa daného vzorkovníka a podľa vlastnej predstavy.
Bratislava - 55 km (cez R7 40minút)
Galanta - 36 km
Győr - 38 km
Veľký Meder - 15 km
Komárno - 47 km
Neváhajte a dohodnite si obhliadku ešte dnes! Teším sa na Vás!
V cene je zahrnutý kompletný právny a katastrálny servis ako aj všetky poplatky súvisiace s prevodom nehnuteľnosti. V prípade záujmu ponúkame bezplatné finančné poradenstvo
Status: aktívne
Vlastníctvo: firemné
Stav: novostavba
Celková plocha: 550 m2
Úžitková plocha: 103.4 m2
Plocha pozemku: 550 m2
Zastavaná plocha: 139 m2
Podlahová plocha: 103.4
|
| |||||||||||||||||||||||||||||||
Kontaktovať inzerenta e-mailom
Kontaktovať e-mailom môže iba overený užívateľ.
Overenie je zadarmo.
Vaše telefónne číslo *
Kontaktovať e-mailom môže iba overený užívateľ.
Overenie je zadarmo.
Vaše telefónne číslo *
Podobné inzeráty
Reality KOMPLEX s.r.o. Vám ponúka na PREDAJ 4 izbovú NOVOSTA - [10.11. 2025]Typ: Rodinný dom
Ulica: Dolný Bar
Obec: Dolný Bar
Reality KOMPLEX s.r.o. Vám ponúka na PREDAJ 4 izbovú nízkoenergetickú NOVOSTAVBU v DOLNOM BARE!
!Nasťahovať sa dá koncom SEPTEMBRA!
Dolný Bar je malá obec na južnom Slovensku v strednej časti Žitného ostrova. Obec leží na hlavnom ťahu z B ...
224 900 €
Dunajská Streda
930 14
930 14
22 x
Označiť zlý inzerát Chybnú kategóriu Ohodnotiť užívateľa Zmazať/Upraviť/Topovať
IV.ETAPA-Reality KOMPLEX s.r.o. Vám ponúka na PREDAJ 3 izbov - [10.11. 2025]Typ: Rodinný dom
Ulica: Dolný Bar
Obec: Dolný Bar
Reality KOMPLEX s.r.o. Vám ponúka na PREDAJ 3 izbové nízkoenergetické NOVOSTAVBY v DOLNOM BARE!
Začína sa IV.ETAPA výstavby rodinných domov na jeseň 2023. (k dispozícií bude 39 RD!!!)
Dolný Bar je malá obec na južnom Slovensku v strednej časti ...
185 000 €
Dunajská Streda
930 14
930 14
24 x
Označiť zlý inzerát Chybnú kategóriu Ohodnotiť užívateľa Zmazať/Upraviť/Topovať
Reality KOMPLEX s.r.o. Vám ponúka na PREDAJ kompletne zrekon - [10.11. 2025]Typ: Rodinný dom
Ulica: Dolný Bar
Obec: Dolný Bar
Reality KOMPLEX s.r.o. Vám ponúka na PREDAJ pekný, kompletne zrekonštruovaný 4 izbový rodinný dom v Dolnom Bare!
Dolný Bar je malá obec na južnom Slovensku v strednej časti Žitného ostrova. Obec leží na hlavnom ťahu z Bratislavy do Ko ...
198 000 €
Dunajská Streda
930 14
930 14
24 x
Označiť zlý inzerát Chybnú kategóriu Ohodnotiť užívateľa Zmazať/Upraviť/Topovať
Na predaj 4-izbová kompletná rekonštrukcia rodinného domu - [5.11. 2025]Typ: Rodinný dom
Ulica: Hlavná
Obec: Dolný Bar
Ponúkame Vám na predaj priestranný a moderný 4-izbový rodinný dom, ktorý prešiel kompletnou rekonštrukciou a je ihneď obývateľný bez ďalších investícií. Tento dom je ideálny pre rodiny, viacgeneračné bývanie alebo ako investícia.
Dispozičné riešen ...
198 000 €
Dunajská Streda
930 14
930 14
50 x
Označiť zlý inzerát Chybnú kategóriu Ohodnotiť užívateľa Zmazať/Upraviť/Topovať
BOSEN | ZNÍŽENÁ CENA - Novostavba 4 izb. RD, tichá lokalita - TOP - [11.11. 2025]Bosen Group Vám ponúka na predaj 4-izbový rodinný dom, ktorý je súčasťou dvojdomu v tichej časti obce Dolný Bar.
Dunajská Streda 5 km Bratislava 45 km. Veľký Meder 12 km. Nitra 73 km. Trnava 37 km. Senec 50 km. Sereď 42km. Šaľa 30km. Nové Zámky 53 km Kolárovo 31 km. Komárno 43 km. Dolný Štál 3 ...
214 900 €
Dunajská Streda
930 14
930 14
943 x
Označiť zlý inzerát Chybnú kategóriu Ohodnotiť užívateľa Zmazať/Upraviť/Topovať
RealityDS - PREDAJ slnečného 3 i. rodinného domu, Dolný Bar - [14.10. 2025]https://www.realityds.sk/nehnutelnost/4290320125-realityds-predaj-slnecneho-3-izboveho-rodinneho-domu-dolny-bar
RK RealityDS Vám ponúka modernú novostavbu jednopodlažného bungalovu v obci Dolný Bar, nachádzajúceho sa v zástavbe krásnych rodinných domov jednotnej línie.
Dom stojí na pozemku s v ...
194 990 €
Dunajská Streda
930 14
930 14
398 x
Označiť zlý inzerát Chybnú kategóriu Ohodnotiť užívateľa Zmazať/Upraviť/Topovať
4. ETAPA MODERNÁ NOVOSTAVBA - 3 izbový nízkoenergetický b - [13.10. 2025]Realitná kancelária A-W Real Vám ponúka 3-izbový rodinný dom s garážou (nízkoenergetická novostavba s nadštandardným vybavením) v novej štvrti obce Dolný Bar.
Ide o moderný prízemný rodinný dom na kľúč, väčšej veľkostnej kategórie, už pripravený na bývanie, kompletne dokončený, vrátane úprav pozemk ...
210 000 €
Dunajská Streda
930 14
930 14
343 x
Označiť zlý inzerát Chybnú kategóriu Ohodnotiť užívateľa Zmazať/Upraviť/Topovať
4.ETAPA MODERNÁ NOVOSTAVBA - 4 izbový nízkoenergetický bu - [13.10. 2025]Realitná kancelária A-W Real Vám ponúka 4-izbový rodinný dom (nízkoenergetická novostavba s nadštandardným vybavením) v novej štvrti obce Dolný Bar.
Ide o moderný prízemný rodinný dom na kľúč, väčšej veľkostnej kategórie, už pripravený na bývanie, kompletne dokončený, vrátane úprav pozemku a oplote ...
250 000 €
Dunajská Streda
930 14
930 14
309 x
Označiť zlý inzerát Chybnú kategóriu Ohodnotiť užívateľa Zmazať/Upraviť/Topovať
4. ETAPA MODERNÁ NOVOSTAVBA - 3 izbový nízkoenergetický b - [13.10. 2025]Realitná kancelária A-W Real Vám ponúka na predaj 3-izbový rodinný dom (nízkoenergetická novostavba s nadštandardným vybavením) v obci Dolný Bar.
Ide o moderný prízemný rodinný dom na kľúč, väčšej veľkostnej kategórie, už pripravený na bývanie, kompletne dokončený, vrátane úprav pozemku a oplotenia ...
210 000 €
Dunajská Streda
930 14
930 14
307 x
Označiť zlý inzerát Chybnú kategóriu Ohodnotiť užívateľa Zmazať/Upraviť/Topovať
Rezervovane rodinný dom s pozemkom 1646m2- Dolný Bar - [1.10. 2025]Hľadáte dom, ktorý nie je developerským projektom ?
Chcete aby Váš dom bol iný ako ostatné ?
Hľadáte veľký pozemok?
Vlastne chcete bývať v dome, ktorý je rozlohou dostatočne veľký aj pre väčšiu rodinu, pozemok, na ktorom si každý jeden člen rodiny nájde to svoje, príjemných susedov, tiché prost ...
226 000 €
Dunajská Streda
930 14
930 14
488 x
Označiť zlý inzerát Chybnú kategóriu Ohodnotiť užívateľa Zmazať/Upraviť/Topovať









