REZERVOVANÉ (B2) Priestranný dom s pokojom a komfortom, le
- [7.11. 2025]Zmazať/ Upraviť/ Topovať














Domov, kde každý deň začína s úsmevom. Dom B2 ponúka priestor, pokoj a moderný komfort pre celú rodinu. V tichej lokalite Bitarovej vzniká rezidenčná štvrť, ktorá kombinuje pokoj vidieka s výhodami života blízko mesta.
Rodinný dom typu B2 má všetko, čo potrebuje aktívna rodina:
na prízemí sa nachádza veľkorysá obývacia izba prepojená s kuchyňou a jedálňou, odkiaľ sa vychádza na terasu so záhradou – ideálne miesto na oddych, rodinné večery či grilovanie s priateľmi,
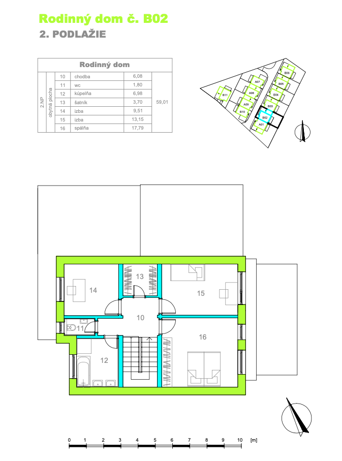
vstupná chodba ponúka šatník a technickú miestnosť, nechýba samostatné WC,
na poschodí sú tri izby, kúpeľňa, šatník a samostatné WC,
garáž a parkovacie miesto pod prístreškom zaručia komfortné parkovanie.
Kvalita a poctivá výstavba
Na projekte pracujeme s dôrazom na kvalitu a detaily.
Dom je aktuálne vysoko rozostavaný – dokončené vnútorné omietky, hrubé inštalácie, fasáda, práve realizujeme podlahové kúrenie a finálne úpravy chodníkov a terás.
Vonkajšie inžinierske siete sú na 90% hotové (elektro, verejné osvetlenie, vodovod, dažďová kanalizácia, žumpy, vodomerné šachty).
Cesta je pripravená s podkladnými štrkovými vrstvami a časťou obrubníkov.
Používame len overené materiály a technológie:
tehly POROTHERM Profi,
zateplenie BAUMIT,
plastové okná s trojsklom,
rovná strecha s 30 cm izoláciou,
moderný, minimalistický dizajn a premyslené detaily.
Domy ponúkame v štádiu holodomu, s možnosťou kompletného dokončenia podľa priania klienta – od podláh až po kuchyňu a sanitu.
Moderné a úsporné vykurovanie
Dom je vybavený tepelným čerpadlom vzduch-voda VIESSMANN VITOCAL 222-S, ktoré zabezpečuje podlahové vykurovanie s nízkym energetickým spádom.
Príprava teplej vody je riešená integrovaným zásobníkom 220 l s rúrkovým výmenníkom a poistným ventilom, čím je zabezpečená dostatočná zásoba teplej vody pre celú rodinu.
Komfortná rekuperácia vzduchu
Dom je pripravený aj na decentralizované nútené vetranie s jednotkami Viessmann Vitovent 200 D, ktoré sa umiestnia v obytných miestnostiach a umožnia reguláciu výkonu vetrania.
Odvod kondenzátu je riešený diskrétne na fasáde RD.
Vďaka tomu získavate zdravé vnútorné prostredie, čerstvý vzduch a nižšie náklady na energiu.
Technické vybavenie a nadštandardné prvky
Vykurovanie: Úsporné podlahové vykurovanie s moderným tepelným čerpadlom VIESSMANN, ktoré výrazne znižuje prevádzkové náklady.
Príprava teplej vody: Integrovaný zásobník 220 l s rúrkovým výmenníkom a poistným ventilom.
Rekuperácia: Nútené vetranie decentralizovanými jednotkami Viessmann Vitovent 200 D pre zdravé a komfortné vnútorné prostredie.
Parkovanie: Murovaná garáž s diaľkovým ovládaním a prístrešok pre druhé auto.
Inžinierske siete: Dom je pripojený na elektrinu, vodu, dažďovú kanalizáciu a disponuje 12 m³ žumpou. Verejné osvetlenie a vodomerné šachty sú súčasťou projek
Rodinný dom typu B2 má všetko, čo potrebuje aktívna rodina:
na prízemí sa nachádza veľkorysá obývacia izba prepojená s kuchyňou a jedálňou, odkiaľ sa vychádza na terasu so záhradou – ideálne miesto na oddych, rodinné večery či grilovanie s priateľmi,
vstupná chodba ponúka šatník a technickú miestnosť, nechýba samostatné WC,
na poschodí sú tri izby, kúpeľňa, šatník a samostatné WC,
garáž a parkovacie miesto pod prístreškom zaručia komfortné parkovanie.
Kvalita a poctivá výstavba
Na projekte pracujeme s dôrazom na kvalitu a detaily.
Dom je aktuálne vysoko rozostavaný – dokončené vnútorné omietky, hrubé inštalácie, fasáda, práve realizujeme podlahové kúrenie a finálne úpravy chodníkov a terás.
Vonkajšie inžinierske siete sú na 90% hotové (elektro, verejné osvetlenie, vodovod, dažďová kanalizácia, žumpy, vodomerné šachty).
Cesta je pripravená s podkladnými štrkovými vrstvami a časťou obrubníkov.
Používame len overené materiály a technológie:
tehly POROTHERM Profi,
zateplenie BAUMIT,
plastové okná s trojsklom,
rovná strecha s 30 cm izoláciou,
moderný, minimalistický dizajn a premyslené detaily.
Domy ponúkame v štádiu holodomu, s možnosťou kompletného dokončenia podľa priania klienta – od podláh až po kuchyňu a sanitu.
Moderné a úsporné vykurovanie
Dom je vybavený tepelným čerpadlom vzduch-voda VIESSMANN VITOCAL 222-S, ktoré zabezpečuje podlahové vykurovanie s nízkym energetickým spádom.
Príprava teplej vody je riešená integrovaným zásobníkom 220 l s rúrkovým výmenníkom a poistným ventilom, čím je zabezpečená dostatočná zásoba teplej vody pre celú rodinu.
Komfortná rekuperácia vzduchu
Dom je pripravený aj na decentralizované nútené vetranie s jednotkami Viessmann Vitovent 200 D, ktoré sa umiestnia v obytných miestnostiach a umožnia reguláciu výkonu vetrania.
Odvod kondenzátu je riešený diskrétne na fasáde RD.
Vďaka tomu získavate zdravé vnútorné prostredie, čerstvý vzduch a nižšie náklady na energiu.
Technické vybavenie a nadštandardné prvky
Vykurovanie: Úsporné podlahové vykurovanie s moderným tepelným čerpadlom VIESSMANN, ktoré výrazne znižuje prevádzkové náklady.
Príprava teplej vody: Integrovaný zásobník 220 l s rúrkovým výmenníkom a poistným ventilom.
Rekuperácia: Nútené vetranie decentralizovanými jednotkami Viessmann Vitovent 200 D pre zdravé a komfortné vnútorné prostredie.
Parkovanie: Murovaná garáž s diaľkovým ovládaním a prístrešok pre druhé auto.
Inžinierske siete: Dom je pripojený na elektrinu, vodu, dažďovú kanalizáciu a disponuje 12 m³ žumpou. Verejné osvetlenie a vodomerné šachty sú súčasťou projek
|
| |||||||||||||||||||||||||||||||
Kontaktovať inzerenta e-mailom
Kontaktovať e-mailom môže iba overený užívateľ.
Overenie je zadarmo.
Vaše telefónne číslo *
Kontaktovať e-mailom môže iba overený užívateľ.
Overenie je zadarmo.
Vaše telefónne číslo *
Podobné inzeráty
(A1) Moderné bývanie v Bitarovej - 4 izbový dom s garáž - [7.11. 2025]Miesto, kde sa býva s ľahkosťou. Dom, ktorý ponúka pokoj, priestor a každodenný komfort – bez kompromisov.
V novej zástavbe v Bitarovej vzniká moderné rodinné bývanie, ktoré spája výhody života pri meste s atmosférou tichej vidieckej lokality.
Rodinný dom typu A1 má všetko, čo potrebuje aktívna ...
357 519 €
Žilina
010 04
010 04
18 x
Označiť zlý inzerát Chybnú kategóriu Ohodnotiť užívateľa Zmazať/Upraviť/Topovať
(A9) Moderný dom pre aktívnu rodinu - 4 izbový dom s gar? - [7.11. 2025]Dom, ktorý dáva priestor životu. Dom A9 ponúka priestranné a pohodlné bývanie, ideálne pre každodenný rodinný život. Nová zástavba v Bitarovej spája pokojnú atmosféru vidieka s dostupnosťou do centra Žiliny.
Rodinný dom typu A9 má všetko, čo potrebuje aktívna rodina:
na prízemí sa nachádza ...
337 295 €
Žilina
010 04
010 04
20 x
Označiť zlý inzerát Chybnú kategóriu Ohodnotiť užívateľa Zmazať/Upraviť/Topovať
(B10) Pokojné bývanie v Bitarovej - 4 izbový dom s teraso - [7.11. 2025]Miesto, kde sa rodina cíti dobre. Dom B10 kombinuje funkčný dizajn, pohodlie a moderné technológie.
V Bitarovej vzniká nová rezidenčná štvrť, kde pokojné prostredie stretáva život pri meste.
Rodinný dom typu B10 má všetko, čo potrebuje aktívna rodina:
na prízemí sa nachádza veľkorysá obýva ...
327 139 €
Žilina
010 04
010 04
15 x
Označiť zlý inzerát Chybnú kategóriu Ohodnotiť užívateľa Zmazať/Upraviť/Topovať
NA PREDAJ novostavba rodinný dom alebo 3 apartmany - [4.11. 2025]HLAVNÁ VÝHODA PRE VÁS: KÚPA BEZ PROVÍZIE RK!
🏡 Na predaj trojpodlažný 8-izbový rodinný dom s možnosťou vytvorenia samostatných apartmánov – Žilina, prímestská časť
Súkromná osoba / majiteľ ponúka exkluzívne na predaj kompletne zrekonštruovaný rodinný dom až po tehlu, nachádzajúci sa v tichej p ...
429 000 €
Žilina
010 04
010 04
135 x
Označiť zlý inzerát Chybnú kategóriu Ohodnotiť užívateľa Zmazať/Upraviť/Topovať
4 izb dom v Zavodi - [30.10. 2025]Ponúkam na predaj priestranný rodinný dom v tichej časti obce Závoi
Dom má rozmery 9 × 9 m, je dvojpodlažný a plne podpivničený. Kolaudovaný bol v roku 1984, prešiel kompletnou rekonštrukciou v roku 2018.
✅ Technické informácie:
murivo: tehla 40 cm + zateplenie 10 cm
keramická stropná dosk ...
473 500 €
Žilina
010 04
010 04
452 x
Označiť zlý inzerát Chybnú kategóriu Ohodnotiť užívateľa Zmazať/Upraviť/Topovať
TARGETreal | Na predaj, 4-izbová novostavba rodinného domu B - [24.10. 2025]EXKLUZÍVNE V PONUKE
Prejdite si nehnuteľnosť cez virtuálnu obhliadku a nechajte sa inšpirovať!
- https://my.matterport.com/show/?m=UgRuk8jdQ4n
Ponúkame Vám na predaj moderný 4-izbový nízkoenergetický bungalov, ktorý spája pohodlie vidieckeho bývania s dokonalou dostupnosťou do centra Žiliny – le ...
269 990 €
Žilina
010 04
010 04
630 x
Označiť zlý inzerát Chybnú kategóriu Ohodnotiť užívateľa Zmazať/Upraviť/Topovať
Rodinný dom 4+1, 100m²,Garáž 332 m² Varín, pozemok 805m² - TOP - [6.11. 2025]Mamud reality ponúka na predaj rodinný dom 4+1, ktorý sa nachádza na pozemku o výmere 805 m² v obci Varín, len 8km od Žiliny. Dom má pivnicu, poschodie a podkrovie. V súčasnosti má dom využitie ako sídlo firmy. Prízemie disponuje administratívnym priestorom, kuchynkou, WC a šatňou so sprchami a WC. ...
330 000 €
Žilina
010 04
010 04
909 x
Označiť zlý inzerát Chybnú kategóriu Ohodnotiť užívateľa Zmazať/Upraviť/Topovať
Predaj Rodinný dom Bitarová - [22.10. 2025]Predávame rodinný dom v obci Bitarová
Ponúkame na predaj rodinný dom v pôvodnom stave, nachádzajúci sa v obci Bitarová, ktorá leží v západnej časti žilinskej kotliny. Dom je dvojpodlažný s klasickou sedlovou strechou a disponuje dvoma izbami, kúpeľňou, samostatným wc, pivnica, s prístavbou 17 m² ...
259 000 €
Žilina
010 04
010 04
380 x
Označiť zlý inzerát Chybnú kategóriu Ohodnotiť užívateľa Zmazať/Upraviť/Topovať
predaj | Priestranný 2-podlažný dom v Žiline - [18.10. 2025]F-one reality Vám ponúka na predaj priestranný rodinný dom v tichej a vyhľadávanej lokalite Žilina – Závodie. Dom má veľmi praktickú dispozíciu – na prízemí sa nachádzajú štyri obytné izby, kuchyňa, kúpeľňa a samostatné WC. Na poschodí sú ďalšie štyri izby, ktoré je možné využiť ako spálne, pracovňu ...
234 900 €
Žilina
010 04
010 04
793 x
Označiť zlý inzerát Chybnú kategóriu Ohodnotiť užívateľa Zmazať/Upraviť/Topovať
rodinny dom zilina - [7.10. 2025]predam rodinny dom v centre ziliny na zapleti ulica povodny stav nova strecha , kurenie, okna, zateplenie. 3 podlazia po 100m2 4 balkony, 2 wc, sprcha , vama. samostatna garaz. zajrada 1010m2 . luxusna lokalita mlady susedia, ticha stvrt. cena 550 000€ . vhodne pre
prestavbu 3 bytove jednotky alebo ...
550 000 €
Žilina
010 04
010 04
764 x
Označiť zlý inzerát Chybnú kategóriu Ohodnotiť užívateľa Zmazať/Upraviť/Topovať