(B10) Pokojné bývanie v Bitarovej - 4 izbový dom s teraso
- [7.11. 2025]Zmazať/ Upraviť/ Topovať














Miesto, kde sa rodina cíti dobre. Dom B10 kombinuje funkčný dizajn, pohodlie a moderné technológie.
V Bitarovej vzniká nová rezidenčná štvrť, kde pokojné prostredie stretáva život pri meste.
Rodinný dom typu B10 má všetko, čo potrebuje aktívna rodina:
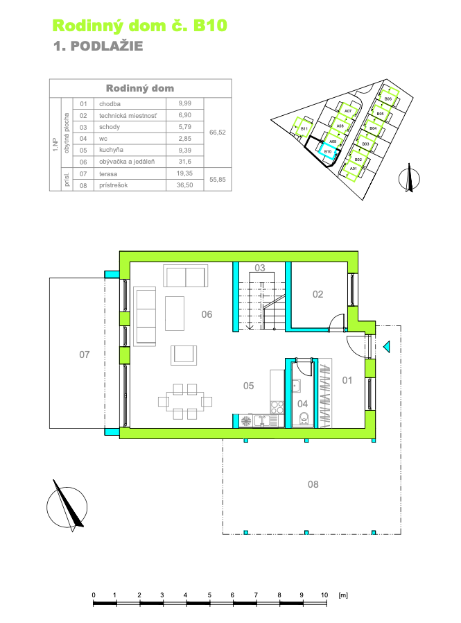
na prízemí sa nachádza veľkorysá obývacia izba prepojená s kuchyňou a jedálňou, odkiaľ sa vychádza na terasu so záhradou – ideálne miesto na oddych, rodinné večery či grilovanie s priateľmi,
vstupná chodba ponúka šatník a technickú miestnosť, nechýba samostatné WC,
na poschodí sú tri izby, kúpeľňa, šatník a samostatné WC,
parkovacie miesto pod prístreškom zaručia komfortné parkovanie.
Kvalita a poctivá výstavba
Na projekte pracujeme s dôrazom na kvalitu a detaily.
Dom je aktuálne vysoko rozostavaný – dokončené vnútorné omietky, hrubé inštalácie, fasáda, práve realizujeme podlahové kúrenie a finálne úpravy chodníkov a terás.
Vonkajšie inžinierske siete sú na 90% hotové (elektro, verejné osvetlenie, vodovod, dažďová kanalizácia, žumpy, vodomerné šachty).
Cesta je pripravená s podkladnými štrkovými vrstvami a časťou obrubníkov.
Používame len overené materiály a technológie:
tehly POROTHERM Profi,
zateplenie BAUMIT,
plastové okná s trojsklom,
rovná strecha s 30 cm izoláciou,
moderný, minimalistický dizajn a premyslené detaily.
Domy ponúkame v štádiu holodomu, s možnosťou kompletného dokončenia podľa priania klienta – od podláh až po kuchyňu a sanitu.
Moderné a úsporné vykurovanie
Dom je vybavený tepelným čerpadlom vzduch-voda VIESSMANN VITOCAL 222-S, ktoré zabezpečuje podlahové vykurovanie s nízkym energetickým spádom.
Príprava teplej vody je riešená integrovaným zásobníkom 220 l s rúrkovým výmenníkom a poistným ventilom, čím je zabezpečená dostatočná zásoba teplej vody pre celú rodinu.
Komfortná rekuperácia vzduchu
Dom je pripravený aj na decentralizované nútené vetranie s jednotkami Viessmann Vitovent 200 D, ktoré sa umiestnia v obytných miestnostiach a umožnia reguláciu výkonu vetrania.
Odvod kondenzátu je riešený diskrétne na fasáde RD.
Vďaka tomu získavate zdravé vnútorné prostredie, čerstvý vzduch a nižšie náklady na energiu.
Technické vybavenie a nadštandardné prvky
Vykurovanie: Úsporné podlahové vykurovanie s moderným tepelným čerpadlom VIESSMANN, ktoré výrazne znižuje prevádzkové náklady.
Príprava teplej vody: Integrovaný zásobník 220 l s rúrkovým výmenníkom a poistným ventilom.
Rekuperácia: Nútené vetranie decentralizovanými jednotkami Viessmann Vitovent 200 D pre zdravé a komfortné vnútorné prostredie.
Parkovanie: Murovaná garáž s diaľkovým ovládaním a prístrešok pre druhé auto.
Inžinierske siete: Dom je pripojený na elektrinu, vodu, dažďovú kanalizáciu a disponuje 12 m³ žumpou. Verejné osvetlenie a vodomerné šachty sú súčasťou projektu.
Dom v štádiu holodomu: M
V Bitarovej vzniká nová rezidenčná štvrť, kde pokojné prostredie stretáva život pri meste.
Rodinný dom typu B10 má všetko, čo potrebuje aktívna rodina:
na prízemí sa nachádza veľkorysá obývacia izba prepojená s kuchyňou a jedálňou, odkiaľ sa vychádza na terasu so záhradou – ideálne miesto na oddych, rodinné večery či grilovanie s priateľmi,
vstupná chodba ponúka šatník a technickú miestnosť, nechýba samostatné WC,
na poschodí sú tri izby, kúpeľňa, šatník a samostatné WC,
parkovacie miesto pod prístreškom zaručia komfortné parkovanie.
Kvalita a poctivá výstavba
Na projekte pracujeme s dôrazom na kvalitu a detaily.
Dom je aktuálne vysoko rozostavaný – dokončené vnútorné omietky, hrubé inštalácie, fasáda, práve realizujeme podlahové kúrenie a finálne úpravy chodníkov a terás.
Vonkajšie inžinierske siete sú na 90% hotové (elektro, verejné osvetlenie, vodovod, dažďová kanalizácia, žumpy, vodomerné šachty).
Cesta je pripravená s podkladnými štrkovými vrstvami a časťou obrubníkov.
Používame len overené materiály a technológie:
tehly POROTHERM Profi,
zateplenie BAUMIT,
plastové okná s trojsklom,
rovná strecha s 30 cm izoláciou,
moderný, minimalistický dizajn a premyslené detaily.
Domy ponúkame v štádiu holodomu, s možnosťou kompletného dokončenia podľa priania klienta – od podláh až po kuchyňu a sanitu.
Moderné a úsporné vykurovanie
Dom je vybavený tepelným čerpadlom vzduch-voda VIESSMANN VITOCAL 222-S, ktoré zabezpečuje podlahové vykurovanie s nízkym energetickým spádom.
Príprava teplej vody je riešená integrovaným zásobníkom 220 l s rúrkovým výmenníkom a poistným ventilom, čím je zabezpečená dostatočná zásoba teplej vody pre celú rodinu.
Komfortná rekuperácia vzduchu
Dom je pripravený aj na decentralizované nútené vetranie s jednotkami Viessmann Vitovent 200 D, ktoré sa umiestnia v obytných miestnostiach a umožnia reguláciu výkonu vetrania.
Odvod kondenzátu je riešený diskrétne na fasáde RD.
Vďaka tomu získavate zdravé vnútorné prostredie, čerstvý vzduch a nižšie náklady na energiu.
Technické vybavenie a nadštandardné prvky
Vykurovanie: Úsporné podlahové vykurovanie s moderným tepelným čerpadlom VIESSMANN, ktoré výrazne znižuje prevádzkové náklady.
Príprava teplej vody: Integrovaný zásobník 220 l s rúrkovým výmenníkom a poistným ventilom.
Rekuperácia: Nútené vetranie decentralizovanými jednotkami Viessmann Vitovent 200 D pre zdravé a komfortné vnútorné prostredie.
Parkovanie: Murovaná garáž s diaľkovým ovládaním a prístrešok pre druhé auto.
Inžinierske siete: Dom je pripojený na elektrinu, vodu, dažďovú kanalizáciu a disponuje 12 m³ žumpou. Verejné osvetlenie a vodomerné šachty sú súčasťou projektu.
Dom v štádiu holodomu: M
|
| |||||||||||||||||||||||||||||||
Kontaktovať inzerenta e-mailom
Kontaktovať e-mailom môže iba overený užívateľ.
Overenie je zadarmo.
Vaše telefónne číslo *
Kontaktovať e-mailom môže iba overený užívateľ.
Overenie je zadarmo.
Vaše telefónne číslo *