Predaj, 4 izb. rodinný dom, novostavba, Horné Otrokovce, Hlo
- [4.11. 2025]Zmazať/ Upraviť/ Topovať




























Typ: Rodinný dom
Ulica: Horné Otrokovce
Obec: Horné Otrokovce
Zátišie pod Horou – Váš nový domov v objatí prírody 🌲
Predstavujeme vám jedinečný projekt piatich rodinných domov v nádhernom prostredí obce Horné Otrokovce, priamo pri historickom kaštieli, doslova na hranici lesa a obce – v mieste, kde končí ruch civilizácie a začína pokoj prírody. Jeden z domov je už rezervovaný ešte pred oficiálnym spustením predaja, takže neváhajte príliš dlho.
Tento projekt Zátišie pod Horou je určený pre ľudí, ktorí túžia po pokojnom a zdravom bývaní blízko prírody, no zároveň s výborným prístupom k občianskej vybavenosti.
Video obhliadka tu : https://youtu.be/LhH3h3H4EcQ
Virtuálna prehliadka tu : https://youtu.be/t12yYKn6oq8
✨ Čo ponúkame?
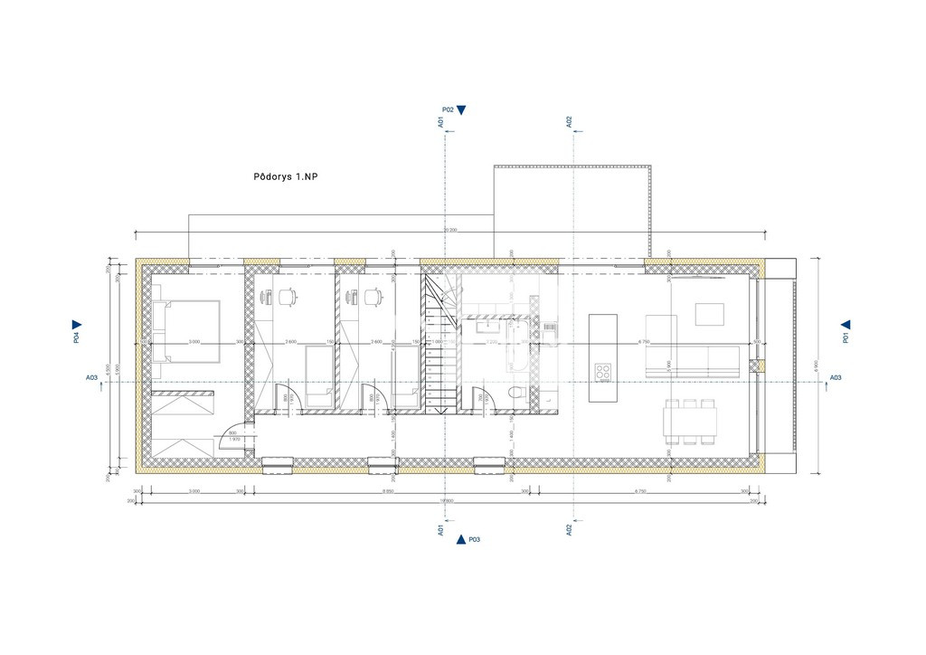
Každý z domov je 4-izbový a premyslene riešený tak, aby poskytoval maximálne pohodlie pre rodinný život:
• Veľká obývacia izba spojená s jedálňou a kuchyňou – s výstupom na priestrannú terasu s dychberúcim výhľadom na horu a les.
• Samostatná spálňa a dve detské izby.
• Kúpeľňa so sprchovým kútom – vaňou, WC
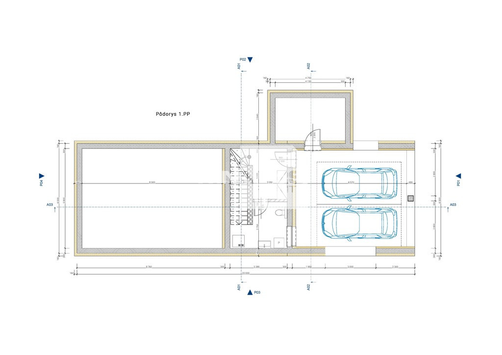
• Dom je dvojpodlažný, situovaný vo svahu – spodné podlažie ponúka:
o Dvojgaráž – 40,19 m²
o Technická miestnosť – 20 m²
o Sklad – 11,2 m²
Celková úžitková plocha domu je 137 m² + garážové priestory 40,19 m²
🛠 Technické riešenie:
• Tehlová stavba (30 cm) + zateplenie (20 cm).
• Všetky inžinierske siete: voda, elektrina, kanalizácia.
• Možnosť pripojenia sa na vlastnú studňu.
• Vykurovanie tepelným čerpadlom.
• Domy sa predávajú v štádiu holodom, ale po dohode možnosť dokončenia do štandardu (okrem kuchynskej linky) do 20.000 €.
📍 Lokalita a pozemky:
Domy budú postavené na týchto pozemkoch:
• Parcela č. 1 – 1009 m² – REZERVOVANÉ ✅
• Parcela č. 2 – 730 m²
• Parcela č. 3 – 633 m²
• Parcela č. 4 – 616 m²
• Parcela č. 5 – 578 m²
Prístupová cesta je spevnená a bude zrealizovaná na komplet ihneď po dokončení výstavby.
________________________________________
💶 Cena: 279.000 €
To všetko v prostredí, ktoré si zamilujete. Ranná káva na terase s výhľadom do lesa, spev vtákov, vôňa dreva a čerstvý vzduch… Zátišie pod Horou nie je len o bývaní – je to nový životný štýl.
📞 Neváhajte ma kontaktovať – záujem je vysoký a počet domov je obmedzený!
Začiatok výstavby: máj 2025. Buďte medzi prvými, ktorí si zabezpečia svoje miesto v tomto malebnom kúsku sveta.
Pre viac informácií, alebo dohodnutie obhliadky ma neváhajte kontaktovať Miroslav Jakubkovič na telefónnom čísle 0905 526 254. Teším sa na stretnutie s vami a možnosť ukázať vám tento krásny domov. Pre viac o mne navštívte :
https://miroslavjakubkovic.sk/o-mne
Táto inzercia nie je verejn
Ulica: Horné Otrokovce
Obec: Horné Otrokovce
Zátišie pod Horou – Váš nový domov v objatí prírody 🌲
Predstavujeme vám jedinečný projekt piatich rodinných domov v nádhernom prostredí obce Horné Otrokovce, priamo pri historickom kaštieli, doslova na hranici lesa a obce – v mieste, kde končí ruch civilizácie a začína pokoj prírody. Jeden z domov je už rezervovaný ešte pred oficiálnym spustením predaja, takže neváhajte príliš dlho.
Tento projekt Zátišie pod Horou je určený pre ľudí, ktorí túžia po pokojnom a zdravom bývaní blízko prírody, no zároveň s výborným prístupom k občianskej vybavenosti.
Video obhliadka tu : https://youtu.be/LhH3h3H4EcQ
Virtuálna prehliadka tu : https://youtu.be/t12yYKn6oq8
✨ Čo ponúkame?
Každý z domov je 4-izbový a premyslene riešený tak, aby poskytoval maximálne pohodlie pre rodinný život:
• Veľká obývacia izba spojená s jedálňou a kuchyňou – s výstupom na priestrannú terasu s dychberúcim výhľadom na horu a les.
• Samostatná spálňa a dve detské izby.
• Kúpeľňa so sprchovým kútom – vaňou, WC
• Dom je dvojpodlažný, situovaný vo svahu – spodné podlažie ponúka:
o Dvojgaráž – 40,19 m²
o Technická miestnosť – 20 m²
o Sklad – 11,2 m²
Celková úžitková plocha domu je 137 m² + garážové priestory 40,19 m²
🛠 Technické riešenie:
• Tehlová stavba (30 cm) + zateplenie (20 cm).
• Všetky inžinierske siete: voda, elektrina, kanalizácia.
• Možnosť pripojenia sa na vlastnú studňu.
• Vykurovanie tepelným čerpadlom.
• Domy sa predávajú v štádiu holodom, ale po dohode možnosť dokončenia do štandardu (okrem kuchynskej linky) do 20.000 €.
📍 Lokalita a pozemky:
Domy budú postavené na týchto pozemkoch:
• Parcela č. 1 – 1009 m² – REZERVOVANÉ ✅
• Parcela č. 2 – 730 m²
• Parcela č. 3 – 633 m²
• Parcela č. 4 – 616 m²
• Parcela č. 5 – 578 m²
Prístupová cesta je spevnená a bude zrealizovaná na komplet ihneď po dokončení výstavby.
________________________________________
💶 Cena: 279.000 €
To všetko v prostredí, ktoré si zamilujete. Ranná káva na terase s výhľadom do lesa, spev vtákov, vôňa dreva a čerstvý vzduch… Zátišie pod Horou nie je len o bývaní – je to nový životný štýl.
📞 Neváhajte ma kontaktovať – záujem je vysoký a počet domov je obmedzený!
Začiatok výstavby: máj 2025. Buďte medzi prvými, ktorí si zabezpečia svoje miesto v tomto malebnom kúsku sveta.
Pre viac informácií, alebo dohodnutie obhliadky ma neváhajte kontaktovať Miroslav Jakubkovič na telefónnom čísle 0905 526 254. Teším sa na stretnutie s vami a možnosť ukázať vám tento krásny domov. Pre viac o mne navštívte :
https://miroslavjakubkovic.sk/o-mne
Táto inzercia nie je verejn
|
| |||||||||||||||||||||||||||||||
Kontaktovať inzerenta e-mailom
Kontaktovať e-mailom môže iba overený užívateľ.
Overenie je zadarmo.
Vaše telefónne číslo *
Kontaktovať e-mailom môže iba overený užívateľ.
Overenie je zadarmo.
Vaše telefónne číslo *







