NA PRENÁJOM, KANCELÁRSKE PRIESTORY- UL. VOLGOGRADSKÁ, PREŠOV
- TOP - [28.10. 2025]Zmazať/ Upraviť/ Topovať






























Realitná kancelária RELCOM Vám ponúka na prenájom kancelárske priestory ,nachádzajúce sa na 3. nadzemnom podlaží. Administratívna budova sa nachádza na Volgogradskej ul. číslo 13 v Prešove prešla rekonštrukciou, ktorá zahŕňa kompletnú obnovu fasády so zateplením a nadštandardnou rekonštrukciou vstupnej recepcie.
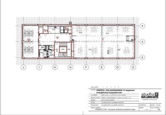
DISPOZÍCIA, VÝMERA A TECHNICKÉ PARAMETRE:
Podlahová plocha celej budovy - 8500 m2
Prenajímateľná plocha - 700 m2
Vyhradené parkovanie na parkovisku priamo pred budovou za rampou
Možnosť prenájmu kancelárskych priestorov aj v nasledujúcich rozlohách: 424,08m2, 73,25m2, 25,76m2,56,65m2, 61,92m2, 300m2,1300m2,2000,m2
IS:
-Eli - samostatné trafo
-Plyn - samostatná plynová kotolňa zabezpečujúca kúrenie
-Mestská voda
-TUV je riešená bojlermi
-Kanalizácia
Administratívna budova prešla rekonštrukciou:
-výmena plastových okien
-elektroinštalácia
-výmena výťahu
-zníženie stropov
-úprava sociálnych zariadení
-podlahy v kanceláriách
-dlažby na chodbách
-klimatizačné jednotky a pod.
LOKALITA A OBČIANSKA VYBAVENOSŤ
Poloha danej budovy je strategická z pohľadu napojenia na infraštruktúru, a teda diaľnicu D1 v smere na Bratislavu ako aj obchvatu, ktorý vedie k dialnici v smere na Košice a zároveň blízkosti hraníc Maďarska, Poľska a Ukrajiny. Vynikajúca je aj poloha vramci mesta Prešov, nakoľko sa nachádza vo frekventovanej časti v blízkosti centra mesta.
CENA
Od 10,90€ / m2 / mesiac bez DPH - v závislosti od veľkosti a finálneho štandardu kancelárie
V prípade záujmu o bližšie informácie ma neváhajte kontaktovať na tel. čísle +421 903 435 644 – Jana Jaššová, Realitná kancelária RELCOM – Licencovaná kancelária
Dodatok k cene: , +DPH
Obytná plocha: 700m²
Celková rozloha: 700m²
Úžitková plocha: 700m²
Vlastníctvo: firemné
Stav: po rekonštrukcii
Internet: optika
Výťah: áno
Parkovanie: vlastné vyhradené
Zariadenie: nezariadený
Zateplený objekt: áno
Klimatizácia: áno
Bezbariérový prístup : áno
Okná: plastové
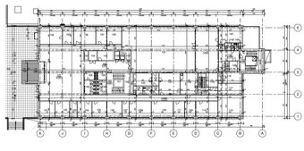
DISPOZÍCIA, VÝMERA A TECHNICKÉ PARAMETRE:
Podlahová plocha celej budovy - 8500 m2
Prenajímateľná plocha - 700 m2
Vyhradené parkovanie na parkovisku priamo pred budovou za rampou
Možnosť prenájmu kancelárskych priestorov aj v nasledujúcich rozlohách: 424,08m2, 73,25m2, 25,76m2,56,65m2, 61,92m2, 300m2,1300m2,2000,m2
IS:
-Eli - samostatné trafo
-Plyn - samostatná plynová kotolňa zabezpečujúca kúrenie
-Mestská voda
-TUV je riešená bojlermi
-Kanalizácia
Administratívna budova prešla rekonštrukciou:
-výmena plastových okien
-elektroinštalácia
-výmena výťahu
-zníženie stropov
-úprava sociálnych zariadení
-podlahy v kanceláriách
-dlažby na chodbách
-klimatizačné jednotky a pod.
LOKALITA A OBČIANSKA VYBAVENOSŤ
Poloha danej budovy je strategická z pohľadu napojenia na infraštruktúru, a teda diaľnicu D1 v smere na Bratislavu ako aj obchvatu, ktorý vedie k dialnici v smere na Košice a zároveň blízkosti hraníc Maďarska, Poľska a Ukrajiny. Vynikajúca je aj poloha vramci mesta Prešov, nakoľko sa nachádza vo frekventovanej časti v blízkosti centra mesta.
CENA
Od 10,90€ / m2 / mesiac bez DPH - v závislosti od veľkosti a finálneho štandardu kancelárie
V prípade záujmu o bližšie informácie ma neváhajte kontaktovať na tel. čísle +421 903 435 644 – Jana Jaššová, Realitná kancelária RELCOM – Licencovaná kancelária
Dodatok k cene: , +DPH
Obytná plocha: 700m²
Celková rozloha: 700m²
Úžitková plocha: 700m²
Vlastníctvo: firemné
Stav: po rekonštrukcii
Internet: optika
Výťah: áno
Parkovanie: vlastné vyhradené
Zariadenie: nezariadený
Zateplený objekt: áno
Klimatizácia: áno
Bezbariérový prístup : áno
Okná: plastové
|
| |||||||||||||||||||||||||||||||
Kontaktovať inzerenta e-mailom
Kontaktovať e-mailom môže iba overený užívateľ.
Overenie je zadarmo.
Vaše telefónne číslo *
Kontaktovať e-mailom môže iba overený užívateľ.
Overenie je zadarmo.
Vaše telefónne číslo *
Podobné inzeráty
KANCELÁRSKE- PRIESTORY-NA PRENÁJOM, UL. VOLGOGRADSKÁ, PREŠOV - TOP - [28.10. 2025]Realitná kancelária RELCOM Vám ponúka na prenájom kancelárske priestory ,nachádzajúce sa na 3.nadzemnom podlaží. Administratívna budova sa nachádza na Volgogradskej ul. číslo 13 v Prešove prešla rekonštrukciou, ktorá zahŕňa kompletnú obnovu fasády so zateplením a nadštandardnou rekonštrukciou vstup ...
11 €
Prešov
080 01
080 01
24 x
Označiť zlý inzerát Chybnú kategóriu Ohodnotiť užívateľa Zmazať/Upraviť/Topovať
ADMINISTRATÍVNE -PRIESTORY- UL. OKRAJOVÁ, PREŠOV - TOP - [28.10. 2025]Realitná kancelária RELCOM Vám ponúka na prenájom administratívne priestory, ktoré sú situované na ul. Okrajová č. 33 v Prešove.
Odkaz na video: https://youtube.com/watch?v=jG48TzasRq0
DISPOZÍCIA, VÝMERA A TECHNICKÉ PARAMETRE:
Administratívne priestory - 590 m2
Možnosť prenájmu ako celo ...
9 €
Prešov
080 01
080 01
226 x
Označiť zlý inzerát Chybnú kategóriu Ohodnotiť užívateľa Zmazať/Upraviť/Topovať
ADMINISTRATÍVNE PRIESTORY- UL. OKRAJOVÁ, PREŠOV - TOP - [28.10. 2025]Realitná kancelária RELCOM Vám ponúka na prenájom administratívnu budovu so vstupom foyer , ktoré sú situované na ul. Okrajová č. 33 v Prešove.
Odkaz na video: https://youtube.com/watch?v=jG48TzasRq0&t=4s
DISPOZÍCIA, VÝMERA A TECHNICKÉ PARAMETRE:
Administratívne priestory - 1175,17 m2
M ...
9 €
Prešov
080 01
080 01
223 x
Označiť zlý inzerát Chybnú kategóriu Ohodnotiť užívateľa Zmazať/Upraviť/Topovať
NA PRENÁJOM, KANCELÁRSKE PRIESTORY , UL. VOLGOGRADSKÁ, PREŠO - TOP - [28.10. 2025]Realitná kancelária RELCOM Vám ponúka na prenájom kancelárske priestory. Administratívna budova sa nachádza na Volgogradskej ul. číslo 13 v Prešove prešla rekonštrukciou, ktorá zahŕňa kompletnú obnovu fasády so zateplením a nadštandardnou rekonštrukciou vstupnej recepcie.
DISPOZÍCIA, VÝMERA A ...
11 €
Prešov
080 01
080 01
14 x
Označiť zlý inzerát Chybnú kategóriu Ohodnotiť užívateľa Zmazať/Upraviť/Topovať
Prenájom kancelária 30 m2, Prešov, Františkánske námestie - [21.10. 2025]Ponúkame na prenájom kancelárske priestory v Prešove, centrum, Františkánske námestie, v administratívnej 2 -podlažnej budove. K dispozícii na prenájom je kancelária o veľkosti 30 m2.
ZÁKLADNÉ INFORMÁCIE:
- priestory po rekonštrukcii
- k dispozícii sociálne zariadenie, eko ...
9 €
Prešov
080 01
080 01
232 x
Označiť zlý inzerát Chybnú kategóriu Ohodnotiť užívateľa Zmazať/Upraviť/Topovať
Prenájom kancelária 40 m2, Prešov, Františkánske námestie - [21.10. 2025]Ponúkame na prenájom kancelárske priestory v Prešove, centrum, Františkánske námestie, v administratívnej 2 -podlažnej budove. K dispozícii na prenájom je kancelária o veľkosti 40 m2.
ZÁKLADNÉ INFORMÁCIE:
- priestory po rekonštrukcii
- k dispozícii je zabudovaná kuchy ...
9 €
Prešov
080 01
080 01
229 x
Označiť zlý inzerát Chybnú kategóriu Ohodnotiť užívateľa Zmazať/Upraviť/Topovať
✳️ Kancelárske priestory, 2 spojené miestnosti, plocha 55 m2 - [16.10. 2025]Ak hľadáte nový priestor pre Vaše aktivity v centre nášho krajského mesta, ponúkame Vám na prenájom kancelárske priestory v modernej administratívnej budove, situovanej v historickom centre mesta Prešov.
Priestory sa nachádzajú na 1. poschodí, pričom v budove je aj výťah.
Krátke predstavenie pri ...
8 €
Prešov
080 01
080 01
78 x
Označiť zlý inzerát Chybnú kategóriu Ohodnotiť užívateľa Zmazať/Upraviť/Topovať
✳️ Kancelárie na prenájom – 15 m2 a 31 m2, Prešov – centrum. - [16.10. 2025]Ponúkame Vám na prenájom samostatné kancelárske priestory v modernej administratívnej budove, situovanej v historickom centre mesta Prešov.
Priestory sa nachádzajú na 2. a 3. poschodí, pričom v budove je výťah.
✳️ POPIS PRIESTOROV
- kancelárie s výmerou 15 m2 a 31 m2
- 2. a 3. poschodie – d ...
8 €
Prešov
080 01
080 01
139 x
Označiť zlý inzerát Chybnú kategóriu Ohodnotiť užívateľa Zmazať/Upraviť/Topovať
Administratívna budova na prenájom / predaj v centre Prešova - [14.10. 2025]PONUKA NA PRENÁJOM NEHNUTEĽNOSTI – PREVÁDZKOVÁ BUDOVA, PREŠOV
Ponúkame na predaj prevádzkovo - administratívnu budova v Prešove, ktorá sa nachádza na Masarykovej ulici.
Základné informácie o nehnuteľnosti:
Typ: Prevádzková budova
Lokalita: Masarykova ulica č. 22 , Prešov 080 01
...
7 €
Prešov
080 01
080 01
84 x
Označiť zlý inzerát Chybnú kategóriu Ohodnotiť užívateľa Zmazať/Upraviť/Topovať
Na prenájom ambulancia pre lekára - [14.10. 2025]PhDr.Erika Majorošová Diamond Reality Prešov s.r.o. na prenájom klimatizované priestory v novo vybudovanom súkromnom zdravotnom zariaden pre všeobecnú alebo odbornú ambulanciu
Ponukám na prenájom tieto krásne, exkluzívne, nové, klimatizované a ...
10 €
Prešov
080 01
080 01
297 x
Označiť zlý inzerát Chybnú kategóriu Ohodnotiť užívateľa Zmazať/Upraviť/Topovať









