Prenájom moderného objektu – Šaľa Veča hlavný ťah BA–NZ
- [21.10. 2025]Zmazať/ Upraviť/ Topovať











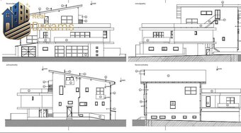
Ponúkame na prenájom moderný polyfunkčný objekt, so samostatnými bytovými jednotkami. Objekt je plne vybavený a vhodný pre rôzne účely – od ubytovania až po kancelárie, obchod či gastro prevádzku.
Aktuálne slúži ako plne funkčné ubytovacie zariadenie s kapacitou až 50 osôb (3 apartmány + 19 izieb).
Flexibilný priestor s veľkým potenciálom
Budova je postavená s dôrazom na variabilitu a nízke prevádzkové náklady. Vďaka samonosnej monolitickej konštrukcii je možné vnútorné priečky jednoducho prispôsobiť:
Komerčné alebo obchodné priestory – svetlá výška 3 m, vstupná šírka 2,5 m, ideálne pre služby, showroom, kancelárie či gastro prevádzku
Bytový dom s 10–14 bytmi – skvelá investičná príležitosť
Kombinácia bývania a podnikania – vlastné bývanie + prenájom časti objektu
Technické vybavenie
Samonosné, monolitické stropy (zateplené)
Podlahové kúrenie, 2× plynový kotol Junkers
Klimatizované priestory
Skolaudované parkovisko pre 17–20 áut
Skolaudovaná vodná stavba – odlučovač ropných látok (vhodné pre motoristické služby alebo gastro sektor)
Lokalita
Objekt sa nachádza v okresnom meste Šaľa, na strategickom ťahu Bratislava – Nové Zámky, iba 20 minút od Nitry. Bezprostredná blízkosť kompletnej občianskej vybavenosti, dobrá viditeľnosť z hlavnej cesty a vysoká frekvencia áut robia z tejto nehnuteľnosti výnimočnú príležitosť pre podnikateľov a firmy.
Ideálne pre: podnikateľov, investorov, developera, ubytovateľa alebo kohokoľvek, kto hľadá moderný priestor s flexibilným využitím
Pre bližšie informácie a obhliadku nás neváhajte kedykoľvek kontaktovať 0904 949 536
Aktuálne slúži ako plne funkčné ubytovacie zariadenie s kapacitou až 50 osôb (3 apartmány + 19 izieb).
Flexibilný priestor s veľkým potenciálom
Budova je postavená s dôrazom na variabilitu a nízke prevádzkové náklady. Vďaka samonosnej monolitickej konštrukcii je možné vnútorné priečky jednoducho prispôsobiť:
Komerčné alebo obchodné priestory – svetlá výška 3 m, vstupná šírka 2,5 m, ideálne pre služby, showroom, kancelárie či gastro prevádzku
Bytový dom s 10–14 bytmi – skvelá investičná príležitosť
Kombinácia bývania a podnikania – vlastné bývanie + prenájom časti objektu
Technické vybavenie
Samonosné, monolitické stropy (zateplené)
Podlahové kúrenie, 2× plynový kotol Junkers
Klimatizované priestory
Skolaudované parkovisko pre 17–20 áut
Skolaudovaná vodná stavba – odlučovač ropných látok (vhodné pre motoristické služby alebo gastro sektor)
Lokalita
Objekt sa nachádza v okresnom meste Šaľa, na strategickom ťahu Bratislava – Nové Zámky, iba 20 minút od Nitry. Bezprostredná blízkosť kompletnej občianskej vybavenosti, dobrá viditeľnosť z hlavnej cesty a vysoká frekvencia áut robia z tejto nehnuteľnosti výnimočnú príležitosť pre podnikateľov a firmy.
Ideálne pre: podnikateľov, investorov, developera, ubytovateľa alebo kohokoľvek, kto hľadá moderný priestor s flexibilným využitím
Pre bližšie informácie a obhliadku nás neváhajte kedykoľvek kontaktovať 0904 949 536
|
|
Kontaktovať inzerenta e-mailom
Kontaktovať e-mailom môže iba overený užívateľ.
Overenie je zadarmo.
Vaše telefónne číslo *
Kontaktovať e-mailom môže iba overený užívateľ.
Overenie je zadarmo.
Vaše telefónne číslo *
Podobné inzeráty

Realitná kancelária RE/MAX Vám ponúka na prenájom výnimočný polyfunkčný objekt, ktorý je aktuálne prevádzkovaný ako ubytovacie zariadenie. Táto nehnuteľnosť predstavuje skvelú príležitosť pre podnikateľov v oblasti ubytovacích a rekreačných služieb vďaka svojej kapacite, strategickej polohe a variab ...
6 000 €
Šaľa
927 05
927 05
761 x
Označiť zlý inzerát Chybnú kategóriu Ohodnotiť užívateľa Zmazať/Upraviť/Topovať