Novostavba 4- izbového holodomu
- [18.10. 2025]Zmazať/ Upraviť/ Topovať











V ponuke je na predaj moderná 4-izbová novostavba dvojdomu v štádiu holodom na 5-árovom pozemku v novovybudovanej, príjemnej lokalite pri Nitre. Dom je navrhnutý s dôrazom na funkčnosť a komfortné bývanie.
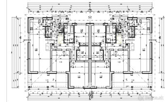
Dispozične pozostáva:
z 3 samostatných izieb
priestrannej kuchyne spojenej s obývačkou, odkiaľ je výstup na slnečnú terasu
špajza pre praktické uskladnenie potravín
šatník pre väčší komfort a úložný priestor
technická miestnosť
kúpeľňa s WC + samostatné WC
Stavba je z kvalitnej tehlovej konštrukcie s 15 cm zateplením. Dom má sedlovú strechu s montovanou betónovou škridlou a väzníkovým krovom. Na pozemku sú všetky inžinierske siete (elektrina, voda, plyn) a žumpa s kapacitou 10 m³.
Okrem výbornej dispozície má dom okná s trojsklom nemecké Salamander, ktoré zabezpečujú výbornú izoláciu a znižujú náklady na vykurovanie. Dom je vybavený podlahovým kúrením, ktoré zabezpečuje rovnomerné rozloženie tepla v celom priestore. Celý dom spĺňa kritériá energetickej triedy A1, čo zaručuje nižšie prevádzkové náklady a vysokú energetickú účinnosť.
Stavba bola dokončená v roku 2024 a čaká na nového majiteľa, ktorý si ju môže dokončiť podľa svojich predstáv.
Bonusom je ideálna juhovýchodná orientácia, ktorá zabezpečuje dostatok denného svetla počas celého dňa a príjemnú atmosféru v obytných priestoroch.
Tento dom sa nachádza v tichej lokalite s výbornou dostupnosťou – len pár minút od diaľnice R1, čo zaručuje rýchly prístup do Nitry. V obci je zabezpečené MHD spojenie, čo ocenia aj tí, ktorí preferujú verejnú dopravu.
Táto nehnuteľnosť ponúka komfortné a moderné bývanie v slnečnom a tichom prostredí pri lese.
Zarezervujte si obhliadku ešte dnes!
Dispozične pozostáva:
z 3 samostatných izieb
priestrannej kuchyne spojenej s obývačkou, odkiaľ je výstup na slnečnú terasu
špajza pre praktické uskladnenie potravín
šatník pre väčší komfort a úložný priestor
technická miestnosť
kúpeľňa s WC + samostatné WC
Stavba je z kvalitnej tehlovej konštrukcie s 15 cm zateplením. Dom má sedlovú strechu s montovanou betónovou škridlou a väzníkovým krovom. Na pozemku sú všetky inžinierske siete (elektrina, voda, plyn) a žumpa s kapacitou 10 m³.
Okrem výbornej dispozície má dom okná s trojsklom nemecké Salamander, ktoré zabezpečujú výbornú izoláciu a znižujú náklady na vykurovanie. Dom je vybavený podlahovým kúrením, ktoré zabezpečuje rovnomerné rozloženie tepla v celom priestore. Celý dom spĺňa kritériá energetickej triedy A1, čo zaručuje nižšie prevádzkové náklady a vysokú energetickú účinnosť.
Stavba bola dokončená v roku 2024 a čaká na nového majiteľa, ktorý si ju môže dokončiť podľa svojich predstáv.
Bonusom je ideálna juhovýchodná orientácia, ktorá zabezpečuje dostatok denného svetla počas celého dňa a príjemnú atmosféru v obytných priestoroch.
Tento dom sa nachádza v tichej lokalite s výbornou dostupnosťou – len pár minút od diaľnice R1, čo zaručuje rýchly prístup do Nitry. V obci je zabezpečené MHD spojenie, čo ocenia aj tí, ktorí preferujú verejnú dopravu.
Táto nehnuteľnosť ponúka komfortné a moderné bývanie v slnečnom a tichom prostredí pri lese.
Zarezervujte si obhliadku ešte dnes!
|
|
Kontaktovať inzerenta e-mailom
Kontaktovať e-mailom môže iba overený užívateľ.
Overenie je zadarmo.
Vaše telefónne číslo *
Kontaktovať e-mailom môže iba overený užívateľ.
Overenie je zadarmo.
Vaše telefónne číslo *