INVESTIČNÁ PRÍLEŽITOSŤ - POZEMOK V HUMENNOM,
- [14.10. 2025]Zmazať/ Upraviť/ Topovať



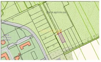
ARCHEUS reality Humenné ponúka na predaj pozemok v príjemnej lokalite v Humennom, sídlisko pod Sokolejom. V blízkosti pozemku sa nachádza bytová výstavba, pozemok je podľa územného plánu určený na výstavbu rodinných domov.
Výmera pozemku je 639m2, rozmery cca 14x45m.
Prístup na pozemok je zabezpečený po plánovanej ceste, vo vlastníctve mesta Humenné.
Vhodný ako investícia.
Okolo sa nachádza množstvo zelene ako aj občianskej vybavenosti. Základná a materská škola, obchody, reštaurácie, kaviarne ako aj ihriská pri okolitých bytovkách.
Naše služby zahŕňajú ARCHEUS balíček - pomocou ktorého vám zabezpečíme všetko potrebné vrátane profesionálneho právneho a finančného poradenstva až po odovzdanie nehnuteľnosti.
Ak máte záujem o obhliadku, prípadne potrebujete viac informácii, nájdete nás v realitnej kancelárií ARCHEUS na Námestí slobody č.25 v Humennom, v nákupnom centre LABOREC, alebo na arvaiova@archeus.sk, 0905 790 696.
Výmera pozemku je 639m2, rozmery cca 14x45m.
Prístup na pozemok je zabezpečený po plánovanej ceste, vo vlastníctve mesta Humenné.
Vhodný ako investícia.
Okolo sa nachádza množstvo zelene ako aj občianskej vybavenosti. Základná a materská škola, obchody, reštaurácie, kaviarne ako aj ihriská pri okolitých bytovkách.
Naše služby zahŕňajú ARCHEUS balíček - pomocou ktorého vám zabezpečíme všetko potrebné vrátane profesionálneho právneho a finančného poradenstva až po odovzdanie nehnuteľnosti.
Ak máte záujem o obhliadku, prípadne potrebujete viac informácii, nájdete nás v realitnej kancelárií ARCHEUS na Námestí slobody č.25 v Humennom, v nákupnom centre LABOREC, alebo na arvaiova@archeus.sk, 0905 790 696.
|
|
Kontaktovať inzerenta e-mailom
Kontaktovať e-mailom môže iba overený užívateľ.
Overenie je zadarmo.
Vaše telefónne číslo *
Kontaktovať e-mailom môže iba overený užívateľ.
Overenie je zadarmo.
Vaše telefónne číslo *
Podobné inzeráty

Stavebný pozemok v obci Brestov. 3 km od mesta Humenné.
Lokalita je umiestnené tak, že súčasne si užijete pokoj vidieka a zároveň budete mať blízko ku všetkým vymoženostiam, ktoré Humenné poskytuje.
Rozloha: 2360m2 (cca 16 spodná časť -20m horná časť x 135m) - Veľkorysá plocha vám umožní reali ...
73 999 €
Humenné
066 01
066 01
33 x
Označiť zlý inzerát Chybnú kategóriu Ohodnotiť užívateľa Zmazať/Upraviť/Topovať

ID:2836
Ponúkame na predaj priestranný investičný pozemok v obci Zubné, 19 km od Humenného:
- jedná sa o rozľahlý pozemok s celkovou rozlohou 7 579 m² v intraviláne obce Zubné,
- pozemok má v prednej časti šírku približne 85 metrov a nachádza sa na ňom aj starší rodinný dom v pôvodnom stave,
...
62 900 €
Humenné
066 01
066 01
407 x
Označiť zlý inzerát Chybnú kategóriu Ohodnotiť užívateľa Zmazať/Upraviť/Topovať

ID:2642
Ponúkame na predaj pozemok so starým rodinným domčekom v obci Hažín nad Cirochou:
- jedná sa o príjemnú obec v blízkosti Humenného,
- vzdialenosť od mesta predstavuje len 5 km,
- pozemok je situovaný v zastavanej časti obce medzi rodinnými domami,
- je vhodný na výstavbu rodinn ...
29 900 €
Humenné
066 01
066 01
398 x
Označiť zlý inzerát Chybnú kategóriu Ohodnotiť užívateľa Zmazať/Upraviť/Topovať

ARCHEUS REALITY Humenné ponúka EXKLUZÍVNE na predaj - pozemok na výstavbu Rodinného domu v meste Humenné.
Pozemok je situovaný v tichej lokalite (mimo hlavnej cesty):
- ide o rovinatý a slnečný pozemok
- rozloha pozemku 760 m2
- druh pozemku - orná pôda
- inžinierske siete v ...
32 000 €
Humenné
066 01
066 01
377 x
Označiť zlý inzerát Chybnú kategóriu Ohodnotiť užívateľa Zmazať/Upraviť/Topovať

EXKLUZÍVNE ponúkame na predaj - široký, rovinatý pozemok na výstavbu Rodinného domu v obci Jasenov, výmera 1024 m2.
Pozemok je situovaný vo výbornej lokalite obce - mimo hlavnej cesty:
- ide o rovinatý a slnečný pozemok
- rozloha pozemku 1024 m2 rozmer: šírka 54 m x dĺžka 20 m
- druh po ...
49 990 €
Humenné
066 01
066 01
332 x
Označiť zlý inzerát Chybnú kategóriu Ohodnotiť užívateľa Zmazať/Upraviť/Topovať

ID:8075
Ponúkame Vám na predaj pozemok v meste Humenné:
- pozemok sa nachádza v lokalite Kudlovce,
- veľmi pekné, tiché prostredie v blízkosti záhradkárskej oblasti,
- výmera pozemku je cca 3 á,
- je vhodný na výstavbu menšieho domčeka al. rekreačnej nehnuteľnosti,
- všetky inžiniers ...
29 900 €
Humenné
066 01
066 01
86 x
Označiť zlý inzerát Chybnú kategóriu Ohodnotiť užívateľa Zmazať/Upraviť/Topovať

ID:7997
Ponúkame Vám na predaj pozemok v blízkosti Humenného:
- obec je vzdialená len 13 km od mesta Humenné a disponuje veľmi dobrou občianskou vybavenosťuou – škola, škôlka, potraviny, pošta a iné,
- pozemok je situovaný v pokojnej časti mimo hlavnej cesty,
- je rovinatý, vhodný na výsta ...
33 900 €
Humenné
066 01
066 01
65 x
Označiť zlý inzerát Chybnú kategóriu Ohodnotiť užívateľa Zmazať/Upraviť/Topovať

ID:2629
Ponúkame na predaj pozemok pre rodinný dom len na skok od Humenného:
- pozemok sa nachádza v príjemnej obci s dobrou OV a infraštruktúrou,
- obec má výhodnú polohu v západnej časti Humenského okresu a dobré komunikačné spojenie s okresným mestom Humenné od ktorého je vzdialená len 7 k ...
65 500 €
Humenné
066 01
066 01
215 x
Označiť zlý inzerát Chybnú kategóriu Ohodnotiť užívateľa Zmazať/Upraviť/Topovať

ID:7410
Ponúkame na predaj pozemok v intraviláne obce Kochanovce:
- obec sa nachádza len 4 km od okresného mesta Humenné, a ponúka výbornú občiansku vybavenosť a krásnu okolitú prírodu,
- pozemok je rovinatý, vhodný na výstavbu rodinného domu,
- k dispozícii sú na pozemku všetky inžiniersk ...
49 900 €
Humenné
066 01
066 01
438 x
Označiť zlý inzerát Chybnú kategóriu Ohodnotiť užívateľa Zmazať/Upraviť/Topovať

Typ: Pozemky - pre rodinné domy
Obec: Jasenov
Realitná kancelária Finanzpartner reality Vám ponúka na predaj krásny a slnečný pozemok v tichej uličke obce Jasenov, len 2 km od mesta Humenné. Pozemok má ideálne rozmery 11m × 60m, čo ponúka skvelý priestor pre výstavbu rodinného dom ...
33 000 €
Humenné
066 01
066 01
571 x
Označiť zlý inzerát Chybnú kategóriu Ohodnotiť užívateľa Zmazať/Upraviť/Topovať