PREDAJ - SLNEČNÝ POZEMOK V JASENOVE – IDEÁLNE MIESTO PRE VÁŠ
- TOP - [18.10. 2025]Zmazať/ Upraviť/ Topovať



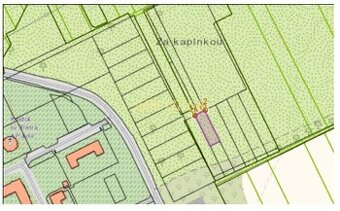
Typ: Pozemky - pre rodinné domy
Obec: Jasenov
Realitná kancelária Finanzpartner reality Vám ponúka na predaj krásny a slnečný pozemok v tichej uličke obce Jasenov, len 2 km od mesta Humenné. Pozemok má ideálne rozmery 11m × 60m, čo ponúka skvelý priestor pre výstavbu rodinného domu aj záhradu.
Hlavné výhody:
Výborná poloha – pokojná lokalita v blízkosti lesa a lúk
Krásne výhľady na okolitú prírodu
Inžinierske siete v tesnej blízkosti pozemku
Voľnočasové aktivity – turistika, cykloturistika, hubárčenie, relax v prírode
Rýchla dostupnosť – iba pár minút do centra Humenného
Pozemok je ideálny pre tých, ktorí hľadajú pokoj, prírodu a súkromie, no zároveň nechcú byť ďaleko od mesta.
****
RK Finanzpartner k predaju tejto nehnuteľnosti bezplatne vypracuje kompletnú zmluvnú dokumentáciu a postará sa o bezproblémový prevod vlastníckych práv na katastri.
V prípade potreby, bez akýchkoľvek ďalších poplatkov, zabezpečíme kupujúcej strane to najvýhodnejšie financovanie a poistenie nehnuteľnosti.
Kontakt:
Ing. Štefan Čurilla
0910 864 252
stefan.curilla@fpreality.sk
Finanzpartner reality
Status: aktívne
Vlastníctvo: osobné
Celková plocha: 654 m2
Plocha pozemku: 654 m2
El. napätie: 230/400V
Voda: verejný vodovod
Inžinierske siete: áno
Kanalizácia: áno
Plyn: nie
Obec: Jasenov
Realitná kancelária Finanzpartner reality Vám ponúka na predaj krásny a slnečný pozemok v tichej uličke obce Jasenov, len 2 km od mesta Humenné. Pozemok má ideálne rozmery 11m × 60m, čo ponúka skvelý priestor pre výstavbu rodinného domu aj záhradu.
Hlavné výhody:
Výborná poloha – pokojná lokalita v blízkosti lesa a lúk
Krásne výhľady na okolitú prírodu
Inžinierske siete v tesnej blízkosti pozemku
Voľnočasové aktivity – turistika, cykloturistika, hubárčenie, relax v prírode
Rýchla dostupnosť – iba pár minút do centra Humenného
Pozemok je ideálny pre tých, ktorí hľadajú pokoj, prírodu a súkromie, no zároveň nechcú byť ďaleko od mesta.
****
RK Finanzpartner k predaju tejto nehnuteľnosti bezplatne vypracuje kompletnú zmluvnú dokumentáciu a postará sa o bezproblémový prevod vlastníckych práv na katastri.
V prípade potreby, bez akýchkoľvek ďalších poplatkov, zabezpečíme kupujúcej strane to najvýhodnejšie financovanie a poistenie nehnuteľnosti.
Kontakt:
Ing. Štefan Čurilla
0910 864 252
stefan.curilla@fpreality.sk
Finanzpartner reality
Status: aktívne
Vlastníctvo: osobné
Celková plocha: 654 m2
Plocha pozemku: 654 m2
El. napätie: 230/400V
Voda: verejný vodovod
Inžinierske siete: áno
Kanalizácia: áno
Plyn: nie
|
|
Kontaktovať inzerenta e-mailom
Kontaktovať e-mailom môže iba overený užívateľ.
Overenie je zadarmo.
Vaše telefónne číslo *
Kontaktovať e-mailom môže iba overený užívateľ.
Overenie je zadarmo.
Vaše telefónne číslo *
Podobné inzeráty

ID:2836
Ponúkame na predaj priestranný investičný pozemok v obci Zubné, 19 km od Humenného:
- jedná sa o rozľahlý pozemok s celkovou rozlohou 7 579 m² v intraviláne obce Zubné,
- pozemok má v prednej časti šírku približne 85 metrov a nachádza sa na ňom aj starší rodinný dom v pôvodnom stave,
...
62 900 €
Humenné
066 01
066 01
366 x
Označiť zlý inzerát Chybnú kategóriu Ohodnotiť užívateľa Zmazať/Upraviť/Topovať

ID:2642
Ponúkame na predaj pozemok so starým rodinným domčekom v obci Hažín nad Cirochou:
- jedná sa o príjemnú obec v blízkosti Humenného,
- vzdialenosť od mesta predstavuje len 5 km,
- pozemok je situovaný v zastavanej časti obce medzi rodinnými domami,
- je vhodný na výstavbu rodinn ...
29 900 €
Humenné
066 01
066 01
349 x
Označiť zlý inzerát Chybnú kategóriu Ohodnotiť užívateľa Zmazať/Upraviť/Topovať

ARCHEUS reality Humenné ponúka na predaj pozemok v príjemnej lokalite v Humennom, sídlisko pod Sokolejom. V blízkosti pozemku sa nachádza bytová výstavba, pozemok je podľa územného plánu určený na výstavbu rodinných domov.
Výmera pozemku je 639m2, rozmery cca 14x45m.
Prístup na poze ...
39 990 €
Humenné
066 01
066 01
300 x
Označiť zlý inzerát Chybnú kategóriu Ohodnotiť užívateľa Zmazať/Upraviť/Topovať

ARCHEUS REALITY Humenné ponúka EXKLUZÍVNE na predaj - pozemok na výstavbu Rodinného domu v meste Humenné.
Pozemok je situovaný v tichej lokalite (mimo hlavnej cesty):
- ide o rovinatý a slnečný pozemok
- rozloha pozemku 760 m2
- druh pozemku - orná pôda
- inžinierske siete v ...
32 000 €
Humenné
066 01
066 01
336 x
Označiť zlý inzerát Chybnú kategóriu Ohodnotiť užívateľa Zmazať/Upraviť/Topovať

EXKLUZÍVNE ponúkame na predaj - široký, rovinatý pozemok na výstavbu Rodinného domu v obci Jasenov, výmera 1024 m2.
Pozemok je situovaný vo výbornej lokalite obce - mimo hlavnej cesty:
- ide o rovinatý a slnečný pozemok
- rozloha pozemku 1024 m2 rozmer: šírka 54 m x dĺžka 20 m
- druh po ...
49 990 €
Humenné
066 01
066 01
307 x
Označiť zlý inzerát Chybnú kategóriu Ohodnotiť užívateľa Zmazať/Upraviť/Topovať

ID:8075
Ponúkame Vám na predaj pozemok v meste Humenné:
- pozemok sa nachádza v lokalite Kudlovce,
- veľmi pekné, tiché prostredie v blízkosti záhradkárskej oblasti,
- výmera pozemku je cca 3 á,
- je vhodný na výstavbu menšieho domčeka al. rekreačnej nehnuteľnosti,
- všetky inžiniers ...
29 900 €
Humenné
066 01
066 01
65 x
Označiť zlý inzerát Chybnú kategóriu Ohodnotiť užívateľa Zmazať/Upraviť/Topovať

ID:7997
Ponúkame Vám na predaj pozemok v blízkosti Humenného:
- obec je vzdialená len 13 km od mesta Humenné a disponuje veľmi dobrou občianskou vybavenosťuou – škola, škôlka, potraviny, pošta a iné,
- pozemok je situovaný v pokojnej časti mimo hlavnej cesty,
- je rovinatý, vhodný na výsta ...
33 900 €
Humenné
066 01
066 01
49 x
Označiť zlý inzerát Chybnú kategóriu Ohodnotiť užívateľa Zmazať/Upraviť/Topovať

ID:2629
Ponúkame na predaj pozemok pre rodinný dom len na skok od Humenného:
- pozemok sa nachádza v príjemnej obci s dobrou OV a infraštruktúrou,
- obec má výhodnú polohu v západnej časti Humenského okresu a dobré komunikačné spojenie s okresným mestom Humenné od ktorého je vzdialená len 7 k ...
65 500 €
Humenné
066 01
066 01
192 x
Označiť zlý inzerát Chybnú kategóriu Ohodnotiť užívateľa Zmazať/Upraviť/Topovať

ID:7410
Ponúkame na predaj pozemok v intraviláne obce Kochanovce:
- obec sa nachádza len 4 km od okresného mesta Humenné, a ponúka výbornú občiansku vybavenosť a krásnu okolitú prírodu,
- pozemok je rovinatý, vhodný na výstavbu rodinného domu,
- k dispozícii sú na pozemku všetky inžiniersk ...
49 900 €
Humenné
066 01
066 01
420 x
Označiť zlý inzerát Chybnú kategóriu Ohodnotiť užívateľa Zmazať/Upraviť/Topovať

Typ: Pozemky - bytová výstavba
Obec: Brestov
F022-14-STECa
Finanzpartner reality vám ponúka na predaj stavebný pozemok v intraviláne obce Brestov v bočnej uličke mimo hlavnej cesty.
POZEMOK A JEHO VYUŽITIE
• rovinatý, slnečný, s prístupom na všetky inžinierske siete,
• prístup na pozemok je pri ...
17 500 €
Humenné
066 01
066 01
519 x
Označiť zlý inzerát Chybnú kategóriu Ohodnotiť užívateľa Zmazať/Upraviť/Topovať