Na predaj novostavba - 5 izbový poschodový rodinný dom, 378
- [5.10. 2025]Zmazať/ Upraviť/ Topovať











DASH reality vám ponúka na predaj nízkoenergetický 5 izbový poschodový rodinný dom, v novo vybudovanej lokalite v Trenčíne, časť Záblatie, ulica Lúčky, v tesnej blízkosti mesta Trenčín.
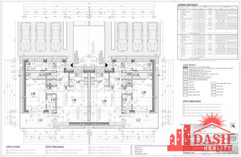
Rodinný dom je združený do stavebného objektu - Dvojdom, ktorý sa skladá z dvoch identických rodinných domov. Rozdiel medzi nimi je iba v tom, že sú zrkadlovo otočené.
Domy sú prístupné z existujúcej, novo vybudovanej asfaltovej verejnej komunikácie s chodníkmi.
Každý dom tvorí samostatný dilatačný celok, domy sú od seba staticky nezávislé a na celej ploche sú oddelené požiarnymi deliacimi konštrukciami. Každý rodinný dom je posudzovaný podľa § 94 vyhl. MV SR č. 94/2004 ako samostatný rodinný dom (t. j. stavba na bývanie skupiny A s jednou bytovou jednotkou).
Dom je postavený na rovinatom pozemku, je napojený na všetky inžinierske siete: elektrina, plyn, voda, kanalizácia.
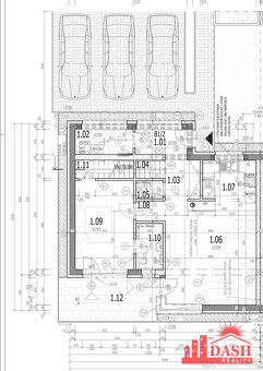
Celková rozloha pozemku je 376 m2, úžitková plocha 131 m2 + balkńy a terasa.
DISPOZIČNÉ RIEŠENIE:
Prízemie:
zádverie, chodba, spálňa – s výstupom na terasu, kúpeľňa, samostatné WC, technická miestnosť, obývačka s jedálňou – výstup na terasu, kuchyňa, schodisko, šatník.
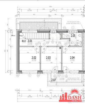
Poschodie:
Detská izba – 3x – z jednej izby východ na balkón, kúpeľňa s WC.
V CENE JE ZAHRNUTÉ:
● predpríprava na krb, predpríprava na vonkajšie žáluzie, predpríprava na klimatizáciu, predpríprava na alarm
● interiér – holodom - obvodové steny a priečky, dokončené všetky rozvody elektriky, vody, odpadu, plynu, podlahové kúrenie, omietky, biela maľovka, predpríprava na krb
● exteriér – kompletné dokončenie stavby - fasáda, zateplenie, strecha, plastové okná, spevnené plochy zo zámkovej dlažby, terénne úpravy, oplotenie pozemku.
Pred domom je vydlaždená plocha pre 3 parkovacie miesta.
Použité materiály:
Porotherm 300 mm + 200 mm zateplenie, plastové okná s trojsklom, Vykurovanie domu je teplovodné, podlahové, v kúpeľni bude rebríkový radiátor.
Ohrev vody a vykurovanie bude zabezpečovať tepelné čerpadlo Vaillant uni tower plus. Vnútorná jednotka obsahuje 185 l zásobníkový ohrievač vody. Energetický certifikát A1.
Predpokladaný dátum dokončenia je koniec roka 2025.
V okolí úplná občianska vybavenosť.
V cene je aj kompletný servis - vyhotovenie kúpnych zmlúv a návrhu na vklad právnikom, zaplatíme poplatok na katastri (100 Eur), vybavenie financovania s najlepšími finančnými podmienkami na trhu, spolupracujeme so všetkými bankami. Viac info v RK! Kontakt na makléra: 0948 014 108.
Rodinný dom je združený do stavebného objektu - Dvojdom, ktorý sa skladá z dvoch identických rodinných domov. Rozdiel medzi nimi je iba v tom, že sú zrkadlovo otočené.
Domy sú prístupné z existujúcej, novo vybudovanej asfaltovej verejnej komunikácie s chodníkmi.
Každý dom tvorí samostatný dilatačný celok, domy sú od seba staticky nezávislé a na celej ploche sú oddelené požiarnymi deliacimi konštrukciami. Každý rodinný dom je posudzovaný podľa § 94 vyhl. MV SR č. 94/2004 ako samostatný rodinný dom (t. j. stavba na bývanie skupiny A s jednou bytovou jednotkou).
Dom je postavený na rovinatom pozemku, je napojený na všetky inžinierske siete: elektrina, plyn, voda, kanalizácia.
Celková rozloha pozemku je 376 m2, úžitková plocha 131 m2 + balkńy a terasa.
DISPOZIČNÉ RIEŠENIE:
Prízemie:
zádverie, chodba, spálňa – s výstupom na terasu, kúpeľňa, samostatné WC, technická miestnosť, obývačka s jedálňou – výstup na terasu, kuchyňa, schodisko, šatník.
Poschodie:
Detská izba – 3x – z jednej izby východ na balkón, kúpeľňa s WC.
V CENE JE ZAHRNUTÉ:
● predpríprava na krb, predpríprava na vonkajšie žáluzie, predpríprava na klimatizáciu, predpríprava na alarm
● interiér – holodom - obvodové steny a priečky, dokončené všetky rozvody elektriky, vody, odpadu, plynu, podlahové kúrenie, omietky, biela maľovka, predpríprava na krb
● exteriér – kompletné dokončenie stavby - fasáda, zateplenie, strecha, plastové okná, spevnené plochy zo zámkovej dlažby, terénne úpravy, oplotenie pozemku.
Pred domom je vydlaždená plocha pre 3 parkovacie miesta.
Použité materiály:
Porotherm 300 mm + 200 mm zateplenie, plastové okná s trojsklom, Vykurovanie domu je teplovodné, podlahové, v kúpeľni bude rebríkový radiátor.
Ohrev vody a vykurovanie bude zabezpečovať tepelné čerpadlo Vaillant uni tower plus. Vnútorná jednotka obsahuje 185 l zásobníkový ohrievač vody. Energetický certifikát A1.
Predpokladaný dátum dokončenia je koniec roka 2025.
V okolí úplná občianska vybavenosť.
V cene je aj kompletný servis - vyhotovenie kúpnych zmlúv a návrhu na vklad právnikom, zaplatíme poplatok na katastri (100 Eur), vybavenie financovania s najlepšími finančnými podmienkami na trhu, spolupracujeme so všetkými bankami. Viac info v RK! Kontakt na makléra: 0948 014 108.
|
|
Kontaktovať inzerenta e-mailom
Kontaktovať e-mailom môže iba overený užívateľ.
Overenie je zadarmo.
Vaše telefónne číslo *
Kontaktovať e-mailom môže iba overený užívateľ.
Overenie je zadarmo.
Vaše telefónne číslo *
Podobné inzeráty

Typ: Rodinný dom
Ulica: Hanzlíkovská
Mestská časť: Orlové
Obec: Trenčín
Moderný maklér ponúka na predaj dvojpodlažný, kompletne zrekonštruovaný 4-izbový rodinný dom v príjemnej a tichej lokalite Trenčín – Hanzlíkovská ulica. Dom Vás osloví svojou útulnou rodinnou atmosférou, priestranným ...
399 000 €
Trenčín
911 01
911 01
165 x
Označiť zlý inzerát Chybnú kategóriu Ohodnotiť užívateľa Zmazať/Upraviť/Topovať

Typ: Rodinný dom
Ulica: Hanzlíkovská
Mestská časť: Orlové
Obec: Trenčín
Moderný maklér ponúka na predaj dvojpodlažný, kompletne zrekonštruovaný 4-izbový rodinný dom v príjemnej a tichej lokalite Trenčín – Hanzlíkovská ulica. Dom Vás osloví svojou útulnou rodinnou atmosférou, priestranným ...
399 000 €
Trenčín
911 01
911 01
188 x
Označiť zlý inzerát Chybnú kategóriu Ohodnotiť užívateľa Zmazať/Upraviť/Topovať

IBA U NÁS! RADO Reality ponúka na predaj dvojgeneračný rodinný dom v Trenčíne na ulici Kpt. Jaroša
Dom je ideálny pre viacgeneračné bývanie, prípadne ako investičná nehnuteľnosť s možnosťou prenájmu dvoch samostatných bytových jednotiek.
Je postavený z tehál a v pôvodnom stave (vhodný na rekonš ...
395 000 €
Trenčín
911 01
911 01
371 x
Označiť zlý inzerát Chybnú kategóriu Ohodnotiť užívateľa Zmazať/Upraviť/Topovať

Usadlosť na okraji mesta, 3 domy, stodola, 10.392 m2 pozemok s vlastným lesom, sadmi a lúkami a vlastnou cestou cez pozemok, krásna príroda pri vodnej nádrži, lese a potôčiku. Usadlosť sa nachádza v TOP lokalite v mestskej časti okresného mesta Myjava a do centra mesta trvá cesta približne len 5 min ...
299 999 €
Trenčín
911 01
911 01
173 x
Označiť zlý inzerát Chybnú kategóriu Ohodnotiť užívateľa Zmazať/Upraviť/Topovať

TUreality ponúka na predaj rodinné domy v Trečíne, časť Záblatie. Majú pozemok o rozlohe 500m2. Veľkou výhodou je dokončenie podľa vlastného vkusu. Sú z kvalitných materiálov a majiteľ si dal záležať na priestrannosti, svetlosti, veľa odkladacieho priestoru a dostatok súkromia, kde je oddelená denná ...
320 990 €
Trenčín
911 01
911 01
289 x
Označiť zlý inzerát Chybnú kategóriu Ohodnotiť užívateľa Zmazať/Upraviť/Topovať

Typ: Rodinný dom
Ulica: Jána Prháčka
Mestská časť: Zlatovce
Obec: Trenčín
3D Virtuálna prehliadka TU.
https://my.matterport.com/show/?m=VKn8nDmVKin
Video prehliadka TU.
https://youtu.be/lyCvQ94sk2g
Ponúkame na predaj novostavbu 4i bungalovu na ul. Jána Prháčka v štvrti Vinohrady, v mestskej ...
464 000 €
Trenčín
911 01
911 01
147 x
Označiť zlý inzerát Chybnú kategóriu Ohodnotiť užívateľa Zmazať/Upraviť/Topovať

Spol. ZAJO reality vám vo výhradnom zastúpení predstavuje rodinný dom priamo v centre Trenčína s výnimočnou atmosférou a potenciálom spojiť bývanie s podnikaním pod jednou strechou – a to všetko v jednej z najvyhľadávanejších lokalít v Trenčíne.
Jedinečnosť tejto ponuky spočíva v spojení atraktívn ...
523 560 €
Trenčín
911 01
911 01
239 x
Označiť zlý inzerát Chybnú kategóriu Ohodnotiť užívateľa Zmazať/Upraviť/Topovať

Druhá etapa úspešného projektu Bývanie Skalka – Váš nový dom
Pre veľký záujem o prvú etapu sme spustili výstavbu ďalších 8 moderných domov v radovej zástavbe v Skalke nad Váhom. Táto lokalita je ideálna pre rodiny, ktoré hľadajú pokojné bývanie v blízkosti prírody, no stále len pár minút od Trenč ...
209 900 €
Trenčín
911 01
911 01
72 x
Označiť zlý inzerát Chybnú kategóriu Ohodnotiť užívateľa Zmazať/Upraviť/Topovať

KAPPA Reality – po úspechu projektov rodinných domov a mezonetov so záhradami i s garážami prinášame ďalšiu novinku - na predaj moderné dvojpodlažné rodinné domy na Hruškovej ulici v meste Trenčín (mestská časť Zlatovce). Domy budú stáť v atrakt ...
289 000 €
Trenčín
911 01
911 01
246 x
Označiť zlý inzerát Chybnú kategóriu Ohodnotiť užívateľa Zmazať/Upraviť/Topovať

Ponúkame Vám na predaj starší rodinný dom s garážou a stodolou v Trenčíne. Nachádza sa vo vyhľadávanej lokalite Trenčianske Biskupice, na slnečnom a rovinatom pozemku o výmere 1 352 m2. Rodinný dom postavený prevažne z pálenej tehly, v pôvodnom stave, vek domu cca 100 rokov. Pozostáva z troch obytný ...
378 560 €
Trenčín
911 01
911 01
373 x
Označiť zlý inzerát Chybnú kategóriu Ohodnotiť užívateľa Zmazať/Upraviť/Topovať