Na predaj 18 árový stavebný pozemok v Čechynciach pri Nitre
- [29.9. 2025]Zmazať/ Upraviť/ Topovať




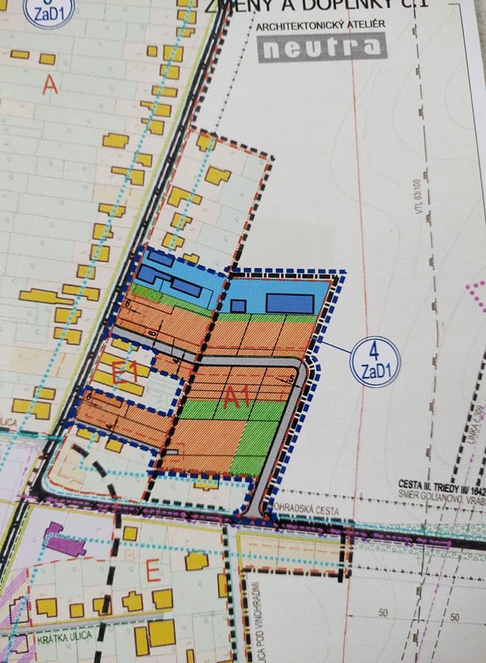
Diamond reality Nitra v exkluzívnom zastúpení ponúka na predaj stavebný pozemok nachádzajúci sa v obci Čechynce. Pozemok je podľa územného plánu vhodný na výstavbu rodinných domov.
Cena 94.000 eur. Šírka pozemku 25 m. Pozemok sa ponúka za zvýhodnenú cenu z dôvodu chýbajúcej prístupovej cesty a inžinierskych sietí.
V cene je zabezpečený kompletný právny servis zaručený advokátskou kanceláriou, všetky poplatky súvisiace s prevodom.
V prípade záujmu volajte na číslo 0908133421 alebo píšte na beneova@diamondreality.sk
Cena 94.000 eur. Šírka pozemku 25 m. Pozemok sa ponúka za zvýhodnenú cenu z dôvodu chýbajúcej prístupovej cesty a inžinierskych sietí.
V cene je zabezpečený kompletný právny servis zaručený advokátskou kanceláriou, všetky poplatky súvisiace s prevodom.
V prípade záujmu volajte na číslo 0908133421 alebo píšte na beneova@diamondreality.sk
|
| |||||||||||||||||||||||||||||||
Kontaktovať inzerenta e-mailom
Kontaktovať e-mailom môže iba overený užívateľ.
Overenie je zadarmo.
Vaše telefónne číslo *
Kontaktovať e-mailom môže iba overený užívateľ.
Overenie je zadarmo.
Vaše telefónne číslo *
Podobné inzeráty
Predaj rovinatý pozemok pri jazere Nitra - Čechynce - [30.9. 2025]R12 reality ponúka na predaj
krásny pozemok
lokalita - okres Nitra
obec - Ćechynce
výmera 1200 m2
výborná tichá lokalita pri jazere
šírka pozemku 15 m
IS v dosahu /elektrika, vodovod, kanalizácia/ 30 m
v prípade záujmu poskytneme stavbu domu na kľúč
NEVÁHAJTE KONTAKTOVAŤ
Tomáš Dodoš ...
Dohodou
Nitra
951 07
951 07
756 x
Označiť zlý inzerát Chybnú kategóriu Ohodnotiť užívateľa Zmazať/Upraviť/Topovať
Znížená cena Upravený stavebný pozemok, Malý Cetín - [26.9. 2025]MOTYČKA realitná kancelária Vám exkluzívne ponúka na predaj stavebný pozemok o rozlohe 732m², ktorý sa nachádza v zastavanom území obce Malý Cetín.
K nehnuteľnosti vedie súkromná prístupová cesta, ku ktorej prislúcha spoluvlastnícky podiel. Niektoré inžinierske siete sa nachádzajú priamo na pozemk ...
78 000 €
Nitra
951 07
951 07
582 x
Označiť zlý inzerát Chybnú kategóriu Ohodnotiť užívateľa Zmazať/Upraviť/Topovať
Na predaj 9 árový stavebný pozemok v Čechynciach pri Nitre - [26.9. 2025]Diamond reality Nitra v exkluzívnom zastúpení ponúka na predaj stavebný pozemok nachádzajúci sa v obci Čechynce. Pozemok je podľa územného plánu vhodný na výstavbu rodinných domov.
Cena 62.000 eur. Šírka pozemku 21 m. Pozemok sa ponúka za zvýhodnenú cenu z dôvodu chýbajúcej prístupovej ...
62 000 €
Nitra
951 07
951 07
892 x
Označiť zlý inzerát Chybnú kategóriu Ohodnotiť užívateľa Zmazať/Upraviť/Topovať