Na predaj 9 árový stavebný pozemok v Čechynciach pri Nitre
- [26.9. 2025]Zmazať/ Upraviť/ Topovať




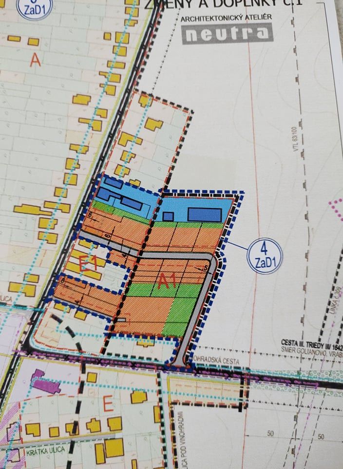
Diamond reality Nitra v exkluzívnom zastúpení ponúka na predaj stavebný pozemok nachádzajúci sa v obci Čechynce. Pozemok je podľa územného plánu vhodný na výstavbu rodinných domov.
Cena 62.000 eur. Šírka pozemku 21 m. Pozemok sa ponúka za zvýhodnenú cenu z dôvodu chýbajúcej prístupovej cesty a inžinierskych sietí.
V cene je zabezpečený kompletný právny servis zaručený advokátskou kanceláriou, všetky poplatky súvisiace s prevodom.
V prípade záujmu volajte na číslo 0908133421 alebo píšte na beneova@diamondreality.sk
Cena 62.000 eur. Šírka pozemku 21 m. Pozemok sa ponúka za zvýhodnenú cenu z dôvodu chýbajúcej prístupovej cesty a inžinierskych sietí.
V cene je zabezpečený kompletný právny servis zaručený advokátskou kanceláriou, všetky poplatky súvisiace s prevodom.
V prípade záujmu volajte na číslo 0908133421 alebo píšte na beneova@diamondreality.sk
|
| |||||||||||||||||||||||||||||||
Kontaktovať inzerenta e-mailom
Kontaktovať e-mailom môže iba overený užívateľ.
Overenie je zadarmo.
Vaše telefónne číslo *
Kontaktovať e-mailom môže iba overený užívateľ.
Overenie je zadarmo.
Vaše telefónne číslo *