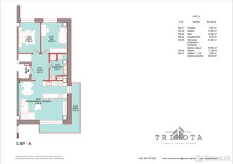
3-izbový byt TYP ,,A" v TRIKOTE VO VRBOVOM, 73,24 m2,
- TOP - [27.10. 2025]Zmazať/ Upraviť/ Topovať
























LIMITOVANÁ AKCIA len na 3-izbové byty typ,, A,B,E,F,,
Vyberte si Vaše nové bývanie v modernom NADŠTANDARTNOM PROJEKTE TRIKOTA vo Vrbovom, tento rezidenčný projekt prináša ponuku 44 bytov na ôsmich nadzemných podlažiach a môžete si vybrať zo 6 typov bytov, v ponuke sú dva typy 2-izbových a štyri typy 3-izbových bytov, ktoré sa po poschodiach opakujú. Výnimku tvorí 9.poschodie, kde sa nachádzajú dva veľkometrážne luxusné byty z toho jeden 4-izbový s terasou, s nádherným výhľadom.
Viac informácií o tomto projekte nájdete na: https://bytytrikota.sk/
Bytík si môžete pozrieť aj v nasledujúcom videu: https://www.youtube.com/watch?v=KUyZB4nFEis
Byty v projekte TRIKOTA sa predávajú v štandarde, ale aj ako holobyty, budú dokončené podľa vlastného výberu budúcich majiteľov. Štandard si môžu vybrať zo širokej ponuky z katalógu štandardov. Štandard zahŕňa: plávajúcu podlahu, interiérové dvere a zárubne, obklady, dlažbu v kúpeľni so sanitou a batériami, vypínače a zásuvky Legrand Niolé.
CENA BYTU ZAHŔŇA:
- protipožiarne vstupné dvere s bezpečnostným kovaním a vložkou,
- odhlučnené stropy,
- vysoké stropy, svetlá výška 2,8 m,
- sadrové interiérové omietky,
- podlahové teplovodné vykurovanie, v kúpeľniach elektrické podlahové vykurovanie + radiátor,
- predpríprava na klimatizačné jednotky,
- elektricky ovládané vonkajšie hliníkové žalúzie na každom okne,
- predpríprava na kuchynskú linku,
- kompletná elektroinštalácia vrátane vypínačov a zásuviek,
- murovaná pivničná kobka,
- balkón v každom byte,
- bytový dom disponuje 2 kvalitnými výťahmi Schindler.
Projekt je navrhnutý tak, aby zabezpečil dostatok parkovacích miest pre všetkých jeho rezidentov. K bytu je možnosť dokúpenia 1 parkovacieho miesta v CENE: 6.000,- Eur, ale je možnosť dokúpiť aj ďalšie parkovacie miesto.
V okolí bytového domu sú zrealizované chodníky a parkovacie plochy, výsadba zelene, relaxačná zóna pre rezidentov. Bytový dom TRIKOTA je dokončený v energetickej triede A0.
Viac informácií o tomto byte TYPU ,,A" ako aj o projekte nájdete na: https://bytytrikota.sk/predaj-bytov/byt-4a
V prípade záujmu ma prosím kontaktujte: Ing. ALENA ŠKVARENINOVÁ 0907/157325 alebo alena.skvareninova@marcoreal.sk
Vyberte si Vaše nové bývanie v modernom NADŠTANDARTNOM PROJEKTE TRIKOTA vo Vrbovom, tento rezidenčný projekt prináša ponuku 44 bytov na ôsmich nadzemných podlažiach a môžete si vybrať zo 6 typov bytov, v ponuke sú dva typy 2-izbových a štyri typy 3-izbových bytov, ktoré sa po poschodiach opakujú. Výnimku tvorí 9.poschodie, kde sa nachádzajú dva veľkometrážne luxusné byty z toho jeden 4-izbový s terasou, s nádherným výhľadom.
Viac informácií o tomto projekte nájdete na: https://bytytrikota.sk/
Bytík si môžete pozrieť aj v nasledujúcom videu: https://www.youtube.com/watch?v=KUyZB4nFEis
Byty v projekte TRIKOTA sa predávajú v štandarde, ale aj ako holobyty, budú dokončené podľa vlastného výberu budúcich majiteľov. Štandard si môžu vybrať zo širokej ponuky z katalógu štandardov. Štandard zahŕňa: plávajúcu podlahu, interiérové dvere a zárubne, obklady, dlažbu v kúpeľni so sanitou a batériami, vypínače a zásuvky Legrand Niolé.
CENA BYTU ZAHŔŇA:
- protipožiarne vstupné dvere s bezpečnostným kovaním a vložkou,
- odhlučnené stropy,
- vysoké stropy, svetlá výška 2,8 m,
- sadrové interiérové omietky,
- podlahové teplovodné vykurovanie, v kúpeľniach elektrické podlahové vykurovanie + radiátor,
- predpríprava na klimatizačné jednotky,
- elektricky ovládané vonkajšie hliníkové žalúzie na každom okne,
- predpríprava na kuchynskú linku,
- kompletná elektroinštalácia vrátane vypínačov a zásuviek,
- murovaná pivničná kobka,
- balkón v každom byte,
- bytový dom disponuje 2 kvalitnými výťahmi Schindler.
Projekt je navrhnutý tak, aby zabezpečil dostatok parkovacích miest pre všetkých jeho rezidentov. K bytu je možnosť dokúpenia 1 parkovacieho miesta v CENE: 6.000,- Eur, ale je možnosť dokúpiť aj ďalšie parkovacie miesto.
V okolí bytového domu sú zrealizované chodníky a parkovacie plochy, výsadba zelene, relaxačná zóna pre rezidentov. Bytový dom TRIKOTA je dokončený v energetickej triede A0.
Viac informácií o tomto byte TYPU ,,A" ako aj o projekte nájdete na: https://bytytrikota.sk/predaj-bytov/byt-4a
V prípade záujmu ma prosím kontaktujte: Ing. ALENA ŠKVARENINOVÁ 0907/157325 alebo alena.skvareninova@marcoreal.sk
|
| |||||||||||||||||||||||||||||||
Kontaktovať inzerenta e-mailom
Kontaktovať e-mailom môže iba overený užívateľ.
Overenie je zadarmo.
Vaše telefónne číslo *
Kontaktovať e-mailom môže iba overený užívateľ.
Overenie je zadarmo.
Vaše telefónne číslo *
Podobné inzeráty
3 izbový byt, 63 m2 s balkónom, 2 pivnice, Vrbové - [3.11. 2025]OK Realitné služby Broker Consulting - výhradný predaj
Na predaj: 3-izbový byt v meste Vrbové - blízko centra mesta
Ponúkame na predaj útulný 3-izbový byt o výmere 63 m² s murovanou pivnicou + veľká murovaná pivnica o výmere 3,75 m² + balkón o výmere 2 m². Byt sa nachádza na druhom poschodí v tehl ...
105 000 €
Piešťany
922 03
922 03
369 x
Označiť zlý inzerát Chybnú kategóriu Ohodnotiť užívateľa Zmazať/Upraviť/Topovať
3 izbvý byt s lodžiou - [25.10. 2025]🏡 Na predaj 3-izbový byt s lodžiou vo Vrbovom!
CreeX Reality a Henrieta Urbanová ponúkajú na predaj útulný 3-izbový byt (62 m²) na Sadovej ulici vo Vrbovom.
Byt sa nachádza na 3./3 poschodí bez výťahu,ale na prízemí je kočikareň a bicykláreň, má lodžiu, pivnicu a je čiastočne zrekonštruovaný – ide ...
113 990 €
Piešťany
922 03
922 03
639 x
Označiť zlý inzerát Chybnú kategóriu Ohodnotiť užívateľa Zmazať/Upraviť/Topovať
NEW LIVING - novostavba 3i byt, 2x parking a pozemok, Záhrad - [24.10. 2025]NEW LIVING vám exkluzívne ponúka -
posledné dva totožné 3 izbové mezonetové byty v tehlovej novostavbe rodinného domu na konci slepej ulice Záhradná, spolu s pozemkom a 2 vlastnými parkovacími státiami, v štádiu výstavby. Nachádzajú sa neďaleko centra mesta Vrbové, len 9 km od kúpeľného mesta Pie ...
155 000 €
Piešťany
922 03
922 03
371 x
Označiť zlý inzerát Chybnú kategóriu Ohodnotiť užívateľa Zmazať/Upraviť/Topovať
Na predaj 4iz. apartmánový byt vo Vrbovom nad priehradou Čer - [24.10. 2025]Exkluzívne na predaj 4iz. apartmánový byt vo Vrbovom vzdialenom iba 10 km od mesta Piešťany
Adresa: Rekreačná 1328, 922 03 Vrbové (Rezidencia Čerenec)
– obytná plocha 87,70m2
– terasa 1 - 33,60m2
– terasa 2 - 74,00m2
– balkón 5,40m2
– poschodie: 1 nadzemné podlažie
– byt má samostatn ...
229 500 €
Piešťany
922 03
922 03
289 x
Označiť zlý inzerát Chybnú kategóriu Ohodnotiť užívateľa Zmazať/Upraviť/Topovať
Predaj 4izb. byt Vrbove - [20.10. 2025]Predam kompletne prerobený a nadštandartne zariadený 4.izb byt na ul. SNP vo Vrbovom. 89m2 plus 3m2 balkon. 7/7 poschodie. 3izby 3,5m x 3,5m. Jedna izba sa zmenšila SDK priečkou a vytvoril sa šatník prístupný zo spálne. Vid foto pôdorysu. Nieje problém vrátiť do povodnej veľkosti. Dvojitá izolácia ...
155 000 €
Piešťany
922 03
922 03
462 x
Označiť zlý inzerát Chybnú kategóriu Ohodnotiť užívateľa Zmazať/Upraviť/Topovať
EXKLUZÍVNE - 3 izbový byt vo Vrbovom - [16.10. 2025]Hľadáte ideálne rodinné bývanie s výbornou občianskou vybavenosťou na dosah? Ponúkame na predaj slnečný 3-izbový byt na ulici Hollého vo Vrbovom, situovaný na 4. poschodí bytového domu s výťahom, s celkovou rozlohou 87 m².
Tento byt sa pýši výbornou dispozíciou, ktorá zaručuje praktické a pohodlné ...
113 000 €
Piešťany
922 03
922 03
515 x
Označiť zlý inzerát Chybnú kategóriu Ohodnotiť užívateľa Zmazať/Upraviť/Topovať
Na predaj 2 izbový byt Vrbové REZERVOVANÝ – kompletne zrekon - [15.10. 2025]Ponúkame na predaj vkusne zrekonštruovaný 2-izbový byt v tichej a príjemnej lokalite mesta Vrbové, len 10 minút jazdy od Piešťan. Ideálna voľba pre pokojné bývanie, ako aj výhodnú investíciu na prenájom.
Premyslená dispozícia
Byt pozostáva z priestrannej obývačky so vstupom na balkón, samostatnej sp ...
101 900 €
Piešťany
922 03
922 03
433 x
Označiť zlý inzerát Chybnú kategóriu Ohodnotiť užívateľa Zmazať/Upraviť/Topovať
3-izbový byt vo Vrbovom na ul. Nám.J.Emanuela, 80 m2, dvor - TOP - [28.10. 2025]Ponúkame na predaj krásny 3-izb. byt v RD so 4 bytmi na Nám. J.Emanuela vo Vrbovom o výmere 80 m2, s dvorom o výmere 60 m2, byt je situovaný na prízemí, čo poskytuje pocit bývania ako v RD.
Dispozícia bytu: vstupná chodba, kuchyňa, komora, WC, kúpeľňa, obývacia izba, spálňa a detská izba, ktorá b ...
153 000 €
Piešťany
922 03
922 03
804 x
Označiť zlý inzerát Chybnú kategóriu Ohodnotiť užívateľa Zmazať/Upraviť/Topovať
2 izb. byt v novostavbe s vlastným parkov. miestom - [30.9. 2025]Exkluzívne iba u nás ponúkame na predaj 2 izbový byt v novostavbe vo Vrbovom.
Hľadáte moderné bývanie, novostavbu a tichú lokalitu? Práve ste ho našli !
Čo vám tento byt vie poskytnúť :
- kompletne zariadený byt s nábytkom na mieru
- kuchyňa na mieru so všetkými spotrebičmi
- vstavané rol ...
125 977 €
Piešťany
922 03
922 03
671 x
Označiť zlý inzerát Chybnú kategóriu Ohodnotiť užívateľa Zmazať/Upraviť/Topovať
3 izbový byt Vrbové - [27.9. 2025]TUreality ponúka na predaj 3 izbový byt v pôvodnom stave s balkónom v meste Vrbové. Nachádza sa na 6/8 posch. K bytu prislúcha pivnica o výmere 1,5m2. V byte sú plastové okná, inak je pripravený na rekonštrukciu podľa vlastných predstáv. Výmera bytu je 64m2. Kuchyňa a obývacia izba je orientovaná na ...
107 990 €
Piešťany
922 03
922 03
330 x
Označiť zlý inzerát Chybnú kategóriu Ohodnotiť užívateľa Zmazať/Upraviť/Topovať



