NEW LIVING - novostavba 3i byt, 2x parking a pozemok, Záhrad
- [24.10. 2025]Zmazať/ Upraviť/ Topovať




























NEW LIVING vám exkluzívne ponúka -
posledné dva totožné 3 izbové mezonetové byty v tehlovej novostavbe rodinného domu na konci slepej ulice Záhradná, spolu s pozemkom a 2 vlastnými parkovacími státiami, v štádiu výstavby. Nachádzajú sa neďaleko centra mesta Vrbové, len 9 km od kúpeľného mesta Piešťany, s dobrým dopravným napojením na diaľnicu D1. Občianska vybavenosť mesta je na veľmi dobrej úrovni, nachádzajú sa tu markety Lidl a Terno, pošta, reštaurácie, pizzerie, zdravotné stredisko, veterinár, športoviská, materská škola, 2x základná škola, gymnázium, špeciálna škola, priehrada Čerenec a pod. Novootvorený cyklochodník Zelená cesta, spájajúci Vrbové s Piešťanmi, začína len pár desiatok metrov od nehnuteľnosti.
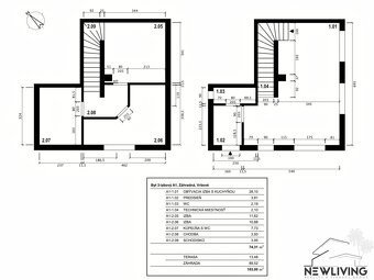
Celková rozloha bytov je 74,31 m2 resp 74,46 m2 s príslušenstvom, výmera terasy vrátane pozemku je 103 m2 resp 93 m2 a 2 parkovacie státia s celkovou výmerou 29 m2 resp 30 m2. Dispozične rozloženie bytov je na priloženom pôdoryse. Orientácia je juhovýchod - juhozápad, vďaka čomu sú krásne presvetlené a tiché. Kúrenie bude podlahové vodné, tepelným čerpadlom, spolu s prípravou teplej vody. V bytoch bude predpríprava na krb/kachle a klimatizáciu. Plastové okná s trojsklom budú mať predprírpavu na vonkajšie žalúzie. Každý byt má vlastné napojenie a merač elektriky, vody aj kanalizácie. Oplotenie a vyrovnanie terénu spolu s vybudovaním parkovacich státi a chodníkov je tak isto v cene. Predpokladané dokončenie do štádia holopriestor je naplánované na december 2025. Samozrejmosťou je kolaudácia v réžii developera.
Použité materiály:
- tehlové obvodové nosné steny hrúbky 30cm
- zateplenie obvodových stien - polystyren
- väzníkovy krov
- strešná krytina Terran
- stropná izolácia minerálna vata 40cm
- plastové okná s trojsklom
- tepelné čerpadlo split s vodným podlahovým kúrením
- komín Schiedel
Náklady na bývanie sa očakávajú veľmi nízke, cca 120€,- €/mesiac (elektrika + voda).
Cena bytu s 2x parkingom a pozemkom:
- byt A1-1 - 155.000€ s DPH
- byt B2-4 - 155.000€ s DPH
Byty je možné za doplatok dokončiť aj do štádia štandart s kuchynskou linkou a kachlami:
- štandard (podlahy, dlažby, sanita, int. dvere, schodisko - detaily na vyžiadanie) - 20.000€
- krbové kachle s montážou - 2.500€
- kuchynská linka so spotrebičmi - 8.500€
Možnosť financovať hypotékou, ktorú vám radi zabezpečíme aj s bonusom v podobe znaleckého posudku.
Ak máte záujem o obhliadku, prípadne chcete vedieť viac informácií o byte, neváhajte a kontaktujte ma
V cene nehnuteľnosti sú zahrnuté všetky poplatky: zabezpečíme vyhotovenie kúpnych zmlúv a návrh na vklad do katastra, právne poradenstvo, hypotekárne poradenstvo, kolky na kataster, poplatok za overenie podpisov u notára.
Dodatok k cene: Holobyt s možnosťou odpočtu DPH, vrátane provízie
Obytná plocha: 74.31m²
Celková rozloha: 177.31m²
Úžitková plocha: 74.31m²
Vlastníctvo: firemné
Stav: holopr
posledné dva totožné 3 izbové mezonetové byty v tehlovej novostavbe rodinného domu na konci slepej ulice Záhradná, spolu s pozemkom a 2 vlastnými parkovacími státiami, v štádiu výstavby. Nachádzajú sa neďaleko centra mesta Vrbové, len 9 km od kúpeľného mesta Piešťany, s dobrým dopravným napojením na diaľnicu D1. Občianska vybavenosť mesta je na veľmi dobrej úrovni, nachádzajú sa tu markety Lidl a Terno, pošta, reštaurácie, pizzerie, zdravotné stredisko, veterinár, športoviská, materská škola, 2x základná škola, gymnázium, špeciálna škola, priehrada Čerenec a pod. Novootvorený cyklochodník Zelená cesta, spájajúci Vrbové s Piešťanmi, začína len pár desiatok metrov od nehnuteľnosti.
Celková rozloha bytov je 74,31 m2 resp 74,46 m2 s príslušenstvom, výmera terasy vrátane pozemku je 103 m2 resp 93 m2 a 2 parkovacie státia s celkovou výmerou 29 m2 resp 30 m2. Dispozične rozloženie bytov je na priloženom pôdoryse. Orientácia je juhovýchod - juhozápad, vďaka čomu sú krásne presvetlené a tiché. Kúrenie bude podlahové vodné, tepelným čerpadlom, spolu s prípravou teplej vody. V bytoch bude predpríprava na krb/kachle a klimatizáciu. Plastové okná s trojsklom budú mať predprírpavu na vonkajšie žalúzie. Každý byt má vlastné napojenie a merač elektriky, vody aj kanalizácie. Oplotenie a vyrovnanie terénu spolu s vybudovaním parkovacich státi a chodníkov je tak isto v cene. Predpokladané dokončenie do štádia holopriestor je naplánované na december 2025. Samozrejmosťou je kolaudácia v réžii developera.
Použité materiály:
- tehlové obvodové nosné steny hrúbky 30cm
- zateplenie obvodových stien - polystyren
- väzníkovy krov
- strešná krytina Terran
- stropná izolácia minerálna vata 40cm
- plastové okná s trojsklom
- tepelné čerpadlo split s vodným podlahovým kúrením
- komín Schiedel
Náklady na bývanie sa očakávajú veľmi nízke, cca 120€,- €/mesiac (elektrika + voda).
Cena bytu s 2x parkingom a pozemkom:
- byt A1-1 - 155.000€ s DPH
- byt B2-4 - 155.000€ s DPH
Byty je možné za doplatok dokončiť aj do štádia štandart s kuchynskou linkou a kachlami:
- štandard (podlahy, dlažby, sanita, int. dvere, schodisko - detaily na vyžiadanie) - 20.000€
- krbové kachle s montážou - 2.500€
- kuchynská linka so spotrebičmi - 8.500€
Možnosť financovať hypotékou, ktorú vám radi zabezpečíme aj s bonusom v podobe znaleckého posudku.
Ak máte záujem o obhliadku, prípadne chcete vedieť viac informácií o byte, neváhajte a kontaktujte ma
V cene nehnuteľnosti sú zahrnuté všetky poplatky: zabezpečíme vyhotovenie kúpnych zmlúv a návrh na vklad do katastra, právne poradenstvo, hypotekárne poradenstvo, kolky na kataster, poplatok za overenie podpisov u notára.
Dodatok k cene: Holobyt s možnosťou odpočtu DPH, vrátane provízie
Obytná plocha: 74.31m²
Celková rozloha: 177.31m²
Úžitková plocha: 74.31m²
Vlastníctvo: firemné
Stav: holopr
|
| |||||||||||||||||||||||||||||||
Kontaktovať inzerenta e-mailom
Kontaktovať e-mailom môže iba overený užívateľ.
Overenie je zadarmo.
Vaše telefónne číslo *
Kontaktovať e-mailom môže iba overený užívateľ.
Overenie je zadarmo.
Vaše telefónne číslo *







