Predaj 4 izbového bytu s loggiou v novostavbe vo Zvolene
- [8.9. 2025]Zmazať/ Upraviť/ Topovať












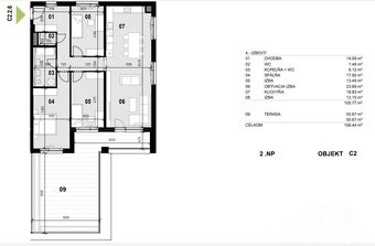
Ponúkame Vám na predaj 4-izbový byt s loggiou v novostavbe nachádzajúci sa v meste Zvolen. Byt s celkovou podlahovou plochou 116,03 m2 predstavuje atraktívne a moderné bývanie s vyšším priestorovým štandardom.
Pozostáva zo vstupnej chodby, kuchyne prepojenej s obývačkou s výstupom na loggiu o rozlohe 10,29m, 3 izieb, priestrannej kúpeľne s WC a ďalšej samostatnej toalety.
Predáva sa v prevedení holobyt, ktorý zahŕňa vchodové bezpečnostné dvere, vnútorné omietky stien a stropov-opatrené prvým náterom, rozvody elektrickej energie, vrátane zásuviek a vypínačov, rozvody vody vrátane zabudovaného podomietkového WC mechanizmu. (ozn.: C2.3.7)
Výhodné umiestnenie nehnuteľnosti zabezpečuje pomerne krátku vzdialenosť do centra mesta (cca 800m na námestie), nákupných centier – Tesco, Retail Park, OC Klokan, Europa Shopping Center. V blízkosti sa nachádza: zastávka MHD, škôlka, základná škola, stredná škola, výjazd na diaľnicu, letisko Sliač.
V prípade záujmu, možnosť odkúpenia pivničnej kobky k bytu.
Parkovanie motorových vozidiel je možné na voľných vonkajších parkovacích miestach. Záujemca má možnosť si odkúpiť vonkajšie parkovacie miesto alebo vnútorné garážové státie.
Predajná cena holobytu je 325 000 € s DPH.
V cene ponúkanej nehnuteľnosti je kompletný právny servis. Náš hypotekárny poradca Vám bezplatne pomôže získať ideálny úver na kúpu danej nehnuteľnosti. Súčasťou komplexného servisu nášho hypotekárneho poradcu je aj dlhodobá starostlivosť o hypotekárny úver, ušetrenie na poplatkoch, na preplatení úveru a zabezpečenie rodiny a príjmu v prípade neschopnosti splácania úveru.
Bližšie informácie v realitnej kancelárii Pekné reality, s.r.o., A. Sládkoviča 91/7, Zvolen. Tel: 0908 440 790, belkova@peknereality.sk
Pozostáva zo vstupnej chodby, kuchyne prepojenej s obývačkou s výstupom na loggiu o rozlohe 10,29m, 3 izieb, priestrannej kúpeľne s WC a ďalšej samostatnej toalety.
Predáva sa v prevedení holobyt, ktorý zahŕňa vchodové bezpečnostné dvere, vnútorné omietky stien a stropov-opatrené prvým náterom, rozvody elektrickej energie, vrátane zásuviek a vypínačov, rozvody vody vrátane zabudovaného podomietkového WC mechanizmu. (ozn.: C2.3.7)
Výhodné umiestnenie nehnuteľnosti zabezpečuje pomerne krátku vzdialenosť do centra mesta (cca 800m na námestie), nákupných centier – Tesco, Retail Park, OC Klokan, Europa Shopping Center. V blízkosti sa nachádza: zastávka MHD, škôlka, základná škola, stredná škola, výjazd na diaľnicu, letisko Sliač.
V prípade záujmu, možnosť odkúpenia pivničnej kobky k bytu.
Parkovanie motorových vozidiel je možné na voľných vonkajších parkovacích miestach. Záujemca má možnosť si odkúpiť vonkajšie parkovacie miesto alebo vnútorné garážové státie.
Predajná cena holobytu je 325 000 € s DPH.
V cene ponúkanej nehnuteľnosti je kompletný právny servis. Náš hypotekárny poradca Vám bezplatne pomôže získať ideálny úver na kúpu danej nehnuteľnosti. Súčasťou komplexného servisu nášho hypotekárneho poradcu je aj dlhodobá starostlivosť o hypotekárny úver, ušetrenie na poplatkoch, na preplatení úveru a zabezpečenie rodiny a príjmu v prípade neschopnosti splácania úveru.
Bližšie informácie v realitnej kancelárii Pekné reality, s.r.o., A. Sládkoviča 91/7, Zvolen. Tel: 0908 440 790, belkova@peknereality.sk
|
| |||||||||||||||||||||||||||||||
Kontaktovať inzerenta e-mailom
Kontaktovať e-mailom môže iba overený užívateľ.
Overenie je zadarmo.
Vaše telefónne číslo *
Kontaktovať e-mailom môže iba overený užívateľ.
Overenie je zadarmo.
Vaše telefónne číslo *