AkciaPredaj moderného 4 izb. bungalovu v Miloslavove...
- TOP - [9.10. 2025]Zmazať/ Upraviť/ Topovať




















TUreality vám ponúkajú na predaj.
Novostavba 4izbový bungalov v Miloslavove 4km od BA
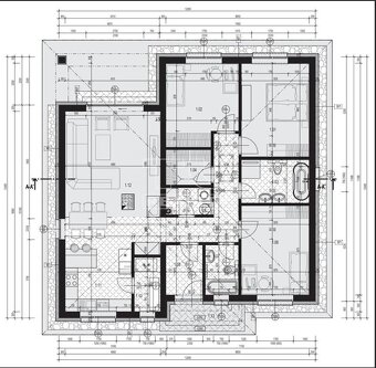
Ponúkame na predaj výborný samostatný 4izbový bungalov s úsporným tepelným čerpadlom v Miloslavove v tichej ulici na Dúhovej ul. len 4km od Bratislavy. Rodinný dom typu bungalov s dobrým dispozičným riešením pôdorysu o úžitkovej ploche 117m2 a s priestranným pozemkom o výmere 629m2, pozemok s vlastnou záhradou je oplotený, k dispozícii 3 parkovacie miesta na pozemku a ďalšie pred pozemkom.
DISPOZÍCIA:
Dom s výbornou dispozíciou je prízemný typu bungalov, hliníkové vstupné dvere do vstupnej chodby s úložným priestorom, 2x priestranná kúpeľňa s WC, technická miestnosť, samostatná izba ako šatník, denná časť s priestrannou obývačkou a krbom prepojená s kuchyňou so špajzou a veľkou terasou, 1x veľká spálňa a 2x izba s priestorom na vstavaný šatník a východom na terasu.
POPIS DOMU A VYBAVENIE :
železobetónová základová konštrukcia
obvodové murivo tehla Wienerberger 300
vnútorné priečky tehla Wienerberger 115
väzníkový krov s úložným priestorom
strešná krytina Terran
zateplenie krovu minerálna vlna Knauf 400
plastové päťkomorové okná a dvere Salamander
hliníkové vstupné dvere
predpríprava na klimatizáciu v každej izbe
predpríprava na fotovoltaické panely
vykurovanie podlahové pre tepelné čerpadlo
komínová zostava Schiedel a predpríprava na krb
predpríprava na vonkajšie elektrické žalúzie
predpríprava rozvodov na alarm
predpríprava na kamerový systém
podlahový teplovodný vykurovací systém
rozdelovač okruhov na podlahové vykurovanie
2x WC systém Geberit
vypínače a zásuvky Legrand
vnútorné sádrové omietky Baumit
anhydritový samonivelačný poter
2x biely interiérový náter
zámková dlažba na parkovacie státia
chodník a parkovisko zámková dlažba Premac multiformát
betónová terasa
možnosť výstavby betónového bazénu 6x3m
s prémiovou fóliou a protiprúdom
Fotografie domu a pôdorys sú v galérii
Cena 376000,- Eur+Provizia RK 4%
Ak vás oslovila ponuka kontaktujte ma email:mastic@tureality.sk,telefonicky:Call centrum :+421 41 3217800
Novostavba 4izbový bungalov v Miloslavove 4km od BA
Ponúkame na predaj výborný samostatný 4izbový bungalov s úsporným tepelným čerpadlom v Miloslavove v tichej ulici na Dúhovej ul. len 4km od Bratislavy. Rodinný dom typu bungalov s dobrým dispozičným riešením pôdorysu o úžitkovej ploche 117m2 a s priestranným pozemkom o výmere 629m2, pozemok s vlastnou záhradou je oplotený, k dispozícii 3 parkovacie miesta na pozemku a ďalšie pred pozemkom.
DISPOZÍCIA:
Dom s výbornou dispozíciou je prízemný typu bungalov, hliníkové vstupné dvere do vstupnej chodby s úložným priestorom, 2x priestranná kúpeľňa s WC, technická miestnosť, samostatná izba ako šatník, denná časť s priestrannou obývačkou a krbom prepojená s kuchyňou so špajzou a veľkou terasou, 1x veľká spálňa a 2x izba s priestorom na vstavaný šatník a východom na terasu.
POPIS DOMU A VYBAVENIE :
železobetónová základová konštrukcia
obvodové murivo tehla Wienerberger 300
vnútorné priečky tehla Wienerberger 115
väzníkový krov s úložným priestorom
strešná krytina Terran
zateplenie krovu minerálna vlna Knauf 400
plastové päťkomorové okná a dvere Salamander
hliníkové vstupné dvere
predpríprava na klimatizáciu v každej izbe
predpríprava na fotovoltaické panely
vykurovanie podlahové pre tepelné čerpadlo
komínová zostava Schiedel a predpríprava na krb
predpríprava na vonkajšie elektrické žalúzie
predpríprava rozvodov na alarm
predpríprava na kamerový systém
podlahový teplovodný vykurovací systém
rozdelovač okruhov na podlahové vykurovanie
2x WC systém Geberit
vypínače a zásuvky Legrand
vnútorné sádrové omietky Baumit
anhydritový samonivelačný poter
2x biely interiérový náter
zámková dlažba na parkovacie státia
chodník a parkovisko zámková dlažba Premac multiformát
betónová terasa
možnosť výstavby betónového bazénu 6x3m
s prémiovou fóliou a protiprúdom
Fotografie domu a pôdorys sú v galérii
Cena 376000,- Eur+Provizia RK 4%
Ak vás oslovila ponuka kontaktujte ma email:mastic@tureality.sk,telefonicky:Call centrum :+421 41 3217800
|
| |||||||||||||||||||||||||||||||
Kontaktovať inzerenta e-mailom
Kontaktovať e-mailom môže iba overený užívateľ.
Overenie je zadarmo.
Vaše telefónne číslo *
Kontaktovať e-mailom môže iba overený užívateľ.
Overenie je zadarmo.
Vaše telefónne číslo *
Podobné inzeráty
BOSEN | Moderné 4 izbové domy s prémiovým štandardom , Dunaj - [31.10. 2025]Typ: Rodinný dom
Ulica: Slivková
Mestská časť: Nová Lipnica
Obec: Dunajská Lužná
BOSEN Group Vám ponúka na predaj moderný 4-izbový bungalov s prémiovým štandardom a dôrazom na ticho a komfort – Dunajská Lužná, ulica Slivková. Predstavte si domov, kde sa každý detail spája s pocitom p ...
406 000 €
Senec
900 42
900 42
152 x
Označiť zlý inzerát Chybnú kategóriu Ohodnotiť užívateľa Zmazať/Upraviť/Topovať
Predaj novostavieb 4i RD v Alžbetinom dvore - [28.10. 2025]Predaj 4i rodinných domov v obci Miloslavov - Alžbetin dvor, Žihľavová ul. Rodinné domy je súčasťou troj - domu s vlastnými pozemkami.
Dom A: pozemok 462 m2, zast. plocha 114,79 m2, spevnená plocha 51,34 m2, úž. plocha 90,20 m2, terasa. Cena v prevedení holodom: 305.000 EUR.
Dom B: pozemok 509,65 ...
305 000 €
Senec
900 42
900 42
328 x
Označiť zlý inzerát Chybnú kategóriu Ohodnotiť užívateľa Zmazať/Upraviť/Topovať
Krásny moderný dom na pešo od jazera - [27.10. 2025]Hľadáte dom v blízkosti jazera, kde môžete stráviť pokojné letné dni, či prejsť sa v každom ročnom období a nabažiť sa krásneho pohľadu? Tento trojizbový bungalov len päť minút chôdze od jazera je Vaša správna voľba.
BOND reality ponúka na predaj plne vybavený a zariadený 3-izbový dom skolaudovaný v ...
349 000 €
Senec
900 42
900 42
215 x
Označiť zlý inzerát Chybnú kategóriu Ohodnotiť užívateľa Zmazať/Upraviť/Topovať
Nadštandardný samostatný 4i RD, novostavba 2026, pozemok 606 - [26.10. 2025]Typ: Rodinný dom
Ulica: Sokolia
Obec: Miloslavov
Na predaj moderný 4i rodinný dom novostavba 2026, Miloslavov, okres Senec
- kolaudácia 02/2026
- 4 izby
- plocha: 110 m2 + 30 m2 terasa
- pozemok: 603 m2
- štandard bez kuchynskej linky
- vykurovanie: elektrický kotol/predpríprava pre tepe ...
444 000 €
Senec
900 42
900 42
366 x
Označiť zlý inzerát Chybnú kategóriu Ohodnotiť užívateľa Zmazať/Upraviť/Topovať
PREDAJ - 4-izbový RD - Dunajská Lužná - TOP - [1.11. 2025]Predáme veľmi útulný a štýlový radový 4-izbový RD s pozemkom v lukratívnej Dunajská Lužná.
ZP 71,75 m2, ÚP120 m2 + terasa+ 2 park.miesta a pozemok 229 m2. Dom je veľmi dobre dispozične riešený. Na prízemí je vstupná chodba odkiaľ je čarovná priestranná spálňa s veľkými rolldor skriňami, cez chodb ...
317 000 €
Senec
900 42
900 42
512 x
Označiť zlý inzerát Chybnú kategóriu Ohodnotiť užívateľa Zmazať/Upraviť/Topovať
5 izbový RD - 128,33 m2 v novostavbe v Alžbetinom dvore - [24.10. 2025]Typ: Rodinný dom
Ulica: Bottova
Mestská časť: Alžbetin Dvor
Obec: Miloslavov
Nadštandardné bývanie Miloslavov Housing v Alžbetinom dvore
5-izbový rodinný dom je o celkovej rozlohe 128,33 m2 + balkón a terasa 25 m2.
Dispozícia:
-prízemie - vchodová časť, scho ...
335 000 €
Senec
900 42
900 42
394 x
Označiť zlý inzerát Chybnú kategóriu Ohodnotiť užívateľa Zmazať/Upraviť/Topovať
VYMEŇ SUSEDA - Nadštandartný 3 izbový byt so záhradou v Duna - TOP - [29.10. 2025]Typ: Rodinný dom
Ulica: Hlavná
Obec: Dunajská Lužná
Ponúkame vám na predaj moderný a zároveň elegantný 3-izbový byt v štandarde s vlastnou záhradou ktorý je súčasťou 3-domu v obci Dunajská Lužná
Váš nový domov v modernej novostavbe typu trojdom. Každá jednotka má vla ...
273 000 €
Senec
900 42
900 42
526 x
Označiť zlý inzerát Chybnú kategóriu Ohodnotiť užívateľa Zmazať/Upraviť/Topovať
VYMEŇ SUSEDA - Novostavba nadštandartného 4 izb. bytu so záh - [22.10. 2025]Typ: Rodinný dom
Ulica: Hlavná
Obec: Dunajská Lužná
Ponúkame vám nový domov v modernej novostavbe typu trojdom. Každá jednotka má vlastný samostatný vstup s bránkou, čo zaručuje maximálne súkromie. Súčasťou RD je aj priestranná záhrada, ideálna na oddych či rodinné aktivity. Táto nehnuteľnosť s ...
299 999 €
Senec
900 42
900 42
384 x
Označiť zlý inzerát Chybnú kategóriu Ohodnotiť užívateľa Zmazať/Upraviť/Topovať
Reality KOMPLEX s.r.o. ponúka na PREDAJ 5 izbový rodinný dom - [20.10. 2025]Typ: Rodinný dom
Mestská časť: Alžbetin Dvor
Obec: Miloslavov
🏡Reality KOMPLEX s.r.o. ponúka na PREDAJ moderný 5-izbový rodinný dom-novostavbu s garážou v Miloslavove.
Úžitková plocha 160 m² | Pozemok 660 m²
Hľadáte nový domov, ktorý vám ponúkne komfort, priestor a moderné technológie le ...
399 000 €
Senec
900 42
900 42
399 x
Označiť zlý inzerát Chybnú kategóriu Ohodnotiť užívateľa Zmazať/Upraviť/Topovať
Ponúkame na predaj Rodinný dom v obci Dunajská Lužná - [20.10. 2025]Realitná kancelária onúkame na predaj samostatne stojaci rodinný dom v obci Dunajská Lužná, nachádzajúci sa v tichej lokalite s výbornou dostupnosťou do Bratislavy. Nové Košariská
- 14 ročný Rodinný dom je štvorizbový, jednopodlažný, so sedlovou strechou. Stojí na pozemku o výmere 493 m² a ponúka ú ...
380 000 €
Senec
900 42
900 42
422 x
Označiť zlý inzerát Chybnú kategóriu Ohodnotiť užívateľa Zmazať/Upraviť/Topovať