Liptovský Mikuláš- obchodné priestory do nájmu.
- [17.4. 2026]Zmazať/ Upraviť/ Topovať




















Ak hľadáte lukratívne obchodné a administratívne priestory na frekventovanom mieste v Liptovskom Mikuláši tak táto ponuka je pre vás.
Realitná kancelária GERT vám ponúka na prenájom obchodné a kancelárske priestory v centre Liptovského Mikuláša
Lokalita: absolútne centrum mesta Liptovský Mikuláš - Námestie osloboditeľov
- výhodná poloha na rohu námestia
- v tomto mieste sa zbiehajú všetky komunikačné koridory
- parkovisko vo vzdialenosti cca 30 m
Priestory:
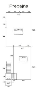
- prízemie, priamy vstup s chodníka
- predajňa o výmere 53,5 m2, 2x výklad, s možnosťou rozšírenia o 33 m2 s ďalším vstupom
- orientácia juh, západ
- k predajni prislúcha WC, 3 m2
- k predajni prislúcha priestor pod predajňou o výmere 23,1 m2
- vykurovanie je zabezpečené elektrickým podlahovým kúrením, s plánovaným OZE
- k priestorom je možné prenajať aj ďalšie priestory podbránia + sklady + WC
- výlučne na dlhodobý nájom
Cena nájmu : dohodou + réžie + dvojmesačný depozit
Pre viac informácií nám môžete volať na tel. číslo : +421 905 345 985 - maklér Bohuš Lištiak ,
alebo napísať na listiak@gert.sk
Realitná kancelária GERT sa špecializuje na región Liptov +Tatry, sme tu doma . . .
poskytujeme a zaručujme :
- profesionálne realitné služby
- prvotriedny a kompletný servis pri predaji alebo kúpe nehnuteľnosti
- zabezpečujeme realizáciu celého prevodu nehnuteľnosti vrátane právnych služieb
- poradíme vám ako najvýhodnejšie predať nehnuteľnosť
- robíme maximum pre spokojnosť všetkých našich klientov
Realitná kancelária GERT vám ponúka na prenájom obchodné a kancelárske priestory v centre Liptovského Mikuláša
Lokalita: absolútne centrum mesta Liptovský Mikuláš - Námestie osloboditeľov
- výhodná poloha na rohu námestia
- v tomto mieste sa zbiehajú všetky komunikačné koridory
- parkovisko vo vzdialenosti cca 30 m
Priestory:
- prízemie, priamy vstup s chodníka
- predajňa o výmere 53,5 m2, 2x výklad, s možnosťou rozšírenia o 33 m2 s ďalším vstupom
- orientácia juh, západ
- k predajni prislúcha WC, 3 m2
- k predajni prislúcha priestor pod predajňou o výmere 23,1 m2
- vykurovanie je zabezpečené elektrickým podlahovým kúrením, s plánovaným OZE
- k priestorom je možné prenajať aj ďalšie priestory podbránia + sklady + WC
- výlučne na dlhodobý nájom
Cena nájmu : dohodou + réžie + dvojmesačný depozit
Pre viac informácií nám môžete volať na tel. číslo : +421 905 345 985 - maklér Bohuš Lištiak ,
alebo napísať na listiak@gert.sk
Realitná kancelária GERT sa špecializuje na región Liptov +Tatry, sme tu doma . . .
poskytujeme a zaručujme :
- profesionálne realitné služby
- prvotriedny a kompletný servis pri predaji alebo kúpe nehnuteľnosti
- zabezpečujeme realizáciu celého prevodu nehnuteľnosti vrátane právnych služieb
- poradíme vám ako najvýhodnejšie predať nehnuteľnosť
- robíme maximum pre spokojnosť všetkých našich klientov
|
| |||||||||||||||||||||||||||||||
Kontaktovať inzerenta e-mailom
Kontaktovať e-mailom môže iba overený užívateľ.
Vaše telefónne číslo *
Kontaktovať e-mailom môže iba overený užívateľ.
Vaše telefónne číslo *
Podobné inzeráty
Hľadáme na prenájom predajne lokálnych slovenských výrobcov - [19.4. 2026]Hľadáme priestory na prenájom v mestách Žilina, Liptovský Mikuláš, Poprad.
Predajňa lokálnych slovenských výrobcov potraviny + vybrané remeselné produkty
Veľkosť priestoru:
70 – 100 m²
Ideálne 80–90 m².
Lokalita – kľúčové parametre
A) Typ prostredia (priorita 1)
• centrum mesta / širšie centrum
• si ...
1 €
Liptovský Mikuláš
031 01
031 01
17 x
Označiť zlý inzerát Chybnú kategóriu Ohodnotiť užívateľa Zmazať/Upraviť/Topovať
Predam komin na umiestnenie reklamy - [18.4. 2026]predam komin na"Maytexe",vhodný na umiestnenie reklamy.Vysoký 118 metrov,železobetónový vo veľmi dobrom stave.Bez nákladov na prevádzku(treba len svietiť).Cena 15000 eur +DPH alebo prenajmem.tel.0905501318
15 000 €
Liptovský Mikuláš
031 01
031 01
44 x
Označiť zlý inzerát Chybnú kategóriu Ohodnotiť užívateľa Zmazať/Upraviť/Topovať
Top lokalita – obchodný priestor na Prenájom v OC Jasná - [16.4. 2026]Realitná kancelária Residence Real Vám ponúka na prenájom atraktívny obchodný priestor v obchodnom centre OC Jasná.
Priestor sa nachádza v zabehnutej časti centra a v minulosti bol využívaný ako gastro prevádzka, pričom sú zachované všetky potrebné rozvody (plyn, elektrina, voda), čo výrazne uľahču ...
865 €
Liptovský Mikuláš
031 01
031 01
45 x
Označiť zlý inzerát Chybnú kategóriu Ohodnotiť užívateľa Zmazať/Upraviť/Topovať
PRENÁJOM obchodného priestoru (17 m2) v blízkosti centra - [15.4. 2026]Ponúkame Vám na prenájom nebytový priestor, ktorý je skolaudovaný pre účel obchod a služby. Veľkou výhodou je, že priestor má samostatný vstup priamo z frekventovanej ulice Bellova 1756, v blízkosti centra Liptovského Mikuláša.
Priestor má prívod vody, na podlahe dlažbu a 17 m2. Nájomca má okrem ...
221 €
Liptovský Mikuláš
031 01
031 01
61 x
Označiť zlý inzerát Chybnú kategóriu Ohodnotiť užívateľa Zmazať/Upraviť/Topovať
PRENÁJOM obchodného priestoru (40 m2) v blízkosti centra - [15.4. 2026]Ponúkame Vám na prenájom nebytový priestor, ktorý sa nám uvoľní od mája 2026 (v prípade potreby by vedel súčasný nájomca uvoľniť priestor aj skôr). Obhliadky sú možné po dohode už teraz.
Priestor je skolaudovaný pre účel obchod a služby. Veľkou výhodou je, že má samostatný vstup priamo z ulice a ...
361 €
Liptovský Mikuláš
031 01
031 01
62 x
Označiť zlý inzerát Chybnú kategóriu Ohodnotiť užívateľa Zmazať/Upraviť/Topovať
Obchodné priestory v Jasná Shopping City, Liptovský Mikuláš - [14.4. 2026]Obchodné priestory na prenájom – Jasná Shopping City, Liptovský Mikuláš
Hľadáte ideálne miesto pre svoje podnikanie? Realitná kancelária Residence Vám ponúka obchodné priestory rôznych veľkostí a typov, vhodné pre: reštaurácie, kaviarne, kozmetiku, služby alebo klasický kamenný predaj.
Základ ...
Dohodou
Liptovský Mikuláš
031 01
031 01
78 x
Označiť zlý inzerát Chybnú kategóriu Ohodnotiť užívateľa Zmazať/Upraviť/Topovať
TOP PRIESTOR NA PRENÁJOM – PEŠIA ZÓNA Liptovský Mikuláš - [9.4. 2026]PRIESTORY NA PRENÁJOM – PEŠIA ZÓNA, LIPTOVSKÝ MIKULÁŠ
Realitná kancelária Residence Real ponúka na prenájom atraktívne obchodné priestory priamo v centre mesta Liptovský Mikuláš, na frekventovanej pešej zóne na ulici 1. mája.
Priestory sa nachádzajú v objekte LIPTÁČIK na adrese 1. mája 709 a dispo ...
2 159 €
Liptovský Mikuláš
031 01
031 01
142 x
Označiť zlý inzerát Chybnú kategóriu Ohodnotiť užívateľa Zmazať/Upraviť/Topovať
Nové obchodné priestory na prenájom 35 m² v OC MODOM - [9.4. 2026]Ponúkame na prenájom atraktívny novovybudovaný obchodný priestor s výmerou cca 35m², situovaný v Liptovskom Mikuláši v polyfunkčnom centre Modom. Priestory sú vhodné pre maloobchod, showroom alebo služby.
Základné informácie:
• Lokalita: vysoko frekventovaná ulica 1. mája, č. 4313 v Liptovskom ...
350 €
Liptovský Mikuláš
031 01
031 01
108 x
Označiť zlý inzerát Chybnú kategóriu Ohodnotiť užívateľa Zmazať/Upraviť/Topovať
Prenájom priestorov – OC Retail Park Liptovský Mikuláš - [1.4. 2026]Prenájom obchodných priestorov – OC Retail Park Liptovský Mikuláš
Realitna kancelária Residence Vám Ponúka na prenájom atraktívne obchodné priestory v modernom nákupnom centre OC Retail Park Liptovský Mikuláš, ktoré sa nachádza vo výbornej komerčnej lokalite s vysokou frekvenciou zákazník ...
19 €
Liptovský Mikuláš
031 01
031 01
146 x
Označiť zlý inzerát Chybnú kategóriu Ohodnotiť užívateľa Zmazať/Upraviť/Topovať
Prenajom obch. priestoru - Kamenne pole, LM - [31.3. 2026]Prenajmem vonkajsi obchodny priestor o velkosti 21m2 priamo pri hl. vchode do OC RGB Liptov. Volny od marca 2026. Velmi dobre viditelny od parkoviska s velkou reklamou, preskleny vyklad, vhodny na sluzby ako cestovka, trafika, mensi obchod, atd... cena najmu dohodou..
650 €
Liptovský Mikuláš
031 01
031 01
133 x
Označiť zlý inzerát Chybnú kategóriu Ohodnotiť užívateľa Zmazať/Upraviť/Topovať