Prenájom kancelárskych priestorov
- [2.4. 2026]Zmazať/ Upraviť/ Topovať












Ponúkame na prenájom priestory v širšom centre mesta Snina, pri kruhovom objazde,v budove nad Bowling barom.
Priestory sú čerstvo zrekonštruované a sú vhodné na čokoľvek - obchodnú prevádzku, služby, prípadne kanceláriu. Nachádzajú sa na najvyššom poschodí.
Aktuálne sú k dispozícii 2 priestory:
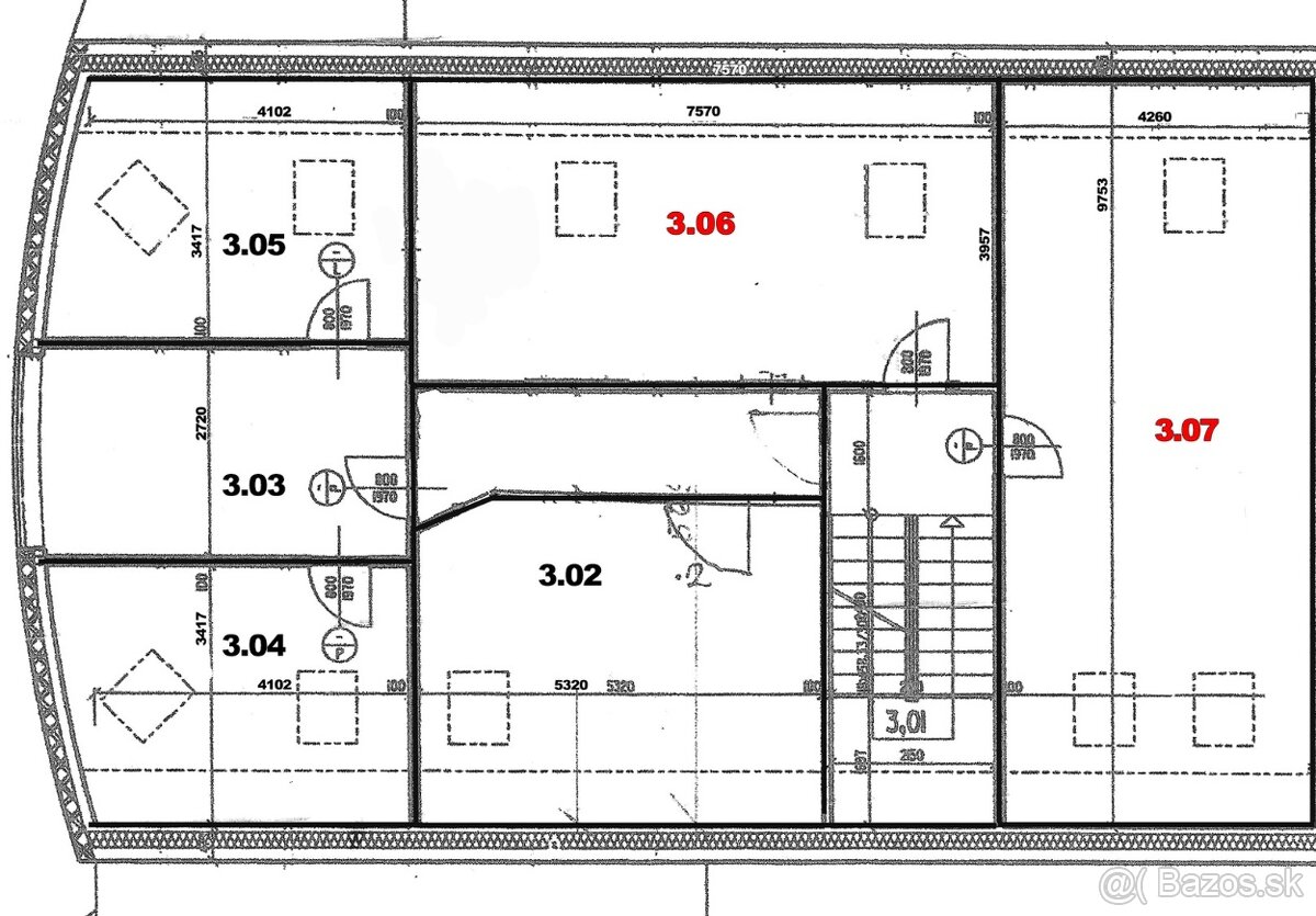
Priestor B (3.06) - 30m2
Priestor C (3.07) - 41,5m2
(s klimatizáciou)
Súčasťou každého priestoru je umývadlo s pitnou vodou. Spoločné toalety.
Priestory sú pripravené k prenájmu okamžite.
Priestory sú čerstvo zrekonštruované a sú vhodné na čokoľvek - obchodnú prevádzku, služby, prípadne kanceláriu. Nachádzajú sa na najvyššom poschodí.
Aktuálne sú k dispozícii 2 priestory:
Priestor B (3.06) - 30m2
Priestor C (3.07) - 41,5m2
(s klimatizáciou)
Súčasťou každého priestoru je umývadlo s pitnou vodou. Spoločné toalety.
Priestory sú pripravené k prenájmu okamžite.
|
| |||||||||||||||||||||||||||||||
Kontaktovať inzerenta e-mailom
Kontaktovať e-mailom môže iba overený užívateľ.
Vaše telefónne číslo *
Kontaktovať e-mailom môže iba overený užívateľ.
Vaše telefónne číslo *
Podobné inzeráty
Prenájom vyrobno skladovacich priestor SNINA - [8.4. 2026]Popis nehnuteľnosti
Nabízíme k dlouhodobému pronájmu moderní výrobní areál ve Snině, vhodný pro průmyslovou výrobu, logistiku či lehký průmysl.
Jedná se o nemovitost ve vlastnictví stabilní české společnosti se zkušenostmi s pronájmem výrobních prostor – nejedná se o realitní kancelář, komunikuj ...
10 500 €
Snina
069 01
069 01
202 x
Označiť zlý inzerát Chybnú kategóriu Ohodnotiť užívateľa Zmazať/Upraviť/Topovať
Obchodný / kancelársky priestor - [3.4. 2026]Prenajmem priestor vhodný na obchod, drogériu, diskont, kancelársky alebo iný účel, na prízemí polyfunkčnej budovy na ulici Komenského 2895/118, 069 01 Snina v tesnej blízkosti centra mesta s výbornou polohou viditeľnou z hlavnej cesty pri svetelnej križovatke (výhodné ako reklama).
Budova je oprot ...
Dohodou
Snina
069 01
069 01
161 x
Označiť zlý inzerát Chybnú kategóriu Ohodnotiť užívateľa Zmazať/Upraviť/Topovať
Prenájom atraktívných priestorov - [2.4. 2026]Ponúkame na prenájom atraktívne priestory s rozlohou 300 m² na prízemí modernej trojpodlažnej budovy v širšom centre mesta Snina pri kruhovom objazde (nad Bowling Barom).
Čerstvo zrekonštruované priestory sú ideálne pre obchodnú prevádzku, príp. reštauráciu. Priestory majú priamy bezbariérový vst ...
Dohodou
Snina
069 01
069 01
141 x
Označiť zlý inzerát Chybnú kategóriu Ohodnotiť užívateľa Zmazať/Upraviť/Topovať
Prenájom komerčných priestorov – Snina (budova ECO umyvárky) - [1.4. 2026]Mega realitná kancelária ponúka na prenájom atraktívne komerčné priestory o výmere 110 m², nachádzajúce sa na prízemí budovy ECO umyvárky v meste Snina.
Priestory sú prakticky riešené a zahŕňajú:
4 samostatné sklady
predprípravu na kuchynku
2 samostatné vstupy, čo umožňuje flexibilné využ ...
Dohodou
Snina
069 01
069 01
118 x
Označiť zlý inzerát Chybnú kategóriu Ohodnotiť užívateľa Zmazať/Upraviť/Topovať
Záhradné centrum na prenájom, 1800m2, Snina - [29.3. 2026]NOVINKA Milovníci kvetov a prírody - Výborná príležitosť Snina, ul. Budovateľská
Na PRENÁJOM exkluzívne Novostavba funkčný dlhodobo ziskový projekt ZÁHRADNÉ CENTRUM a KVETY
Zahŕňa spolu:
* pozemok 1800m2,
* 2 podlažná obchodná budova /obchodná prevádzka, kancelárie, sociálne zariadenie, kuc ...
1 700 €
Snina
069 01
069 01
178 x
Označiť zlý inzerát Chybnú kategóriu Ohodnotiť užívateľa Zmazať/Upraviť/Topovať
Obchodný priestor-pešia zona - [26.3. 2026]Ponúkame na prenájom obchodný priestor na prízemí, vstup z pešej zóny, prístup autom.
Výmera 50 m2.
Dohodou
Snina
069 01
069 01
228 x
Označiť zlý inzerát Chybnú kategóriu Ohodnotiť užívateľa Zmazať/Upraviť/Topovať
Prenájom priestorov v polyfunkčnom objekte v Snine - [24.3. 2026]Ponúkame na prenájom priestory v polyfunkčnom objekte v meste Snina. Výhodou je lokalita blízko centra rozloha cca 100m2 .Vhodne na rôzne využitie.
Dohodou
Snina
069 01
069 01
137 x
Označiť zlý inzerát Chybnú kategóriu Ohodnotiť užívateľa Zmazať/Upraviť/Topovať
PONUKA PRENÁJMU: Zariadené pohostinstvo v Hostoviciach - [20.3. 2026]Ponúkam na dlhodobý prenájom plne vybavený priestor pohostinstva v obci Hostovice (okres Snina). Prevádzka je v stave „príď a otvor“ – nie sú potrebné žiadne počiatočné investície do zariadenia.
Čo ponúka tento priestor:
Kompletné vybavenie: Funkčný výčap, chladenie, barové sklo, alarm, TV a náb ...
200 €
Snina
069 01
069 01
497 x
Označiť zlý inzerát Chybnú kategóriu Ohodnotiť užívateľa Zmazať/Upraviť/Topovať
Prenajom PRIESTOROV - [20.3. 2026]Prenájom priestoru na prízemi cca 100 m2, vhodné na Čokoľvek.
Obchody a služby, kaviareň, široké vyžitie s parkovaním a kamerovým systémom.
Vhodne aj na potraviny
Dohodou
Snina
069 01
069 01
192 x
Označiť zlý inzerát Chybnú kategóriu Ohodnotiť užívateľa Zmazať/Upraviť/Topovať
Prenájom komerčného priestoru od 14m2 po 210 m2 - [13.3. 2026]Dám do prenájmu zabehnutý obchodný priestor v blízkom centre mesta Snina na veľkom sídlisku Komenského
Priestor je na prízemí o výmeru je možné prispôsobiť podľa vašich predstáv m2 od 14m2 až po 210m2
Cena dohodou
Vstup s výkladom do priestorov je priamo z chodníka frekventovanej ulice. Priestor ...
Dohodou
Snina
069 01
069 01
352 x
Označiť zlý inzerát Chybnú kategóriu Ohodnotiť užívateľa Zmazať/Upraviť/Topovať