Elcom - Skladové a kancelárske priestory
- [22.3. 2026]Zmazať/ Upraviť/ Topovať























Popis nehnuteľnosti
Ponúkame na prenájom priestranné skladové priestory v objekte Hala B a C, situované hneď vedľa hlavnej administratívnej budovy Elcom. Priestory sa nachádzajú na: Hala B: vrchnom poschodí a Hala C: spodnom poschodí.
___________________________________________
HALA B:
Sklad je plne funkčný a pripravený na okamžité využitie. Disponuje:
- Nakladacou rampou prístupnou z oboch podlaží
- Ťažkotonážnym nákladným výťahom na pohodlnú manipuláciu s tovarom
- Plne osvetlenými priestormi so stropným osvetlením
- Vlastnou kuchynkou a zázemím pre zamestnancov
- Dostupné aj oddelené šatne, s toaletami a sprchovacími kútmi
- Dostupným parkovaním priamo pri objekte
- Parkovaním (viď. satelitný obrázok).
- Spoločné chodby
DOSTUPNÉ PRIESTORY:
- rozmery dostupné v pôdoryse: viď. v galérií
- uzamykateľné priestory, dostupné slnečné svetlo
Miestnosť 109: 116,1m2
Miestnosť 111: 16,08m2
Miestnosť 112: 40,32m2
Miestnosť 114: 16,5m2
Miestnosť 115: 16,5m2
Alebo Kombinácia s chodbou P2, ktorá spája tieto kancelárie a má rozmer: 118,46m2
Celková plocha je kancelárií a chodby: 323,96
CENA:
- Prenájom priestorov výchádza na 8 EUR/m2/mesiac bez dph
- Energie formou pomerového rozrátavania
- Cena za parkovacie státie: zdarma na prvý polrok. Následne, spoplatnené sumou 1,5 EUR/m2/mesiac bez dph. - Parkovacia plocha podľa potreby a dohody v okolí objektu.
- Depozit vo výške 2 mesačných nájmov.
- Prenajímateľ je platca DPH.
- Možný krátkodobý nájom (minimálne 1 rok), ideálny je dlhodobý nájom.
- V cene nie je zahrnutá provízia maklérovi vo výške 1 mes. nájmu.
___________________________________________
HALA C:
Sklad je plne funkčný a pripravený na okamžité využitie. Disponuje:
- Plne osvetlenými priestormi so stropným osvetlením
- Dostupným parkovaním priamo pri objekte
- Parkovaním (viď. satelitný obrázok).
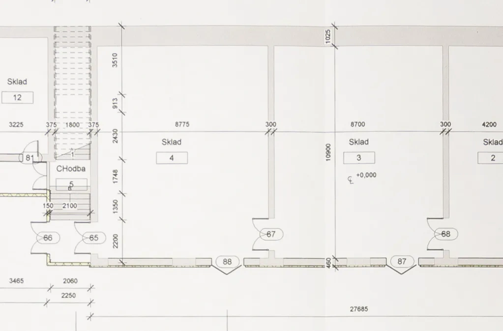
- rozmery dostupné v pôdoryse: viď. v galérií
- uzamykateľný priestor
Sklad 3: 94,83 m2
- Prenájom priestorov výchádza na 6 EUR/m2/mesiac bez dph
- Cena za energie podľa spotreby
- Energie formou pomerového rozrátavania
- Cena za parkovacie státie: zdarma na prvý polrok. Následne, spoplatnené sumou 1,5 EUR/m2/mesiac bez dph. - Parkovacia plocha podľa potreby a dohody v okolí objektu.
- Depozit vo výške 2 mesačných nájmov.
- Prenajímateľ je platca DPH.
- Možný krátkodobý nájom (minimálne 1 rok), ideálny je dlhodobý nájom.
- V cene nie je zahrnutá provízia maklérovi vo výške 1 mes. nájmu.
___________________________________________
Výhodná poloha pri etablovanej spoločnosti s viac než 30-ročnou históriou a jednoduchý prístup pre kamióny a dodávky robia z tohto skladu ideálne riešenie pre logistiku, distribúciu alebo výrobu.
Dostupné aj kancelárske priestory v hlavnej budove A.
Kontaktujte nás a rezervujte si obhliadku Haly B a C ešte dne
Ponúkame na prenájom priestranné skladové priestory v objekte Hala B a C, situované hneď vedľa hlavnej administratívnej budovy Elcom. Priestory sa nachádzajú na: Hala B: vrchnom poschodí a Hala C: spodnom poschodí.
___________________________________________
HALA B:
Sklad je plne funkčný a pripravený na okamžité využitie. Disponuje:
- Nakladacou rampou prístupnou z oboch podlaží
- Ťažkotonážnym nákladným výťahom na pohodlnú manipuláciu s tovarom
- Plne osvetlenými priestormi so stropným osvetlením
- Vlastnou kuchynkou a zázemím pre zamestnancov
- Dostupné aj oddelené šatne, s toaletami a sprchovacími kútmi
- Dostupným parkovaním priamo pri objekte
- Parkovaním (viď. satelitný obrázok).
- Spoločné chodby
DOSTUPNÉ PRIESTORY:
- rozmery dostupné v pôdoryse: viď. v galérií
- uzamykateľné priestory, dostupné slnečné svetlo
Miestnosť 109: 116,1m2
Miestnosť 111: 16,08m2
Miestnosť 112: 40,32m2
Miestnosť 114: 16,5m2
Miestnosť 115: 16,5m2
Alebo Kombinácia s chodbou P2, ktorá spája tieto kancelárie a má rozmer: 118,46m2
Celková plocha je kancelárií a chodby: 323,96
CENA:
- Prenájom priestorov výchádza na 8 EUR/m2/mesiac bez dph
- Energie formou pomerového rozrátavania
- Cena za parkovacie státie: zdarma na prvý polrok. Následne, spoplatnené sumou 1,5 EUR/m2/mesiac bez dph. - Parkovacia plocha podľa potreby a dohody v okolí objektu.
- Depozit vo výške 2 mesačných nájmov.
- Prenajímateľ je platca DPH.
- Možný krátkodobý nájom (minimálne 1 rok), ideálny je dlhodobý nájom.
- V cene nie je zahrnutá provízia maklérovi vo výške 1 mes. nájmu.
___________________________________________
HALA C:
Sklad je plne funkčný a pripravený na okamžité využitie. Disponuje:
- Plne osvetlenými priestormi so stropným osvetlením
- Dostupným parkovaním priamo pri objekte
- Parkovaním (viď. satelitný obrázok).
- rozmery dostupné v pôdoryse: viď. v galérií
- uzamykateľný priestor
Sklad 3: 94,83 m2
- Prenájom priestorov výchádza na 6 EUR/m2/mesiac bez dph
- Cena za energie podľa spotreby
- Energie formou pomerového rozrátavania
- Cena za parkovacie státie: zdarma na prvý polrok. Následne, spoplatnené sumou 1,5 EUR/m2/mesiac bez dph. - Parkovacia plocha podľa potreby a dohody v okolí objektu.
- Depozit vo výške 2 mesačných nájmov.
- Prenajímateľ je platca DPH.
- Možný krátkodobý nájom (minimálne 1 rok), ideálny je dlhodobý nájom.
- V cene nie je zahrnutá provízia maklérovi vo výške 1 mes. nájmu.
___________________________________________
Výhodná poloha pri etablovanej spoločnosti s viac než 30-ročnou históriou a jednoduchý prístup pre kamióny a dodávky robia z tohto skladu ideálne riešenie pre logistiku, distribúciu alebo výrobu.
Dostupné aj kancelárske priestory v hlavnej budove A.
Kontaktujte nás a rezervujte si obhliadku Haly B a C ešte dne
|
| |||||||||||||||||||||||||||||||
Kontaktovať inzerenta e-mailom
Kontaktovať e-mailom môže iba overený užívateľ.
Vaše telefónne číslo *
Kontaktovať e-mailom môže iba overený užívateľ.
Vaše telefónne číslo *


