PREDAJ – Apartmány RAŽANAC – CHORVÁTSKO
- [16.3. 2026]Zmazať/ Upraviť/ Topovať























Realitná spoločnosť DRAGON REAL Vám predstavuje na predaj 6 moderných apartmánov – komfortné bývanie pri mori
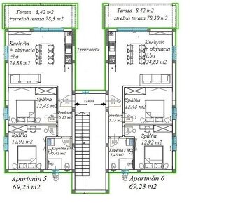
Ponúkame Vám na predaj 6 apartmánov v novostavbe – po 2 apartmány na každom podlaží (prízemie + 2 poschodia). Projekt je navrhnutý tak, aby poskytoval maximálny komfort a moderný štandard bývania.
Dispozícia a vybavenie apartmánov
Každý apartmán má výmeru takmer 70 m² a pozostáva z:
- 2 spální,
- obývacej izby spojenej s kuchyňou,
- kúpeľne s WC,
- balkóna.
Apartmány na prízemí sú bezbariérové.
Apartmány na 2. poschodí majú k dispozícii terasu na streche prislúchajúcu ku každému bytu.
Štandard odovzdania
Apartmány sa odovzdávajú -kompletne dokončené:
- vchodové a interiérové dvere,
- keramické podlahy,
- kompletne vybavená kúpeľňa s WC a sanitou,
- elektroinštalácia vrátane zásuviek a vypínačov,
- klimatizácia,
- vymaľované steny.
Samozrejmosťou je kompletná projektová dokumentácia a všetky potrebné povolenia.
Exteriér a parkovanie
- k dispozícii je súkromné parkovisko,
- 1 parkovacie miesto ku každému apartmánu,
- upravený dvor so zeleňou a oddychovou atmosférou.
Realizácia stavby
- základné práce a železobetónový skelet realizuje overená chorvátska firma (odporúčaná architektom),
- dokončovacie práce zabezpečujú overené slovenské partie murárov, elektrikárov, vodárov a sadrokartonistov,
- projekt nie je viazaný na jednu firmu, ale na odborníkov, s ktorými úspešne spolupracujeme už na našom štvrtom projekte.
Naša podpora pre Vás
Okrem samotného apartmánu je v cene zahrnutá aj kompletná asistencia z našej strany – pomôžeme Vám s celým procesom, nasmerujeme Vás a postaráme sa o to, aby bolo všetko pre Vás pohodlné a bez stresu.
Táto ponuka predstavuje ideálnu príležitosť pre tých, ktorí hľadajú moderné bývanie alebo investíciu v atraktívnej lokalite pri mori.
Ponúkame Vám na predaj 6 apartmánov v novostavbe – po 2 apartmány na každom podlaží (prízemie + 2 poschodia). Projekt je navrhnutý tak, aby poskytoval maximálny komfort a moderný štandard bývania.
Dispozícia a vybavenie apartmánov
Každý apartmán má výmeru takmer 70 m² a pozostáva z:
- 2 spální,
- obývacej izby spojenej s kuchyňou,
- kúpeľne s WC,
- balkóna.
Apartmány na prízemí sú bezbariérové.
Apartmány na 2. poschodí majú k dispozícii terasu na streche prislúchajúcu ku každému bytu.
Štandard odovzdania
Apartmány sa odovzdávajú -kompletne dokončené:
- vchodové a interiérové dvere,
- keramické podlahy,
- kompletne vybavená kúpeľňa s WC a sanitou,
- elektroinštalácia vrátane zásuviek a vypínačov,
- klimatizácia,
- vymaľované steny.
Samozrejmosťou je kompletná projektová dokumentácia a všetky potrebné povolenia.
Exteriér a parkovanie
- k dispozícii je súkromné parkovisko,
- 1 parkovacie miesto ku každému apartmánu,
- upravený dvor so zeleňou a oddychovou atmosférou.
Realizácia stavby
- základné práce a železobetónový skelet realizuje overená chorvátska firma (odporúčaná architektom),
- dokončovacie práce zabezpečujú overené slovenské partie murárov, elektrikárov, vodárov a sadrokartonistov,
- projekt nie je viazaný na jednu firmu, ale na odborníkov, s ktorými úspešne spolupracujeme už na našom štvrtom projekte.
Naša podpora pre Vás
Okrem samotného apartmánu je v cene zahrnutá aj kompletná asistencia z našej strany – pomôžeme Vám s celým procesom, nasmerujeme Vás a postaráme sa o to, aby bolo všetko pre Vás pohodlné a bez stresu.
Táto ponuka predstavuje ideálnu príležitosť pre tých, ktorí hľadajú moderné bývanie alebo investíciu v atraktívnej lokalite pri mori.
|
| |||||||||||||||||||||||||||||||
Kontaktovať inzerenta e-mailom
Kontaktovať e-mailom môže iba overený užívateľ.
Vaše telefónne číslo *
Kontaktovať e-mailom môže iba overený užívateľ.
Vaše telefónne číslo *


