Kancelárie do nájmu
- [11.3. 2026]Zmazať/ Upraviť/ Topovať






























Jedná sa o objekt v pamiatkovej zóne mesta Banská Bystrica len 200 m od Námestia SNP (100 m od TRŽNICE a 350 m od mestského parku) ideálny na bývanie v absolútnom centre mesta, no v tichej lokalite Lazovnej ulice.
POSCHODIE : schodisko + chodba (5,0+4,5m2), kancelária 1 (19,2 m2), Kancelária 2 (31,5 m2), kancelária 3 (22,09 m2), kancelária 4 (16,5 m2), kancelária 5 (30,8 m2) a kancelária 6 (11 m2), WC (2 m2) a Kuchyňa (3,6 m2) + schody na povalu = spolu 146,19 m2
PRÍZEMIE : zádverie (2 m2), chodba (7 m2), rokovacia miestnosť (17,39 m2), sekretariát (12,74 m2), kancelária (21,31 m2), kancelária priechodzia (30,8 + 6,16 m2), kancelária 9,5 m2, WC (7,11 m2), schodisko (7,84 m2) a uzatvor. TERASA + schody do suterénu, všetko spolu : 121,85 m2
SUTERÉN : schodisko a chodba (4+2,2+9,6m2) , kotolňa (18,3m2), sklady (11,6+9,5+11+10m2) spolu : 76,2 m2
Podkrovie : nevyužité cca 70+14 m2 + terasa 47 m2
Celkom využiteľná plocha stavby :
343 m2 + podkrovie 84 m2 + terasa 47 m2 + Garáž 22 m2 + nádvorie cca 75 m2
Celková výmera pozemku : 301 m2
Objekt je napojený na vš. IS (el., voda, plyn, kanalizácia, tel. – zatiaľ bez OPTIKY)
Parkovanie vo dvore pre 3 max 4 autá a jedna garáž.
Fotky sú po vysťahovaní pôvodných nájomníkoch. Majitelia Vám vedia priestor pripraviť podľa Vašich požiadaviek. Nájom je 3000,-€ + DPH služby sú 1100,-€/ 500,-€ plyn, 500,-€ SSE a 100,-€ voda.
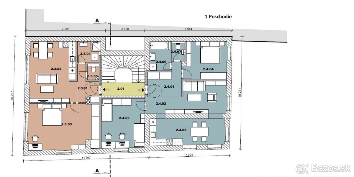
Možnosť aj predaja domu aj s projektom, ktorom je navrhnutých 5 kancelárií a 5 bytov. / viď. pôdorys /
POSCHODIE : schodisko + chodba (5,0+4,5m2), kancelária 1 (19,2 m2), Kancelária 2 (31,5 m2), kancelária 3 (22,09 m2), kancelária 4 (16,5 m2), kancelária 5 (30,8 m2) a kancelária 6 (11 m2), WC (2 m2) a Kuchyňa (3,6 m2) + schody na povalu = spolu 146,19 m2
PRÍZEMIE : zádverie (2 m2), chodba (7 m2), rokovacia miestnosť (17,39 m2), sekretariát (12,74 m2), kancelária (21,31 m2), kancelária priechodzia (30,8 + 6,16 m2), kancelária 9,5 m2, WC (7,11 m2), schodisko (7,84 m2) a uzatvor. TERASA + schody do suterénu, všetko spolu : 121,85 m2
SUTERÉN : schodisko a chodba (4+2,2+9,6m2) , kotolňa (18,3m2), sklady (11,6+9,5+11+10m2) spolu : 76,2 m2
Podkrovie : nevyužité cca 70+14 m2 + terasa 47 m2
Celkom využiteľná plocha stavby :
343 m2 + podkrovie 84 m2 + terasa 47 m2 + Garáž 22 m2 + nádvorie cca 75 m2
Celková výmera pozemku : 301 m2
Objekt je napojený na vš. IS (el., voda, plyn, kanalizácia, tel. – zatiaľ bez OPTIKY)
Parkovanie vo dvore pre 3 max 4 autá a jedna garáž.
Fotky sú po vysťahovaní pôvodných nájomníkoch. Majitelia Vám vedia priestor pripraviť podľa Vašich požiadaviek. Nájom je 3000,-€ + DPH služby sú 1100,-€/ 500,-€ plyn, 500,-€ SSE a 100,-€ voda.
Možnosť aj predaja domu aj s projektom, ktorom je navrhnutých 5 kancelárií a 5 bytov. / viď. pôdorys /
|
| |||||||||||||||||||||||||||||||
Kontaktovať inzerenta e-mailom
Kontaktovať e-mailom môže iba overený užívateľ.
Vaše telefónne číslo *
Kontaktovať e-mailom môže iba overený užívateľ.
Vaše telefónne číslo *
Podobné inzeráty
PRENÁJOM | Administratívny priestor s parkovaním na Skuteck - [6.5. 2026]RK RE/MAX Vám ponúka na prenájom administratívny / kancelársky priestor v širšom centre Banskej Bystrice, na ulici Skuteckého. Veľkou výhodou je dostatok parkovacích miest a priestory sú ihneď k dispozícií.
Administratívny riestor o veľkosti 667 m2 je vhodný ako kancelársky priestor pre väčšiu f ...
4 300 €
Banská Bystrica
974 01
974 01
17 x
Označiť zlý inzerát Chybnú kategóriu Ohodnotiť užívateľa Zmazať/Upraviť/Topovať
Sídlo pre vašu firmu- kancelárske priestory| Horná- Banská B - [29.3. 2026]Realitná kancelária RE/MAX exkluzívne ponúka na prenájom kancelárske priestory v historickej budove na ulici Horná v centre Banskej Bystrice.
Kancelárske priestory sa nachádzajú na najvyššom poschodí budovy a sú plne klimatizované.
Celková výmera kancelárskych priestorov 682,6 m2, z toho ka ...
4 437 €
Banská Bystrica
974 01
974 01
177 x
Označiť zlý inzerát Chybnú kategóriu Ohodnotiť užívateľa Zmazať/Upraviť/Topovať









