novostavba bungalovu
- [10.3. 2026]Zmazať/ Upraviť/ Topovať




















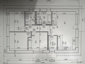
Predám bungalov z kvalitných materiálov, rozmer 9 x 14,5 m, zastavaná plocha 132 m2 (+25 m2 terasa), podlahová plocha 105 m2, na 5 á pozemku. Projekt nie je katalógový, ale urobený na mieru. Dom má najlepšiu možnú polohu v rámci obce Veľký Grob, nachádzajúcej sa 11 km od Senca a 33 km od Bratislavy. Predáva sa v stave skolaudovaný dom s dokončenou technickou miestnosťou spojenou s WC. Má pomerne veľké dobre riešené 3 spálne (14,5m2, 13,5m2, 12 m2), veľkú obývačku (5x4,8=24m2), veľkú kúpeľnu. Dom má veľmi dobre tepelnoizolačné vlastnosti - kvalitné plastové okná Slovaktual pasív CL a hliníkové vchodové (Heroal) a balkónové dvere, obvodové steny z ytong lambda 45 s originál tepelnoizolačnými omietkami ytong a kvalitnou vnútornou ekoomietkou, podlahový polystyrén EPS 150S hrúbky 16 cm, zateplenie stropu 42 cm Isover domo plus, má anhydridový poter, oplotenie z troch strán, okrem predného plota (hotový základ), teplovodné kúrenie Rehau, výhodou je Kurenie plynovým kondenzačným kotlom, je napojený na obecný vodovod, rozvody vody sú z kvallitneho plasthliniku, má komín na krb, povalu z dosák 25 m2, 400 V, potiahnutú optiku, odvodnenie rýn do vsakovacich jám, prípravu na žalúzie, rekuperáciu, klimatizáciu, alarm, bránu, videovrátnika, kamery, pripravený je základ na predný plot a terén pod zámkovú dlažbu a terasu.Energeticky certifikát má A1 (ale zateplením a oknami spĺňa A0, A1 ma preto, že kúrenie je kotlom nie tepelným čerpadlom). Dom má síce žumpu, ale v obci bude na sto percent spustená kanalizácia maximálne do konca roka 2026 aj s rezervou.
|
| |||||||||||||||||||||||||||||||
Kontaktovať inzerenta e-mailom
Kontaktovať e-mailom môže iba overený užívateľ.
Overenie je zadarmo.
Vaše telefónne číslo *
Kontaktovať e-mailom môže iba overený užívateľ.
Overenie je zadarmo.
Vaše telefónne číslo *