Projektová dokumentácia RD- SIM08
- [9.3. 2026]Zmazať/ Upraviť/ Topovať


















Moderný rodinný dom SIM 08 je riešený ako samostatne stojaci dvojpodlažný objekt bez podpivničenia s plochou strechou. Je určený na bývanie 5-8 člennej rodiny a je vhodný pre rovinatý, prípadne mierne svahovitý terén. Rodinný dom SIM 08 ponúka úžitkovú plochu až 265 m2. Priestranné miestnosti budú vyhovovať aj náročným obyvateľom, ktorý majú radi moderné vzdušné zariadenie domácnosti a zároveň vyžadujú dostatok súkromia.
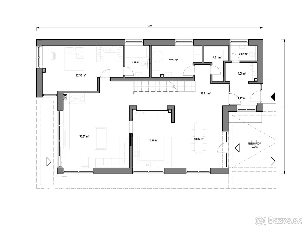
Vnútorná dispozícia domu je tvorená dennou a nočnou časťou. Po vstupe do domu sa ocitnete v predsieni, ktorú od zvyšku domu oddeľujú praktické dvere, ktoré bránia prenikaniu chladu z okolia. Po jej pravej strane sa nachádza šatník a samostatné wc. Ako budete kráčať ďalej smerom do srdca tohto rodinného domu vojdete do dennej časti. Pohoda počas spoločných chvíľ aj dostatok miesta na varenie — to všetko na vás čaká v dennej časti domu. Každá domáca pani iste ocení kuchynskú linku v tvare U, ktorá poskytuje dostatok miesta na varenie. V tomto rodinnom dome nechýba ani komora, ktorá sa nachádza oproti kuchyni. Jedáleň je situovaná vedľa kuchyne pri východe na terasu. Počas jedla si vďaka tomu budete môcť užívať výhľad do záhrady. Umiestniť do nej môžete jedálenský stôl pre 8 – 10 osôb. V letnom období budete mať možnosť tráviť spoločné chvíle aj na krytej terase.
Spoločenská časť domu poskytne pre každého člena rodiny priestor na trávenie spoločného času. Obývačka je miesto na relax aj stretávanie s blízkymi. Môžete v nej vytvoriť komfortné prostredie, v ktorom sa každý bude cítiť príjemne. V obývacej časti je dostatok miesta na sedaciu súpravu s kreslom pre 8-10 osôb s výhľadom na krb. Posedenie s priateľmi či večerný relax si tak môžete spríjemniť teplom z praskajúceho ohníka. Tento dom prekvapí rozmernými presklenými plochami, ktoré navodzujú pocit otvoreného priestoru a privádzajú do interiéru množstvo denného svetla. Každého milovníka prírody poteší výhľad do záhrady cez francúzske okná.
Nočná časť rodinného domu vytvára prostredie, v ktorom si môžete užívať nerušený odpočinok, sústrediť sa na prácu alebo prípravu do školy. Rodičovská spálňa sa nachádza na prízemí a na vyššom komforte sa podieľa šatník a súkromná kúpeľňa. Na poschodí domu sa nachádzajú 3 detské izby, pracovňa, šatník, kúpeľňa a samostatné WC. Detské izby sa dajú zariadiť tak, aby mali deti k dispozícii všetko na každodenné povinnosti, hry aj odpočinok. Podlahová plocha miestností dovolí umiestniť postele, šatníky, poličky aj písacie stolíky.
Projektová dokumentácia domu - SIM08 je spracovaná , vrátane všetkých profesií, v stupni na Stavebné povolenie.
V prípade záujmu realizácie stavby našou spoločnosťou, projekt neplatíte, zároveň vám ako bonus udelíme zľavový kupón GOLD CARD S&nbs
Vnútorná dispozícia domu je tvorená dennou a nočnou časťou. Po vstupe do domu sa ocitnete v predsieni, ktorú od zvyšku domu oddeľujú praktické dvere, ktoré bránia prenikaniu chladu z okolia. Po jej pravej strane sa nachádza šatník a samostatné wc. Ako budete kráčať ďalej smerom do srdca tohto rodinného domu vojdete do dennej časti. Pohoda počas spoločných chvíľ aj dostatok miesta na varenie — to všetko na vás čaká v dennej časti domu. Každá domáca pani iste ocení kuchynskú linku v tvare U, ktorá poskytuje dostatok miesta na varenie. V tomto rodinnom dome nechýba ani komora, ktorá sa nachádza oproti kuchyni. Jedáleň je situovaná vedľa kuchyne pri východe na terasu. Počas jedla si vďaka tomu budete môcť užívať výhľad do záhrady. Umiestniť do nej môžete jedálenský stôl pre 8 – 10 osôb. V letnom období budete mať možnosť tráviť spoločné chvíle aj na krytej terase.
Spoločenská časť domu poskytne pre každého člena rodiny priestor na trávenie spoločného času. Obývačka je miesto na relax aj stretávanie s blízkymi. Môžete v nej vytvoriť komfortné prostredie, v ktorom sa každý bude cítiť príjemne. V obývacej časti je dostatok miesta na sedaciu súpravu s kreslom pre 8-10 osôb s výhľadom na krb. Posedenie s priateľmi či večerný relax si tak môžete spríjemniť teplom z praskajúceho ohníka. Tento dom prekvapí rozmernými presklenými plochami, ktoré navodzujú pocit otvoreného priestoru a privádzajú do interiéru množstvo denného svetla. Každého milovníka prírody poteší výhľad do záhrady cez francúzske okná.
Nočná časť rodinného domu vytvára prostredie, v ktorom si môžete užívať nerušený odpočinok, sústrediť sa na prácu alebo prípravu do školy. Rodičovská spálňa sa nachádza na prízemí a na vyššom komforte sa podieľa šatník a súkromná kúpeľňa. Na poschodí domu sa nachádzajú 3 detské izby, pracovňa, šatník, kúpeľňa a samostatné WC. Detské izby sa dajú zariadiť tak, aby mali deti k dispozícii všetko na každodenné povinnosti, hry aj odpočinok. Podlahová plocha miestností dovolí umiestniť postele, šatníky, poličky aj písacie stolíky.
Projektová dokumentácia domu - SIM08 je spracovaná , vrátane všetkých profesií, v stupni na Stavebné povolenie.
V prípade záujmu realizácie stavby našou spoločnosťou, projekt neplatíte, zároveň vám ako bonus udelíme zľavový kupón GOLD CARD S&nbs
|
| |||||||||||||||||||||||||||||||
Kontaktovať inzerenta e-mailom
Kontaktovať e-mailom môže iba overený užívateľ.
Overenie je zadarmo.
Vaše telefónne číslo *
Kontaktovať e-mailom môže iba overený užívateľ.
Overenie je zadarmo.
Vaše telefónne číslo *