Slnečný 3i byt pri OD Slimák
- [5.3. 2026]Zmazať/ Upraviť/ Topovať




























POPIS
Ponúkame na predaj priestranný, slnečný, zrekonštruovaný, čiastočne zariadený 3i byt s výmerou 66 m2 na 6. poschodí zo 6., na ulici Československých parašutistov v Bratislave – Nové mesto,
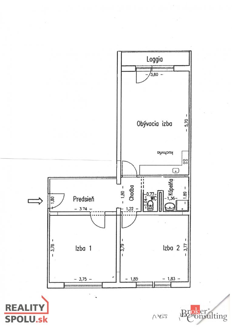
DISPOZIČNÉ RIEŠENIE
Vstup do bytu je cez priestrannú halu, z ktorej sa vchádza do 2 samostatných, nepriechodných izieb (1.spálňa s manželskou posteľou, 2.spálňa je nezariadená), priestrannej obývacej izby spojenej s kuchyňou, kúpeľňou so sprchovacím kútom a toaletou.
Súčasťou vybavenia kúpeľne je z vrchu plnená práčka. Kuchyňa je kompletne vybavená elektrospotrebičmi: indukčná varná doska, digestor, el. rúra, mikrovlnka a vstavaná chladnička s mrazničkou. Z obývacej izby je výstup na lodžiu, z ktorej je výhľad na Malé Karpaty a mesto. Spálne sú orientované na východ do tichého vnútrobloku. Orientácia okien je na západ a východ.
BONUSY
- vhodné ako investičný byt
- spálne orientované do tichého vnútrobloku, obývačka s kuchyňou na mesto
- čiastočne zariadený
Obhliadky možné ihneď.
LOKALITA
V pešej blízkosti je kompletná občianska vybavenosť, vrátane materskej školy, základnej školy, obchody, OD Slimák, TESCO expres, OC VIVO, zastávka SAD, zastávka MHD - autobusov a električiek 5 minút chôdze. Vynikajúca dostupnosť do centra mesta z Vajnorskej a Račianskej ulice.
Ponúkame na predaj priestranný, slnečný, zrekonštruovaný, čiastočne zariadený 3i byt s výmerou 66 m2 na 6. poschodí zo 6., na ulici Československých parašutistov v Bratislave – Nové mesto,
DISPOZIČNÉ RIEŠENIE
Vstup do bytu je cez priestrannú halu, z ktorej sa vchádza do 2 samostatných, nepriechodných izieb (1.spálňa s manželskou posteľou, 2.spálňa je nezariadená), priestrannej obývacej izby spojenej s kuchyňou, kúpeľňou so sprchovacím kútom a toaletou.
Súčasťou vybavenia kúpeľne je z vrchu plnená práčka. Kuchyňa je kompletne vybavená elektrospotrebičmi: indukčná varná doska, digestor, el. rúra, mikrovlnka a vstavaná chladnička s mrazničkou. Z obývacej izby je výstup na lodžiu, z ktorej je výhľad na Malé Karpaty a mesto. Spálne sú orientované na východ do tichého vnútrobloku. Orientácia okien je na západ a východ.
BONUSY
- vhodné ako investičný byt
- spálne orientované do tichého vnútrobloku, obývačka s kuchyňou na mesto
- čiastočne zariadený
Obhliadky možné ihneď.
LOKALITA
V pešej blízkosti je kompletná občianska vybavenosť, vrátane materskej školy, základnej školy, obchody, OD Slimák, TESCO expres, OC VIVO, zastávka SAD, zastávka MHD - autobusov a električiek 5 minút chôdze. Vynikajúca dostupnosť do centra mesta z Vajnorskej a Račianskej ulice.
|
| |||||||||||||||||||||||||||||||
Kontaktovať inzerenta e-mailom
Kontaktovať e-mailom môže iba overený užívateľ.
Vaše telefónne číslo *
Kontaktovať e-mailom môže iba overený užívateľ.
Vaše telefónne číslo *







