Obchodný priestor na Hlavnej vo dvore
- [28.2. 2026]Zmazať/ Upraviť/ Topovať

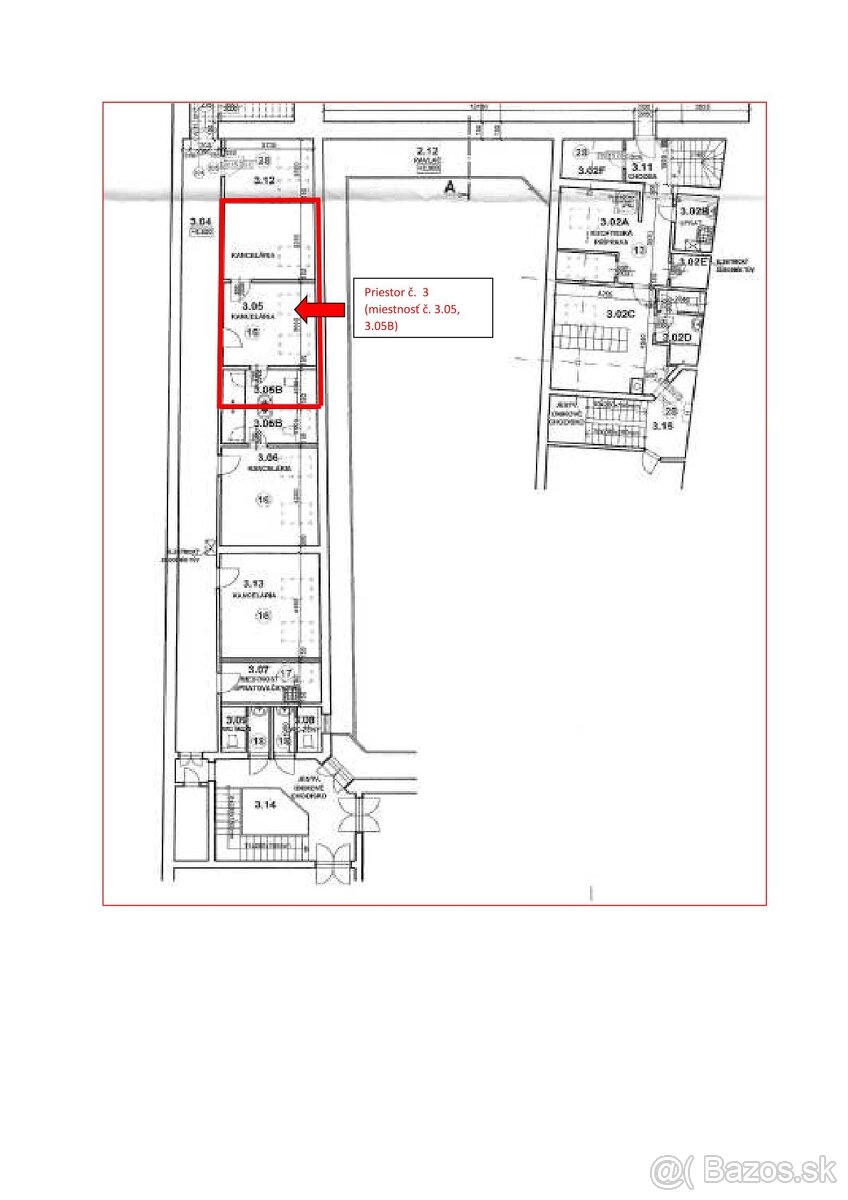
Ponúkame na prenájom obchodný priestor na Hlavnej vo dvore vhodný aj na poskytovanie služieb o výmere 34 m2 na prízemí. Priestor má vlastné sociálne zázemie. Mesačný nájom 370,- € + DPH + energie ( 93,- ) + DPH. Elektrická energia sa platí podľa skutočnej spotreby na základe odpočtu merača. Nutný depozit
|
| |||||||||||||||||||||||||||||||
Kontaktovať inzerenta e-mailom
Kontaktovať e-mailom môže iba overený užívateľ.
Overenie je zadarmo.
Vaše telefónne číslo *
Kontaktovať e-mailom môže iba overený užívateľ.
Overenie je zadarmo.
Vaše telefónne číslo *