Novostavba - 4izbový Bungalov
- [25.2. 2026]Zmazať/ Upraviť/ Topovať




















Ponúkam na predaj novostavbu bungalovu s pozemok v obci Žitavce o výmere 730 m² ktorý bude hotový v Novembri 2026.
Dom bude kompletne dokončený.
Dom sa nachádza v pokojnej lokalite, vhodnej na rodinné bývanie.
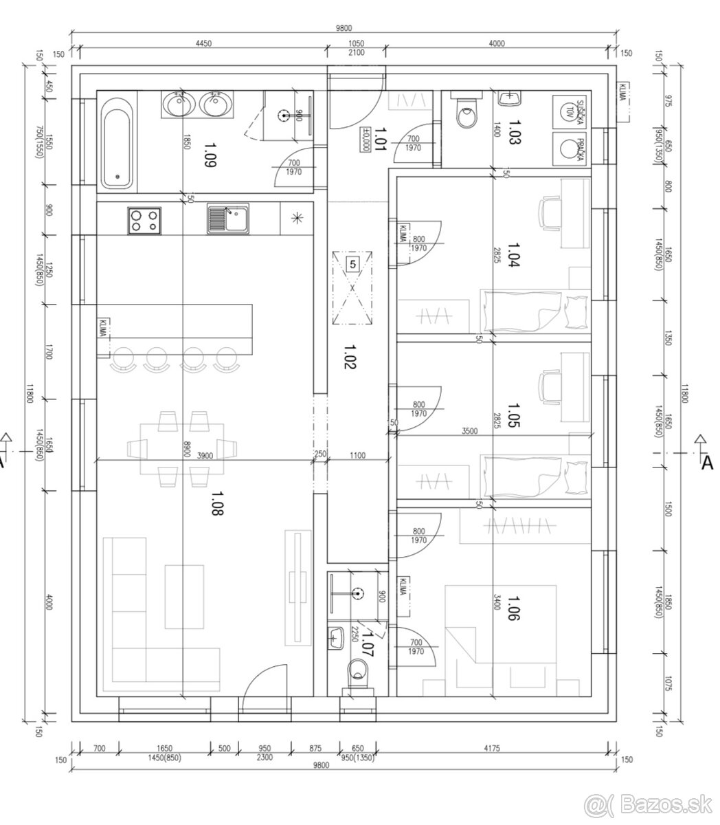
📐 Obytná plocha domu: 92 m²
Projekt je navrhnutý tak, aby každý meter bol efektívne využitý.
🏠 Dispozícia domu:
priestranná obývačka spojená s kuchyňou a veľkým raňajkovým ostrovčekom (možnosť dorobiť špajzu), jedálenský kút a východ na terasu
hlavná kúpeľňa s vaňou, sprchou a dvomi umývadlami
samostatné WC s umývadlom a priestorom na práčku a sušičku
2× detská/hosťovská izba
manželská spálňa s vlastnou kúpeľňou (sprcha, WC, umývadlo)
🌡️ Technické riešenia a vybavenie:
podlahové vykurovanie
3× klimatizácia (tepelné čerpadlo)
4× rekuperácia
zateplenie 15 cm polystyrénom
vonkajšie osvetlenie so senzormi pohybu
Dom bude kompletne dokončený.
Dom sa nachádza v pokojnej lokalite, vhodnej na rodinné bývanie.
📐 Obytná plocha domu: 92 m²
Projekt je navrhnutý tak, aby každý meter bol efektívne využitý.
🏠 Dispozícia domu:
priestranná obývačka spojená s kuchyňou a veľkým raňajkovým ostrovčekom (možnosť dorobiť špajzu), jedálenský kút a východ na terasu
hlavná kúpeľňa s vaňou, sprchou a dvomi umývadlami
samostatné WC s umývadlom a priestorom na práčku a sušičku
2× detská/hosťovská izba
manželská spálňa s vlastnou kúpeľňou (sprcha, WC, umývadlo)
🌡️ Technické riešenia a vybavenie:
podlahové vykurovanie
3× klimatizácia (tepelné čerpadlo)
4× rekuperácia
zateplenie 15 cm polystyrénom
vonkajšie osvetlenie so senzormi pohybu
|
| |||||||||||||||||||||||||||||||
Kontaktovať inzerenta e-mailom
Kontaktovať e-mailom môže iba overený užívateľ.
Overenie je zadarmo.
Vaše telefónne číslo *
Kontaktovať e-mailom môže iba overený užívateľ.
Overenie je zadarmo.
Vaše telefónne číslo *