Na predaj novostavba holodom, Dražkovce
- [25.2. 2026]Zmazať/ Upraviť/ Topovať








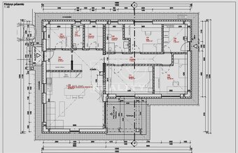
TUreality Vám ponúka na predaj novostavbu rodinného domu v obci Dražkovce. Na priestrannom pozemku s výmerou 1000 m2, ktorý je oplotený, je zahájená výstavba 4-izbového bungalovu s valbovou strechou, úžitková plocha domu je 122 m2. Dom je napojený na všetky inžinierske siete - elektrická prípojka, vodovodná prípojka a kanalizácia. Predáva sa v stave holodomu (možnosť dorobiť do domu na kľúč). Pri rýchlom jednaní možnosť zmeny projektu. Pre bližšie informácie ma neváhajte kontaktovať na tel. čísle +421 41 3217800 alebo mailom na betak@tureality.sk
|
| |||||||||||||||||||||||||||||||
Kontaktovať inzerenta e-mailom
Kontaktovať e-mailom môže iba overený užívateľ.
Overenie je zadarmo.
Vaše telefónne číslo *
Kontaktovať e-mailom môže iba overený užívateľ.
Overenie je zadarmo.
Vaše telefónne číslo *