Španielsko, Finca Cortesin Golf , Golfside, Vila 10
- [18.2. 2026]Zmazať/ Upraviť/ Topovať






























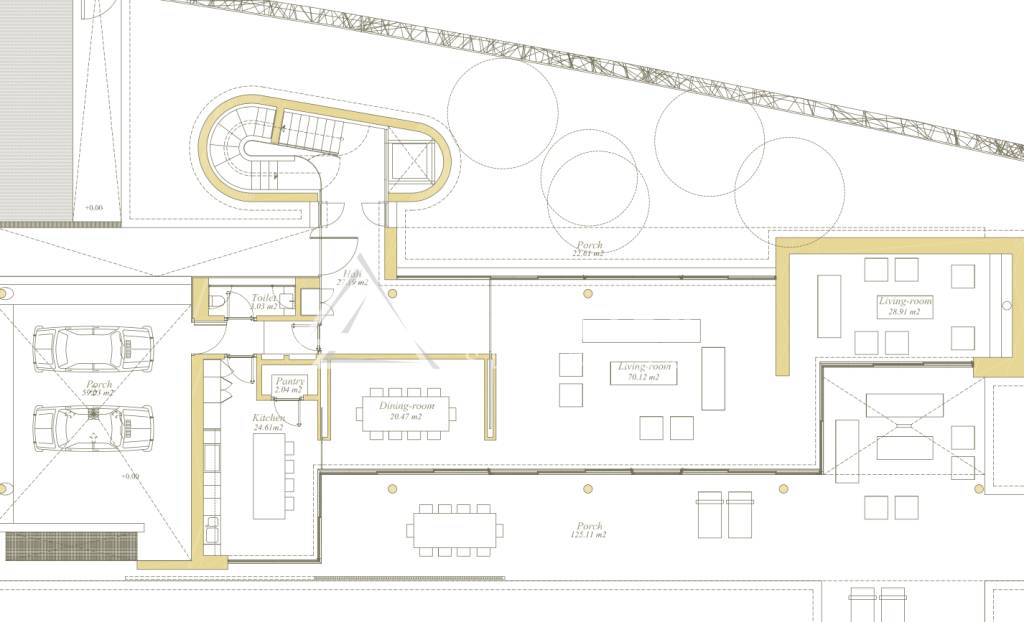
Táto výnimočná vila, ktorá vyžaruje bohatstvo a rafinovanosť, nanovo definuje samotný pojem luxusného bývania v golfovom rezorte. Nachádza sa na vyvýšenom pozemku a ponúka úchvatný panoramatický výhľad na golfové ihrisko a Stredozemné more, zatiaľ čo jej rozsiahle vonkajšie priestory zahŕňajú starostlivo udržiavané záhrady a nádherný bazén. Táto rezidencia, obklopená bujnými palmami a bohatou flórou, poskytuje nádherné vonkajšie útočisko na celoročné užívanie. Prízemie, ktoré je zaliate prirodzeným svetlom vďaka množstvu sklenených dverí od podlahy až po strop, plynulo nadväzuje na záhradu, čím podporuje harmonické prepojenie interiéru a exteriéru. Nehnuteľnosť je rozložená na 3 podlažiach, pričom v suteréne sa nachádza práčovňa, technická miestnosť a na mieru vyrobená vínna pivnica. Prístup do suterénu bol dômyselne integrovaný do nehnuteľnosti prostredníctvom skrytých cylindrických dverí. Interiérové priestory sú elegantne navrhnuté, nachádzajú sa na úrovni prízemia - vyznačujú sa neutrálnymi jemnými tónmi a jedinečnými materiálmi, ktoré domu vdychujú jedinečný zmysel pre individualitu. Kuchyňa vybavená špičkovými spotrebičmi Gaggenau sa pýši na mieru vyrobenými skrinkami a štýlovým kuchynským ostrovom, zatiaľ čo svetlá drevená podlaha v celom dome navodzuje pokojnú a pokojnú atmosféru. Pestovaná krajina, starostlivo upravená v rámci hraníc pozemku, vytvára podmanivú kulisu viditeľnú z prízemia. Horné poschodie je vyhradené spálňam, z ktorých každá má vlastnú terasu a je oddelená úžasnými bielymi priečkami. Architektonické majstrovstvo spoločnosti Vicens & Ramos je zrejmé z každého uhla pohľadu, pričom pôsobivý vstup do nehnuteľnosti zanechá trvalý dojem na všetkých, ktorí sem prídu. Toto majstrovské dielo s privilegovanou polohou v prvej línii golfového ihriska, obdivuhodným výhľadom a neochvejnou snahou o dokonalosť je skutočne neporovnateľnou rezidenciou v rámci exkluzívneho rezortu Finca Cortesin.
Dodatok k cene: + 10 % IVA, vrátane provízie, možnosť HÚ
Obytná plocha: 752m²
Celková rozloha: 1105m²
Rozloha pozemku: 2145m²
Úžitková plocha: 752m²
Vlastníctvo: firemné
Odvoz odpadu: áno - separovaný
Voda: verejný vodovod
El. napätie: 230/400V
Kúpeľňa: áno
Vykurovanie: áno
Terasa: áno
Garáž: áno - 2 autá
Parkovanie: áno
Inžinierske siete: áno
Zariadenie: čiastočne
Zateplený objekt: áno
Bazén: exteriérový
Klimatizácia: áno
Energetický certifikát: áno
Predzáhradka: neuvedené
Prístupová cesta: asfaltová cesta
Dodatok k cene: + 10 % IVA, vrátane provízie, možnosť HÚ
Obytná plocha: 752m²
Celková rozloha: 1105m²
Rozloha pozemku: 2145m²
Úžitková plocha: 752m²
Vlastníctvo: firemné
Odvoz odpadu: áno - separovaný
Voda: verejný vodovod
El. napätie: 230/400V
Kúpeľňa: áno
Vykurovanie: áno
Terasa: áno
Garáž: áno - 2 autá
Parkovanie: áno
Inžinierske siete: áno
Zariadenie: čiastočne
Zateplený objekt: áno
Bazén: exteriérový
Klimatizácia: áno
Energetický certifikát: áno
Predzáhradka: neuvedené
Prístupová cesta: asfaltová cesta
|
| |||||||||||||||||||||||||||||||
Kontaktovať inzerenta e-mailom
Kontaktovať e-mailom môže iba overený užívateľ.
Overenie je zadarmo.
Vaše telefónne číslo *
Kontaktovať e-mailom môže iba overený užívateľ.
Overenie je zadarmo.
Vaše telefónne číslo *
Podobné inzeráty
5izb. nízkoenergetický rodinný dom s krásnou záhradou, Rajka - [6.3. 2026]Realitná kancelária Meriard ponúka na predaj nízkoenergetický 5-izbový rodinný dom v pokojnej a vyhľadávanej lokalite obce Rajka, len pár minút od Bratislavy. Rajka je obľúbená najmä pre pokojné rodinné bývanie a rýchlu dostupnosť do Bratislavy.
Dom bol skolaudovaný v roku 2015 a od začiatku bol st ...
Dohodou
Zahraničie
123 45
123 45
19 x
Označiť zlý inzerát Chybnú kategóriu Ohodnotiť užívateľa Zmazať/Upraviť/Topovať
Na predaj vínny dom s vinicami a vínnymi pivnicami 13974 m2 - [6.3. 2026]Na predaj vinice s vínnym domčekom, vínnymi pivnicami, v obci Tállya, 13 974 m2. Takmer celé sa dá zberať strojmi. Cena: 87 000 €. Nachádzajú sa v Maďarsku, blízko SR hranice, prepis vlastníckych práv na kupujúceho zabezpečíme, tiež poradenstvo s ostatnými záležitosťami. Obec je centrom Európy, znám ...
87 000 €
Zahraničie
123 45
123 45
13 x
Označiť zlý inzerát Chybnú kategóriu Ohodnotiť užívateľa Zmazať/Upraviť/Topovať
Na predaj 3 izbový rodinný dom za 39 000 eur - [6.3. 2026]Na predaj tehlový rodinný dom v Egyházasgerge za 39 000 eur. Dom sa nachádza na pozemku 886 m2. Má chodbu, 3 izby, kuchyňu, špajzu, kúpeľňu a pivnicu. Tiež má prístavbu, letnú kuchyňu. Na pozemku je tiež studňa. Obecná voda a kanalizácia. Plynová prípojka na pozemku. Egyházasgerge je malá dedina s p ...
39 000 €
Zahraničie
123 45
123 45
14 x
Označiť zlý inzerát Chybnú kategóriu Ohodnotiť užívateľa Zmazať/Upraviť/Topovať
Na predaj rodinný dom/historická budova v Maďarsku - [6.3. 2026]MAHUT – REALITY Vám ponúka exkluzívny dvojpodlažný rodinný dom/ historickú budovu v Sárospataku, Maďarsko.
ZÁKLADNÉ ÚDAJE:
Počet izieb na prízemí - 5 s kuchyňou + kúpeľňa a samostatné WC.
Počet izieb na poschodí - 3 izby, miestnosť pripravená na kuchyňu + kúpeľňa a samostatné WC.
DISPOZÍCIA: ...
Dohodou
Zahraničie
123 45
123 45
22 x
Označiť zlý inzerát Chybnú kategóriu Ohodnotiť užívateľa Zmazať/Upraviť/Topovať
NA PREDAJ ŠPANIELSKO Luxusná Vila 300m od pláže,Los Monteros - [6.3. 2026]VIANEMA V ŠPANIELSKU
🌴 Luxusná vila len 300 m od pláže | Los Monteros, Marbella
Predstavujeme vám exkluzívnu samostatne stojacu vilu v jednej z najprestížnejších lokalít Marbelly – Los Monteros. Táto elegantná nehnuteľnosť v klasickom štýle ponúka kombináciu súkromia, priestoru a ...
4 €
Zahraničie
123 45
123 45
20 x
Označiť zlý inzerát Chybnú kategóriu Ohodnotiť užívateľa Zmazať/Upraviť/Topovať
PRIVLAKA - Radový dom - predaj - [6.3. 2026]PRIVLAKA - RADOVÝ DOM - 300 M OD MORA
Dom pozostáva z prízemia, 1. poschodia a strešnej terasy. Na prízemí sa nachádza vstupná hala, sklad, toaleta, kuchyňa, obývacia izba, jedáleň a terasa. Vnútorné schodisko vedie na 1. poschodie, kde sa nachádza chodba, kúpeľňa, 2 spálne a balkón. Dom má tiež ...
299 999 €
Zahraničie
123 45
123 45
17 x
Označiť zlý inzerát Chybnú kategóriu Ohodnotiť užívateľa Zmazať/Upraviť/Topovať
Na predaj 6-izbový dom s bazénom v Capdepera, Malorka - [6.3. 2026]Táto nádherná vila s turistickou licenciou ponúka jedinečnú príležitosť usadiť sa v malebnom kúte sveta, v pôvabnom mestečku Capdepera. Vila sa nachádza v tichej ulici a svojou atmosférou dokonale vystihuje čaro stredomorského života na Malorke. Pozýva vás ponoriť sa do jej krásy a pokoja. V dosahu ...
849 000 €
Zahraničie
123 45
123 45
23 x
Označiť zlý inzerát Chybnú kategóriu Ohodnotiť užívateľa Zmazať/Upraviť/Topovať
Na predaj vila s bazénom a záhradou v Betleme na Malorke - [6.3. 2026]Tento nádherný chalet sa nachádza v malej a pokojnej oblasti Betlem na Malorke, ktorá je známa svojou bohatou prírodou, pokojom a prítomnosťou krásnych zátok s krištáľovo čistou vodou. Poloha tejto nehnuteľnosti je ideálna pre všetkých, ktorí túžia po pokojných chvíľach obklopených zeleňou a malebno ...
706 000 €
Zahraničie
123 45
123 45
19 x
Označiť zlý inzerát Chybnú kategóriu Ohodnotiť užívateľa Zmazať/Upraviť/Topovať
NIN - dvojdom s bazénom - 500 m od centra - [6.3. 2026]NIN - dvojdom s bazénom na predaj s celkovou podlahovou plochou 99,30 m2.
Dom pozostáva z prízemia a horného poschodia. Na prízemí sa nachádza veranda, chodba, toaleta, kuchyňa, obývacia izba a úložný priestor. Z obývacej izby a jedálne sa vchádza na upravený dvor s bazénom o rozlohe 18 m2.
Na ...
395 000 €
Zahraničie
123 45
123 45
21 x
Označiť zlý inzerát Chybnú kategóriu Ohodnotiť užívateľa Zmazať/Upraviť/Topovať
Dom v Maďarsku - [6.3. 2026]Predáme veľmi pekný 4 izbový rodinný dom v Encs-Abaujdecser,s krásnym výhľadom na okolie. Na prízemí je technická miestnosť,skladový priestor,WC,garáž.Plocha pozemku 600m2.Obytná plocha 180m2. Poschodie kuchyňa,spálňa,hosťovská izba,priestranná obývačka,kúpeľňa spolu s WC.2x balkon. Podkrovie je ešt ...
130 000 €
Zahraničie
123 45
123 45
20 x
Označiť zlý inzerát Chybnú kategóriu Ohodnotiť užívateľa Zmazať/Upraviť/Topovať









