RD Pohranice
- [13.2. 2026]Zmazať/ Upraviť/ Topovať
















Z poverenia majiteľa Vám ponúkame na predaj priestranný 4- izbový rodinný dom v tichej lokalite obce Pohranice iba 7 km od mesta Nitra. Táto nehnuteľnosť spája moderný dizajn, kvalitné materiály a veľmi kľudnú časť obce.
Dom:
+ dom sa nachádza na pozemku o rozlohe 611m2
+ zastavaná plocha domu je 261m2 vrátane dvoj-garáže, 2 pivníc a presklenej terasy
+ garáž je priestranná, na 2 autá ( 6,5m x 6m)
+ samotná úžitková plochu domu je 190m2
+ terén okolo pozemku treba upraviť, tak isto je nutné dokončiť fasádu domu podľa vlastnej predstavy
+ dom je pripravený na kolaudáciu, ktorú si musí zabezpečiť nový majiteľ
+ podkrovie sa dá využiť na skladovanie sezónnych vecí
+ kúrenie je zabezpečené podlahovým vykurovaním
+ klimatizácia
+ veľký walk-in šatník
+ predpríprava na solárny systém
+ dom je napojený na miestnu kanalizáciu a miestny vodovod
+ k domu je privedený optický internet (prípojka)
+ predpríprava na solárny systém
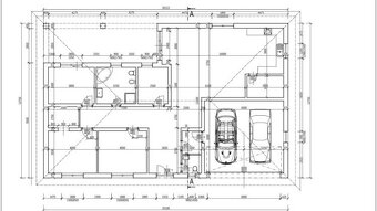
Dispozičné riešenie:
Vstup do domu je situovaný od ulice. Veľkorysá vstupná chodba poskytuje dostatok priestoru na pohodlné prezliekanie, obúvanie a má dostatok úložného priestoru. Od zádveria vpravo je samostatné WC s umývadlom. Ďalšie dvere vedú do garáže. Vľavo je chodba z ktorej sa ide do ostatných miestností domu. Prízemiu dominuje vzdušná a moderne zariadená obývacia izba s kuchyňou a jedálenským kútom, odkiaľ je ďalej prístup na krytú terasu (zimnú záhradu). V kuchyni je priestranná komora. Z chodby sa prechádza do obytnej časti domu. Vľavo je detská izba. Vpravo je technická miestnosť - práčovňa. Ďalej je kúpeľňa s vaňou, sprchovým kútom a WC. V zadnej časti sa nachádzajú izby, jedna so šatníkom walk-in.
Lokalita:
Rodinný dom sa nachádza na konci obce v tichej uličke. Ideálne miesto pre rodinné bývanie. Pohranice sú pokojná obec s výbornou občianskou vybavenosťou ( potraviny, pošta, lekár, lekáreň, zdravotné stredisko – lekár, zubár, Základná a materská škola, posilňovňa, reštaurácia, komunitné centrum) Obec je rýchlo dostupná z Nitry, taktiež je z nej rýchle pripojenie na diaľnicu.
Pre viac informácií, alebo obhliadku ma kontaktujte. Ivana Hujčíková
© Copyright Dom-realit, s.r.o. – Inzerát a fotky sú autorským dielom a majetkom spoločnosti Dom-realit, s.r.o.
Dom:
+ dom sa nachádza na pozemku o rozlohe 611m2
+ zastavaná plocha domu je 261m2 vrátane dvoj-garáže, 2 pivníc a presklenej terasy
+ garáž je priestranná, na 2 autá ( 6,5m x 6m)
+ samotná úžitková plochu domu je 190m2
+ terén okolo pozemku treba upraviť, tak isto je nutné dokončiť fasádu domu podľa vlastnej predstavy
+ dom je pripravený na kolaudáciu, ktorú si musí zabezpečiť nový majiteľ
+ podkrovie sa dá využiť na skladovanie sezónnych vecí
+ kúrenie je zabezpečené podlahovým vykurovaním
+ klimatizácia
+ veľký walk-in šatník
+ predpríprava na solárny systém
+ dom je napojený na miestnu kanalizáciu a miestny vodovod
+ k domu je privedený optický internet (prípojka)
+ predpríprava na solárny systém
Dispozičné riešenie:
Vstup do domu je situovaný od ulice. Veľkorysá vstupná chodba poskytuje dostatok priestoru na pohodlné prezliekanie, obúvanie a má dostatok úložného priestoru. Od zádveria vpravo je samostatné WC s umývadlom. Ďalšie dvere vedú do garáže. Vľavo je chodba z ktorej sa ide do ostatných miestností domu. Prízemiu dominuje vzdušná a moderne zariadená obývacia izba s kuchyňou a jedálenským kútom, odkiaľ je ďalej prístup na krytú terasu (zimnú záhradu). V kuchyni je priestranná komora. Z chodby sa prechádza do obytnej časti domu. Vľavo je detská izba. Vpravo je technická miestnosť - práčovňa. Ďalej je kúpeľňa s vaňou, sprchovým kútom a WC. V zadnej časti sa nachádzajú izby, jedna so šatníkom walk-in.
Lokalita:
Rodinný dom sa nachádza na konci obce v tichej uličke. Ideálne miesto pre rodinné bývanie. Pohranice sú pokojná obec s výbornou občianskou vybavenosťou ( potraviny, pošta, lekár, lekáreň, zdravotné stredisko – lekár, zubár, Základná a materská škola, posilňovňa, reštaurácia, komunitné centrum) Obec je rýchlo dostupná z Nitry, taktiež je z nej rýchle pripojenie na diaľnicu.
Pre viac informácií, alebo obhliadku ma kontaktujte. Ivana Hujčíková
© Copyright Dom-realit, s.r.o. – Inzerát a fotky sú autorským dielom a majetkom spoločnosti Dom-realit, s.r.o.
|
| |||||||||||||||||||||||||||||||
Kontaktovať inzerenta e-mailom
Kontaktovať e-mailom môže iba overený užívateľ.
Overenie je zadarmo.
Vaše telefónne číslo *
Kontaktovať e-mailom môže iba overený užívateľ.
Overenie je zadarmo.
Vaše telefónne číslo *
Podobné inzeráty
Predaj 4 izbový RD-bungalov,Nitra-Chrenová, poz.4,36á,Exklu - [15.2. 2026]Pre videoobhliadku tejto nehnuteľnosti vložte nasledovný odkaz do prehliadača: https://youtu.be/HqMSQSNhxD4
Exkluzívne iba u Nás. Dom- skolaudovaný. Novostavba 2025. V cene dokončené podlahy v celom dome, interiérové dvere v celom dome, zateplenie, finálna fasáda, terasa, funkčný plynový kotol, p ...
368 999 €
Nitra
949 01
949 01
22 x
Označiť zlý inzerát Chybnú kategóriu Ohodnotiť užívateľa Zmazať/Upraviť/Topovať
Predaj 3-izb.,RD,Nitra-Chrenová,110 m2, garáž, poz. 9á, Exkl - [15.2. 2026]Pre videoobhliadku tejto nehnuteľnosti vložte nasledovný odkaz do prehliadača: https://youtu.be/ei8APZUhVZg
Exkluzívne iba u nás. Na predaj 3-izb. rodinný dom po čiastočnej rekonštrukcii, 110 m2, vo vyhľadávanej lokalite Nitra- Chrenová(TOP lokalita), sa nachádza na pozemku s výmerou necelých 9 á ...
289 999 €
Nitra
949 01
949 01
29 x
Označiť zlý inzerát Chybnú kategóriu Ohodnotiť užívateľa Zmazať/Upraviť/Topovať
Na predaj 4-izbová novostavba bungalova Nitra - [15.2. 2026]Typ: Rodinný dom
Ulica: Nitra
Obec: Nitra
Ponúkame Vám na predaj 4-izbový bungalov s dvojgarážou a terasou v meste Nitra časť Kynek.
Plocha: úžitková 175m2, zastavaná 204m2, pozemku 700m2.
Dispozičné riešenie: vstupná chodba, samostatné WC, vstup do garáže pre dve autá s technickou miestnosťou ...
369 000 €
Nitra
949 01
949 01
95 x
Označiť zlý inzerát Chybnú kategóriu Ohodnotiť užívateľa Zmazať/Upraviť/Topovať
Na predaj 4-izbová novostavba len 10km Nitry - [15.2. 2026]Typ: Rodinný dom
Ulica: Golianovo
Obec: Nitra
Ponúkame Vám na predaj 4-izbovú novostavbu rodinného domu v obci Golianovo.
Plocha: úžitková 128m2, zastavaná 161m2, pozemku 529m2.
Dispozičné riešenie: vstupná chodba, samostatné WC, 3x samostatná izba, obývacia izba s výstupom na ...
259 000 €
Nitra
949 01
949 01
24 x
Označiť zlý inzerát Chybnú kategóriu Ohodnotiť užívateľa Zmazať/Upraviť/Topovať
Na predaj priestranný 7-izbový rodinný dom Nitra, Zobor - [15.2. 2026]Ponúkame na predaj samostatne stojaci 7-izbový rodinný dom v jednej z najvyhľadávanejších lokalít Nitry - Zobor, Hornozoborská ulica. Dom sa nachádza na pozemku o výmere 1 145 m² a poskytuje dostatok priestoru pre komfortné rodinné bývanie aj viacgeneračné využitie.
Základné informácie:
• murova ...
389 000 €
Nitra
949 01
949 01
39 x
Označiť zlý inzerát Chybnú kategóriu Ohodnotiť užívateľa Zmazať/Upraviť/Topovať
Exkluzívne na predaj rodinný dom, Staré Mesto, Nitra - [15.2. 2026]F443-12-MATE
Exkluzívne na predaj rodinný dom v meste Nitra, časť Staré Mesto.
ROZLOHA:
• rozloha pozemku - 436 m²
• rozmery pozemku - 12 x 36 m
• úžitková plocha - 110 m²
POZEMOK:
• slnečný
• udržiavaný stav
• okolie domu plné zelene
• oplotený zo všetkých strán
RODINNÝ DOM:
• stavebný materiál ...
225 000 €
Nitra
949 01
949 01
115 x
Označiť zlý inzerát Chybnú kategóriu Ohodnotiť užívateľa Zmazať/Upraviť/Topovať
Novostavba Dom Nitra - [14.2. 2026]Hľadám dom v procese výstavby, kúpa dokončeného domu stav holodom , ideálne v okolii Nitry . Prosím ponuky telefónom alebo mailom .
240 000 €
Nitra
949 01
949 01
41 x
Označiť zlý inzerát Chybnú kategóriu Ohodnotiť užívateľa Zmazať/Upraviť/Topovať
200 000 €
Nitra
949 01
949 01
442 x
Označiť zlý inzerát Chybnú kategóriu Ohodnotiť užívateľa Zmazať/Upraviť/Topovať
Na predaj: Bývanie pri lese v Nitre – krásny 3,5-izbový dom - [13.2. 2026]Predtým, ako si pozriete foto-galériu skopírujte si nasledujúci link a pozrite si video domu:++++https://youtu.be/5m7TxEHSo6Y++++
Premium Living Vám ponúkajú Exluzívne na predaj krásny a priestranný 3,5 izbový tehlový rodinný dom pri lese, umiestnený v zastavanej lukratívnej mestskej časti Nitra – Z ...
306 000 €
Nitra
949 01
949 01
75 x
Označiť zlý inzerát Chybnú kategóriu Ohodnotiť užívateľa Zmazať/Upraviť/Topovať
Novostavba 4 izbového rodinného domu v Janíkovciach HOLODOM - [13.2. 2026]Typ: Rodinný dom
Ulica: Janíkovce
Mestská časť: Janíkovce
Obec: Nitra
Koval reality vám exkluzívne ponúkajú na predaj 4 izbové novostavby rodinných domov, každý s 2 parkovacími miestami, lokalita Janíkovce pri Nitre. Ponúkané nehnuteľnosti sú súčasťou dvojdom ...
228 000 €
Nitra
949 01
949 01
381 x
Označiť zlý inzerát Chybnú kategóriu Ohodnotiť užívateľa Zmazať/Upraviť/Topovať