Rodinný dom - novostavba Moravany
- [10.2. 2026]Zmazať/ Upraviť/ Topovať




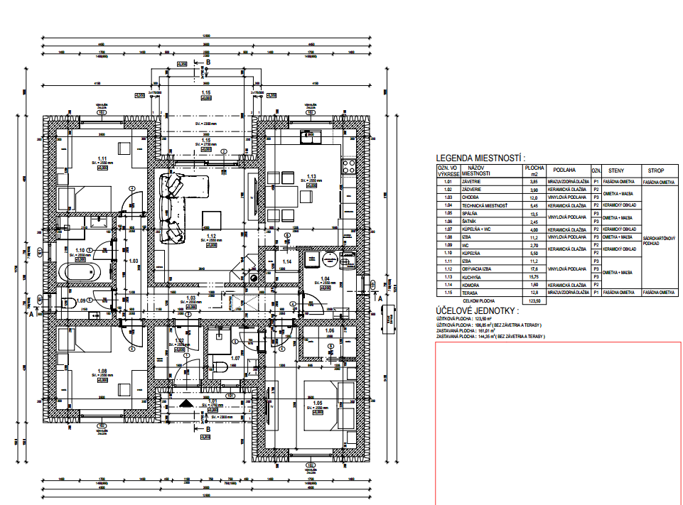
Ponúkame na predaj výstavbu rodinného domu v obci s vynikajúcou občianskou vybavenosťou – obecný úrad, škôlka, reštaurácia, penzión, potraviny, športové kurty v bezprostrednej blízkosti domu.
Rozmery:
• Pozemok: 650 m²
• Úžitková plocha: 123,5m2
Dispozícia:
- 3 x izba
- Obývacia izba
- Kuchyňa
- Technická miestnosť
- Šatník
- Komora
- Chodba
- 2x kúpeľňa
- Samostatné WC
Technické vyhotovenie:
• obvodové murivo 500 mm
• vnútorné sadrové stierky, sadrokartónové stropy
• vodné podlahové kúrenie s tepelným čerpadlom
• predpríprava na klimatizáciu, bezpečnostný a kamerový systém, vonkajšie elektrické žalúzie
• plastové okná s trojsklom
• valbová strecha
Dom sa začne stavať 04/2026.
Výborná dostupnosť do mesta aj do rekreačných zón robí z tejto lokality ideálne miesto na bývanie aj rekreáciu.
Rozmery:
• Pozemok: 650 m²
• Úžitková plocha: 123,5m2
Dispozícia:
- 3 x izba
- Obývacia izba
- Kuchyňa
- Technická miestnosť
- Šatník
- Komora
- Chodba
- 2x kúpeľňa
- Samostatné WC
Technické vyhotovenie:
• obvodové murivo 500 mm
• vnútorné sadrové stierky, sadrokartónové stropy
• vodné podlahové kúrenie s tepelným čerpadlom
• predpríprava na klimatizáciu, bezpečnostný a kamerový systém, vonkajšie elektrické žalúzie
• plastové okná s trojsklom
• valbová strecha
Dom sa začne stavať 04/2026.
Výborná dostupnosť do mesta aj do rekreačných zón robí z tejto lokality ideálne miesto na bývanie aj rekreáciu.
|
| |||||||||||||||||||||||||||||||
Kontaktovať inzerenta e-mailom
Kontaktovať e-mailom môže iba overený užívateľ.
Overenie je zadarmo.
Vaše telefónne číslo *
Kontaktovať e-mailom môže iba overený užívateľ.
Overenie je zadarmo.
Vaše telefónne číslo *
Podobné inzeráty
Novostavba rodinného domu. Rezidencia Hažín. - [24.2. 2026]Realitná kancelária Leaders & Partners predstavuje developerský projekt REZIDENCIA HAŽÍN, pozostávajúci z 11 rodinných domov, ktoré budú situované v obci Hažín, mimo hlavnej cesty. Poloha ulice Vám zaručí dostatok súkromia a ticha. K domom povedie nová asfaltová cestná komunikácia a no ...
169 000 €
Michalovce
071 01
071 01
45 x
Označiť zlý inzerát Chybnú kategóriu Ohodnotiť užívateľa Zmazať/Upraviť/Topovať
Priestranný rodinný dom v Michalovciach s výbornou polohou | - [24.2. 2026]Typ: Rodinný dom
Obec: Michalovce
Realitná kancelária Bývajte s Nami Vám ponúka šancu stať sa majiteľom veľkorysého rodinného domu, nachádzajúceho sa v tichej a rodinami obľúbenej časti Michaloviec. Tento rodinný dom sa nachádza na oplotenom pozemku v blízkosti centra mesta.&nb ...
278 900 €
Michalovce
071 01
071 01
38 x
Označiť zlý inzerát Chybnú kategóriu Ohodnotiť užívateľa Zmazať/Upraviť/Topovať
ID-3348 KRÁSNA NOVOSTAVBA vo výbornej lokalite NA PREDAJ - [24.2. 2026]ID:3348
Ponúkame modernú novostavbu rodinného domu nachádzajúcu sa v príjemnej a pokojnej lokalite s výbornou dostupnosťou do Michaloviec:
- nehnuteľnosť je ideálnou voľbou pre klientov, ktorí hľadajú komfortné a kvalitné bývanie v novom dome bez nutnosti ďalších investícií,
- dom je postaven ...
270 000 €
Michalovce
071 01
071 01
70 x
Označiť zlý inzerát Chybnú kategóriu Ohodnotiť užívateľa Zmazať/Upraviť/Topovať
ID-3344 RODINNÝ DOM s krásnym širokým pozemkom TOPOĽANY - [24.2. 2026]ID:3344
Ponúkame na predaj zachovalý gazdovský dom v pokojnej časti Michaloviec – Topoľany:
- dom je postavený z tehly, je suchý a udržiavaný, so veľmi zachovalou plechovou strechou,
- ideálny na rekonštrukciu podľa predstáv nových majiteľov,
- súčasťou nehnuteľnosti je aj samostatne stojac ...
201 400 €
Michalovce
071 01
071 01
57 x
Označiť zlý inzerát Chybnú kategóriu Ohodnotiť užívateľa Zmazať/Upraviť/Topovať
ID-3343 Na predaj GAZDOVSKÝ RD – Michalovce – časť Topoľany - [24.2. 2026]ID:3343
Ponúkame na predaj pôvodný rodinný dom v Michalovciach, v mestskej časti Topoľany, situovaný na veľkorysom a rovinatom pozemku:
- rodinný dom stojí na pozemku s celkovou výmerou 3207 m² a šírkou 16 -17 m,
- je v pôvodnom stave, vhodný na kompletnú rekonštrukciu od základov alebo demol ...
156 000 €
Michalovce
071 01
071 01
51 x
Označiť zlý inzerát Chybnú kategóriu Ohodnotiť užívateľa Zmazať/Upraviť/Topovať
NA PREDAJ – DVA RODINNÉ DOMY + REŠTAURÁCIA – Michalovce - [24.2. 2026]ID:3322
Ponúkame na predaj komplex nehnuteľností v meste Michalovce, na ulici Fidlíka, v tesnej blízkosti centra:
- na jednom spoločnom pozemku o celkovej výmere 752 m² sa nachádzajú dva samostatné rodinné domy, objekt reštaurácie a záhradný domček,
- nehnuteľnosti sú napojené na všetky inžin ...
325 000 €
Michalovce
071 01
071 01
51 x
Označiť zlý inzerát Chybnú kategóriu Ohodnotiť užívateľa Zmazať/Upraviť/Topovať
AD REALITY - Rodinný dom - IBV Stráňany - [23.2. 2026]PREDÁME dvojpodlažný, samostatne stojaci rodinný dom s garážou, v pokojnej rezidenčnej štvrti IBV Stráňany / pri jazierku Baňa.
Dispozične pozostáva z 5 priestranných obytných miestnosti, kuchyne, 2x špajza, kúpeľňa, 2x WC, práčovňa, technická miestnosť, sklady, loggie, garáž, altánok.
Dispozi ...
210 000 €
Michalovce
071 01
071 01
92 x
Označiť zlý inzerát Chybnú kategóriu Ohodnotiť užívateľa Zmazať/Upraviť/Topovať
VEĽKÝ RODINNÝ DOM – NA HRÁDKU, Michalovce - [23.2. 2026]ID:180
GE-MAX Reality Vám ponúka na predaj priestranný rodinný dom, ktorý sa nachádza v lukratívnej a pokojnej štvrti Na Hrádku – ideálna lokalita pre rodinné bývanie.
Dom je v pôvodnom, ale veľmi zachovalom stave – ideálny na okamžité bývanie alebo rekonštrukciu podľa vlastných predstáv.
Zákla ...
274 900 €
Michalovce
071 01
071 01
66 x
Označiť zlý inzerát Chybnú kategóriu Ohodnotiť užívateľa Zmazať/Upraviť/Topovať
Predaj Rodinný Dom v Močaranoch - [23.2. 2026]Predaj Rodinný Dom v Michalovciach na Močaranskej ulici. Úžitková plocha domu je 110m2, skladá sa zo 4 izieb, komory, pivnice a patrí k nemu pozemok s výmerou 1650m2. Dom bol postavený v 50tich rokoch minulého storočia a je v pôvodnom stave s chybami v omietkach, vhodný na kompletnú rekonštrukciu po ...
139 000 €
Michalovce
071 01
071 01
132 x
Označiť zlý inzerát Chybnú kategóriu Ohodnotiť užívateľa Zmazať/Upraviť/Topovať
Murovaná Novostavba - Rodinný dom s pekný pozemkom 760 m2 - TOP - [25.2. 2026]REALITY HOUSE Vám ponúka nové bývanie
na peknom širokom pozemku v Novostavbe:
- murovaná komfortná Novostavba o rozlohe zastavanej plochy 189m2,
úžitková plocha 152m2
- na peknom širokom pozemku o celkovej rozlohe 760 m2
- v stave HOLODOM
- výstavba domu začala minulý rok 2024, tento rok bu ...
193 000 €
Michalovce
071 01
071 01
129 x
Označiť zlý inzerát Chybnú kategóriu Ohodnotiť užívateľa Zmazať/Upraviť/Topovať