Priestory na prenájom, Martin
- [8.2. 2026]Zmazať/ Upraviť/ Topovať
















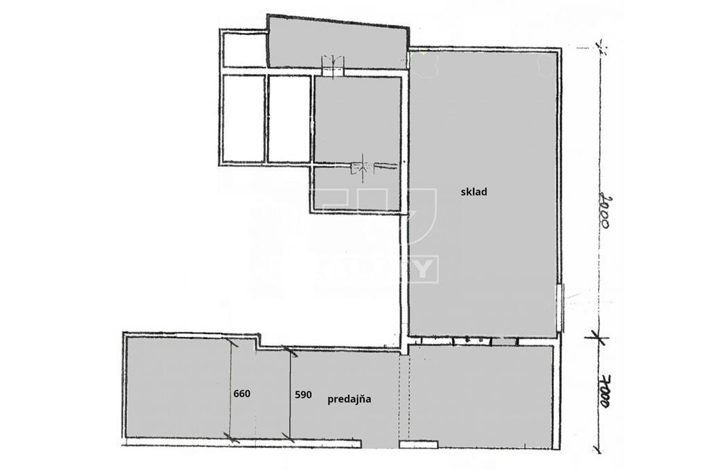
TUreality vám ponúka priestory na prenájom, spolu viac ako 460 m2. Plne vybavené. Možnosť využívať ako celok na skladové účely alebo rozdeliť na časti pre kancelárie. Dispozičné rozmiestnenie: predajňa - 173 m2, sklad - 190 m2, priestory za skladom (potencionálne WC) - 96 m2, kancelária na poschodí - 100 m2, zvyšok (serverovňa, malá kancelária, WC, kuchynka, archív, šatňa) - 116 m2. Pre bližšie informácie ma neváhajte kontaktovať na tel. čísle +421 41 3217800 alebo mailom na betak@tureality.sk
|
| |||||||||||||||||||||||||||||||
Kontaktovať inzerenta e-mailom
Kontaktovať e-mailom môže iba overený užívateľ.
Overenie je zadarmo.
Vaše telefónne číslo *
Kontaktovať e-mailom môže iba overený užívateľ.
Overenie je zadarmo.
Vaše telefónne číslo *